Property
Account |
| Property ID: | 31582 | Abbreviated Legal Description: | IRONDALE #4 BLK 104 LOTS 1 TO 4 |
| Parcel # / Geo ID: | 962110401 | Agent Code: | |
| Type: | Real | | |
| Tax Area: | 0211 - 1-49F1E1H2L1 | Land Use Code | 91 |
| Open Space: | N | DFL | N |
| Historic Property: | N | Remodel Property: | N |
| Multi-Family Redevelopment: | N | | |
| Township: | 30N | Section: | 34 |
| Range: | 1W |
Location |
| Address: | | Mapsco: | 047/036 |
| Neighborhood: | IRONDALE BLOCKS 100 - 179 (I.E. PROSPECT AVENUE AREA) | Map ID: | |
| Neighborhood CD: | 4120 |
Owner |
| Name: | ANNE E PAINE | Owner ID: | 96740 |
| Mailing Address: | 179 KEYSTONE PL PORT TOWNSEND, WA 98368-5031 | % Ownership: | 100.0000000000% |
| | | Exemptions: | |
Pay Tax Due
Select the appropriate checkbox next to the year to be paid. Multiple years may be selected.
*Convenience Fee not included
Taxes and Assessment Details
Property Tax Information as of
03/10/2026
Click on "Statement Details" to expand or collapse a tax statement.
* Please enter a valid date ** Please enter a valid date *
Statement Details |
| 2026 | 20858 | STATE - STATE LEVY (SCHOOL) | $55.23 | $55.21 | $0.00 | $0.00 | $0.00 | $110.44 |
| 2026 | 20858 | COUNTY - COUNTY LEVIES (CE, DD, VET, MH) | $22.09 | $22.06 | $0.00 | $0.00 | $0.00 | $44.15 |
| 2026 | 20858 | CONSERVE - CONSERVATION FUTURES | $0.66 | $0.66 | $0.00 | $0.00 | $0.00 | $1.32 |
| 2026 | 20858 | COROADS - COUNTY ROADS (ROADS, DIV TO CE) | $17.81 | $17.81 | $0.00 | $0.00 | $0.00 | $35.62 |
| 2026 | 20858 | PORTPT - PORT DISTRICT | $8.92 | $8.91 | $0.00 | $0.00 | $0.00 | $17.83 |
| 2026 | 20858 | PUD1 - PUD #1 | $1.44 | $1.43 | $0.00 | $0.00 | $0.00 | $2.87 |
| 2026 | 20858 | LIB1 - LIBRARY DIST #1 | $6.89 | $6.89 | $0.00 | $0.00 | $0.00 | $13.78 |
| 2026 | 20858 | HD2 - HOSP DIST #2 | $1.29 | $1.29 | $0.00 | $0.00 | $0.00 | $2.58 |
| 2026 | 20858 | SD49 - SCHOOL DIST #49 | $30.40 | $30.39 | $0.00 | $0.00 | $0.00 | $60.79 |
| 2026 | 20858 | FD1 - FIRE DISTRICT #1 | $29.24 | $29.23 | $0.00 | $0.00 | $0.00 | $58.47 |
| 2026 | 20858 | EMS1 - FIRE DIST #1 EMS | $11.24 | $11.24 | $0.00 | $0.00 | $0.00 | $22.48 |
| 2026 | 20858 | FPLCA - DNR Landowner Contingency Assmt | $3.00 | $3.00 | $0.00 | $0.00 | $0.00 | $6.00 |
| 2026 | 20858 | JCCD - JC Conservation District | $2.53 | $2.53 | $0.00 | $0.00 | $0.00 | $5.06 |
| 2026 | 20858 | NWA - Noxious Weed Assessment | $2.98 | $2.97 | $0.00 | $0.00 | $0.00 | $5.95 |
| 2026 | 20858 | WAT - Clean Water District | $13.00 | $13.00 | $0.00 | $0.00 | $0.00 | $26.00 |
| 2026 | 20858 | TOTAL: | $206.72 | $206.62 | $0.00 | $0.00 | $0.00 | $413.34 |
|
| 2026 | 20858 | $206.72 | $206.62 | $0.00 | $0.00 | $0.00 | $413.34 |
Statement Details |
| 2025 | 20919 | STATE - STATE LEVY (SCHOOL) | $55.09 | $55.07 | $0.00 | $0.00 | $110.16 | $0.00 |
| 2025 | 20919 | COUNTY - COUNTY LEVIES (CE, DD, VET, MH) | $21.68 | $21.65 | $0.00 | $0.00 | $43.33 | $0.00 |
| 2025 | 20919 | CONSERVE - CONSERVATION FUTURES | $0.65 | $0.65 | $0.00 | $0.00 | $1.30 | $0.00 |
| 2025 | 20919 | COROADS - COUNTY ROADS (ROADS, DIV TO CE) | $17.36 | $17.35 | $0.00 | $0.00 | $34.71 | $0.00 |
| 2025 | 20919 | PORTPT - PORT DISTRICT | $8.85 | $8.83 | $0.00 | $0.00 | $17.68 | $0.00 |
| 2025 | 20919 | PUD1 - PUD #1 | $1.42 | $1.41 | $0.00 | $0.00 | $2.83 | $0.00 |
| 2025 | 20919 | LIB1 - LIBRARY DIST #1 | $6.72 | $6.71 | $0.00 | $0.00 | $13.43 | $0.00 |
| 2025 | 20919 | HD2 - HOSP DIST #2 | $1.27 | $1.26 | $0.00 | $0.00 | $2.53 | $0.00 |
| 2025 | 20919 | SD49 - SCHOOL DIST #49 | $29.53 | $29.51 | $0.00 | $0.00 | $59.04 | $0.00 |
| 2025 | 20919 | FD1 - FIRE DISTRICT #1 | $28.59 | $28.58 | $0.00 | $0.00 | $57.17 | $0.00 |
| 2025 | 20919 | EMS1 - FIRE DIST #1 EMS | $11.00 | $10.99 | $0.00 | $0.00 | $21.99 | $0.00 |
| 2025 | 20919 | FPLCA - DNR Landowner Contingency Assmt | $3.00 | $3.00 | $0.00 | $0.00 | $6.00 | $0.00 |
| 2025 | 20919 | JCCD - JC Conservation District | $2.53 | $2.53 | $0.00 | $0.00 | $5.06 | $0.00 |
| 2025 | 20919 | NWA - Noxious Weed Assessment | $2.15 | $2.15 | $0.00 | $0.00 | $4.30 | $0.00 |
| 2025 | 20919 | WAT - Clean Water District | $13.00 | $13.00 | $0.00 | $0.00 | $26.00 | $0.00 |
| 2025 | 20919 | TOTAL: | $202.84 | $202.69 | $0.00 | $0.00 | $405.53 | $0.00 |
|
| 2025 | 20919 | $202.84 | $202.69 | $0.00 | $0.00 | $405.53 | $0.00 |
Statement Details |
| 2024 | 20962 | STATE - STATE LEVY (SCHOOL) | $50.61 | $50.61 | $0.00 | $0.00 | $101.22 | $0.00 |
| 2024 | 20962 | COUNTY - COUNTY LEVIES (CE, DD, VET, MH) | $21.66 | $21.65 | $0.00 | $0.00 | $43.31 | $0.00 |
| 2024 | 20962 | CONSERVE - CONSERVATION FUTURES | $0.65 | $0.65 | $0.00 | $0.00 | $1.30 | $0.00 |
| 2024 | 20962 | COROADS - COUNTY ROADS (ROADS, DIV TO CE) | $17.43 | $17.42 | $0.00 | $0.00 | $34.85 | $0.00 |
| 2024 | 20962 | PORTPT - PORT DISTRICT | $8.95 | $8.94 | $0.00 | $0.00 | $17.89 | $0.00 |
| 2024 | 20962 | PUD1 - PUD #1 | $1.42 | $1.42 | $0.00 | $0.00 | $2.84 | $0.00 |
| 2024 | 20962 | LIB1 - LIBRARY DIST #1 | $6.74 | $6.74 | $0.00 | $0.00 | $13.48 | $0.00 |
| 2024 | 20962 | HD2 - HOSP DIST #2 | $1.27 | $1.26 | $0.00 | $0.00 | $2.53 | $0.00 |
| 2024 | 20962 | SD49 - SCHOOL DIST #49 | $22.60 | $22.60 | $0.00 | $0.00 | $45.20 | $0.00 |
| 2024 | 20962 | FD1 - FIRE DISTRICT #1 | $28.64 | $28.63 | $0.00 | $0.00 | $57.27 | $0.00 |
| 2024 | 20962 | EMS1 - FIRE DIST #1 EMS | $10.94 | $10.94 | $0.00 | $0.00 | $21.88 | $0.00 |
| 2024 | 20962 | FP - DNR Forest Fire Protection Assmt | $8.50 | $8.50 | $0.00 | $0.00 | $17.00 | $0.00 |
| 2024 | 20962 | FPLCA - DNR Landowner Contingency Assmt | $3.00 | $3.00 | $0.00 | $0.00 | $6.00 | $0.00 |
| 2024 | 20962 | JCCD - JC Conservation District | $2.53 | $2.53 | $0.00 | $0.00 | $5.06 | $0.00 |
| 2024 | 20962 | NWA - Noxious Weed Assessment | $2.15 | $2.15 | $0.00 | $0.00 | $4.30 | $0.00 |
| 2024 | 20962 | WAT - Clean Water District | $12.50 | $12.50 | $0.00 | $0.00 | $25.00 | $0.00 |
| 2024 | 20962 | FP ADMIN - FP ADMIN | $0.50 | $0.00 | $0.00 | $0.00 | $0.50 | $0.00 |
| 2024 | 20962 | TOTAL: | $200.09 | $199.54 | $0.00 | $0.00 | $399.63 | $0.00 |
|
| 2024 | 20962 | $200.09 | $199.54 | $0.00 | $0.00 | $399.63 | $0.00 |
Statement Details |
| 2023 | 20999 | STATE - STATE LEVY (SCHOOL) | $27.08 | $27.07 | $0.00 | $0.00 | $54.15 | $0.00 |
| 2023 | 20999 | COUNTY - COUNTY LEVIES (CE, DD, VET, MH) | $11.82 | $11.80 | $0.00 | $0.00 | $23.62 | $0.00 |
| 2023 | 20999 | CONSERVE - CONSERVATION FUTURES | $0.36 | $0.35 | $0.00 | $0.00 | $0.71 | $0.00 |
| 2023 | 20999 | COROADS - COUNTY ROADS (ROADS, DIV TO CE) | $9.56 | $9.55 | $0.00 | $0.00 | $19.11 | $0.00 |
| 2023 | 20999 | PORTPT - PORT DISTRICT | $4.98 | $4.98 | $0.00 | $0.00 | $9.96 | $0.00 |
| 2023 | 20999 | PUD1 - PUD #1 | $0.79 | $0.78 | $0.00 | $0.00 | $1.57 | $0.00 |
| 2023 | 20999 | LIB1 - LIBRARY DIST #1 | $3.70 | $3.70 | $0.00 | $0.00 | $7.40 | $0.00 |
| 2023 | 20999 | HD2 - HOSP DIST #2 | $0.69 | $0.69 | $0.00 | $0.00 | $1.38 | $0.00 |
| 2023 | 20999 | SD49 - SCHOOL DIST #49 | $12.66 | $12.65 | $0.00 | $0.00 | $25.31 | $0.00 |
| 2023 | 20999 | FD1 - FIRE DISTRICT #1 | $9.73 | $9.73 | $0.00 | $0.00 | $19.46 | $0.00 |
| 2023 | 20999 | EMS1 - FIRE DIST #1 EMS | $4.14 | $4.14 | $0.00 | $0.00 | $8.28 | $0.00 |
| 2023 | 20999 | FP - DNR Forest Fire Protection Assmt | $8.50 | $8.50 | $0.00 | $0.00 | $17.00 | $0.00 |
| 2023 | 20999 | FPLCA - DNR Landowner Contingency Assmt | $3.00 | $3.00 | $0.00 | $0.00 | $6.00 | $0.00 |
| 2023 | 20999 | JCCD - JC Conservation District | $2.53 | $2.53 | $0.00 | $0.00 | $5.06 | $0.00 |
| 2023 | 20999 | NWA - Noxious Weed Assessment | $2.15 | $2.15 | $0.00 | $0.00 | $4.30 | $0.00 |
| 2023 | 20999 | WAT - Clean Water District | $12.00 | $12.00 | $0.00 | $0.00 | $24.00 | $0.00 |
| 2023 | 20999 | FP ADMIN - FP ADMIN | $0.50 | $0.00 | $0.00 | $0.00 | $0.50 | $0.00 |
| 2023 | 20999 | TOTAL: | $114.19 | $113.62 | $0.00 | $0.00 | $227.81 | $0.00 |
|
| 2023 | 20999 | $114.19 | $113.62 | $0.00 | $0.00 | $227.81 | $0.00 |
Values
| (+) Improvement Homesite Value: | + | $0 | |
| (+) Improvement Non-Homesite Value: | + | $0 | |
| (+) Land Homesite Value: | + | $0 | |
| (+) Land Non-Homesite Value: | + | $48,038 | |
| (+) Curr Use (HS): | + | $0 | $0 |
| (+) Curr Use (NHS): | + | $0 | $0 |
| | | -------------------------- | |
| (=) Market Value: | = | $48,038 | |
| (–) Productivity Loss: | – | $0 | |
| | | -------------------------- | |
| (=) Subtotal: | = | $48,038 | |
| (+) Senior Appraised Value: | + | $0 | |
| (+) Non-Senior Appraised Value: | + | $48,038 | |
| | | -------------------------- | |
| (=) Total Appraised Value: | = | $48,038 | |
| (–) Senior Exemption Loss: | – | $0 | |
| (–) Exemption Loss: | – | $0 | |
| | | -------------------------- | |
| (=) Taxable Value: | = | $48,038 | |
Taxing Jurisdiction
| Owner: | ANNE E PAINE | | |
| % Ownership: | 100.0000000000% | | |
| Total Value: | $48,038 | | |
| Tax Area: | 0211 - 1-49F1E1H2L1 |
| CE | COUNTY CURRENT EXPENSE | 0.9034619479 | $48,038 | $48,038 | $43.40 | | |
| CNTYDD | DEVELOPMENTAL DISABILITIES | 0.0052121823 | $48,038 | $48,038 | $0.25 | | |
| CNTYVET | VETERANS RELIEF | 0.0052777810 | $48,038 | $48,038 | $0.25 | | |
| MENTAL | MENTAL HEALTH | 0.0052121823 | $48,038 | $48,038 | $0.25 | | |
| ROADS | COUNTY ROADS | 0.7415066410 | $48,038 | $48,038 | $35.62 | | |
| ROADSCU | COUNTY ROADS TO CUR EXP | 0.0000000000 | $48,038 | $48,038 | $0.00 | | |
| HOSP2CASH | HOSP DIST #2 GENERAL | 0.0536075306 | $48,038 | $48,038 | $2.58 | | |
| SCH49CP | SCHOOL DIST #49 CAP PROJ | 0.6279093905 | $48,038 | $48,038 | $30.16 | | |
| SCH49MO | SCHOOL DIST #49 EP & O | 0.6376483602 | $48,038 | $48,038 | $30.63 | | |
| CONSERVE | CONSERVATION FUTURES | 0.0275621078 | $48,038 | $48,038 | $1.32 | | |
| EMS1 | FIRE DIST #1 EMS | 0.4679948282 | $48,038 | $48,038 | $22.48 | | |
| FD1 | FIRE DIST #1 GENERAL | 1.2171942929 | $48,038 | $48,038 | $58.47 | | |
| LIB1 | LIBRARY DIST #1 GENERAL | 0.2868827388 | $48,038 | $48,038 | $13.78 | | |
| PORTPT | PORT OF PT GENERAL | 0.1134941229 | $48,038 | $48,038 | $5.45 | | |
| PORTPTIDD | PORT OF PT IDD 2019 | 0.2577346692 | $48,038 | $48,038 | $12.38 | | |
| PUD1 | PUD #1 GENERAL | 0.0597888892 | $48,038 | $48,038 | $2.87 | | |
| STATE | STATE SCHOOL PART 1 | 1.4940692947 | $48,038 | $48,038 | $71.77 | | |
| STATE2 | STATE SCHOOL PART 2 | 0.8050170049 | $48,038 | $48,038 | $38.67 | | |
| | Total Tax Rate: | 7.7095739644 | | | | | |
| | | | | Taxes w/Current Exemptions: | $370.33 | | |
| | | | | Taxes w/o Exemptions: | $370.33 | | |
Improvement / Building
Sketch
| No sketches available for this property. |
Property Image
Land
| 1 | 4120-1185L | | 0.0000 | 0.00 | 0.00 | 0.00 | 2.00 | $12,600 | $0 |
| 2 | 4120-1285S | | 0.0000 | 0.00 | 0.00 | 0.00 | 1.00 | $35,438 | $0 |
Roll Value History
| 2026 | N/A | N/A | N/A | N/A | N/A |
| 2025 | $0 | $48,038 | $0 | $48,038 | $48,038 |
| 2024 | $0 | $45,938 | $0 | $45,938 | $45,938 |
| 2023 | $0 | $43,750 | $0 | $43,750 | $43,750 |
| 2022 | $0 | $23,000 | $0 | $23,000 | $23,000 |
Deed and Sales History
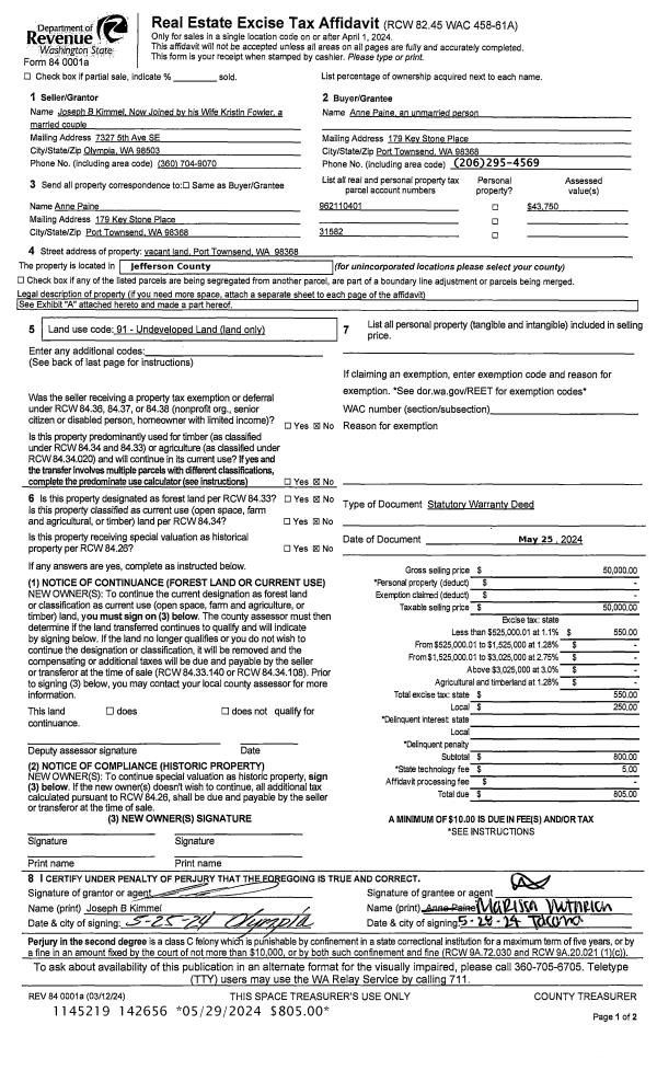
| 1 | 05/25/2024 | SWD | Statutory Warranty Deed | JOSEPH B KIMMEL | ANNE E PAINE | | | $50,000.00 | 142656 | |
| 2 | 12/17/2020 | QCD | Quit Claim Deed | DONALD & GAYLE KIMMEL | JOSEPH B KIMMEL | | | | 136390 | |
| 3 | 09/20/2013 | QCD | Quit Claim Deed | | | | | | 120160 | |
Payout Agreement
| No payout information available.. |