Property
Account |
| Property ID: | 31587 | Abbreviated Legal Description: | IRONDALE #4 BLK 104 LOTS 24 & 25 |
| Parcel # / Geo ID: | 962110407 | Agent Code: | |
| Type: | Real | | |
| Tax Area: | 0211 - 1-49F1E1H2L1 | Land Use Code | 91 |
| Open Space: | N | DFL | N |
| Historic Property: | N | Remodel Property: | N |
| Multi-Family Redevelopment: | N | | |
| Township: | 30N | Section: | 34 |
| Range: | 1W |
Location |
| Address: | 131 LEWIS AVE PORT TOWNSEND, WA 98368 | Mapsco: | 047/041 |
| Neighborhood: | IRONDALE BLOCKS 100 - 179 (I.E. PROSPECT AVENUE AREA) | Map ID: | |
| Neighborhood CD: | 4120 |
Owner |
| Name: | JASCHA KOZELISKY | Owner ID: | 20139 |
| Mailing Address: | HARMONY KOZELISKY 550 W RUNNION RD SEQUIM, WA 98382-7546 | % Ownership: | 100.0000000000% |
| | | Exemptions: | |
Pay Tax Due
Select the appropriate checkbox next to the year to be paid. Multiple years may be selected.
*Convenience Fee not included
Taxes and Assessment Details
Property Tax Information as of
03/12/2026
Click on "Statement Details" to expand or collapse a tax statement.
* Please enter a valid date ** Please enter a valid date *
Statement Details |
| 2026 | 20863 | STATE - STATE LEVY (SCHOOL) | $27.16 | $27.16 | $0.00 | $0.00 | $0.00 | $54.32 |
| 2026 | 20863 | COUNTY - COUNTY LEVIES (CE, DD, VET, MH) | $10.85 | $10.85 | $0.00 | $0.00 | $0.00 | $21.70 |
| 2026 | 20863 | CONSERVE - CONSERVATION FUTURES | $0.33 | $0.32 | $0.00 | $0.00 | $0.00 | $0.65 |
| 2026 | 20863 | COROADS - COUNTY ROADS (ROADS, DIV TO CE) | $8.76 | $8.76 | $0.00 | $0.00 | $0.00 | $17.52 |
| 2026 | 20863 | PORTPT - PORT DISTRICT | $4.39 | $4.38 | $0.00 | $0.00 | $0.00 | $8.77 |
| 2026 | 20863 | PUD1 - PUD #1 | $0.71 | $0.70 | $0.00 | $0.00 | $0.00 | $1.41 |
| 2026 | 20863 | LIB1 - LIBRARY DIST #1 | $3.39 | $3.39 | $0.00 | $0.00 | $0.00 | $6.78 |
| 2026 | 20863 | HD2 - HOSP DIST #2 | $0.64 | $0.63 | $0.00 | $0.00 | $0.00 | $1.27 |
| 2026 | 20863 | SD49 - SCHOOL DIST #49 | $14.95 | $14.94 | $0.00 | $0.00 | $0.00 | $29.89 |
| 2026 | 20863 | FD1 - FIRE DISTRICT #1 | $14.38 | $14.38 | $0.00 | $0.00 | $0.00 | $28.76 |
| 2026 | 20863 | EMS1 - FIRE DIST #1 EMS | $5.53 | $5.53 | $0.00 | $0.00 | $0.00 | $11.06 |
| 2026 | 20863 | FPLCA - DNR Landowner Contingency Assmt | $3.00 | $3.00 | $0.00 | $0.00 | $0.00 | $6.00 |
| 2026 | 20863 | JCCD - JC Conservation District | $2.53 | $2.53 | $0.00 | $0.00 | $0.00 | $5.06 |
| 2026 | 20863 | NWA - Noxious Weed Assessment | $2.98 | $2.97 | $0.00 | $0.00 | $0.00 | $5.95 |
| 2026 | 20863 | WAT - Clean Water District | $13.00 | $13.00 | $0.00 | $0.00 | $0.00 | $26.00 |
| 2026 | 20863 | TOTAL: | $112.60 | $112.54 | $0.00 | $0.00 | $0.00 | $225.14 |
|
| 2026 | 20863 | $112.60 | $112.54 | $0.00 | $0.00 | $0.00 | $225.14 |
Statement Details |
| 2025 | 20924 | STATE - STATE LEVY (SCHOOL) | $28.33 | $28.32 | $0.00 | $0.00 | $56.65 | $0.00 |
| 2025 | 20924 | COUNTY - COUNTY LEVIES (CE, DD, VET, MH) | $11.16 | $11.13 | $0.00 | $0.00 | $22.29 | $0.00 |
| 2025 | 20924 | CONSERVE - CONSERVATION FUTURES | $0.34 | $0.33 | $0.00 | $0.00 | $0.67 | $0.00 |
| 2025 | 20924 | COROADS - COUNTY ROADS (ROADS, DIV TO CE) | $8.93 | $8.92 | $0.00 | $0.00 | $17.85 | $0.00 |
| 2025 | 20924 | PORTPT - PORT DISTRICT | $4.55 | $4.54 | $0.00 | $0.00 | $9.09 | $0.00 |
| 2025 | 20924 | PUD1 - PUD #1 | $0.73 | $0.73 | $0.00 | $0.00 | $1.46 | $0.00 |
| 2025 | 20924 | LIB1 - LIBRARY DIST #1 | $3.46 | $3.45 | $0.00 | $0.00 | $6.91 | $0.00 |
| 2025 | 20924 | HD2 - HOSP DIST #2 | $0.65 | $0.65 | $0.00 | $0.00 | $1.30 | $0.00 |
| 2025 | 20924 | SD49 - SCHOOL DIST #49 | $15.18 | $15.18 | $0.00 | $0.00 | $30.36 | $0.00 |
| 2025 | 20924 | FD1 - FIRE DISTRICT #1 | $14.70 | $14.70 | $0.00 | $0.00 | $29.40 | $0.00 |
| 2025 | 20924 | EMS1 - FIRE DIST #1 EMS | $5.66 | $5.65 | $0.00 | $0.00 | $11.31 | $0.00 |
| 2025 | 20924 | FPLCA - DNR Landowner Contingency Assmt | $3.00 | $3.00 | $0.00 | $0.00 | $6.00 | $0.00 |
| 2025 | 20924 | JCCD - JC Conservation District | $2.53 | $2.53 | $0.00 | $0.00 | $5.06 | $0.00 |
| 2025 | 20924 | NWA - Noxious Weed Assessment | $2.15 | $2.15 | $0.00 | $0.00 | $4.30 | $0.00 |
| 2025 | 20924 | WAT - Clean Water District | $13.00 | $13.00 | $0.00 | $0.00 | $26.00 | $0.00 |
| 2025 | 20924 | TOTAL: | $114.37 | $114.28 | $0.00 | $0.00 | $228.65 | $0.00 |
|
| 2025 | 20924 | $114.37 | $114.28 | $0.00 | $0.00 | $228.65 | $0.00 |
Statement Details |
| 2024 | 20967 | STATE - STATE LEVY (SCHOOL) | $26.03 | $26.02 | $0.00 | $0.00 | $52.05 | $0.00 |
| 2024 | 20967 | COUNTY - COUNTY LEVIES (CE, DD, VET, MH) | $11.16 | $11.13 | $0.00 | $0.00 | $22.29 | $0.00 |
| 2024 | 20967 | CONSERVE - CONSERVATION FUTURES | $0.34 | $0.33 | $0.00 | $0.00 | $0.67 | $0.00 |
| 2024 | 20967 | COROADS - COUNTY ROADS (ROADS, DIV TO CE) | $8.97 | $8.96 | $0.00 | $0.00 | $17.93 | $0.00 |
| 2024 | 20967 | PORTPT - PORT DISTRICT | $4.61 | $4.59 | $0.00 | $0.00 | $9.20 | $0.00 |
| 2024 | 20967 | PUD1 - PUD #1 | $0.73 | $0.73 | $0.00 | $0.00 | $1.46 | $0.00 |
| 2024 | 20967 | LIB1 - LIBRARY DIST #1 | $3.47 | $3.46 | $0.00 | $0.00 | $6.93 | $0.00 |
| 2024 | 20967 | HD2 - HOSP DIST #2 | $0.65 | $0.65 | $0.00 | $0.00 | $1.30 | $0.00 |
| 2024 | 20967 | SD49 - SCHOOL DIST #49 | $11.63 | $11.62 | $0.00 | $0.00 | $23.25 | $0.00 |
| 2024 | 20967 | FD1 - FIRE DISTRICT #1 | $14.73 | $14.72 | $0.00 | $0.00 | $29.45 | $0.00 |
| 2024 | 20967 | EMS1 - FIRE DIST #1 EMS | $5.63 | $5.62 | $0.00 | $0.00 | $11.25 | $0.00 |
| 2024 | 20967 | FPLCA - DNR Landowner Contingency Assmt | $3.00 | $3.00 | $0.00 | $0.00 | $6.00 | $0.00 |
| 2024 | 20967 | JCCD - JC Conservation District | $2.53 | $2.53 | $0.00 | $0.00 | $5.06 | $0.00 |
| 2024 | 20967 | NWA - Noxious Weed Assessment | $2.15 | $2.15 | $0.00 | $0.00 | $4.30 | $0.00 |
| 2024 | 20967 | WAT - Clean Water District | $12.50 | $12.50 | $0.00 | $0.00 | $25.00 | $0.00 |
| 2024 | 20967 | TOTAL: | $108.13 | $108.01 | $0.00 | $0.00 | $216.14 | $0.00 |
|
| 2024 | 20967 | $108.13 | $108.01 | $0.00 | $0.00 | $216.14 | $0.00 |
Statement Details |
| 2023 | 21004 | STATE - STATE LEVY (SCHOOL) | $9.42 | $9.41 | $0.00 | $0.00 | $18.83 | $0.00 |
| 2023 | 21004 | COUNTY - COUNTY LEVIES (CE, DD, VET, MH) | $4.13 | $4.10 | $0.00 | $0.00 | $8.23 | $0.00 |
| 2023 | 21004 | CONSERVE - CONSERVATION FUTURES | $0.13 | $0.12 | $0.00 | $0.00 | $0.25 | $0.00 |
| 2023 | 21004 | COROADS - COUNTY ROADS (ROADS, DIV TO CE) | $3.33 | $3.32 | $0.00 | $0.00 | $6.65 | $0.00 |
| 2023 | 21004 | PORTPT - PORT DISTRICT | $1.74 | $1.72 | $0.00 | $0.00 | $3.46 | $0.00 |
| 2023 | 21004 | PUD1 - PUD #1 | $0.27 | $0.27 | $0.00 | $0.00 | $0.54 | $0.00 |
| 2023 | 21004 | LIB1 - LIBRARY DIST #1 | $1.29 | $1.28 | $0.00 | $0.00 | $2.57 | $0.00 |
| 2023 | 21004 | HD2 - HOSP DIST #2 | $0.25 | $0.23 | $0.00 | $0.00 | $0.48 | $0.00 |
| 2023 | 21004 | SD49 - SCHOOL DIST #49 | $4.41 | $4.39 | $0.00 | $0.00 | $8.80 | $0.00 |
| 2023 | 21004 | FD1 - FIRE DISTRICT #1 | $3.39 | $3.38 | $0.00 | $0.00 | $6.77 | $0.00 |
| 2023 | 21004 | EMS1 - FIRE DIST #1 EMS | $1.44 | $1.44 | $0.00 | $0.00 | $2.88 | $0.00 |
| 2023 | 21004 | FPLCA - DNR Landowner Contingency Assmt | $3.00 | $3.00 | $0.00 | $0.00 | $6.00 | $0.00 |
| 2023 | 21004 | JCCD - JC Conservation District | $2.53 | $2.53 | $0.00 | $0.00 | $5.06 | $0.00 |
| 2023 | 21004 | NWA - Noxious Weed Assessment | $2.15 | $2.15 | $0.00 | $0.00 | $4.30 | $0.00 |
| 2023 | 21004 | WAT - Clean Water District | $12.00 | $12.00 | $0.00 | $0.00 | $24.00 | $0.00 |
| 2023 | 21004 | TOTAL: | $49.48 | $49.34 | $0.00 | $0.00 | $98.82 | $0.00 |
|
| 2023 | 21004 | $49.48 | $49.34 | $0.00 | $0.00 | $98.82 | $0.00 |
Values
| (+) Improvement Homesite Value: | + | $0 | |
| (+) Improvement Non-Homesite Value: | + | $0 | |
| (+) Land Homesite Value: | + | $0 | |
| (+) Land Non-Homesite Value: | + | $23,625 | |
| (+) Curr Use (HS): | + | $0 | $0 |
| (+) Curr Use (NHS): | + | $0 | $0 |
| | | -------------------------- | |
| (=) Market Value: | = | $23,625 | |
| (–) Productivity Loss: | – | $0 | |
| | | -------------------------- | |
| (=) Subtotal: | = | $23,625 | |
| (+) Senior Appraised Value: | + | $0 | |
| (+) Non-Senior Appraised Value: | + | $23,625 | |
| | | -------------------------- | |
| (=) Total Appraised Value: | = | $23,625 | |
| (–) Senior Exemption Loss: | – | $0 | |
| (–) Exemption Loss: | – | $0 | |
| | | -------------------------- | |
| (=) Taxable Value: | = | $23,625 | |
Taxing Jurisdiction
| Owner: | JASCHA KOZELISKY | | |
| % Ownership: | 100.0000000000% | | |
| Total Value: | N/A | | |
| Tax Area: | 0211 - 1-49F1E1H2L1 |
| CE | COUNTY CURRENT EXPENSE | N/A | N/A | N/A | N/A | | |
| CNTYDD | DEVELOPMENTAL DISABILITIES | N/A | N/A | N/A | N/A | | |
| CNTYVET | VETERANS RELIEF | N/A | N/A | N/A | N/A | | |
| MENTAL | MENTAL HEALTH | N/A | N/A | N/A | N/A | | |
| ROADS | COUNTY ROADS | N/A | N/A | N/A | N/A | | |
| HOSP2CASH | HOSP DIST #2 GENERAL | N/A | N/A | N/A | N/A | | |
| SCH49CP | SCHOOL DIST #49 CAP PROJ | N/A | N/A | N/A | N/A | | |
| SCH49MO | SCHOOL DIST #49 EP & O | N/A | N/A | N/A | N/A | | |
| CONSERVE | CONSERVATION FUTURES | N/A | N/A | N/A | N/A | | |
| EMS1 | FIRE DIST #1 EMS | N/A | N/A | N/A | N/A | | |
| FD1 | FIRE DIST #1 GENERAL | N/A | N/A | N/A | N/A | | |
| LIB1 | LIBRARY DIST #1 GENERAL | N/A | N/A | N/A | N/A | | |
| PORTPT | PORT OF PT GENERAL | N/A | N/A | N/A | N/A | | |
| PORTPTIDD | PORT OF PT IDD 2019 | N/A | N/A | N/A | N/A | | |
| PUD1 | PUD #1 GENERAL | N/A | N/A | N/A | N/A | | |
| STATE | STATE SCHOOL PART 1 | N/A | N/A | N/A | N/A | | |
| STATE2 | STATE SCHOOL PART 2 | N/A | N/A | N/A | N/A | | |
| | Total Tax Rate: | N/A | | | | | |
| | | | | Taxes w/Current Exemptions: | N/A | | |
| | | | | Taxes w/o Exemptions: | N/A | | |
Improvement / Building
Sketch
| No sketches available for this property. |
Property Image
Land
| 1 | 4120-1285S | | 0.0000 | 0.00 | 0.00 | 0.00 | 1.00 | $23,625 | $0 |
Roll Value History
| 2026 | N/A | N/A | N/A | N/A | N/A |
| 2025 | $0 | $23,625 | $0 | $23,625 | $23,625 |
| 2024 | $0 | $23,625 | $0 | $23,625 | $23,625 |
| 2023 | $0 | $22,500 | $0 | $22,500 | $22,500 |
| 2022 | $0 | $8,000 | $0 | $8,000 | $8,000 |
Deed and Sales History
| 1 | 03/22/2021 | SWD | Statutory Warranty Deed | RICHARD J FISKE | JASCHA KOZELISKY | | | $28,000.00 | 136406 | |
|   | |
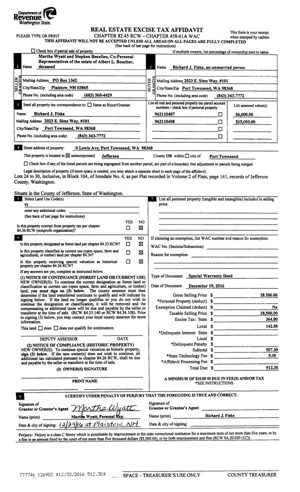
| 2 | 12/19/2016 | SPWD | Special Warranty Deed | MARTHA WYATT & STEPHEN BEAULIEU | RICHARD J FISKE | | | $28,500.00 | 126903 | |
|   | |
| 3 | 02/01/2016 | PRD | Personal Representatives Deed | ALBERT L BOUCHER | MARTHA WYATT & STEPHEN BEAULIEU | | | | 124883 | |
Payout Agreement
| No payout information available.. |