Property
Account |
| Property ID: | 31620 | Abbreviated Legal Description: | IRONDALE #4 BLK 109 LOTS 31 TO 33 |
| Parcel # / Geo ID: | 962110907 | Agent Code: | |
| Type: | Real | | |
| Tax Area: | 0211 - 1-49F1E1H2L1 | Land Use Code | 91 |
| Open Space: | N | DFL | N |
| Historic Property: | N | Remodel Property: | N |
| Multi-Family Redevelopment: | N | | |
| Township: | 30N | Section: | 34 |
| Range: | 1W |
Location |
| Address: | | Mapsco: | 047/080 |
| Neighborhood: | IRONDALE BLOCKS 100 - 179 (I.E. PROSPECT AVENUE AREA) | Map ID: | |
| Neighborhood CD: | 4120 |
Owner |
| Name: | JEFFERSON LAND TRUST | Owner ID: | 19007 |
| Mailing Address: | 1033 LAWRENCE ST PORT TOWNSEND, WA 98368-6523 | % Ownership: | 100.0000000000% |
| | | Exemptions: | EX |
Pay Tax Due
Select the appropriate checkbox next to the year to be paid. Multiple years may be selected.
*Convenience Fee not included
Taxes and Assessment Details
Property Tax Information as of
03/12/2026
Click on "Statement Details" to expand or collapse a tax statement.
* Please enter a valid date ** Please enter a valid date *
Statement Details |
| 2026 | 20896 | STATE - STATE LEVY (SCHOOL) | $0.00 | $0.00 | $0.00 | $0.00 | $0.00 | $0.00 |
| 2026 | 20896 | COUNTY - COUNTY LEVIES (CE, DD, VET, MH) | $0.00 | $0.00 | $0.00 | $0.00 | $0.00 | $0.00 |
| 2026 | 20896 | CONSERVE - CONSERVATION FUTURES | $0.00 | $0.00 | $0.00 | $0.00 | $0.00 | $0.00 |
| 2026 | 20896 | COROADS - COUNTY ROADS (ROADS, DIV TO CE) | $0.00 | $0.00 | $0.00 | $0.00 | $0.00 | $0.00 |
| 2026 | 20896 | PORTPT - PORT DISTRICT | $0.00 | $0.00 | $0.00 | $0.00 | $0.00 | $0.00 |
| 2026 | 20896 | PUD1 - PUD #1 | $0.00 | $0.00 | $0.00 | $0.00 | $0.00 | $0.00 |
| 2026 | 20896 | LIB1 - LIBRARY DIST #1 | $0.00 | $0.00 | $0.00 | $0.00 | $0.00 | $0.00 |
| 2026 | 20896 | HD2 - HOSP DIST #2 | $0.00 | $0.00 | $0.00 | $0.00 | $0.00 | $0.00 |
| 2026 | 20896 | SD49 - SCHOOL DIST #49 | $0.00 | $0.00 | $0.00 | $0.00 | $0.00 | $0.00 |
| 2026 | 20896 | FD1 - FIRE DISTRICT #1 | $0.00 | $0.00 | $0.00 | $0.00 | $0.00 | $0.00 |
| 2026 | 20896 | EMS1 - FIRE DIST #1 EMS | $0.00 | $0.00 | $0.00 | $0.00 | $0.00 | $0.00 |
| 2026 | 20896 | FPLCA - DNR Landowner Contingency Assmt | $6.00 | $0.00 | $0.00 | $0.00 | $0.00 | $6.00 |
| 2026 | 20896 | JCCD - JC Conservation District | $5.06 | $0.00 | $0.00 | $0.00 | $0.00 | $5.06 |
| 2026 | 20896 | NWA - Noxious Weed Assessment | $5.95 | $0.00 | $0.00 | $0.00 | $0.00 | $5.95 |
| 2026 | 20896 | TOTAL: | $17.01 | $0.00 | $0.00 | $0.00 | $0.00 | $17.01 |
|
| 2026 | 20896 | $17.01 | $0.00 | $0.00 | $0.00 | $0.00 | $17.01 |
Statement Details |
| 2025 | 20957 | STATE - STATE LEVY (SCHOOL) | $0.00 | $0.00 | $0.00 | $0.00 | $0.00 | $0.00 |
| 2025 | 20957 | COUNTY - COUNTY LEVIES (CE, DD, VET, MH) | $0.00 | $0.00 | $0.00 | $0.00 | $0.00 | $0.00 |
| 2025 | 20957 | CONSERVE - CONSERVATION FUTURES | $0.00 | $0.00 | $0.00 | $0.00 | $0.00 | $0.00 |
| 2025 | 20957 | COROADS - COUNTY ROADS (ROADS, DIV TO CE) | $0.00 | $0.00 | $0.00 | $0.00 | $0.00 | $0.00 |
| 2025 | 20957 | PORTPT - PORT DISTRICT | $0.00 | $0.00 | $0.00 | $0.00 | $0.00 | $0.00 |
| 2025 | 20957 | PUD1 - PUD #1 | $0.00 | $0.00 | $0.00 | $0.00 | $0.00 | $0.00 |
| 2025 | 20957 | LIB1 - LIBRARY DIST #1 | $0.00 | $0.00 | $0.00 | $0.00 | $0.00 | $0.00 |
| 2025 | 20957 | HD2 - HOSP DIST #2 | $0.00 | $0.00 | $0.00 | $0.00 | $0.00 | $0.00 |
| 2025 | 20957 | SD49 - SCHOOL DIST #49 | $0.00 | $0.00 | $0.00 | $0.00 | $0.00 | $0.00 |
| 2025 | 20957 | FD1 - FIRE DISTRICT #1 | $0.00 | $0.00 | $0.00 | $0.00 | $0.00 | $0.00 |
| 2025 | 20957 | EMS1 - FIRE DIST #1 EMS | $0.00 | $0.00 | $0.00 | $0.00 | $0.00 | $0.00 |
| 2025 | 20957 | FPLCA - DNR Landowner Contingency Assmt | $6.00 | $0.00 | $0.00 | $0.00 | $6.00 | $0.00 |
| 2025 | 20957 | JCCD - JC Conservation District | $5.06 | $0.00 | $0.00 | $0.00 | $5.06 | $0.00 |
| 2025 | 20957 | NWA - Noxious Weed Assessment | $4.30 | $0.00 | $0.00 | $0.00 | $4.30 | $0.00 |
| 2025 | 20957 | TOTAL: | $15.36 | $0.00 | $0.00 | $0.00 | $15.36 | $0.00 |
|
| 2025 | 20957 | $15.36 | $0.00 | $0.00 | $0.00 | $15.36 | $0.00 |
Statement Details |
| 2024 | 21000 | STATE - STATE LEVY (SCHOOL) | $0.00 | $0.00 | $0.00 | $0.00 | $0.00 | $0.00 |
| 2024 | 21000 | COUNTY - COUNTY LEVIES (CE, DD, VET, MH) | $0.00 | $0.00 | $0.00 | $0.00 | $0.00 | $0.00 |
| 2024 | 21000 | CONSERVE - CONSERVATION FUTURES | $0.00 | $0.00 | $0.00 | $0.00 | $0.00 | $0.00 |
| 2024 | 21000 | COROADS - COUNTY ROADS (ROADS, DIV TO CE) | $0.00 | $0.00 | $0.00 | $0.00 | $0.00 | $0.00 |
| 2024 | 21000 | PORTPT - PORT DISTRICT | $0.00 | $0.00 | $0.00 | $0.00 | $0.00 | $0.00 |
| 2024 | 21000 | PUD1 - PUD #1 | $0.00 | $0.00 | $0.00 | $0.00 | $0.00 | $0.00 |
| 2024 | 21000 | LIB1 - LIBRARY DIST #1 | $0.00 | $0.00 | $0.00 | $0.00 | $0.00 | $0.00 |
| 2024 | 21000 | HD2 - HOSP DIST #2 | $0.00 | $0.00 | $0.00 | $0.00 | $0.00 | $0.00 |
| 2024 | 21000 | SD49 - SCHOOL DIST #49 | $0.00 | $0.00 | $0.00 | $0.00 | $0.00 | $0.00 |
| 2024 | 21000 | FD1 - FIRE DISTRICT #1 | $0.00 | $0.00 | $0.00 | $0.00 | $0.00 | $0.00 |
| 2024 | 21000 | EMS1 - FIRE DIST #1 EMS | $0.00 | $0.00 | $0.00 | $0.00 | $0.00 | $0.00 |
| 2024 | 21000 | FPLCA - DNR Landowner Contingency Assmt | $6.00 | $0.00 | $0.00 | $0.00 | $6.00 | $0.00 |
| 2024 | 21000 | JCCD - JC Conservation District | $5.06 | $0.00 | $0.00 | $0.00 | $5.06 | $0.00 |
| 2024 | 21000 | NWA - Noxious Weed Assessment | $4.30 | $0.00 | $0.00 | $0.00 | $4.30 | $0.00 |
| 2024 | 21000 | TOTAL: | $15.36 | $0.00 | $0.00 | $0.00 | $15.36 | $0.00 |
|
| 2024 | 21000 | $15.36 | $0.00 | $0.00 | $0.00 | $15.36 | $0.00 |
Statement Details |
| 2023 | 21037 | STATE - STATE LEVY (SCHOOL) | $0.00 | $0.00 | $0.00 | $0.00 | $0.00 | $0.00 |
| 2023 | 21037 | COUNTY - COUNTY LEVIES (CE, DD, VET, MH) | $0.00 | $0.00 | $0.00 | $0.00 | $0.00 | $0.00 |
| 2023 | 21037 | CONSERVE - CONSERVATION FUTURES | $0.00 | $0.00 | $0.00 | $0.00 | $0.00 | $0.00 |
| 2023 | 21037 | COROADS - COUNTY ROADS (ROADS, DIV TO CE) | $0.00 | $0.00 | $0.00 | $0.00 | $0.00 | $0.00 |
| 2023 | 21037 | PORTPT - PORT DISTRICT | $0.00 | $0.00 | $0.00 | $0.00 | $0.00 | $0.00 |
| 2023 | 21037 | PUD1 - PUD #1 | $0.00 | $0.00 | $0.00 | $0.00 | $0.00 | $0.00 |
| 2023 | 21037 | LIB1 - LIBRARY DIST #1 | $0.00 | $0.00 | $0.00 | $0.00 | $0.00 | $0.00 |
| 2023 | 21037 | HD2 - HOSP DIST #2 | $0.00 | $0.00 | $0.00 | $0.00 | $0.00 | $0.00 |
| 2023 | 21037 | SD49 - SCHOOL DIST #49 | $0.00 | $0.00 | $0.00 | $0.00 | $0.00 | $0.00 |
| 2023 | 21037 | FD1 - FIRE DISTRICT #1 | $0.00 | $0.00 | $0.00 | $0.00 | $0.00 | $0.00 |
| 2023 | 21037 | EMS1 - FIRE DIST #1 EMS | $0.00 | $0.00 | $0.00 | $0.00 | $0.00 | $0.00 |
| 2023 | 21037 | FPLCA - DNR Landowner Contingency Assmt | $6.00 | $0.00 | $0.00 | $0.00 | $6.00 | $0.00 |
| 2023 | 21037 | JCCD - JC Conservation District | $5.06 | $0.00 | $0.00 | $0.00 | $5.06 | $0.00 |
| 2023 | 21037 | NWA - Noxious Weed Assessment | $4.30 | $0.00 | $0.00 | $0.00 | $4.30 | $0.00 |
| 2023 | 21037 | TOTAL: | $15.36 | $0.00 | $0.00 | $0.00 | $15.36 | $0.00 |
|
| 2023 | 21037 | $15.36 | $0.00 | $0.00 | $0.00 | $15.36 | $0.00 |
Values
| (+) Improvement Homesite Value: | + | $0 | |
| (+) Improvement Non-Homesite Value: | + | $0 | |
| (+) Land Homesite Value: | + | $0 | |
| (+) Land Non-Homesite Value: | + | $4,725 | |
| (+) Curr Use (HS): | + | $0 | $0 |
| (+) Curr Use (NHS): | + | $0 | $0 |
| | | -------------------------- | |
| (=) Market Value: | = | $4,725 | |
| (–) Productivity Loss: | – | $0 | |
| | | -------------------------- | |
| (=) Subtotal: | = | $4,725 | |
| (+) Senior Appraised Value: | + | $0 | |
| (+) Non-Senior Appraised Value: | + | $4,725 | |
| | | -------------------------- | |
| (=) Total Appraised Value: | = | $4,725 | |
| (–) Senior Exemption Loss: | – | $0 | |
| (–) Exemption Loss: | – | $4,725 | |
| | | -------------------------- | |
| (=) Taxable Value: | = | $0 | |
Taxing Jurisdiction
| Owner: | JEFFERSON LAND TRUST | | |
| % Ownership: | 100.0000000000% | | |
| Total Value: | $4,725 | | |
| Tax Area: | 0211 - 1-49F1E1H2L1 |
| CE | COUNTY CURRENT EXPENSE | 0.9034619479 | $4,725 | $0 | $0.00 | | |
| CNTYDD | DEVELOPMENTAL DISABILITIES | 0.0052121823 | $4,725 | $0 | $0.00 | | |
| CNTYVET | VETERANS RELIEF | 0.0052777810 | $4,725 | $0 | $0.00 | | |
| MENTAL | MENTAL HEALTH | 0.0052121823 | $4,725 | $0 | $0.00 | | |
| ROADS | COUNTY ROADS | 0.7415066410 | $4,725 | $0 | $0.00 | | |
| ROADSCU | COUNTY ROADS TO CUR EXP | 0.0000000000 | $4,725 | $0 | $0.00 | | |
| HOSP2CASH | HOSP DIST #2 GENERAL | 0.0536075306 | $4,725 | $0 | $0.00 | | |
| SCH49CP | SCHOOL DIST #49 CAP PROJ | 0.6279093905 | $4,725 | $0 | $0.00 | | |
| SCH49MO | SCHOOL DIST #49 EP & O | 0.6376483602 | $4,725 | $0 | $0.00 | | |
| CONSERVE | CONSERVATION FUTURES | 0.0275621078 | $4,725 | $0 | $0.00 | | |
| EMS1 | FIRE DIST #1 EMS | 0.4679948282 | $4,725 | $0 | $0.00 | | |
| FD1 | FIRE DIST #1 GENERAL | 1.2171942929 | $4,725 | $0 | $0.00 | | |
| LIB1 | LIBRARY DIST #1 GENERAL | 0.2868827388 | $4,725 | $0 | $0.00 | | |
| PORTPT | PORT OF PT GENERAL | 0.1134941229 | $4,725 | $0 | $0.00 | | |
| PORTPTIDD | PORT OF PT IDD 2019 | 0.2577346692 | $4,725 | $0 | $0.00 | | |
| PUD1 | PUD #1 GENERAL | 0.0597888892 | $4,725 | $0 | $0.00 | | |
| STATE | STATE SCHOOL PART 1 | 1.4940692947 | $4,725 | $0 | $0.00 | | |
| STATE2 | STATE SCHOOL PART 2 | 0.8050170049 | $4,725 | $0 | $0.00 | | |
| | Total Tax Rate: | 7.7095739644 | | | | | |
| | | | | Taxes w/Current Exemptions: | $0.00 | | |
| | | | | Taxes w/o Exemptions: | $36.41 | | |
Improvement / Building
Sketch
| No sketches available for this property. |
Property Image
Land
| 1 | 4120-1188L | | 0.0000 | 0.00 | 0.00 | 0.00 | 3.00 | $4,725 | $0 |
Roll Value History
| 2026 | N/A | N/A | N/A | N/A | N/A |
| 2025 | $0 | $4,725 | $0 | $4,725 | $0 |
| 2024 | $0 | $4,725 | $0 | $4,725 | $0 |
| 2023 | $0 | $4,500 | $0 | $4,500 | $0 |
| 2022 | $0 | $3,900 | $0 | $3,900 | $0 |
Deed and Sales History
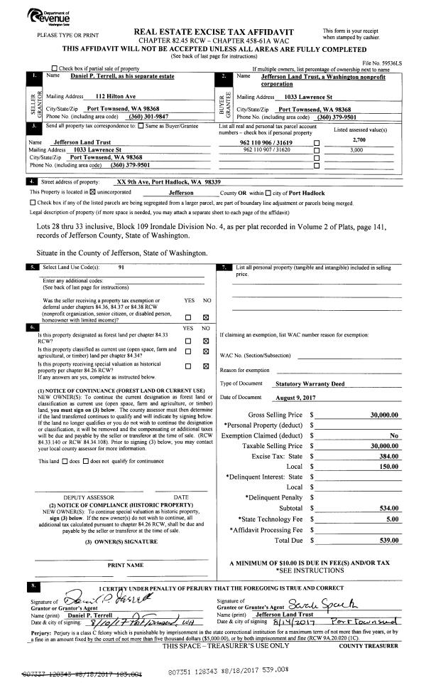
| 1 | 08/22/2017 | SWD | Statutory Warranty Deed | DANIEL P TERRELL | JEFFERSON LAND TRUST | | | $30,000.00 | 128343 | |
|   | |
| 2 | 06/28/2016 | PRD | Personal Representatives Deed | MICHELLE SOHNE | DANIEL P TERRELL | | | | 125732 | |
| 3 | 03/12/2002 | SWD | Statutory Warranty Deed | TERRELL, DANIEL P | SOUNE, MICHELLA K | 0 | 0 | $0.00 | 94184 | 0 |
| 4 | 09/04/2001 | SWD | Statutory Warranty Deed | TREMPER MAILLET, LINDA M/ | TERRELL, DANIEL P | 0 | 0 | $0.00 | 93024 | 0 |
| 5 | 06/03/1998 | SWD | Statutory Warranty Deed | DUNAWAY, DAVID M | TREMPER, LINDA M | 0 | 0 | $0.00 | 84557 | 0 |
| 6 | 04/23/1996 | SWD | Statutory Warranty Deed | HAZEL, ROBERT | DUNAWAY, DAVID M | 0 | 0 | $3,665.00 | 79318 | 0 |
Payout Agreement
| No payout information available.. |