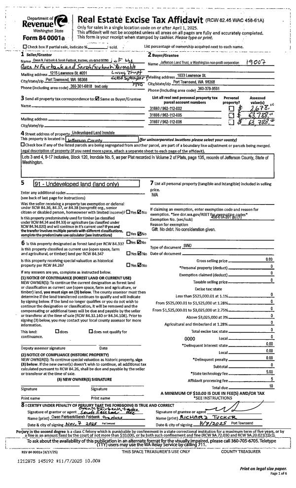
| 1 | 11/07/2025 | SWD | Statutory Warranty Deed | FAIRBANK REVOCABLE LIVING TRUST | JEFFERSON LAND TRUST | | | | 145192 | |
| 2 | 09/22/2023 | SWD | Statutory Warranty Deed | MARTHA WYATT & STEPHEN BEAULIEU | FAIRBANK REVOCABLE LIVING TRUST | | | $160,000.00 | 141607 | |
|   | |
| 3 | 05/16/2018 | SWD | Statutory Warranty Deed | MARTHA WYATT | MARTHA WYATT & STEPHEN BEAULIEU | | | | 130212 | |
| 4 | 01/08/2018 | PRD | Personal Representatives Deed | ESTATE OF MILDRED T BOUCHER | MARTHA WYATT | | | | 129424 | |
| 5 | 08/11/2017 | PRD | Personal Representatives Deed | | | | | | 0 | |
| 6 | 08/11/2017 | PRD | Personal Representatives Deed | MARTHA WYATT & STEPHEN BEAULIEU | ESTATE OF MILDRED T BOUCHER | | | | 128485 | |
| 7 | 02/01/2016 | PRD | Personal Representatives Deed | ALBERT L BOUCHER | MARTHA WYATT & STEPHEN BEAULIEU | | | | 124864 | |