Property
Account |
| Property ID: | 31791 | Abbreviated Legal Description: | IRONDALE #5 BLK 132 LOTS 30,31,32,33 |
| Parcel # / Geo ID: | 962113208 | Agent Code: | |
| Type: | Real | | |
| Tax Area: | 0211 - 1-49F1E1H2L1 | Land Use Code | 91 |
| Open Space: | N | DFL | N |
| Historic Property: | N | Remodel Property: | N |
| Multi-Family Redevelopment: | N | | |
| Township: | 30N | Section: | 34 |
| Range: | 1W |
Location |
| Address: | 44 N GARY AVE PORT TOWNSEND, WA 98368 | Mapsco: | 050/060 |
| Neighborhood: | IRONDALE BLOCKS 100 - 179 (I.E. PROSPECT AVENUE AREA) | Map ID: | |
| Neighborhood CD: | 4120 |
Owner |
| Name: | LAUREN LAING | Owner ID: | 112661 |
| Mailing Address: | 1628 41ST AVE E APT 12 SEATTLE, WA 98112-3238 | % Ownership: | 100.0000000000% |
| | | Exemptions: | |
Pay Tax Due
Select the appropriate checkbox next to the year to be paid. Multiple years may be selected.
*Convenience Fee not included
Taxes and Assessment Details
Property Tax Information as of
03/11/2026
Click on "Statement Details" to expand or collapse a tax statement.
* Please enter a valid date ** Please enter a valid date *
Statement Details |
| 2026 | 21065 | STATE - STATE LEVY (SCHOOL) | $82.08 | $82.08 | $0.00 | $0.00 | $0.00 | $164.16 |
| 2026 | 21065 | COUNTY - COUNTY LEVIES (CE, DD, VET, MH) | $32.83 | $32.80 | $0.00 | $0.00 | $0.00 | $65.63 |
| 2026 | 21065 | CONSERVE - CONSERVATION FUTURES | $0.99 | $0.98 | $0.00 | $0.00 | $0.00 | $1.97 |
| 2026 | 21065 | COROADS - COUNTY ROADS (ROADS, DIV TO CE) | $26.47 | $26.47 | $0.00 | $0.00 | $0.00 | $52.94 |
| 2026 | 21065 | PORTPT - PORT DISTRICT | $13.25 | $13.25 | $0.00 | $0.00 | $0.00 | $26.50 |
| 2026 | 21065 | PUD1 - PUD #1 | $2.14 | $2.13 | $0.00 | $0.00 | $0.00 | $4.27 |
| 2026 | 21065 | LIB1 - LIBRARY DIST #1 | $10.24 | $10.24 | $0.00 | $0.00 | $0.00 | $20.48 |
| 2026 | 21065 | HD2 - HOSP DIST #2 | $1.92 | $1.91 | $0.00 | $0.00 | $0.00 | $3.83 |
| 2026 | 21065 | SD49 - SCHOOL DIST #49 | $45.19 | $45.17 | $0.00 | $0.00 | $0.00 | $90.36 |
| 2026 | 21065 | FD1 - FIRE DISTRICT #1 | $43.46 | $43.45 | $0.00 | $0.00 | $0.00 | $86.91 |
| 2026 | 21065 | EMS1 - FIRE DIST #1 EMS | $16.71 | $16.70 | $0.00 | $0.00 | $0.00 | $33.41 |
| 2026 | 21065 | FP - DNR Forest Fire Protection Assmt | $8.50 | $8.50 | $0.00 | $0.00 | $0.00 | $17.00 |
| 2026 | 21065 | FPLCA - DNR Landowner Contingency Assmt | $3.00 | $3.00 | $0.00 | $0.00 | $0.00 | $6.00 |
| 2026 | 21065 | JCCD - JC Conservation District | $2.53 | $2.53 | $0.00 | $0.00 | $0.00 | $5.06 |
| 2026 | 21065 | NWA - Noxious Weed Assessment | $2.98 | $2.97 | $0.00 | $0.00 | $0.00 | $5.95 |
| 2026 | 21065 | OSS - On Site Septic | $23.10 | $23.10 | $0.00 | $0.00 | $0.00 | $46.20 |
| 2026 | 21065 | WAT - Clean Water District | $13.00 | $13.00 | $0.00 | $0.00 | $0.00 | $26.00 |
| 2026 | 21065 | FP ADMIN - FP ADMIN | $0.50 | $0.00 | $0.00 | $0.00 | $0.00 | $0.50 |
| 2026 | 21065 | TOTAL: | $328.89 | $328.28 | $0.00 | $0.00 | $0.00 | $657.17 |
|
| 2026 | 21065 | $328.89 | $328.28 | $0.00 | $0.00 | $0.00 | $657.17 |
Statement Details |
| 2025 | 21126 | STATE - STATE LEVY (SCHOOL) | $84.36 | $84.34 | $0.00 | $0.00 | $168.70 | $0.00 |
| 2025 | 21126 | COUNTY - COUNTY LEVIES (CE, DD, VET, MH) | $33.18 | $33.17 | $0.00 | $0.00 | $66.35 | $0.00 |
| 2025 | 21126 | CONSERVE - CONSERVATION FUTURES | $1.00 | $0.99 | $0.00 | $0.00 | $1.99 | $0.00 |
| 2025 | 21126 | COROADS - COUNTY ROADS (ROADS, DIV TO CE) | $26.58 | $26.57 | $0.00 | $0.00 | $53.15 | $0.00 |
| 2025 | 21126 | PORTPT - PORT DISTRICT | $13.54 | $13.53 | $0.00 | $0.00 | $27.07 | $0.00 |
| 2025 | 21126 | PUD1 - PUD #1 | $2.17 | $2.17 | $0.00 | $0.00 | $4.34 | $0.00 |
| 2025 | 21126 | LIB1 - LIBRARY DIST #1 | $10.28 | $10.28 | $0.00 | $0.00 | $20.56 | $0.00 |
| 2025 | 21126 | HD2 - HOSP DIST #2 | $1.94 | $1.93 | $0.00 | $0.00 | $3.87 | $0.00 |
| 2025 | 21126 | SD49 - SCHOOL DIST #49 | $45.21 | $45.20 | $0.00 | $0.00 | $90.41 | $0.00 |
| 2025 | 21126 | FD1 - FIRE DISTRICT #1 | $43.77 | $43.77 | $0.00 | $0.00 | $87.54 | $0.00 |
| 2025 | 21126 | EMS1 - FIRE DIST #1 EMS | $16.84 | $16.83 | $0.00 | $0.00 | $33.67 | $0.00 |
| 2025 | 21126 | FPLCA - DNR Landowner Contingency Assmt | $3.00 | $3.00 | $0.00 | $0.00 | $6.00 | $0.00 |
| 2025 | 21126 | JCCD - JC Conservation District | $2.53 | $2.53 | $0.00 | $0.00 | $5.06 | $0.00 |
| 2025 | 21126 | NWA - Noxious Weed Assessment | $2.15 | $2.15 | $0.00 | $0.00 | $4.30 | $0.00 |
| 2025 | 21126 | WAT - Clean Water District | $13.00 | $13.00 | $0.00 | $0.00 | $26.00 | $0.00 |
| 2025 | 21126 | TOTAL: | $299.55 | $299.46 | $0.00 | $0.00 | $599.01 | $0.00 |
|
| 2025 | 21126 | $299.55 | $299.46 | $0.00 | $0.00 | $599.01 | $0.00 |
Statement Details |
| 2024 | 21170 | STATE - STATE LEVY (SCHOOL) | $77.51 | $77.50 | $0.00 | $0.00 | $155.01 | $0.00 |
| 2024 | 21170 | COUNTY - COUNTY LEVIES (CE, DD, VET, MH) | $33.17 | $33.15 | $0.00 | $0.00 | $66.32 | $0.00 |
| 2024 | 21170 | CONSERVE - CONSERVATION FUTURES | $1.00 | $0.99 | $0.00 | $0.00 | $1.99 | $0.00 |
| 2024 | 21170 | COROADS - COUNTY ROADS (ROADS, DIV TO CE) | $26.70 | $26.68 | $0.00 | $0.00 | $53.38 | $0.00 |
| 2024 | 21170 | PORTPT - PORT DISTRICT | $13.71 | $13.69 | $0.00 | $0.00 | $27.40 | $0.00 |
| 2024 | 21170 | PUD1 - PUD #1 | $2.18 | $2.18 | $0.00 | $0.00 | $4.36 | $0.00 |
| 2024 | 21170 | LIB1 - LIBRARY DIST #1 | $10.33 | $10.32 | $0.00 | $0.00 | $20.65 | $0.00 |
| 2024 | 21170 | HD2 - HOSP DIST #2 | $1.94 | $1.93 | $0.00 | $0.00 | $3.87 | $0.00 |
| 2024 | 21170 | SD49 - SCHOOL DIST #49 | $34.62 | $34.60 | $0.00 | $0.00 | $69.22 | $0.00 |
| 2024 | 21170 | FD1 - FIRE DISTRICT #1 | $43.85 | $43.85 | $0.00 | $0.00 | $87.70 | $0.00 |
| 2024 | 21170 | EMS1 - FIRE DIST #1 EMS | $16.75 | $16.75 | $0.00 | $0.00 | $33.50 | $0.00 |
| 2024 | 21170 | FPLCA - DNR Landowner Contingency Assmt | $3.00 | $3.00 | $0.00 | $0.00 | $6.00 | $0.00 |
| 2024 | 21170 | JCCD - JC Conservation District | $2.53 | $2.53 | $0.00 | $0.00 | $5.06 | $0.00 |
| 2024 | 21170 | NWA - Noxious Weed Assessment | $2.15 | $2.15 | $0.00 | $0.00 | $4.30 | $0.00 |
| 2024 | 21170 | WAT - Clean Water District | $12.50 | $12.50 | $0.00 | $0.00 | $25.00 | $0.00 |
| 2024 | 21170 | TOTAL: | $281.94 | $281.82 | $0.00 | $0.00 | $563.76 | $0.00 |
|
| 2024 | 21170 | $281.94 | $281.82 | $0.00 | $0.00 | $563.76 | $0.00 |
Statement Details |
| 2023 | 21207 | STATE - STATE LEVY (SCHOOL) | $57.68 | $57.67 | $0.00 | $0.00 | $115.35 | $0.00 |
| 2023 | 21207 | COUNTY - COUNTY LEVIES (CE, DD, VET, MH) | $25.19 | $25.16 | $0.00 | $0.00 | $50.35 | $0.00 |
| 2023 | 21207 | CONSERVE - CONSERVATION FUTURES | $0.76 | $0.75 | $0.00 | $0.00 | $1.51 | $0.00 |
| 2023 | 21207 | COROADS - COUNTY ROADS (ROADS, DIV TO CE) | $20.36 | $20.36 | $0.00 | $0.00 | $40.72 | $0.00 |
| 2023 | 21207 | PORTPT - PORT DISTRICT | $10.61 | $10.60 | $0.00 | $0.00 | $21.21 | $0.00 |
| 2023 | 21207 | PUD1 - PUD #1 | $1.67 | $1.67 | $0.00 | $0.00 | $3.34 | $0.00 |
| 2023 | 21207 | LIB1 - LIBRARY DIST #1 | $7.88 | $7.88 | $0.00 | $0.00 | $15.76 | $0.00 |
| 2023 | 21207 | HD2 - HOSP DIST #2 | $1.48 | $1.46 | $0.00 | $0.00 | $2.94 | $0.00 |
| 2023 | 21207 | SD49 - SCHOOL DIST #49 | $26.96 | $26.96 | $0.00 | $0.00 | $53.92 | $0.00 |
| 2023 | 21207 | FD1 - FIRE DISTRICT #1 | $20.74 | $20.73 | $0.00 | $0.00 | $41.47 | $0.00 |
| 2023 | 21207 | EMS1 - FIRE DIST #1 EMS | $8.82 | $8.82 | $0.00 | $0.00 | $17.64 | $0.00 |
| 2023 | 21207 | FPLCA - DNR Landowner Contingency Assmt | $3.00 | $3.00 | $0.00 | $0.00 | $6.00 | $0.00 |
| 2023 | 21207 | JCCD - JC Conservation District | $2.53 | $2.53 | $0.00 | $0.00 | $5.06 | $0.00 |
| 2023 | 21207 | NWA - Noxious Weed Assessment | $2.15 | $2.15 | $0.00 | $0.00 | $4.30 | $0.00 |
| 2023 | 21207 | WAT - Clean Water District | $12.00 | $12.00 | $0.00 | $0.00 | $24.00 | $0.00 |
| 2023 | 21207 | TOTAL: | $201.83 | $201.74 | $0.00 | $0.00 | $403.57 | $0.00 |
|
| 2023 | 21207 | $201.83 | $201.74 | $0.00 | $0.00 | $403.57 | $0.00 |
Values
| (+) Improvement Homesite Value: | + | $0 | |
| (+) Improvement Non-Homesite Value: | + | $0 | |
| (+) Land Homesite Value: | + | $0 | |
| (+) Land Non-Homesite Value: | + | $71,400 | |
| (+) Curr Use (HS): | + | $0 | $0 |
| (+) Curr Use (NHS): | + | $0 | $0 |
| | | -------------------------- | |
| (=) Market Value: | = | $71,400 | |
| (–) Productivity Loss: | – | $0 | |
| | | -------------------------- | |
| (=) Subtotal: | = | $71,400 | |
| (+) Senior Appraised Value: | + | $0 | |
| (+) Non-Senior Appraised Value: | + | $71,400 | |
| | | -------------------------- | |
| (=) Total Appraised Value: | = | $71,400 | |
| (–) Senior Exemption Loss: | – | $0 | |
| (–) Exemption Loss: | – | $0 | |
| | | -------------------------- | |
| (=) Taxable Value: | = | $71,400 | |
Taxing Jurisdiction
| Owner: | LAUREN LAING | | |
| % Ownership: | 100.0000000000% | | |
| Total Value: | N/A | | |
| Tax Area: | 0211 - 1-49F1E1H2L1 |
| CE | COUNTY CURRENT EXPENSE | N/A | N/A | N/A | N/A | | |
| CNTYDD | DEVELOPMENTAL DISABILITIES | N/A | N/A | N/A | N/A | | |
| CNTYVET | VETERANS RELIEF | N/A | N/A | N/A | N/A | | |
| MENTAL | MENTAL HEALTH | N/A | N/A | N/A | N/A | | |
| ROADS | COUNTY ROADS | N/A | N/A | N/A | N/A | | |
| HOSP2CASH | HOSP DIST #2 GENERAL | N/A | N/A | N/A | N/A | | |
| SCH49CP | SCHOOL DIST #49 CAP PROJ | N/A | N/A | N/A | N/A | | |
| SCH49MO | SCHOOL DIST #49 EP & O | N/A | N/A | N/A | N/A | | |
| CONSERVE | CONSERVATION FUTURES | N/A | N/A | N/A | N/A | | |
| EMS1 | FIRE DIST #1 EMS | N/A | N/A | N/A | N/A | | |
| FD1 | FIRE DIST #1 GENERAL | N/A | N/A | N/A | N/A | | |
| LIB1 | LIBRARY DIST #1 GENERAL | N/A | N/A | N/A | N/A | | |
| PORTPT | PORT OF PT GENERAL | N/A | N/A | N/A | N/A | | |
| PORTPTIDD | PORT OF PT IDD 2019 | N/A | N/A | N/A | N/A | | |
| PUD1 | PUD #1 GENERAL | N/A | N/A | N/A | N/A | | |
| STATE | STATE SCHOOL PART 1 | N/A | N/A | N/A | N/A | | |
| STATE2 | STATE SCHOOL PART 2 | N/A | N/A | N/A | N/A | | |
| | Total Tax Rate: | N/A | | | | | |
| | | | | Taxes w/Current Exemptions: | N/A | | |
| | | | | Taxes w/o Exemptions: | N/A | | |
Improvement / Building
Sketch
| No sketches available for this property. |
Property Image
Land
| 1 | 4120-1275S | | 0.0000 | 0.00 | 0.00 | 0.00 | 1.00 | $63,000 | $0 |
| 2 | 4120-1187L | | 0.0000 | 0.00 | 0.00 | 0.00 | 2.00 | $8,400 | $0 |
Roll Value History
| 2026 | N/A | N/A | N/A | N/A | N/A |
| 2025 | $0 | $71,400 | $0 | $71,400 | $71,400 |
| 2024 | $0 | $70,350 | $0 | $70,350 | $70,350 |
| 2023 | $0 | $67,000 | $0 | $67,000 | $67,000 |
| 2022 | $0 | $49,000 | $0 | $49,000 | $49,000 |
Deed and Sales History
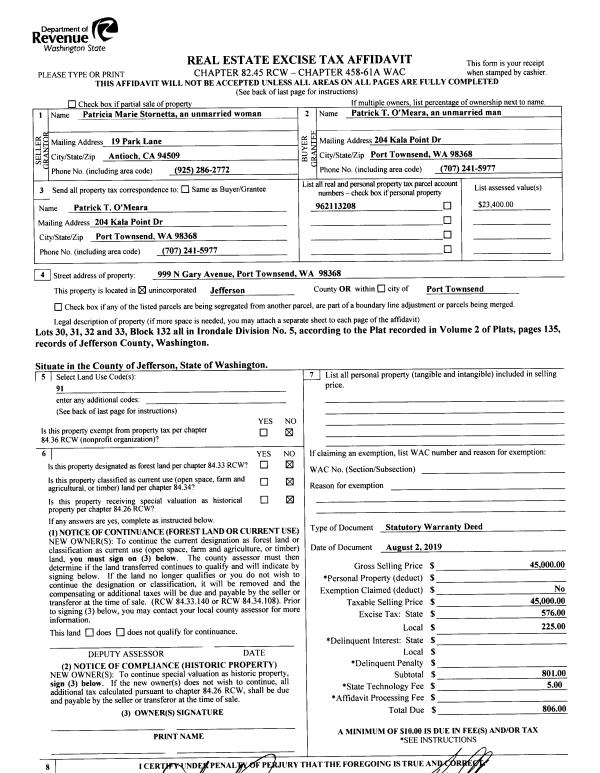
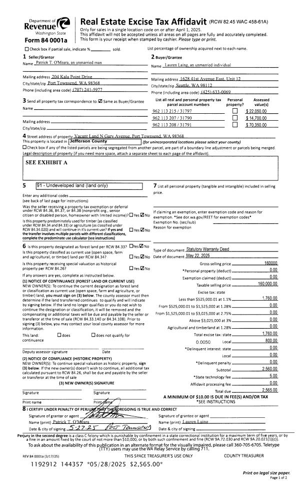
| 1 | 05/22/2025 | SWD | Statutory Warranty Deed | PATRICK T O'MEARA | LAUREN LAING | | | $160,000.00 | 144357 | |
|   | |
| 2 | 08/02/2019 | SWD | Statutory Warranty Deed | PATRICIA STORNETTA | PATRICK T O'MEARA | | | $45,000.00 | 132888 | |
| 3 | 05/22/2019 | QCD | Quit Claim Deed | BARBARA FEE | PATRICIA STORNETTA | | | | 132452 | |
| 4 | 05/22/2019 | QCD | Quit Claim Deed | | | | | | 132886 | |
| 5 | 02/01/2017 | SWD | Statutory Warranty Deed | THOMAS A CARPENTER | BARBARA FEE | | | $26,000.00 | 127106 | |
| 6 | 06/20/2000 | QCD | Quit Claim Deed | GERLACH, JOHN F | CARPENTER, THOMAS/SR & LAURII | 0 | 0 | $0.00 | 89942 | 0 |
Payout Agreement
| No payout information available.. |