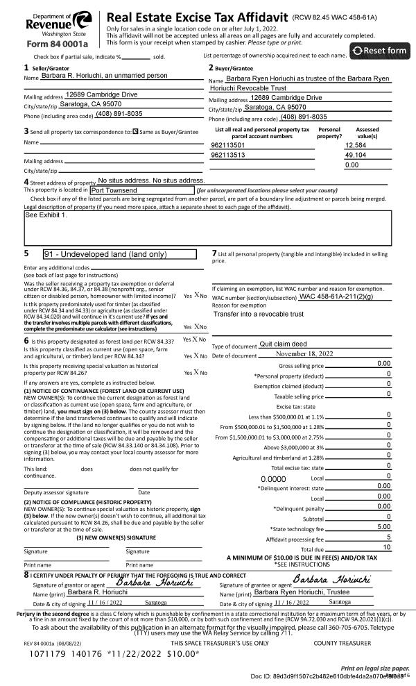
Property
Account |
| Property ID: | 31808 | Abbreviated Legal Description: | IRONDALE #6 BLK 135 LOTS 1 & 2 |
| Parcel # / Geo ID: | 962113501 | Agent Code: | |
| Type: | Real | | |
| Tax Area: | 0211 - 1-49F1E1H2L1 | Land Use Code | 91 |
| Open Space: | N | DFL | N |
| Historic Property: | N | Remodel Property: | N |
| Multi-Family Redevelopment: | N | | |
| Township: | 30N | Section: | 35 |
| Range: | 1W |
Location |
| Address: | | Mapsco: | 051/001 |
| Neighborhood: | IRONDALE BLOCKS 100 - 179 (I.E. PROSPECT AVENUE AREA) | Map ID: | |
| Neighborhood CD: | 4120 |
Owner |
| Name: | BARBARA RYEN HORIUCHI REVOCABLE TRUST | Owner ID: | 108011 |
| Mailing Address: | BARBARA RYEN HORIUCHI TRUSTEE 73 BELVEDERE DR PORT TOWNSEND, WA 98368 | % Ownership: | 100.0000000000% |
| | | Exemptions: | |
Pay Tax Due
There is currently No Amount Due on this property.
Taxes and Assessment Details
Property Tax Information as of
03/13/2026
Click on "Statement Details" to expand or collapse a tax statement.
* Please enter a valid date ** Please enter a valid date *
Statement Details |
| | TOTAL: | $0.00 | $0.00 | $0.00 | $0.00 | $0.00 | $0.00 |
|
| | $0.00 | $0.00 | $0.00 | $0.00 | $0.00 | $0.00 |
Values
| (+) Improvement Homesite Value: | + | $0 | |
| (+) Improvement Non-Homesite Value: | + | $0 | |
| (+) Land Homesite Value: | + | $0 | |
| (+) Land Non-Homesite Value: | + | $24,570 | |
| (+) Curr Use (HS): | + | $0 | $0 |
| (+) Curr Use (NHS): | + | $0 | $0 |
| | | -------------------------- | |
| (=) Market Value: | = | $24,570 | |
| (–) Productivity Loss: | – | $0 | |
| | | -------------------------- | |
| (=) Subtotal: | = | $24,570 | |
| (+) Senior Appraised Value: | + | $0 | |
| (+) Non-Senior Appraised Value: | + | $24,570 | |
| | | -------------------------- | |
| (=) Total Appraised Value: | = | $24,570 | |
| (–) Senior Exemption Loss: | – | $0 | |
| (–) Exemption Loss: | – | $0 | |
| | | -------------------------- | |
| (=) Taxable Value: | = | $24,570 | |
Taxing Jurisdiction
| Owner: | BARBARA RYEN HORIUCHI REVOCABLE TRUST | | |
| % Ownership: | 100.0000000000% | | |
| Total Value: | N/A | | |
| Tax Area: | 0211 - 1-49F1E1H2L1 |
| CE | COUNTY CURRENT EXPENSE | N/A | N/A | N/A | N/A | | |
| CNTYDD | DEVELOPMENTAL DISABILITIES | N/A | N/A | N/A | N/A | | |
| CNTYVET | VETERANS RELIEF | N/A | N/A | N/A | N/A | | |
| MENTAL | MENTAL HEALTH | N/A | N/A | N/A | N/A | | |
| ROADS | COUNTY ROADS | N/A | N/A | N/A | N/A | | |
| HOSP2CASH | HOSP DIST #2 GENERAL | N/A | N/A | N/A | N/A | | |
| SCH49CP | SCHOOL DIST #49 CAP PROJ | N/A | N/A | N/A | N/A | | |
| SCH49MO | SCHOOL DIST #49 EP & O | N/A | N/A | N/A | N/A | | |
| CONSERVE | CONSERVATION FUTURES | N/A | N/A | N/A | N/A | | |
| EMS1 | FIRE DIST #1 EMS | N/A | N/A | N/A | N/A | | |
| FD1 | FIRE DIST #1 GENERAL | N/A | N/A | N/A | N/A | | |
| LIB1 | LIBRARY DIST #1 GENERAL | N/A | N/A | N/A | N/A | | |
| PORTPT | PORT OF PT GENERAL | N/A | N/A | N/A | N/A | | |
| PORTPTIDD | PORT OF PT IDD 2019 | N/A | N/A | N/A | N/A | | |
| PUD1 | PUD #1 GENERAL | N/A | N/A | N/A | N/A | | |
| STATE | STATE SCHOOL PART 1 | N/A | N/A | N/A | N/A | | |
| STATE2 | STATE SCHOOL PART 2 | N/A | N/A | N/A | N/A | | |
| | Total Tax Rate: | N/A | | | | | |
| | | | | Taxes w/Current Exemptions: | N/A | | |
| | | | | Taxes w/o Exemptions: | N/A | | |
Improvement / Building
Sketch
| No sketches available for this property. |
Property Image
Land
| 1 | 4120-1184L | Irondale Lots Good Location/Access/Sites | 0.0000 | 0.00 | 0.00 | 0.00 | 1.00 | $15,120 | $0 |
| 2 | 4120-1184L | Irondale Lots Good Location/Access/Sites | 0.0000 | 0.00 | 0.00 | 0.00 | 1.00 | $9,450 | $0 |
Roll Value History
| 2026 | N/A | N/A | N/A | N/A | N/A |
| 2025 | $0 | $24,570 | $0 | $24,570 | $24,570 |
| 2024 | $0 | $19,110 | $0 | $19,110 | $19,110 |
| 2023 | $0 | $18,200 | $0 | $18,200 | $18,200 |
| 2022 | $0 | $13,000 | $0 | $13,000 | $13,000 |
Deed and Sales History
| 1 | 11/18/2022 | QCD | Quit Claim Deed | BARBARA RYEN HORIUCHI | BARBARA RYEN HORIUCHI REVOCABLE TRUST | | | | 140176 | |
| 2 | 07/13/2020 | SWD | Statutory Warranty Deed | KRIS G ANDERSEN | BARBARA RYEN HORIUCHI | | | $54,000.00 | 134684 | |
|   | |
| 3 | 09/06/2018 | QCD | Quit Claim Deed | ELEANOR T ANDERSEN TRUST | KRIS G ANDERSEN | | | | 131143 | |
| 4 | 04/14/2015 | PRD | Personal Representatives Deed | KRIS ANDERSEN PERSONAL RESENTATIVE OF THE ESTATE | ELEANOR T ANDERSEN TRUST | | | | 123061 | |
| 5 | 05/05/2014 | QCD | Quit Claim Deed | KRISEL T ANDERSEN | KRIS ANDERSEN PERSONAL RESENTATIVE OF THE ESTATE | | | | 122564 | |
| 6 | 04/01/2010 | SWD | Statutory Warranty Deed | HEALY, ESTEL ELAIN | ANDERSEN,KRISEL/TERRENCE WELCH | | | $10,500.00 | 114248 | 0 |
Payout Agreement
| No payout information available.. |