Property
Account |
| Property ID: | 31817 | Abbreviated Legal Description: | IRONDALE #6 BLK 135 LOTS 31 THRU 35 |
| Parcel # / Geo ID: | 962113510 | Agent Code: | |
| Type: | Real | | |
| Tax Area: | 0211 - 1-49F1E1H2L1 | Land Use Code | 11 |
| Open Space: | N | DFL | N |
| Historic Property: | N | Remodel Property: | N |
| Multi-Family Redevelopment: | N | | |
| Township: | 30N | Section: | 35 |
| Range: | 1W |
Location |
| Address: | 62 KALA POINT DR PORT TOWNSEND, WA 98368 | Mapsco: | 051/011 |
| Neighborhood: | IRONDALE BLOCKS 100 - 179 (I.E. PROSPECT AVENUE AREA) | Map ID: | |
| Neighborhood CD: | 4120 |
Owner |
| Name: | 62KALA LLC | Owner ID: | 100379 |
| Mailing Address: | PO BOX 667 PORT TOWNSEND, WA 98368 | % Ownership: | 100.0000000000% |
| | | Exemptions: | |
Pay Tax Due
Select the appropriate checkbox next to the year to be paid. Multiple years may be selected.
*Convenience Fee not included
Taxes and Assessment Details
Property Tax Information as of
03/12/2026
Click on "Statement Details" to expand or collapse a tax statement.
* Please enter a valid date ** Please enter a valid date *
Statement Details |
| 2026 | 21091 | STATE - STATE LEVY (SCHOOL) | $382.37 | $382.36 | $0.00 | $0.00 | $0.00 | $764.73 |
| 2026 | 21091 | COUNTY - COUNTY LEVIES (CE, DD, VET, MH) | $152.88 | $152.85 | $0.00 | $0.00 | $0.00 | $305.73 |
| 2026 | 21091 | CONSERVE - CONSERVATION FUTURES | $4.59 | $4.58 | $0.00 | $0.00 | $0.00 | $9.17 |
| 2026 | 21091 | COROADS - COUNTY ROADS (ROADS, DIV TO CE) | $123.32 | $123.32 | $0.00 | $0.00 | $0.00 | $246.64 |
| 2026 | 21091 | PORTPT - PORT DISTRICT | $61.75 | $61.73 | $0.00 | $0.00 | $0.00 | $123.48 |
| 2026 | 21091 | PUD1 - PUD #1 | $9.95 | $9.94 | $0.00 | $0.00 | $0.00 | $19.89 |
| 2026 | 21091 | LIB1 - LIBRARY DIST #1 | $47.71 | $47.71 | $0.00 | $0.00 | $0.00 | $95.42 |
| 2026 | 21091 | HD2 - HOSP DIST #2 | $8.92 | $8.91 | $0.00 | $0.00 | $0.00 | $17.83 |
| 2026 | 21091 | SD49 - SCHOOL DIST #49 | $210.48 | $210.48 | $0.00 | $0.00 | $0.00 | $420.96 |
| 2026 | 21091 | FD1 - FIRE DISTRICT #1 | $202.44 | $202.43 | $0.00 | $0.00 | $0.00 | $404.87 |
| 2026 | 21091 | EMS1 - FIRE DIST #1 EMS | $77.84 | $77.83 | $0.00 | $0.00 | $0.00 | $155.67 |
| 2026 | 21091 | JCCD - JC Conservation District | $2.55 | $2.55 | $0.00 | $0.00 | $0.00 | $5.10 |
| 2026 | 21091 | NWA - Noxious Weed Assessment | $2.98 | $2.97 | $0.00 | $0.00 | $0.00 | $5.95 |
| 2026 | 21091 | OSS - On Site Septic | $23.10 | $23.10 | $0.00 | $0.00 | $0.00 | $46.20 |
| 2026 | 21091 | WAT - Clean Water District | $13.00 | $13.00 | $0.00 | $0.00 | $0.00 | $26.00 |
| 2026 | 21091 | TOTAL: | $1323.88 | $1323.76 | $0.00 | $0.00 | $0.00 | $2647.64 |
|
| 2026 | 21091 | $1323.88 | $1323.76 | $0.00 | $0.00 | $0.00 | $2647.64 |
Statement Details |
| 2025 | 21152 | STATE - STATE LEVY (SCHOOL) | $391.27 | $391.26 | $0.00 | $0.00 | $782.53 | $0.00 |
| 2025 | 21152 | COUNTY - COUNTY LEVIES (CE, DD, VET, MH) | $153.86 | $153.86 | $0.00 | $0.00 | $307.72 | $0.00 |
| 2025 | 21152 | CONSERVE - CONSERVATION FUTURES | $4.62 | $4.61 | $0.00 | $0.00 | $9.23 | $0.00 |
| 2025 | 21152 | COROADS - COUNTY ROADS (ROADS, DIV TO CE) | $123.27 | $123.27 | $0.00 | $0.00 | $246.54 | $0.00 |
| 2025 | 21152 | PORTPT - PORT DISTRICT | $62.79 | $62.78 | $0.00 | $0.00 | $125.57 | $0.00 |
| 2025 | 21152 | PUD1 - PUD #1 | $10.07 | $10.07 | $0.00 | $0.00 | $20.14 | $0.00 |
| 2025 | 21152 | LIB1 - LIBRARY DIST #1 | $47.69 | $47.69 | $0.00 | $0.00 | $95.38 | $0.00 |
| 2025 | 21152 | HD2 - HOSP DIST #2 | $8.98 | $8.97 | $0.00 | $0.00 | $17.95 | $0.00 |
| 2025 | 21152 | SD49 - SCHOOL DIST #49 | $209.70 | $209.69 | $0.00 | $0.00 | $419.39 | $0.00 |
| 2025 | 21152 | FD1 - FIRE DISTRICT #1 | $203.04 | $203.04 | $0.00 | $0.00 | $406.08 | $0.00 |
| 2025 | 21152 | EMS1 - FIRE DIST #1 EMS | $78.10 | $78.09 | $0.00 | $0.00 | $156.19 | $0.00 |
| 2025 | 21152 | JCCD - JC Conservation District | $2.55 | $2.55 | $0.00 | $0.00 | $5.10 | $0.00 |
| 2025 | 21152 | NWA - Noxious Weed Assessment | $2.15 | $2.15 | $0.00 | $0.00 | $4.30 | $0.00 |
| 2025 | 21152 | OSS - On Site Septic | $21.50 | $21.50 | $0.00 | $0.00 | $43.00 | $0.00 |
| 2025 | 21152 | WAT - Clean Water District | $13.00 | $13.00 | $0.00 | $0.00 | $26.00 | $0.00 |
| 2025 | 21152 | TOTAL: | $1332.59 | $1332.53 | $0.00 | $0.00 | $2665.12 | $0.00 |
|
| 2025 | 21152 | $1332.59 | $1332.53 | $0.00 | $0.00 | $2665.12 | $0.00 |
Statement Details |
| 2024 | 21196 | STATE - STATE LEVY (SCHOOL) | $354.29 | $354.28 | $0.00 | $0.00 | $708.57 | $0.00 |
| 2024 | 21196 | COUNTY - COUNTY LEVIES (CE, DD, VET, MH) | $151.62 | $151.58 | $0.00 | $0.00 | $303.20 | $0.00 |
| 2024 | 21196 | CONSERVE - CONSERVATION FUTURES | $4.55 | $4.54 | $0.00 | $0.00 | $9.09 | $0.00 |
| 2024 | 21196 | COROADS - COUNTY ROADS (ROADS, DIV TO CE) | $122.00 | $121.98 | $0.00 | $0.00 | $243.98 | $0.00 |
| 2024 | 21196 | PORTPT - PORT DISTRICT | $62.62 | $62.62 | $0.00 | $0.00 | $125.24 | $0.00 |
| 2024 | 21196 | PUD1 - PUD #1 | $9.96 | $9.96 | $0.00 | $0.00 | $19.92 | $0.00 |
| 2024 | 21196 | LIB1 - LIBRARY DIST #1 | $47.20 | $47.19 | $0.00 | $0.00 | $94.39 | $0.00 |
| 2024 | 21196 | HD2 - HOSP DIST #2 | $8.85 | $8.84 | $0.00 | $0.00 | $17.69 | $0.00 |
| 2024 | 21196 | SD49 - SCHOOL DIST #49 | $158.21 | $158.21 | $0.00 | $0.00 | $316.42 | $0.00 |
| 2024 | 21196 | FD1 - FIRE DISTRICT #1 | $200.46 | $200.45 | $0.00 | $0.00 | $400.91 | $0.00 |
| 2024 | 21196 | EMS1 - FIRE DIST #1 EMS | $76.57 | $76.56 | $0.00 | $0.00 | $153.13 | $0.00 |
| 2024 | 21196 | JCCD - JC Conservation District | $2.55 | $2.55 | $0.00 | $0.00 | $5.10 | $0.00 |
| 2024 | 21196 | NWA - Noxious Weed Assessment | $2.15 | $2.15 | $0.00 | $0.00 | $4.30 | $0.00 |
| 2024 | 21196 | OSS - On Site Septic | $21.00 | $21.00 | $0.00 | $0.00 | $42.00 | $0.00 |
| 2024 | 21196 | WAT - Clean Water District | $12.50 | $12.50 | $0.00 | $0.00 | $25.00 | $0.00 |
| 2024 | 21196 | TOTAL: | $1234.53 | $1234.41 | $0.00 | $0.00 | $2468.94 | $0.00 |
|
| 2024 | 21196 | $1234.53 | $1234.41 | $0.00 | $0.00 | $2468.94 | $0.00 |
Statement Details |
| 2023 | 21233 | STATE - STATE LEVY (SCHOOL) | $240.42 | $240.41 | $0.00 | $0.00 | $480.83 | $0.00 |
| 2023 | 21233 | COUNTY - COUNTY LEVIES (CE, DD, VET, MH) | $104.93 | $104.89 | $0.00 | $0.00 | $209.82 | $0.00 |
| 2023 | 21233 | CONSERVE - CONSERVATION FUTURES | $3.15 | $3.14 | $0.00 | $0.00 | $6.29 | $0.00 |
| 2023 | 21233 | COROADS - COUNTY ROADS (ROADS, DIV TO CE) | $84.88 | $84.87 | $0.00 | $0.00 | $169.75 | $0.00 |
| 2023 | 21233 | PORTPT - PORT DISTRICT | $44.20 | $44.19 | $0.00 | $0.00 | $88.39 | $0.00 |
| 2023 | 21233 | PUD1 - PUD #1 | $6.96 | $6.95 | $0.00 | $0.00 | $13.91 | $0.00 |
| 2023 | 21233 | LIB1 - LIBRARY DIST #1 | $32.84 | $32.84 | $0.00 | $0.00 | $65.68 | $0.00 |
| 2023 | 21233 | HD2 - HOSP DIST #2 | $6.13 | $6.11 | $0.00 | $0.00 | $12.24 | $0.00 |
| 2023 | 21233 | SD49 - SCHOOL DIST #49 | $112.39 | $112.38 | $0.00 | $0.00 | $224.77 | $0.00 |
| 2023 | 21233 | FD1 - FIRE DISTRICT #1 | $86.43 | $86.42 | $0.00 | $0.00 | $172.85 | $0.00 |
| 2023 | 21233 | EMS1 - FIRE DIST #1 EMS | $36.77 | $36.76 | $0.00 | $0.00 | $73.53 | $0.00 |
| 2023 | 21233 | JCCD - JC Conservation District | $2.55 | $2.55 | $0.00 | $0.00 | $5.10 | $0.00 |
| 2023 | 21233 | NWA - Noxious Weed Assessment | $2.15 | $2.15 | $0.00 | $0.00 | $4.30 | $0.00 |
| 2023 | 21233 | OSS - On Site Septic | $20.50 | $20.50 | $0.00 | $0.00 | $41.00 | $0.00 |
| 2023 | 21233 | WAT - Clean Water District | $12.00 | $12.00 | $0.00 | $0.00 | $24.00 | $0.00 |
| 2023 | 21233 | TOTAL: | $796.30 | $796.16 | $0.00 | $0.00 | $1592.46 | $0.00 |
|
| 2023 | 21233 | $796.30 | $796.16 | $0.00 | $0.00 | $1592.46 | $0.00 |
Values
| (+) Improvement Homesite Value: | + | $0 | |
| (+) Improvement Non-Homesite Value: | + | $222,375 | |
| (+) Land Homesite Value: | + | $0 | |
| (+) Land Non-Homesite Value: | + | $110,250 | |
| (+) Curr Use (HS): | + | $0 | $0 |
| (+) Curr Use (NHS): | + | $0 | $0 |
| | | -------------------------- | |
| (=) Market Value: | = | $332,625 | |
| (–) Productivity Loss: | – | $0 | |
| | | -------------------------- | |
| (=) Subtotal: | = | $332,625 | |
| (+) Senior Appraised Value: | + | $0 | |
| (+) Non-Senior Appraised Value: | + | $332,625 | |
| | | -------------------------- | |
| (=) Total Appraised Value: | = | $332,625 | |
| (–) Senior Exemption Loss: | – | $0 | |
| (–) Exemption Loss: | – | $0 | |
| | | -------------------------- | |
| (=) Taxable Value: | = | $332,625 | |
Taxing Jurisdiction
| Owner: | 62KALA LLC | | |
| % Ownership: | 100.0000000000% | | |
| Total Value: | N/A | | |
| Tax Area: | 0211 - 1-49F1E1H2L1 |
| CE | COUNTY CURRENT EXPENSE | N/A | N/A | N/A | N/A | | |
| CNTYDD | DEVELOPMENTAL DISABILITIES | N/A | N/A | N/A | N/A | | |
| CNTYVET | VETERANS RELIEF | N/A | N/A | N/A | N/A | | |
| MENTAL | MENTAL HEALTH | N/A | N/A | N/A | N/A | | |
| ROADS | COUNTY ROADS | N/A | N/A | N/A | N/A | | |
| HOSP2CASH | HOSP DIST #2 GENERAL | N/A | N/A | N/A | N/A | | |
| SCH49CP | SCHOOL DIST #49 CAP PROJ | N/A | N/A | N/A | N/A | | |
| SCH49MO | SCHOOL DIST #49 EP & O | N/A | N/A | N/A | N/A | | |
| CONSERVE | CONSERVATION FUTURES | N/A | N/A | N/A | N/A | | |
| EMS1 | FIRE DIST #1 EMS | N/A | N/A | N/A | N/A | | |
| FD1 | FIRE DIST #1 GENERAL | N/A | N/A | N/A | N/A | | |
| LIB1 | LIBRARY DIST #1 GENERAL | N/A | N/A | N/A | N/A | | |
| PORTPT | PORT OF PT GENERAL | N/A | N/A | N/A | N/A | | |
| PORTPTIDD | PORT OF PT IDD 2019 | N/A | N/A | N/A | N/A | | |
| PUD1 | PUD #1 GENERAL | N/A | N/A | N/A | N/A | | |
| STATE | STATE SCHOOL PART 1 | N/A | N/A | N/A | N/A | | |
| STATE2 | STATE SCHOOL PART 2 | N/A | N/A | N/A | N/A | | |
| | Total Tax Rate: | N/A | | | | | |
| | | | | Taxes w/Current Exemptions: | N/A | | |
| | | | | Taxes w/o Exemptions: | N/A | | |
Improvement / Building
| Improvement #1: | Residential Bldg | State Code: | 11 | 1296.0 sqft | Value: | $222,375 |
| Exterior Wall: | PL/T1 | Floor Construction: | FRAME | | Foundation: | CONPR | Heating/Cooling: | ELBB | | Roof Cover: | COMP |   |   |
|
| | Type | Description | Class CD | Sub Class CD | Year Built | Area |
| | MA | Main Area | 3+ | 1S | 1997 | 1296.0 |
| | HWPOR | House Wood Porch | 3 | * | 1997 | 28.0 |
| | GATT | House Attached Garage | 3 | 1S | 1997 | 672.0 |
| | OTHER | Other | * | * | 1997 | 0.0 |
Sketch
Property Image
Land
| 1 | 4120-1275S | | 0.0000 | 0.00 | 0.00 | 0.00 | 1.00 | $81,900 | $0 |
| 2 | 4120-1184L | | 0.0000 | 0.00 | 0.00 | 0.00 | 3.00 | $28,350 | $0 |
Roll Value History
| 2026 | N/A | N/A | N/A | N/A | N/A |
| 2025 | $222,375 | $110,250 | $0 | $332,625 | $332,625 |
| 2024 | $222,375 | $103,950 | $0 | $326,325 | $326,325 |
| 2023 | $212,267 | $94,000 | $0 | $306,267 | $306,267 |
| 2022 | $134,047 | $70,200 | $0 | $204,247 | $204,247 |
Deed and Sales History
| 1 | 12/10/2018 | QCD | Quit Claim Deed | RICARDO D PEREGRINO | 62KALA LLC | | | | 131589 | |
| 2 | 12/10/2018 | QCD | Quit Claim Deed | | | | | | 131590 | |
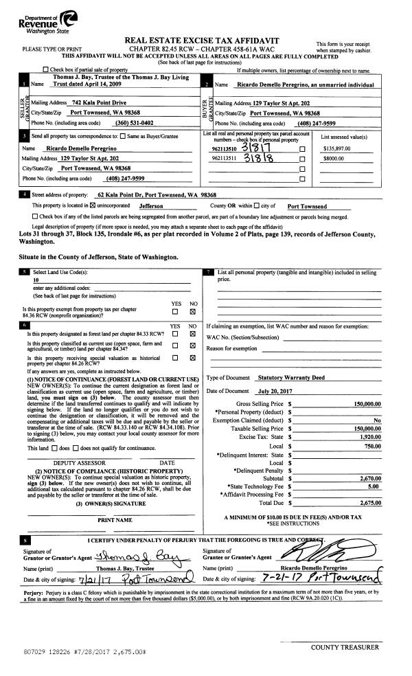
| 3 | 07/20/2017 | SWD | Statutory Warranty Deed | THOMAS J BAY | RICARDO D PEREGRINO | | | $150,000.00 | 128226 | |
|   | |
| 4 | 04/14/2009 | QCD | Quit Claim Deed | BAY, THOMAS J | BAY, THOMAS J TRUST | | | $0.00 | 112746 | 0 |
| 5 | 12/21/2006 | SWD | Statutory Warranty Deed | BRAYTON, WILLIAM | BAY, THOMAS J | 0 | 0 | $132,000.00 | 108350 | 0 |
|   | |
| 6 | 11/01/2005 | SWD | Statutory Warranty Deed | PHELPS, RICHARD W & PATRI | BRAYTON, WILLIAM | 0 | 0 | $85,000.00 | 105339 | 0 |
|   | |
| 7 | 01/13/1995 | SWD | Statutory Warranty Deed | BALDRIDGE, RICHARD/LOLA | PHELPS, RICHARD W/PATRICIA A | 0 | 0 | $10,000.00 | 76128 | 0 |
Payout Agreement
| No payout information available.. |