Property
Account |
| Property ID: | 31818 | Abbreviated Legal Description: | IRONDALE #6 BLK 135 LOTS 36 TO 37 |
| Parcel # / Geo ID: | 962113511 | Agent Code: | |
| Type: | Real | | |
| Tax Area: | 0211 - 1-49F1E1H2L1 | Land Use Code | 91 |
| Open Space: | N | DFL | N |
| Historic Property: | N | Remodel Property: | N |
| Multi-Family Redevelopment: | N | | |
| Township: | 30N | Section: | 35 |
| Range: | 1W |
Location |
| Address: | | Mapsco: | 051/012 |
| Neighborhood: | IRONDALE BLOCKS 100 - 179 (I.E. PROSPECT AVENUE AREA) | Map ID: | |
| Neighborhood CD: | 4120 |
Owner |
| Name: | 62KALA LLC | Owner ID: | 100379 |
| Mailing Address: | PO BOX 667 PORT TOWNSEND, WA 98368 | % Ownership: | 100.0000000000% |
| | | Exemptions: | |
Pay Tax Due
Select the appropriate checkbox next to the year to be paid. Multiple years may be selected.
*Convenience Fee not included
Taxes and Assessment Details
Property Tax Information as of
03/12/2026
Click on "Statement Details" to expand or collapse a tax statement.
* Please enter a valid date ** Please enter a valid date *
Statement Details |
| 2026 | 21092 | STATE - STATE LEVY (SCHOOL) | $21.73 | $21.72 | $0.00 | $0.00 | $0.00 | $43.45 |
| 2026 | 21092 | COUNTY - COUNTY LEVIES (CE, DD, VET, MH) | $8.69 | $8.69 | $0.00 | $0.00 | $0.00 | $17.38 |
| 2026 | 21092 | CONSERVE - CONSERVATION FUTURES | $0.26 | $0.26 | $0.00 | $0.00 | $0.00 | $0.52 |
| 2026 | 21092 | COROADS - COUNTY ROADS (ROADS, DIV TO CE) | $7.01 | $7.00 | $0.00 | $0.00 | $0.00 | $14.01 |
| 2026 | 21092 | PORTPT - PORT DISTRICT | $3.52 | $3.50 | $0.00 | $0.00 | $0.00 | $7.02 |
| 2026 | 21092 | PUD1 - PUD #1 | $0.57 | $0.56 | $0.00 | $0.00 | $0.00 | $1.13 |
| 2026 | 21092 | LIB1 - LIBRARY DIST #1 | $2.71 | $2.71 | $0.00 | $0.00 | $0.00 | $5.42 |
| 2026 | 21092 | HD2 - HOSP DIST #2 | $0.51 | $0.50 | $0.00 | $0.00 | $0.00 | $1.01 |
| 2026 | 21092 | SD49 - SCHOOL DIST #49 | $11.97 | $11.95 | $0.00 | $0.00 | $0.00 | $23.92 |
| 2026 | 21092 | FD1 - FIRE DISTRICT #1 | $11.50 | $11.50 | $0.00 | $0.00 | $0.00 | $23.00 |
| 2026 | 21092 | EMS1 - FIRE DIST #1 EMS | $4.43 | $4.42 | $0.00 | $0.00 | $0.00 | $8.85 |
| 2026 | 21092 | JCCD - JC Conservation District | $2.53 | $2.53 | $0.00 | $0.00 | $0.00 | $5.06 |
| 2026 | 21092 | NWA - Noxious Weed Assessment | $2.98 | $2.97 | $0.00 | $0.00 | $0.00 | $5.95 |
| 2026 | 21092 | WAT - Clean Water District | $13.00 | $13.00 | $0.00 | $0.00 | $0.00 | $26.00 |
| 2026 | 21092 | TOTAL: | $91.41 | $91.31 | $0.00 | $0.00 | $0.00 | $182.72 |
|
| 2026 | 21092 | $91.41 | $91.31 | $0.00 | $0.00 | $0.00 | $182.72 |
Statement Details |
| 2025 | 21153 | STATE - STATE LEVY (SCHOOL) | $17.63 | $17.62 | $0.00 | $0.00 | $35.25 | $0.00 |
| 2025 | 21153 | COUNTY - COUNTY LEVIES (CE, DD, VET, MH) | $6.94 | $6.93 | $0.00 | $0.00 | $13.87 | $0.00 |
| 2025 | 21153 | CONSERVE - CONSERVATION FUTURES | $0.21 | $0.21 | $0.00 | $0.00 | $0.42 | $0.00 |
| 2025 | 21153 | COROADS - COUNTY ROADS (ROADS, DIV TO CE) | $5.56 | $5.55 | $0.00 | $0.00 | $11.11 | $0.00 |
| 2025 | 21153 | PORTPT - PORT DISTRICT | $2.83 | $2.82 | $0.00 | $0.00 | $5.65 | $0.00 |
| 2025 | 21153 | PUD1 - PUD #1 | $0.46 | $0.45 | $0.00 | $0.00 | $0.91 | $0.00 |
| 2025 | 21153 | LIB1 - LIBRARY DIST #1 | $2.15 | $2.15 | $0.00 | $0.00 | $4.30 | $0.00 |
| 2025 | 21153 | HD2 - HOSP DIST #2 | $0.41 | $0.40 | $0.00 | $0.00 | $0.81 | $0.00 |
| 2025 | 21153 | SD49 - SCHOOL DIST #49 | $9.45 | $9.44 | $0.00 | $0.00 | $18.89 | $0.00 |
| 2025 | 21153 | FD1 - FIRE DISTRICT #1 | $9.15 | $9.14 | $0.00 | $0.00 | $18.29 | $0.00 |
| 2025 | 21153 | EMS1 - FIRE DIST #1 EMS | $3.52 | $3.52 | $0.00 | $0.00 | $7.04 | $0.00 |
| 2025 | 21153 | JCCD - JC Conservation District | $2.53 | $2.53 | $0.00 | $0.00 | $5.06 | $0.00 |
| 2025 | 21153 | NWA - Noxious Weed Assessment | $2.15 | $2.15 | $0.00 | $0.00 | $4.30 | $0.00 |
| 2025 | 21153 | WAT - Clean Water District | $13.00 | $13.00 | $0.00 | $0.00 | $26.00 | $0.00 |
| 2025 | 21153 | TOTAL: | $75.99 | $75.91 | $0.00 | $0.00 | $151.90 | $0.00 |
|
| 2025 | 21153 | $75.99 | $75.91 | $0.00 | $0.00 | $151.90 | $0.00 |
Statement Details |
| 2024 | 21197 | STATE - STATE LEVY (SCHOOL) | $16.20 | $16.19 | $0.00 | $0.00 | $32.39 | $0.00 |
| 2024 | 21197 | COUNTY - COUNTY LEVIES (CE, DD, VET, MH) | $6.93 | $6.93 | $0.00 | $0.00 | $13.86 | $0.00 |
| 2024 | 21197 | CONSERVE - CONSERVATION FUTURES | $0.21 | $0.21 | $0.00 | $0.00 | $0.42 | $0.00 |
| 2024 | 21197 | COROADS - COUNTY ROADS (ROADS, DIV TO CE) | $5.58 | $5.57 | $0.00 | $0.00 | $11.15 | $0.00 |
| 2024 | 21197 | PORTPT - PORT DISTRICT | $2.87 | $2.85 | $0.00 | $0.00 | $5.72 | $0.00 |
| 2024 | 21197 | PUD1 - PUD #1 | $0.46 | $0.45 | $0.00 | $0.00 | $0.91 | $0.00 |
| 2024 | 21197 | LIB1 - LIBRARY DIST #1 | $2.16 | $2.15 | $0.00 | $0.00 | $4.31 | $0.00 |
| 2024 | 21197 | HD2 - HOSP DIST #2 | $0.41 | $0.40 | $0.00 | $0.00 | $0.81 | $0.00 |
| 2024 | 21197 | SD49 - SCHOOL DIST #49 | $7.24 | $7.22 | $0.00 | $0.00 | $14.46 | $0.00 |
| 2024 | 21197 | FD1 - FIRE DISTRICT #1 | $9.17 | $9.16 | $0.00 | $0.00 | $18.33 | $0.00 |
| 2024 | 21197 | EMS1 - FIRE DIST #1 EMS | $3.50 | $3.50 | $0.00 | $0.00 | $7.00 | $0.00 |
| 2024 | 21197 | JCCD - JC Conservation District | $2.53 | $2.53 | $0.00 | $0.00 | $5.06 | $0.00 |
| 2024 | 21197 | NWA - Noxious Weed Assessment | $2.15 | $2.15 | $0.00 | $0.00 | $4.30 | $0.00 |
| 2024 | 21197 | WAT - Clean Water District | $12.50 | $12.50 | $0.00 | $0.00 | $25.00 | $0.00 |
| 2024 | 21197 | TOTAL: | $71.91 | $71.81 | $0.00 | $0.00 | $143.72 | $0.00 |
|
| 2024 | 21197 | $71.91 | $71.81 | $0.00 | $0.00 | $143.72 | $0.00 |
Statement Details |
| 2023 | 21234 | STATE - STATE LEVY (SCHOOL) | $11.77 | $11.77 | $0.00 | $0.00 | $23.54 | $0.00 |
| 2023 | 21234 | COUNTY - COUNTY LEVIES (CE, DD, VET, MH) | $5.14 | $5.14 | $0.00 | $0.00 | $10.28 | $0.00 |
| 2023 | 21234 | CONSERVE - CONSERVATION FUTURES | $0.16 | $0.15 | $0.00 | $0.00 | $0.31 | $0.00 |
| 2023 | 21234 | COROADS - COUNTY ROADS (ROADS, DIV TO CE) | $4.16 | $4.15 | $0.00 | $0.00 | $8.31 | $0.00 |
| 2023 | 21234 | PORTPT - PORT DISTRICT | $2.17 | $2.16 | $0.00 | $0.00 | $4.33 | $0.00 |
| 2023 | 21234 | PUD1 - PUD #1 | $0.34 | $0.34 | $0.00 | $0.00 | $0.68 | $0.00 |
| 2023 | 21234 | LIB1 - LIBRARY DIST #1 | $1.61 | $1.61 | $0.00 | $0.00 | $3.22 | $0.00 |
| 2023 | 21234 | HD2 - HOSP DIST #2 | $0.30 | $0.30 | $0.00 | $0.00 | $0.60 | $0.00 |
| 2023 | 21234 | SD49 - SCHOOL DIST #49 | $5.51 | $5.50 | $0.00 | $0.00 | $11.01 | $0.00 |
| 2023 | 21234 | FD1 - FIRE DISTRICT #1 | $4.23 | $4.23 | $0.00 | $0.00 | $8.46 | $0.00 |
| 2023 | 21234 | EMS1 - FIRE DIST #1 EMS | $1.80 | $1.80 | $0.00 | $0.00 | $3.60 | $0.00 |
| 2023 | 21234 | JCCD - JC Conservation District | $2.53 | $2.53 | $0.00 | $0.00 | $5.06 | $0.00 |
| 2023 | 21234 | NWA - Noxious Weed Assessment | $2.15 | $2.15 | $0.00 | $0.00 | $4.30 | $0.00 |
| 2023 | 21234 | WAT - Clean Water District | $12.00 | $12.00 | $0.00 | $0.00 | $24.00 | $0.00 |
| 2023 | 21234 | TOTAL: | $53.87 | $53.83 | $0.00 | $0.00 | $107.70 | $0.00 |
|
| 2023 | 21234 | $53.87 | $53.83 | $0.00 | $0.00 | $107.70 | $0.00 |
Values
| (+) Improvement Homesite Value: | + | $0 | |
| (+) Improvement Non-Homesite Value: | + | $0 | |
| (+) Land Homesite Value: | + | $0 | |
| (+) Land Non-Homesite Value: | + | $18,900 | |
| (+) Curr Use (HS): | + | $0 | $0 |
| (+) Curr Use (NHS): | + | $0 | $0 |
| | | -------------------------- | |
| (=) Market Value: | = | $18,900 | |
| (–) Productivity Loss: | – | $0 | |
| | | -------------------------- | |
| (=) Subtotal: | = | $18,900 | |
| (+) Senior Appraised Value: | + | $0 | |
| (+) Non-Senior Appraised Value: | + | $18,900 | |
| | | -------------------------- | |
| (=) Total Appraised Value: | = | $18,900 | |
| (–) Senior Exemption Loss: | – | $0 | |
| (–) Exemption Loss: | – | $0 | |
| | | -------------------------- | |
| (=) Taxable Value: | = | $18,900 | |
Taxing Jurisdiction
| Owner: | 62KALA LLC | | |
| % Ownership: | 100.0000000000% | | |
| Total Value: | N/A | | |
| Tax Area: | 0211 - 1-49F1E1H2L1 |
| CE | COUNTY CURRENT EXPENSE | N/A | N/A | N/A | N/A | | |
| CNTYDD | DEVELOPMENTAL DISABILITIES | N/A | N/A | N/A | N/A | | |
| CNTYVET | VETERANS RELIEF | N/A | N/A | N/A | N/A | | |
| MENTAL | MENTAL HEALTH | N/A | N/A | N/A | N/A | | |
| ROADS | COUNTY ROADS | N/A | N/A | N/A | N/A | | |
| HOSP2CASH | HOSP DIST #2 GENERAL | N/A | N/A | N/A | N/A | | |
| SCH49CP | SCHOOL DIST #49 CAP PROJ | N/A | N/A | N/A | N/A | | |
| SCH49MO | SCHOOL DIST #49 EP & O | N/A | N/A | N/A | N/A | | |
| CONSERVE | CONSERVATION FUTURES | N/A | N/A | N/A | N/A | | |
| EMS1 | FIRE DIST #1 EMS | N/A | N/A | N/A | N/A | | |
| FD1 | FIRE DIST #1 GENERAL | N/A | N/A | N/A | N/A | | |
| LIB1 | LIBRARY DIST #1 GENERAL | N/A | N/A | N/A | N/A | | |
| PORTPT | PORT OF PT GENERAL | N/A | N/A | N/A | N/A | | |
| PORTPTIDD | PORT OF PT IDD 2019 | N/A | N/A | N/A | N/A | | |
| PUD1 | PUD #1 GENERAL | N/A | N/A | N/A | N/A | | |
| STATE | STATE SCHOOL PART 1 | N/A | N/A | N/A | N/A | | |
| STATE2 | STATE SCHOOL PART 2 | N/A | N/A | N/A | N/A | | |
| | Total Tax Rate: | N/A | | | | | |
| | | | | Taxes w/Current Exemptions: | N/A | | |
| | | | | Taxes w/o Exemptions: | N/A | | |
Improvement / Building
Sketch
| No sketches available for this property. |
Property Image
Land
| 1 | 4120-1184L | | 0.0000 | 0.00 | 0.00 | 0.00 | 2.00 | $18,900 | $0 |
Roll Value History
| 2026 | N/A | N/A | N/A | N/A | N/A |
| 2025 | $0 | $18,900 | $0 | $18,900 | $18,900 |
| 2024 | $0 | $14,700 | $0 | $14,700 | $14,700 |
| 2023 | $0 | $14,000 | $0 | $14,000 | $14,000 |
| 2022 | $0 | $10,000 | $0 | $10,000 | $10,000 |
Deed and Sales History
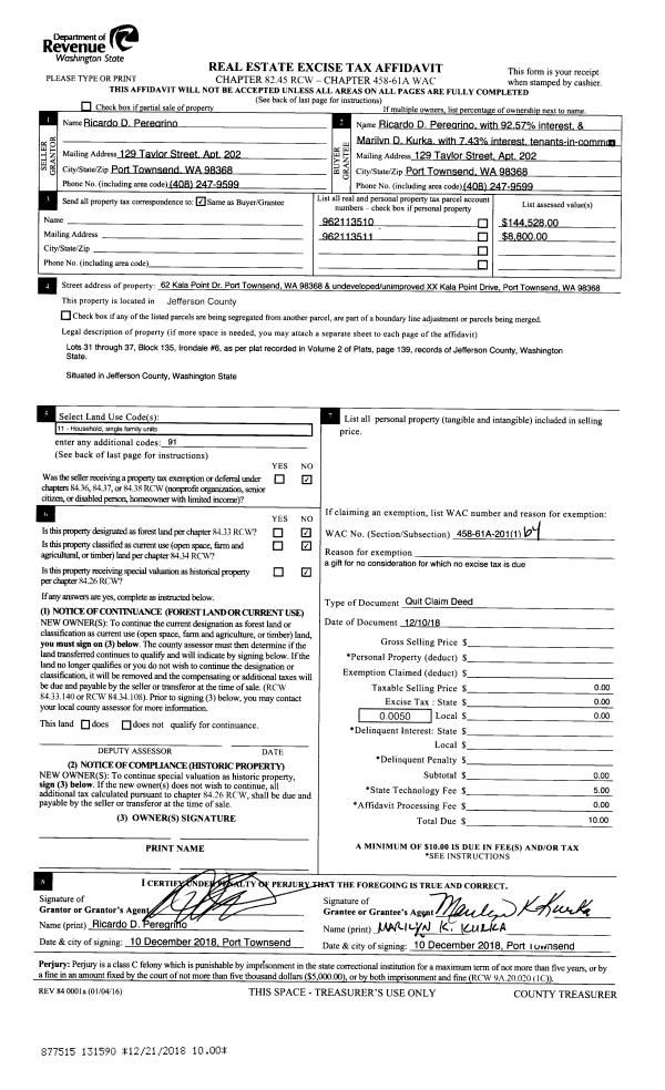
| 1 | 12/10/2018 | QCD | Quit Claim Deed | RICARDO D PEREGRINO | 62KALA LLC | | | | 131589 | |
| 2 | 12/10/2018 | QCD | Quit Claim Deed | | | | | | 131590 | |
| 3 | 07/20/2017 | SWD | Statutory Warranty Deed | THOMAS J BAY | RICARDO D PEREGRINO | | | $150,000.00 | 128226 | |
|   | |
| 4 | 04/14/2009 | QCD | Quit Claim Deed | BAY, THOMAS J | BAY, THOMAS J TRUST | | | $0.00 | 112746 | 0 |
| 5 | 12/21/2006 | SWD | Statutory Warranty Deed | BRAYTON, WILLIAM | BAY, THOMAS J | 0 | 0 | $132,000.00 | 108350 | 0 |
|   | |
| 6 | 11/01/2005 | SWD | Statutory Warranty Deed | PHELPS, RICHARD W & PATRI | BRAYTON, WILLIAM | 0 | 0 | $85,000.00 | 105339 | 0 |
|   | |
Payout Agreement
| No payout information available.. |