Property
Account |
| Property ID: | 31828 | Abbreviated Legal Description: | IRONDALE #6 BLK 137 LOTS 23 THRU 28 SUBJ TO REST COVT AFN#443021 |
| Parcel # / Geo ID: | 962113703 | Agent Code: | |
| Type: | Real | | |
| Tax Area: | 0211 - 1-49F1E1H2L1 | Land Use Code | 11 |
| Open Space: | N | DFL | N |
| Historic Property: | N | Remodel Property: | N |
| Multi-Family Redevelopment: | N | | |
| Township: | 30N | Section: | 35 |
| Range: | 1W |
Location |
| Address: | 225 LAW AVE PORT TOWNSEND, WA 98368 | Mapsco: | 051/039 |
| Neighborhood: | IRONDALE BLOCKS 100 - 179 (I.E. PROSPECT AVENUE AREA) | Map ID: | |
| Neighborhood CD: | 4120 |
Owner |
| Name: | CHRISTOPHER J SCHULLER | Owner ID: | 100827 |
| Mailing Address: | 2701 DABOB RD QUILCENE, WA 98376-9720 | % Ownership: | 100.0000000000% |
| | | Exemptions: | |
Pay Tax Due
Select the appropriate checkbox next to the year to be paid. Multiple years may be selected.
*Convenience Fee not included
Taxes and Assessment Details
Property Tax Information as of
03/12/2026
Click on "Statement Details" to expand or collapse a tax statement.
* Please enter a valid date ** Please enter a valid date *
Statement Details |
| 2026 | 21102 | STATE - STATE LEVY (SCHOOL) | $292.73 | $292.71 | $0.00 | $0.00 | $0.00 | $585.44 |
| 2026 | 21102 | COUNTY - COUNTY LEVIES (CE, DD, VET, MH) | $117.04 | $117.02 | $0.00 | $0.00 | $0.00 | $234.06 |
| 2026 | 21102 | CONSERVE - CONSERVATION FUTURES | $3.51 | $3.51 | $0.00 | $0.00 | $0.00 | $7.02 |
| 2026 | 21102 | COROADS - COUNTY ROADS (ROADS, DIV TO CE) | $94.41 | $94.41 | $0.00 | $0.00 | $0.00 | $188.82 |
| 2026 | 21102 | PORTPT - PORT DISTRICT | $47.27 | $47.26 | $0.00 | $0.00 | $0.00 | $94.53 |
| 2026 | 21102 | PUD1 - PUD #1 | $7.61 | $7.61 | $0.00 | $0.00 | $0.00 | $15.22 |
| 2026 | 21102 | LIB1 - LIBRARY DIST #1 | $36.53 | $36.52 | $0.00 | $0.00 | $0.00 | $73.05 |
| 2026 | 21102 | HD2 - HOSP DIST #2 | $6.83 | $6.82 | $0.00 | $0.00 | $0.00 | $13.65 |
| 2026 | 21102 | SD49 - SCHOOL DIST #49 | $161.14 | $161.12 | $0.00 | $0.00 | $0.00 | $322.26 |
| 2026 | 21102 | FD1 - FIRE DISTRICT #1 | $154.98 | $154.97 | $0.00 | $0.00 | $0.00 | $309.95 |
| 2026 | 21102 | EMS1 - FIRE DIST #1 EMS | $59.59 | $59.58 | $0.00 | $0.00 | $0.00 | $119.17 |
| 2026 | 21102 | JCCD - JC Conservation District | $2.55 | $2.55 | $0.00 | $0.00 | $0.00 | $5.10 |
| 2026 | 21102 | NWA - Noxious Weed Assessment | $2.98 | $2.97 | $0.00 | $0.00 | $0.00 | $5.95 |
| 2026 | 21102 | OSS - On Site Septic | $23.10 | $23.10 | $0.00 | $0.00 | $0.00 | $46.20 |
| 2026 | 21102 | WAT - Clean Water District | $13.00 | $13.00 | $0.00 | $0.00 | $0.00 | $26.00 |
| 2026 | 21102 | TOTAL: | $1023.27 | $1023.15 | $0.00 | $0.00 | $0.00 | $2046.42 |
|
| 2026 | 21102 | $1023.27 | $1023.15 | $0.00 | $0.00 | $0.00 | $2046.42 |
Statement Details |
| 2025 | 21163 | STATE - STATE LEVY (SCHOOL) | $295.25 | $295.24 | $0.00 | $0.00 | $590.49 | $0.00 |
| 2025 | 21163 | COUNTY - COUNTY LEVIES (CE, DD, VET, MH) | $116.12 | $116.08 | $0.00 | $0.00 | $232.20 | $0.00 |
| 2025 | 21163 | CONSERVE - CONSERVATION FUTURES | $3.48 | $3.48 | $0.00 | $0.00 | $6.96 | $0.00 |
| 2025 | 21163 | COROADS - COUNTY ROADS (ROADS, DIV TO CE) | $93.02 | $93.01 | $0.00 | $0.00 | $186.03 | $0.00 |
| 2025 | 21163 | PORTPT - PORT DISTRICT | $47.38 | $47.37 | $0.00 | $0.00 | $94.75 | $0.00 |
| 2025 | 21163 | PUD1 - PUD #1 | $7.60 | $7.59 | $0.00 | $0.00 | $15.19 | $0.00 |
| 2025 | 21163 | LIB1 - LIBRARY DIST #1 | $35.99 | $35.98 | $0.00 | $0.00 | $71.97 | $0.00 |
| 2025 | 21163 | HD2 - HOSP DIST #2 | $6.78 | $6.77 | $0.00 | $0.00 | $13.55 | $0.00 |
| 2025 | 21163 | SD49 - SCHOOL DIST #49 | $158.24 | $158.23 | $0.00 | $0.00 | $316.47 | $0.00 |
| 2025 | 21163 | FD1 - FIRE DISTRICT #1 | $153.21 | $153.21 | $0.00 | $0.00 | $306.42 | $0.00 |
| 2025 | 21163 | EMS1 - FIRE DIST #1 EMS | $58.93 | $58.93 | $0.00 | $0.00 | $117.86 | $0.00 |
| 2025 | 21163 | JCCD - JC Conservation District | $2.55 | $2.55 | $0.00 | $0.00 | $5.10 | $0.00 |
| 2025 | 21163 | NWA - Noxious Weed Assessment | $2.15 | $2.15 | $0.00 | $0.00 | $4.30 | $0.00 |
| 2025 | 21163 | OSS - On Site Septic | $21.50 | $21.50 | $0.00 | $0.00 | $43.00 | $0.00 |
| 2025 | 21163 | WAT - Clean Water District | $13.00 | $13.00 | $0.00 | $0.00 | $26.00 | $0.00 |
| 2025 | 21163 | TOTAL: | $1015.20 | $1015.09 | $0.00 | $0.00 | $2030.29 | $0.00 |
|
| 2025 | 21163 | $1015.20 | $1015.09 | $0.00 | $0.00 | $2030.29 | $0.00 |
Statement Details |
| 2024 | 21207 | STATE - STATE LEVY (SCHOOL) | $265.82 | $265.80 | $0.00 | $0.00 | $531.62 | $0.00 |
| 2024 | 21207 | COUNTY - COUNTY LEVIES (CE, DD, VET, MH) | $113.74 | $113.73 | $0.00 | $0.00 | $227.47 | $0.00 |
| 2024 | 21207 | CONSERVE - CONSERVATION FUTURES | $3.41 | $3.41 | $0.00 | $0.00 | $6.82 | $0.00 |
| 2024 | 21207 | COROADS - COUNTY ROADS (ROADS, DIV TO CE) | $91.53 | $91.52 | $0.00 | $0.00 | $183.05 | $0.00 |
| 2024 | 21207 | PORTPT - PORT DISTRICT | $46.99 | $46.97 | $0.00 | $0.00 | $93.96 | $0.00 |
| 2024 | 21207 | PUD1 - PUD #1 | $7.47 | $7.47 | $0.00 | $0.00 | $14.94 | $0.00 |
| 2024 | 21207 | LIB1 - LIBRARY DIST #1 | $35.41 | $35.41 | $0.00 | $0.00 | $70.82 | $0.00 |
| 2024 | 21207 | HD2 - HOSP DIST #2 | $6.64 | $6.63 | $0.00 | $0.00 | $13.27 | $0.00 |
| 2024 | 21207 | SD49 - SCHOOL DIST #49 | $118.70 | $118.69 | $0.00 | $0.00 | $237.39 | $0.00 |
| 2024 | 21207 | FD1 - FIRE DISTRICT #1 | $150.40 | $150.39 | $0.00 | $0.00 | $300.79 | $0.00 |
| 2024 | 21207 | EMS1 - FIRE DIST #1 EMS | $57.45 | $57.44 | $0.00 | $0.00 | $114.89 | $0.00 |
| 2024 | 21207 | JCCD - JC Conservation District | $2.55 | $2.55 | $0.00 | $0.00 | $5.10 | $0.00 |
| 2024 | 21207 | NWA - Noxious Weed Assessment | $2.15 | $2.15 | $0.00 | $0.00 | $4.30 | $0.00 |
| 2024 | 21207 | OSS - On Site Septic | $21.00 | $21.00 | $0.00 | $0.00 | $42.00 | $0.00 |
| 2024 | 21207 | WAT - Clean Water District | $12.50 | $12.50 | $0.00 | $0.00 | $25.00 | $0.00 |
| 2024 | 21207 | TOTAL: | $935.76 | $935.66 | $0.00 | $0.00 | $1871.42 | $0.00 |
|
| 2024 | 21207 | $935.76 | $935.66 | $0.00 | $0.00 | $1871.42 | $0.00 |
Statement Details |
| 2023 | 21244 | STATE - STATE LEVY (SCHOOL) | $241.29 | $241.28 | $0.00 | $0.00 | $482.57 | $0.00 |
| 2023 | 21244 | COUNTY - COUNTY LEVIES (CE, DD, VET, MH) | $105.30 | $105.28 | $0.00 | $0.00 | $210.58 | $0.00 |
| 2023 | 21244 | CONSERVE - CONSERVATION FUTURES | $3.16 | $3.15 | $0.00 | $0.00 | $6.31 | $0.00 |
| 2023 | 21244 | COROADS - COUNTY ROADS (ROADS, DIV TO CE) | $85.19 | $85.18 | $0.00 | $0.00 | $170.37 | $0.00 |
| 2023 | 21244 | PORTPT - PORT DISTRICT | $44.36 | $44.35 | $0.00 | $0.00 | $88.71 | $0.00 |
| 2023 | 21244 | PUD1 - PUD #1 | $6.98 | $6.98 | $0.00 | $0.00 | $13.96 | $0.00 |
| 2023 | 21244 | LIB1 - LIBRARY DIST #1 | $32.96 | $32.95 | $0.00 | $0.00 | $65.91 | $0.00 |
| 2023 | 21244 | HD2 - HOSP DIST #2 | $6.15 | $6.14 | $0.00 | $0.00 | $12.29 | $0.00 |
| 2023 | 21244 | SD49 - SCHOOL DIST #49 | $112.79 | $112.78 | $0.00 | $0.00 | $225.57 | $0.00 |
| 2023 | 21244 | FD1 - FIRE DISTRICT #1 | $86.74 | $86.73 | $0.00 | $0.00 | $173.47 | $0.00 |
| 2023 | 21244 | EMS1 - FIRE DIST #1 EMS | $36.90 | $36.89 | $0.00 | $0.00 | $73.79 | $0.00 |
| 2023 | 21244 | JCCD - JC Conservation District | $2.55 | $2.55 | $0.00 | $0.00 | $5.10 | $0.00 |
| 2023 | 21244 | NWA - Noxious Weed Assessment | $2.15 | $2.15 | $0.00 | $0.00 | $4.30 | $0.00 |
| 2023 | 21244 | OSS - On Site Septic | $20.50 | $20.50 | $0.00 | $0.00 | $41.00 | $0.00 |
| 2023 | 21244 | WAT - Clean Water District | $12.00 | $12.00 | $0.00 | $0.00 | $24.00 | $0.00 |
| 2023 | 21244 | TOTAL: | $799.02 | $798.91 | $0.00 | $0.00 | $1597.93 | $0.00 |
|
| 2023 | 21244 | $799.02 | $798.91 | $0.00 | $0.00 | $1597.93 | $0.00 |
Values
| (+) Improvement Homesite Value: | + | $0 | |
| (+) Improvement Non-Homesite Value: | + | $122,339 | |
| (+) Land Homesite Value: | + | $0 | |
| (+) Land Non-Homesite Value: | + | $132,300 | |
| (+) Curr Use (HS): | + | $0 | $0 |
| (+) Curr Use (NHS): | + | $0 | $0 |
| | | -------------------------- | |
| (=) Market Value: | = | $254,639 | |
| (–) Productivity Loss: | – | $0 | |
| | | -------------------------- | |
| (=) Subtotal: | = | $254,639 | |
| (+) Senior Appraised Value: | + | $0 | |
| (+) Non-Senior Appraised Value: | + | $254,639 | |
| | | -------------------------- | |
| (=) Total Appraised Value: | = | $254,639 | |
| (–) Senior Exemption Loss: | – | $0 | |
| (–) Exemption Loss: | – | $0 | |
| | | -------------------------- | |
| (=) Taxable Value: | = | $254,639 | |
Taxing Jurisdiction
| Owner: | CHRISTOPHER J SCHULLER | | |
| % Ownership: | 100.0000000000% | | |
| Total Value: | $254,639 | | |
| Tax Area: | 0211 - 1-49F1E1H2L1 |
| CE | COUNTY CURRENT EXPENSE | 0.9034619479 | $254,639 | $254,639 | $230.06 | | |
| CNTYDD | DEVELOPMENTAL DISABILITIES | 0.0052121823 | $254,639 | $254,639 | $1.33 | | |
| CNTYVET | VETERANS RELIEF | 0.0052777810 | $254,639 | $254,639 | $1.34 | | |
| MENTAL | MENTAL HEALTH | 0.0052121823 | $254,639 | $254,639 | $1.33 | | |
| ROADS | COUNTY ROADS | 0.7415066410 | $254,639 | $254,639 | $188.82 | | |
| ROADSCU | COUNTY ROADS TO CUR EXP | 0.0000000000 | $254,639 | $254,639 | $0.00 | | |
| HOSP2CASH | HOSP DIST #2 GENERAL | 0.0536075306 | $254,639 | $254,639 | $13.65 | | |
| SCH49CP | SCHOOL DIST #49 CAP PROJ | 0.6279093905 | $254,639 | $254,639 | $159.89 | | |
| SCH49MO | SCHOOL DIST #49 EP & O | 0.6376483602 | $254,639 | $254,639 | $162.37 | | |
| CONSERVE | CONSERVATION FUTURES | 0.0275621078 | $254,639 | $254,639 | $7.02 | | |
| EMS1 | FIRE DIST #1 EMS | 0.4679948282 | $254,639 | $254,639 | $119.17 | | |
| FD1 | FIRE DIST #1 GENERAL | 1.2171942929 | $254,639 | $254,639 | $309.95 | | |
| LIB1 | LIBRARY DIST #1 GENERAL | 0.2868827388 | $254,639 | $254,639 | $73.05 | | |
| PORTPT | PORT OF PT GENERAL | 0.1134941229 | $254,639 | $254,639 | $28.90 | | |
| PORTPTIDD | PORT OF PT IDD 2019 | 0.2577346692 | $254,639 | $254,639 | $65.63 | | |
| PUD1 | PUD #1 GENERAL | 0.0597888892 | $254,639 | $254,639 | $15.22 | | |
| STATE | STATE SCHOOL PART 1 | 1.4940692947 | $254,639 | $254,639 | $380.45 | | |
| STATE2 | STATE SCHOOL PART 2 | 0.8050170049 | $254,639 | $254,639 | $204.99 | | |
| | Total Tax Rate: | 7.7095739644 | | | | | |
| | | | | Taxes w/Current Exemptions: | $1,963.17 | | |
| | | | | Taxes w/o Exemptions: | $1,963.17 | | |
Improvement / Building
| Improvement #1: | Manufactured Home | State Code: | 11 | 1512.0 sqft | Value: | $122,339 |
| Bathrooms (#): | 2 (FULL) | Bedrooms (#): | 3 | | Exterior Wall: | PL/T1 | Foundation: | PO&BL | | Heating/Cooling: | F/A | Inside Verify: | YES-FIX | | Roof Cover: | COMP |   |   |
|
| | Type | Description | Class CD | Sub Class CD | Year Built | Area |
| | MA | Main Area | 4- | MDBL | 2002 | 1512.0 |
| | MDECK | MH Deck | 3 | * | 2002 | 48.0 |
| | MDET | MH Detached Garage | 3 | MFH | 2002 | 360.0 |
| | MCPOR | MH Concrete Porch | 3 | * | 2002 | 180.0 |
| | OTHER | Other | * | * | 2002 | 0.0 |
Sketch
Property Image
Land
| 1 | 4120-1275S | | 0.0000 | 0.00 | 0.00 | 0.00 | 1.00 | $94,500 | $0 |
| 2 | 4120-1184L | | 0.0000 | 0.00 | 0.00 | 0.00 | 4.00 | $37,800 | $0 |
Roll Value History
| 2026 | N/A | N/A | N/A | N/A | N/A |
| 2025 | $122,339 | $132,300 | $0 | $254,639 | $254,639 |
| 2024 | $122,339 | $123,900 | $0 | $246,239 | $246,239 |
| 2023 | $116,778 | $113,000 | $0 | $229,778 | $229,778 |
| 2022 | $120,983 | $84,000 | $0 | $204,983 | $204,983 |
Deed and Sales History
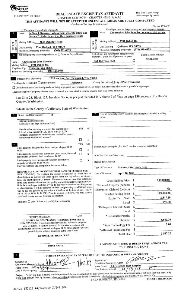
| 1 | 04/10/2019 | SWD | Statutory Warranty Deed | JEFFREY J ROBERTS | CHRISTOPHER J SCHULLER | | | $199,000.00 | 132128 | |
| 2 | 05/23/2007 | SWD | Statutory Warranty Deed | RICHARDS, GREGORY B | ROBERTS, JEFFREY J | | | $178,000.00 | 109332 | 0 |
| 3 | 12/14/2001 | SWD | Statutory Warranty Deed | HEDMAN, DARYL F/JANICE L | RICHARDS, GREGORY B | 0 | 0 | $20,500.00 | 93694 | 0 |
Payout Agreement
| No payout information available.. |