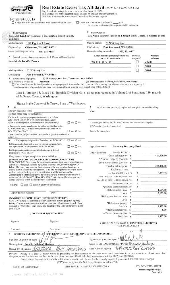
| 1 | 03/11/2022 | SWD | Statutory Warranty Deed | JSB LAND DEVELOPMENT LLC | NICOLE J PERSUN & JOSEPH W GILLARD | | | $427,000.00 | 138730 | |
| 2 | 05/26/2021 | SWD | Statutory Warranty Deed | BRUCE HOLMES | JSB LAND DEVELOPMENT LLC | | | $17,100.00 | 136838 | |
| 3 | 12/15/2017 | TRED | Trustee Deed | W E SETON & MARILYN SETON RECOVABLE TRUST | BRUCE HOLMES | | | | 129241 | |
| 4 | 11/09/2017 | BLA | Boundary Line Adjustment | W E SETON & MARILYN SETON RECOVABLE TRUST | W E SETON & MARILYN SETON RECOVABLE TRUST | | | | 128992 | |
| 5 | 09/14/2016 | QCD | Quit Claim Deed | W E SETON & MARILYN SETON RECOVABLE TRUST | | | | | 126240 | |
| 6 | 09/14/2016 | QCD | Quit Claim Deed | W E SETON & MARILYN SETON RECOVABLE TRUST | | | | | 126239 | |
| 7 | 05/24/2016 | SWD | Statutory Warranty Deed | HERBERT L SCHAFER | W E SETON & MARILYN SETON RECOVABLE TRUST | | | $35,000.00 | 125528 | |
| 8 | 07/11/1994 | SWD | Statutory Warranty Deed | GEORGE, DAVID LLOYD/LUCIL | SCHAFER, HERBERT L/ELLEN A | 0 | 0 | $9,000.00 | 74660 | 0 |