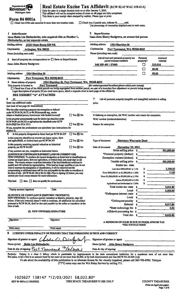
Property
Account |
| Property ID: | 31881 | Abbreviated Legal Description: | IRONDALE #6 BLK 144 LOTS 1,2,3 |
| Parcel # / Geo ID: | 962114401 | Agent Code: | |
| Type: | Real | | |
| Tax Area: | 0211 - 1-49F1E1H2L1 | Land Use Code | 91 |
| Open Space: | N | DFL | N |
| Historic Property: | N | Remodel Property: | N |
| Multi-Family Redevelopment: | N | | |
| Township: | 30N | Section: | 35 |
| Range: | 1W |
Location |
| Address: | 134 E ISLAND VIEW AVE PORT TOWNSEND, WA 98368 | Mapsco: | 052/025 |
| Neighborhood: | IRONDALE BLOCKS 100 - 179 (I.E. PROSPECT AVENUE AREA) | Map ID: | |
| Neighborhood CD: | 4120 |
Owner |
| Name: | JAIME E KOZELISKY | Owner ID: | 20137 |
| Mailing Address: | KATHERINE E KOZELISKY 98 N VICTORY AVE PORT TOWNSEND, WA 98368 | % Ownership: | 100.0000000000% |
| | | Exemptions: | |
Pay Tax Due
Select the appropriate checkbox next to the year to be paid. Multiple years may be selected.
*Convenience Fee not included
Taxes and Assessment Details
Property Tax Information as of
03/10/2026
Click on "Statement Details" to expand or collapse a tax statement.
* Please enter a valid date ** Please enter a valid date *
Statement Details |
| 2026 | 21154 | STATE - STATE LEVY (SCHOOL) | $71.71 | $71.69 | $0.00 | $0.00 | $0.00 | $143.40 |
| 2026 | 21154 | COUNTY - COUNTY LEVIES (CE, DD, VET, MH) | $28.69 | $28.65 | $0.00 | $0.00 | $0.00 | $57.34 |
| 2026 | 21154 | CONSERVE - CONSERVATION FUTURES | $0.86 | $0.86 | $0.00 | $0.00 | $0.00 | $1.72 |
| 2026 | 21154 | COROADS - COUNTY ROADS (ROADS, DIV TO CE) | $23.13 | $23.12 | $0.00 | $0.00 | $0.00 | $46.25 |
| 2026 | 21154 | PORTPT - PORT DISTRICT | $11.58 | $11.57 | $0.00 | $0.00 | $0.00 | $23.15 |
| 2026 | 21154 | PUD1 - PUD #1 | $1.87 | $1.86 | $0.00 | $0.00 | $0.00 | $3.73 |
| 2026 | 21154 | LIB1 - LIBRARY DIST #1 | $8.95 | $8.94 | $0.00 | $0.00 | $0.00 | $17.89 |
| 2026 | 21154 | HD2 - HOSP DIST #2 | $1.67 | $1.67 | $0.00 | $0.00 | $0.00 | $3.34 |
| 2026 | 21154 | SD49 - SCHOOL DIST #49 | $39.47 | $39.46 | $0.00 | $0.00 | $0.00 | $78.93 |
| 2026 | 21154 | FD1 - FIRE DISTRICT #1 | $37.96 | $37.96 | $0.00 | $0.00 | $0.00 | $75.92 |
| 2026 | 21154 | EMS1 - FIRE DIST #1 EMS | $14.60 | $14.59 | $0.00 | $0.00 | $0.00 | $29.19 |
| 2026 | 21154 | JCCD - JC Conservation District | $2.53 | $2.53 | $0.00 | $0.00 | $0.00 | $5.06 |
| 2026 | 21154 | NWA - Noxious Weed Assessment | $2.98 | $2.97 | $0.00 | $0.00 | $0.00 | $5.95 |
| 2026 | 21154 | OSS - On Site Septic | $23.10 | $23.10 | $0.00 | $0.00 | $0.00 | $46.20 |
| 2026 | 21154 | WAT - Clean Water District | $13.00 | $13.00 | $0.00 | $0.00 | $0.00 | $26.00 |
| 2026 | 21154 | TOTAL: | $282.10 | $281.97 | $0.00 | $0.00 | $0.00 | $564.07 |
|
| 2026 | 21154 | $282.10 | $281.97 | $0.00 | $0.00 | $0.00 | $564.07 |
Statement Details |
| 2025 | 21215 | STATE - STATE LEVY (SCHOOL) | $70.76 | $70.74 | $0.00 | $0.00 | $141.50 | $0.00 |
| 2025 | 21215 | COUNTY - COUNTY LEVIES (CE, DD, VET, MH) | $27.83 | $27.81 | $0.00 | $0.00 | $55.64 | $0.00 |
| 2025 | 21215 | CONSERVE - CONSERVATION FUTURES | $0.84 | $0.83 | $0.00 | $0.00 | $1.67 | $0.00 |
| 2025 | 21215 | COROADS - COUNTY ROADS (ROADS, DIV TO CE) | $22.30 | $22.29 | $0.00 | $0.00 | $44.59 | $0.00 |
| 2025 | 21215 | PORTPT - PORT DISTRICT | $11.36 | $11.35 | $0.00 | $0.00 | $22.71 | $0.00 |
| 2025 | 21215 | PUD1 - PUD #1 | $1.82 | $1.82 | $0.00 | $0.00 | $3.64 | $0.00 |
| 2025 | 21215 | LIB1 - LIBRARY DIST #1 | $8.63 | $8.62 | $0.00 | $0.00 | $17.25 | $0.00 |
| 2025 | 21215 | HD2 - HOSP DIST #2 | $1.63 | $1.62 | $0.00 | $0.00 | $3.25 | $0.00 |
| 2025 | 21215 | SD49 - SCHOOL DIST #49 | $37.92 | $37.92 | $0.00 | $0.00 | $75.84 | $0.00 |
| 2025 | 21215 | FD1 - FIRE DISTRICT #1 | $36.72 | $36.71 | $0.00 | $0.00 | $73.43 | $0.00 |
| 2025 | 21215 | EMS1 - FIRE DIST #1 EMS | $14.12 | $14.12 | $0.00 | $0.00 | $28.24 | $0.00 |
| 2025 | 21215 | JCCD - JC Conservation District | $2.53 | $2.53 | $0.00 | $0.00 | $5.06 | $0.00 |
| 2025 | 21215 | NWA - Noxious Weed Assessment | $2.15 | $2.15 | $0.00 | $0.00 | $4.30 | $0.00 |
| 2025 | 21215 | OSS - On Site Septic | $21.50 | $21.50 | $0.00 | $0.00 | $43.00 | $0.00 |
| 2025 | 21215 | WAT - Clean Water District | $13.00 | $13.00 | $0.00 | $0.00 | $26.00 | $0.00 |
| 2025 | 21215 | TOTAL: | $273.11 | $273.01 | $0.00 | $0.00 | $546.12 | $0.00 |
|
| 2025 | 21215 | $273.11 | $273.01 | $0.00 | $0.00 | $546.12 | $0.00 |
Statement Details |
| 2024 | 21259 | STATE - STATE LEVY (SCHOOL) | $65.02 | $65.01 | $0.00 | $0.00 | $130.03 | $0.00 |
| 2024 | 21259 | COUNTY - COUNTY LEVIES (CE, DD, VET, MH) | $27.83 | $27.80 | $0.00 | $0.00 | $55.63 | $0.00 |
| 2024 | 21259 | CONSERVE - CONSERVATION FUTURES | $0.84 | $0.83 | $0.00 | $0.00 | $1.67 | $0.00 |
| 2024 | 21259 | COROADS - COUNTY ROADS (ROADS, DIV TO CE) | $22.39 | $22.38 | $0.00 | $0.00 | $44.77 | $0.00 |
| 2024 | 21259 | PORTPT - PORT DISTRICT | $11.50 | $11.48 | $0.00 | $0.00 | $22.98 | $0.00 |
| 2024 | 21259 | PUD1 - PUD #1 | $1.83 | $1.82 | $0.00 | $0.00 | $3.65 | $0.00 |
| 2024 | 21259 | LIB1 - LIBRARY DIST #1 | $8.66 | $8.66 | $0.00 | $0.00 | $17.32 | $0.00 |
| 2024 | 21259 | HD2 - HOSP DIST #2 | $1.63 | $1.62 | $0.00 | $0.00 | $3.25 | $0.00 |
| 2024 | 21259 | SD49 - SCHOOL DIST #49 | $29.04 | $29.02 | $0.00 | $0.00 | $58.06 | $0.00 |
| 2024 | 21259 | FD1 - FIRE DISTRICT #1 | $36.79 | $36.78 | $0.00 | $0.00 | $73.57 | $0.00 |
| 2024 | 21259 | EMS1 - FIRE DIST #1 EMS | $14.05 | $14.05 | $0.00 | $0.00 | $28.10 | $0.00 |
| 2024 | 21259 | JCCD - JC Conservation District | $2.53 | $2.53 | $0.00 | $0.00 | $5.06 | $0.00 |
| 2024 | 21259 | NWA - Noxious Weed Assessment | $2.15 | $2.15 | $0.00 | $0.00 | $4.30 | $0.00 |
| 2024 | 21259 | OSS - On Site Septic | $21.00 | $21.00 | $0.00 | $0.00 | $42.00 | $0.00 |
| 2024 | 21259 | WAT - Clean Water District | $12.50 | $12.50 | $0.00 | $0.00 | $25.00 | $0.00 |
| 2024 | 21259 | TOTAL: | $257.76 | $257.63 | $0.00 | $0.00 | $515.39 | $0.00 |
|
| 2024 | 21259 | $257.76 | $257.63 | $0.00 | $0.00 | $515.39 | $0.00 |
Statement Details |
| 2023 | 21296 | STATE - STATE LEVY (SCHOOL) | $44.73 | $44.72 | $0.00 | $0.00 | $89.45 | $0.00 |
| 2023 | 21296 | COUNTY - COUNTY LEVIES (CE, DD, VET, MH) | $19.52 | $19.51 | $0.00 | $0.00 | $39.03 | $0.00 |
| 2023 | 21296 | CONSERVE - CONSERVATION FUTURES | $0.59 | $0.58 | $0.00 | $0.00 | $1.17 | $0.00 |
| 2023 | 21296 | COROADS - COUNTY ROADS (ROADS, DIV TO CE) | $15.80 | $15.79 | $0.00 | $0.00 | $31.59 | $0.00 |
| 2023 | 21296 | PORTPT - PORT DISTRICT | $8.22 | $8.22 | $0.00 | $0.00 | $16.44 | $0.00 |
| 2023 | 21296 | PUD1 - PUD #1 | $1.30 | $1.29 | $0.00 | $0.00 | $2.59 | $0.00 |
| 2023 | 21296 | LIB1 - LIBRARY DIST #1 | $6.11 | $6.11 | $0.00 | $0.00 | $12.22 | $0.00 |
| 2023 | 21296 | HD2 - HOSP DIST #2 | $1.14 | $1.13 | $0.00 | $0.00 | $2.27 | $0.00 |
| 2023 | 21296 | SD49 - SCHOOL DIST #49 | $20.91 | $20.91 | $0.00 | $0.00 | $41.82 | $0.00 |
| 2023 | 21296 | FD1 - FIRE DISTRICT #1 | $16.08 | $16.08 | $0.00 | $0.00 | $32.16 | $0.00 |
| 2023 | 21296 | EMS1 - FIRE DIST #1 EMS | $6.84 | $6.84 | $0.00 | $0.00 | $13.68 | $0.00 |
| 2023 | 21296 | JCCD - JC Conservation District | $2.53 | $2.53 | $0.00 | $0.00 | $5.06 | $0.00 |
| 2023 | 21296 | NWA - Noxious Weed Assessment | $2.15 | $2.15 | $0.00 | $0.00 | $4.30 | $0.00 |
| 2023 | 21296 | OSS - On Site Septic | $20.50 | $20.50 | $0.00 | $0.00 | $41.00 | $0.00 |
| 2023 | 21296 | WAT - Clean Water District | $12.00 | $12.00 | $0.00 | $0.00 | $24.00 | $0.00 |
| 2023 | 21296 | TOTAL: | $178.42 | $178.36 | $0.00 | $0.00 | $356.78 | $0.00 |
|
| 2023 | 21296 | $178.42 | $178.36 | $0.00 | $0.00 | $356.78 | $0.00 |
Values
| (+) Improvement Homesite Value: | + | $0 | |
| (+) Improvement Non-Homesite Value: | + | $0 | |
| (+) Land Homesite Value: | + | $0 | |
| (+) Land Non-Homesite Value: | + | $62,370 | |
| (+) Curr Use (HS): | + | $0 | $0 |
| (+) Curr Use (NHS): | + | $0 | $0 |
| | | -------------------------- | |
| (=) Market Value: | = | $62,370 | |
| (–) Productivity Loss: | – | $0 | |
| | | -------------------------- | |
| (=) Subtotal: | = | $62,370 | |
| (+) Senior Appraised Value: | + | $0 | |
| (+) Non-Senior Appraised Value: | + | $62,370 | |
| | | -------------------------- | |
| (=) Total Appraised Value: | = | $62,370 | |
| (–) Senior Exemption Loss: | – | $0 | |
| (–) Exemption Loss: | – | $0 | |
| | | -------------------------- | |
| (=) Taxable Value: | = | $62,370 | |
Taxing Jurisdiction
| Owner: | JAIME E KOZELISKY | | |
| % Ownership: | 100.0000000000% | | |
| Total Value: | $62,370 | | |
| Tax Area: | 0211 - 1-49F1E1H2L1 |
| CE | COUNTY CURRENT EXPENSE | 0.9034619479 | $62,370 | $62,370 | $56.35 | | |
| CNTYDD | DEVELOPMENTAL DISABILITIES | 0.0052121823 | $62,370 | $62,370 | $0.33 | | |
| CNTYVET | VETERANS RELIEF | 0.0052777810 | $62,370 | $62,370 | $0.33 | | |
| MENTAL | MENTAL HEALTH | 0.0052121823 | $62,370 | $62,370 | $0.33 | | |
| ROADS | COUNTY ROADS | 0.7415066410 | $62,370 | $62,370 | $46.25 | | |
| ROADSCU | COUNTY ROADS TO CUR EXP | 0.0000000000 | $62,370 | $62,370 | $0.00 | | |
| HOSP2CASH | HOSP DIST #2 GENERAL | 0.0536075306 | $62,370 | $62,370 | $3.34 | | |
| SCH49CP | SCHOOL DIST #49 CAP PROJ | 0.6279093905 | $62,370 | $62,370 | $39.16 | | |
| SCH49MO | SCHOOL DIST #49 EP & O | 0.6376483602 | $62,370 | $62,370 | $39.77 | | |
| CONSERVE | CONSERVATION FUTURES | 0.0275621078 | $62,370 | $62,370 | $1.72 | | |
| EMS1 | FIRE DIST #1 EMS | 0.4679948282 | $62,370 | $62,370 | $29.19 | | |
| FD1 | FIRE DIST #1 GENERAL | 1.2171942929 | $62,370 | $62,370 | $75.92 | | |
| LIB1 | LIBRARY DIST #1 GENERAL | 0.2868827388 | $62,370 | $62,370 | $17.89 | | |
| PORTPT | PORT OF PT GENERAL | 0.1134941229 | $62,370 | $62,370 | $7.08 | | |
| PORTPTIDD | PORT OF PT IDD 2019 | 0.2577346692 | $62,370 | $62,370 | $16.07 | | |
| PUD1 | PUD #1 GENERAL | 0.0597888892 | $62,370 | $62,370 | $3.73 | | |
| STATE | STATE SCHOOL PART 1 | 1.4940692947 | $62,370 | $62,370 | $93.19 | | |
| STATE2 | STATE SCHOOL PART 2 | 0.8050170049 | $62,370 | $62,370 | $50.21 | | |
| | Total Tax Rate: | 7.7095739644 | | | | | |
| | | | | Taxes w/Current Exemptions: | $480.86 | | |
| | | | | Taxes w/o Exemptions: | $480.86 | | |
Improvement / Building
Sketch
| No sketches available for this property. |
Property Image
Land
| 1 | 4120-1184L | | 0.0000 | 0.00 | 0.00 | 0.00 | 1.00 | $15,120 | $0 |
| 2 | 4120-1285S | | 0.0000 | 0.00 | 0.00 | 0.00 | 1.00 | $47,250 | $0 |
Roll Value History
| 2026 | N/A | N/A | N/A | N/A | N/A |
| 2025 | $0 | $62,370 | $0 | $62,370 | $62,370 |
| 2024 | $0 | $59,010 | $0 | $59,010 | $59,010 |
| 2023 | $0 | $56,200 | $0 | $56,200 | $56,200 |
| 2022 | $0 | $38,000 | $0 | $38,000 | $38,000 |
Deed and Sales History
| 1 | 08/09/2021 | SWD | Statutory Warranty Deed | BRUCE B SETON SR TRUSTEE | JAIME E KOZELISKY | | | $50,000.00 | 137373 | |
|   | |
| 2 | 12/12/2017 | TRED | Trustee Deed | W E SETON & MARILYN SETON RECOVABLE TRUST | BRUCE B SETON SR TRUSTEE | | | | 129243 | |
| 3 | 05/21/2014 | WD | Warranty Deed | W E SETON | W E SETON & MARILYN SETON RECOVABLE TRUST | | | | 121209 | |
Payout Agreement
| No payout information available.. |