Property
Account |
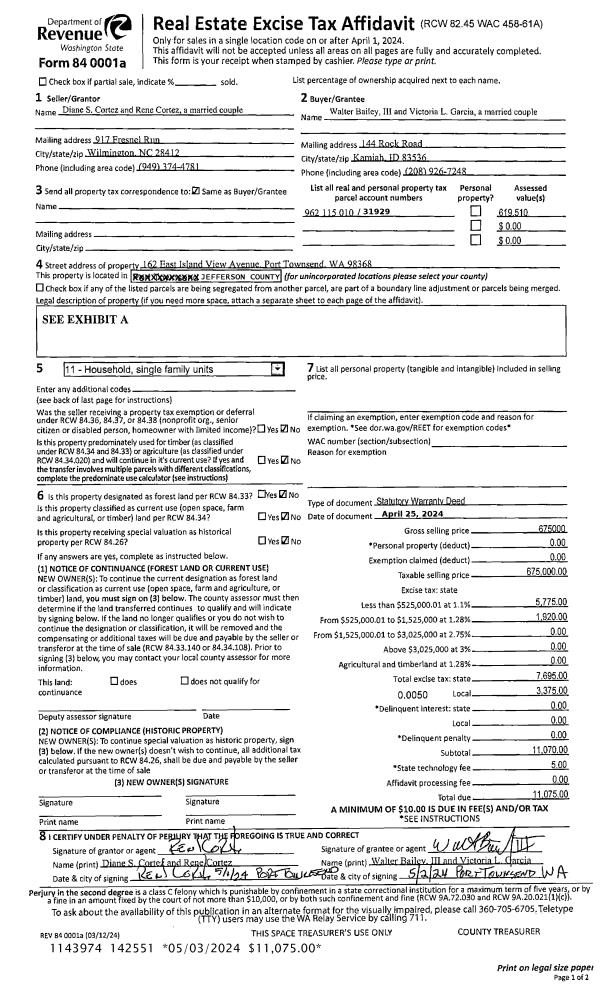
| Property ID: | 31929 | Abbreviated Legal Description: | IRONDALE #6 BLK 150 LOTS 41 THRU 46 |
| Parcel # / Geo ID: | 962115010 | Agent Code: | |
| Type: | Real | | |
| Tax Area: | 0211 - 1-49F1E1H2L1 | Land Use Code | 11 |
| Open Space: | N | DFL | N |
| Historic Property: | N | Remodel Property: | N |
| Multi-Family Redevelopment: | N | | |
| Township: | 30N | Section: | 35 |
| Range: | 1W |
Location |
| Address: | 162 E ISLAND VIEW AVE PORT TOWNSEND, WA 98368 | Mapsco: | 052/082 |
| Neighborhood: | IRONDALE BLOCKS 100 - 179 (I.E. PROSPECT AVENUE AREA) | Map ID: | |
| Neighborhood CD: | 4120 |
Owner |
| Name: | WALTER BAILEY III | Owner ID: | 98956 |
| Mailing Address: | VICTORIA L GARCIA 144 ROCK RD KAMIAH, ID 83536-5089 | % Ownership: | 100.0000000000% |
| | | Exemptions: | |
Pay Tax Due
There is currently No Amount Due on this property.
Taxes and Assessment Details
Property Tax Information as of
03/11/2026
Click on "Statement Details" to expand or collapse a tax statement.
* Please enter a valid date ** Please enter a valid date *
Statement Details |
| | TOTAL: | $0.00 | $0.00 | $0.00 | $0.00 | $0.00 | $0.00 |
|
| | $0.00 | $0.00 | $0.00 | $0.00 | $0.00 | $0.00 |
Values
| (+) Improvement Homesite Value: | + | $0 | |
| (+) Improvement Non-Homesite Value: | + | $530,525 | |
| (+) Land Homesite Value: | + | $0 | |
| (+) Land Non-Homesite Value: | + | $126,420 | |
| (+) Curr Use (HS): | + | $0 | $0 |
| (+) Curr Use (NHS): | + | $0 | $0 |
| | | -------------------------- | |
| (=) Market Value: | = | $656,945 | |
| (–) Productivity Loss: | – | $0 | |
| | | -------------------------- | |
| (=) Subtotal: | = | $656,945 | |
| (+) Senior Appraised Value: | + | $0 | |
| (+) Non-Senior Appraised Value: | + | $656,945 | |
| | | -------------------------- | |
| (=) Total Appraised Value: | = | $656,945 | |
| (–) Senior Exemption Loss: | – | $0 | |
| (–) Exemption Loss: | – | $0 | |
| | | -------------------------- | |
| (=) Taxable Value: | = | $656,945 | |
Taxing Jurisdiction
| Owner: | WALTER BAILEY III | | |
| % Ownership: | 100.0000000000% | | |
| Total Value: | $656,945 | | |
| Tax Area: | 0211 - 1-49F1E1H2L1 |
| CE | COUNTY CURRENT EXPENSE | 0.9034619479 | $656,945 | $656,945 | $593.52 | | |
| CNTYDD | DEVELOPMENTAL DISABILITIES | 0.0052121823 | $656,945 | $656,945 | $3.42 | | |
| CNTYVET | VETERANS RELIEF | 0.0052777810 | $656,945 | $656,945 | $3.47 | | |
| MENTAL | MENTAL HEALTH | 0.0052121823 | $656,945 | $656,945 | $3.42 | | |
| ROADS | COUNTY ROADS | 0.7415066410 | $656,945 | $656,945 | $487.13 | | |
| ROADSCU | COUNTY ROADS TO CUR EXP | 0.0000000000 | $656,945 | $656,945 | $0.00 | | |
| HOSP2CASH | HOSP DIST #2 GENERAL | 0.0536075306 | $656,945 | $656,945 | $35.22 | | |
| SCH49CP | SCHOOL DIST #49 CAP PROJ | 0.6279093905 | $656,945 | $656,945 | $412.50 | | |
| SCH49MO | SCHOOL DIST #49 EP & O | 0.6376483602 | $656,945 | $656,945 | $418.90 | | |
| CONSERVE | CONSERVATION FUTURES | 0.0275621078 | $656,945 | $656,945 | $18.11 | | |
| EMS1 | FIRE DIST #1 EMS | 0.4679948282 | $656,945 | $656,945 | $307.45 | | |
| FD1 | FIRE DIST #1 GENERAL | 1.2171942929 | $656,945 | $656,945 | $799.63 | | |
| LIB1 | LIBRARY DIST #1 GENERAL | 0.2868827388 | $656,945 | $656,945 | $188.47 | | |
| PORTPT | PORT OF PT GENERAL | 0.1134941229 | $656,945 | $656,945 | $74.56 | | |
| PORTPTIDD | PORT OF PT IDD 2019 | 0.2577346692 | $656,945 | $656,945 | $169.32 | | |
| PUD1 | PUD #1 GENERAL | 0.0597888892 | $656,945 | $656,945 | $39.28 | | |
| STATE | STATE SCHOOL PART 1 | 1.4940692947 | $656,945 | $656,945 | $981.52 | | |
| STATE2 | STATE SCHOOL PART 2 | 0.8050170049 | $656,945 | $656,945 | $528.85 | | |
| | Total Tax Rate: | 7.7095739644 | | | | | |
| | | | | Taxes w/Current Exemptions: | $5,064.77 | | |
| | | | | Taxes w/o Exemptions: | $5,064.77 | | |
Improvement / Building
| Improvement #1: | Residential Bldg | State Code: | 11 | 1558.0 sqft | Value: | $530,525 |
| Bathrooms (#): | 2 (FULL) | Bedrooms (#): | 3 | | Exterior Wall: | SI/ST | Foundation: | CONPR | | Heating/Cooling: | HPUMP | Roof Cover: | COMP |
|
| | Type | Description | Class CD | Sub Class CD | Year Built | Area |
| | MA | Main Area | 5+ | 1S | 2021 | 1558.0 |
| | GATT | House Attached Garage | 5 | 1S | 2021 | 440.0 |
| | HCPOR | House Concrete Porch | 5 | 1S | 2021 | 230.0 |
| | PATIO | House Patio | 5 | 1S | 2021 | 96.0 |
Sketch
Property Image
Land
| 1 | 4120-1275S | Irondale 2 Lot Sites Filtered Terr Views | 0.0000 | 0.00 | 0.00 | 0.00 | 1.00 | $107,100 | $0 |
| 2 | 4120-1187L | Irondale Lots XS Lots to make up Site | 0.0000 | 0.00 | 0.00 | 0.00 | 1.00 | $19,320 | $0 |
Roll Value History
| 2026 | N/A | N/A | N/A | N/A | N/A |
| 2025 | $530,525 | $126,420 | $0 | $656,945 | $656,945 |
| 2024 | $530,525 | $124,005 | $0 | $654,530 | $654,530 |
| 2023 | $506,410 | $113,100 | $0 | $619,510 | $619,510 |
| 2022 | $489,251 | $82,400 | $0 | $571,651 | $571,651 |
Deed and Sales History
| 1 | 04/25/2024 | SWD | Statutory Warranty Deed | DIANE S & RENE CORTEZ | WALTER BAILEY III | | | $675,000.00 | 142551 | |
| 2 | 10/01/2021 | SWD | Statutory Warranty Deed | BLAKE WAGGONER | DIANE S & RENE CORTEZ | | | $620,000.00 | 137806 | |
| 3 | 01/21/2020 | SWD | Statutory Warranty Deed | JAMES M CHASE | BLAKE WAGGONER | | | $97,000.00 | 133856 | |
|   | |
| 4 | 10/10/2007 | QCD | Quit Claim Deed | CHASE REVOCABLE TRUST | CHASE, JAMES M/SHEEDY, H JOY | 0 | 0 | $0.00 | 110170 | 0 |
| 5 | 08/02/1995 | QCD | Quit Claim Deed | CHASE, JAMES L/DONNA M | CHASE, JAMES L & DONNA M/TRUST | 0 | 0 | $0.00 | 78207 | 0 |
Payout Agreement
| No payout information available.. |