Property
Account |
| Property ID: | 31932 | Abbreviated Legal Description: | IRONDALE #6 BLK 151 LOTS 5 THRU 9 |
| Parcel # / Geo ID: | 962115122 | Agent Code: | |
| Type: | Real | | |
| Tax Area: | 0211 - 1-49F1E1H2L1 | Land Use Code | 11 |
| Open Space: | N | DFL | N |
| Historic Property: | N | Remodel Property: | N |
| Multi-Family Redevelopment: | N | | |
| Township: | 30N | Section: | 35 |
| Range: | 1W |
Location |
| Address: | 213 N CARNEGIE AVE PORT TOWNSEND, WA 98368 | Mapsco: | 053/002 |
| Neighborhood: | IRONDALE BLOCKS 100 - 179 (I.E. PROSPECT AVENUE AREA) | Map ID: | |
| Neighborhood CD: | 4120 |
Owner |
| Name: | JONATHAN B EARL | Owner ID: | 14963 |
| Mailing Address: | SUSAN M HARGLEROAD 213 N CARNEGIE AVE PORT TOWNSEND, WA 98368-2231 | % Ownership: | 100.0000000000% |
| | | Exemptions: | |
Pay Tax Due
Select the appropriate checkbox next to the year to be paid. Multiple years may be selected.
*Convenience Fee not included
Taxes and Assessment Details
Property Tax Information as of
03/12/2026
Click on "Statement Details" to expand or collapse a tax statement.
* Please enter a valid date ** Please enter a valid date *
Statement Details |
| 2026 | 21205 | STATE - STATE LEVY (SCHOOL) | $678.91 | $678.89 | $0.00 | $0.00 | $0.00 | $1357.80 |
| 2026 | 21205 | COUNTY - COUNTY LEVIES (CE, DD, VET, MH) | $271.43 | $271.42 | $0.00 | $0.00 | $0.00 | $542.85 |
| 2026 | 21205 | CONSERVE - CONSERVATION FUTURES | $8.14 | $8.14 | $0.00 | $0.00 | $0.00 | $16.28 |
| 2026 | 21205 | COROADS - COUNTY ROADS (ROADS, DIV TO CE) | $218.96 | $218.96 | $0.00 | $0.00 | $0.00 | $437.92 |
| 2026 | 21205 | PORTPT - PORT DISTRICT | $109.63 | $109.61 | $0.00 | $0.00 | $0.00 | $219.24 |
| 2026 | 21205 | PUD1 - PUD #1 | $17.66 | $17.65 | $0.00 | $0.00 | $0.00 | $35.31 |
| 2026 | 21205 | LIB1 - LIBRARY DIST #1 | $84.72 | $84.71 | $0.00 | $0.00 | $0.00 | $169.43 |
| 2026 | 21205 | HD2 - HOSP DIST #2 | $15.83 | $15.83 | $0.00 | $0.00 | $0.00 | $31.66 |
| 2026 | 21205 | SD49 - SCHOOL DIST #49 | $373.71 | $373.70 | $0.00 | $0.00 | $0.00 | $747.41 |
| 2026 | 21205 | FD1 - FIRE DISTRICT #1 | $359.43 | $359.42 | $0.00 | $0.00 | $0.00 | $718.85 |
| 2026 | 21205 | EMS1 - FIRE DIST #1 EMS | $138.20 | $138.19 | $0.00 | $0.00 | $0.00 | $276.39 |
| 2026 | 21205 | JCCD - JC Conservation District | $2.55 | $2.55 | $0.00 | $0.00 | $0.00 | $5.10 |
| 2026 | 21205 | NWA - Noxious Weed Assessment | $2.98 | $2.97 | $0.00 | $0.00 | $0.00 | $5.95 |
| 2026 | 21205 | OSS - On Site Septic | $23.10 | $23.10 | $0.00 | $0.00 | $0.00 | $46.20 |
| 2026 | 21205 | WAT - Clean Water District | $13.00 | $13.00 | $0.00 | $0.00 | $0.00 | $26.00 |
| 2026 | 21205 | TOTAL: | $2318.25 | $2318.14 | $0.00 | $0.00 | $0.00 | $4636.39 |
|
| 2026 | 21205 | $2318.25 | $2318.14 | $0.00 | $0.00 | $0.00 | $4636.39 |
Statement Details |
| 2025 | 21266 | STATE - STATE LEVY (SCHOOL) | $700.56 | $700.56 | $0.00 | $0.00 | $1401.12 | $0.00 |
| 2025 | 21266 | COUNTY - COUNTY LEVIES (CE, DD, VET, MH) | $275.50 | $275.49 | $0.00 | $0.00 | $550.99 | $0.00 |
| 2025 | 21266 | CONSERVE - CONSERVATION FUTURES | $8.26 | $8.26 | $0.00 | $0.00 | $16.52 | $0.00 |
| 2025 | 21266 | COROADS - COUNTY ROADS (ROADS, DIV TO CE) | $220.72 | $220.70 | $0.00 | $0.00 | $441.42 | $0.00 |
| 2025 | 21266 | PORTPT - PORT DISTRICT | $112.42 | $112.41 | $0.00 | $0.00 | $224.83 | $0.00 |
| 2025 | 21266 | PUD1 - PUD #1 | $18.03 | $18.02 | $0.00 | $0.00 | $36.05 | $0.00 |
| 2025 | 21266 | LIB1 - LIBRARY DIST #1 | $85.39 | $85.39 | $0.00 | $0.00 | $170.78 | $0.00 |
| 2025 | 21266 | HD2 - HOSP DIST #2 | $16.08 | $16.07 | $0.00 | $0.00 | $32.15 | $0.00 |
| 2025 | 21266 | SD49 - SCHOOL DIST #49 | $375.46 | $375.45 | $0.00 | $0.00 | $750.91 | $0.00 |
| 2025 | 21266 | FD1 - FIRE DISTRICT #1 | $363.54 | $363.54 | $0.00 | $0.00 | $727.08 | $0.00 |
| 2025 | 21266 | EMS1 - FIRE DIST #1 EMS | $139.83 | $139.82 | $0.00 | $0.00 | $279.65 | $0.00 |
| 2025 | 21266 | JCCD - JC Conservation District | $2.55 | $2.55 | $0.00 | $0.00 | $5.10 | $0.00 |
| 2025 | 21266 | NWA - Noxious Weed Assessment | $2.15 | $2.15 | $0.00 | $0.00 | $4.30 | $0.00 |
| 2025 | 21266 | OSS - On Site Septic | $21.50 | $21.50 | $0.00 | $0.00 | $43.00 | $0.00 |
| 2025 | 21266 | WAT - Clean Water District | $13.00 | $13.00 | $0.00 | $0.00 | $26.00 | $0.00 |
| 2025 | 21266 | TOTAL: | $2354.99 | $2354.91 | $0.00 | $0.00 | $4709.90 | $0.00 |
|
| 2025 | 21266 | $2354.99 | $2354.91 | $0.00 | $0.00 | $4709.90 | $0.00 |
Statement Details |
| 2024 | 21310 | STATE - STATE LEVY (SCHOOL) | $504.84 | $504.84 | $0.00 | $0.00 | $1009.68 | $0.00 |
| 2024 | 21310 | COUNTY - COUNTY LEVIES (CE, DD, VET, MH) | $216.03 | $216.02 | $0.00 | $0.00 | $432.05 | $0.00 |
| 2024 | 21310 | CONSERVE - CONSERVATION FUTURES | $6.48 | $6.48 | $0.00 | $0.00 | $12.96 | $0.00 |
| 2024 | 21310 | COROADS - COUNTY ROADS (ROADS, DIV TO CE) | $173.84 | $173.82 | $0.00 | $0.00 | $347.66 | $0.00 |
| 2024 | 21310 | PORTPT - PORT DISTRICT | $89.24 | $89.22 | $0.00 | $0.00 | $178.46 | $0.00 |
| 2024 | 21310 | PUD1 - PUD #1 | $14.19 | $14.19 | $0.00 | $0.00 | $28.38 | $0.00 |
| 2024 | 21310 | LIB1 - LIBRARY DIST #1 | $67.26 | $67.25 | $0.00 | $0.00 | $134.51 | $0.00 |
| 2024 | 21310 | HD2 - HOSP DIST #2 | $12.61 | $12.60 | $0.00 | $0.00 | $25.21 | $0.00 |
| 2024 | 21310 | SD49 - SCHOOL DIST #49 | $225.44 | $225.43 | $0.00 | $0.00 | $450.87 | $0.00 |
| 2024 | 21310 | FD1 - FIRE DISTRICT #1 | $285.64 | $285.64 | $0.00 | $0.00 | $571.28 | $0.00 |
| 2024 | 21310 | EMS1 - FIRE DIST #1 EMS | $109.11 | $109.10 | $0.00 | $0.00 | $218.21 | $0.00 |
| 2024 | 21310 | JCCD - JC Conservation District | $2.55 | $2.55 | $0.00 | $0.00 | $5.10 | $0.00 |
| 2024 | 21310 | NWA - Noxious Weed Assessment | $2.15 | $2.15 | $0.00 | $0.00 | $4.30 | $0.00 |
| 2024 | 21310 | OSS - On Site Septic | $21.00 | $21.00 | $0.00 | $0.00 | $42.00 | $0.00 |
| 2024 | 21310 | WAT - Clean Water District | $12.50 | $12.50 | $0.00 | $0.00 | $25.00 | $0.00 |
| 2024 | 21310 | TOTAL: | $1742.88 | $1742.79 | $0.00 | $0.00 | $3485.67 | $0.00 |
|
| 2024 | 21310 | $1742.88 | $1742.79 | $0.00 | $0.00 | $3485.67 | $0.00 |
Statement Details |
| 2023 | 21347 | STATE - STATE LEVY (SCHOOL) | $448.09 | $448.08 | $0.00 | $0.00 | $896.17 | $0.00 |
| 2023 | 21347 | COUNTY - COUNTY LEVIES (CE, DD, VET, MH) | $195.54 | $195.52 | $0.00 | $0.00 | $391.06 | $0.00 |
| 2023 | 21347 | CONSERVE - CONSERVATION FUTURES | $5.87 | $5.86 | $0.00 | $0.00 | $11.73 | $0.00 |
| 2023 | 21347 | COROADS - COUNTY ROADS (ROADS, DIV TO CE) | $158.20 | $158.19 | $0.00 | $0.00 | $316.39 | $0.00 |
| 2023 | 21347 | PORTPT - PORT DISTRICT | $82.38 | $82.36 | $0.00 | $0.00 | $164.74 | $0.00 |
| 2023 | 21347 | PUD1 - PUD #1 | $12.96 | $12.96 | $0.00 | $0.00 | $25.92 | $0.00 |
| 2023 | 21347 | LIB1 - LIBRARY DIST #1 | $61.21 | $61.20 | $0.00 | $0.00 | $122.41 | $0.00 |
| 2023 | 21347 | HD2 - HOSP DIST #2 | $11.41 | $11.41 | $0.00 | $0.00 | $22.82 | $0.00 |
| 2023 | 21347 | SD49 - SCHOOL DIST #49 | $209.46 | $209.45 | $0.00 | $0.00 | $418.91 | $0.00 |
| 2023 | 21347 | FD1 - FIRE DISTRICT #1 | $161.08 | $161.08 | $0.00 | $0.00 | $322.16 | $0.00 |
| 2023 | 21347 | EMS1 - FIRE DIST #1 EMS | $68.52 | $68.52 | $0.00 | $0.00 | $137.04 | $0.00 |
| 2023 | 21347 | JCCD - JC Conservation District | $2.55 | $2.55 | $0.00 | $0.00 | $5.10 | $0.00 |
| 2023 | 21347 | NWA - Noxious Weed Assessment | $2.15 | $2.15 | $0.00 | $0.00 | $4.30 | $0.00 |
| 2023 | 21347 | OSS - On Site Septic | $20.50 | $20.50 | $0.00 | $0.00 | $41.00 | $0.00 |
| 2023 | 21347 | WAT - Clean Water District | $12.00 | $12.00 | $0.00 | $0.00 | $24.00 | $0.00 |
| 2023 | 21347 | TOTAL: | $1451.92 | $1451.83 | $0.00 | $0.00 | $2903.75 | $0.00 |
|
| 2023 | 21347 | $1451.92 | $1451.83 | $0.00 | $0.00 | $2903.75 | $0.00 |
Values
| (+) Improvement Homesite Value: | + | $0 | |
| (+) Improvement Non-Homesite Value: | + | $445,680 | |
| (+) Land Homesite Value: | + | $0 | |
| (+) Land Non-Homesite Value: | + | $144,900 | |
| (+) Curr Use (HS): | + | $0 | $0 |
| (+) Curr Use (NHS): | + | $0 | $0 |
| | | -------------------------- | |
| (=) Market Value: | = | $590,580 | |
| (–) Productivity Loss: | – | $0 | |
| | | -------------------------- | |
| (=) Subtotal: | = | $590,580 | |
| (+) Senior Appraised Value: | + | $0 | |
| (+) Non-Senior Appraised Value: | + | $590,580 | |
| | | -------------------------- | |
| (=) Total Appraised Value: | = | $590,580 | |
| (–) Senior Exemption Loss: | – | $0 | |
| (–) Exemption Loss: | – | $0 | |
| | | -------------------------- | |
| (=) Taxable Value: | = | $590,580 | |
Taxing Jurisdiction
| Owner: | JONATHAN B EARL | | |
| % Ownership: | 100.0000000000% | | |
| Total Value: | N/A | | |
| Tax Area: | 0211 - 1-49F1E1H2L1 |
| CE | COUNTY CURRENT EXPENSE | N/A | N/A | N/A | N/A | | |
| CNTYDD | DEVELOPMENTAL DISABILITIES | N/A | N/A | N/A | N/A | | |
| CNTYVET | VETERANS RELIEF | N/A | N/A | N/A | N/A | | |
| MENTAL | MENTAL HEALTH | N/A | N/A | N/A | N/A | | |
| ROADS | COUNTY ROADS | N/A | N/A | N/A | N/A | | |
| HOSP2CASH | HOSP DIST #2 GENERAL | N/A | N/A | N/A | N/A | | |
| SCH49CP | SCHOOL DIST #49 CAP PROJ | N/A | N/A | N/A | N/A | | |
| SCH49MO | SCHOOL DIST #49 EP & O | N/A | N/A | N/A | N/A | | |
| CONSERVE | CONSERVATION FUTURES | N/A | N/A | N/A | N/A | | |
| EMS1 | FIRE DIST #1 EMS | N/A | N/A | N/A | N/A | | |
| FD1 | FIRE DIST #1 GENERAL | N/A | N/A | N/A | N/A | | |
| LIB1 | LIBRARY DIST #1 GENERAL | N/A | N/A | N/A | N/A | | |
| PORTPT | PORT OF PT GENERAL | N/A | N/A | N/A | N/A | | |
| PORTPTIDD | PORT OF PT IDD 2019 | N/A | N/A | N/A | N/A | | |
| PUD1 | PUD #1 GENERAL | N/A | N/A | N/A | N/A | | |
| STATE | STATE SCHOOL PART 1 | N/A | N/A | N/A | N/A | | |
| STATE2 | STATE SCHOOL PART 2 | N/A | N/A | N/A | N/A | | |
| | Total Tax Rate: | N/A | | | | | |
| | | | | Taxes w/Current Exemptions: | N/A | | |
| | | | | Taxes w/o Exemptions: | N/A | | |
Improvement / Building
| Improvement #1: | Residential Bldg | State Code: | 11 | 1319.0 sqft | Value: | $445,680 |
| Bathrooms (#): | 3 (FULL) | Bedrooms (#): | 3 | | Exterior Wall: | SI/ST | Fireplace: | PROPS-GOOD | | Floor Construction: | FRAME | Foundation: | CONPR | | Heating/Cooling: | F/A | Roof Cover: | COMP |
|
| | Type | Description | Class CD | Sub Class CD | Year Built | Area |
| | MA | Main Area | 5 | 1S | 2007 | 1319.0 |
| | PATIO | House Patio | 5 | * | 2007 | 234.0 |
| | HCPOR | House Concrete Porch | 5 | * | 2007 | 158.0 |
| | GATT | House Attached Garage | 5 | 1S | 2007 | 672.0 |
| | HATTIC | House Attic | 4 | * | 2007 | 633.0 |
Sketch
Property Image
Land
| 1 | 4120-1184L | | 0.0000 | 0.00 | 0.00 | 0.00 | 3.00 | $28,350 | $0 |
| 2 | 4120-1275S | | 0.0000 | 0.00 | 0.00 | 0.00 | 1.00 | $116,550 | $0 |
Roll Value History
| 2026 | N/A | N/A | N/A | N/A | N/A |
| 2025 | $445,680 | $144,900 | $0 | $590,580 | $590,580 |
| 2024 | $445,680 | $138,600 | $0 | $584,280 | $584,280 |
| 2023 | $309,413 | $127,000 | $0 | $436,413 | $436,413 |
| 2022 | $286,277 | $94,400 | $0 | $380,677 | $380,677 |
Deed and Sales History
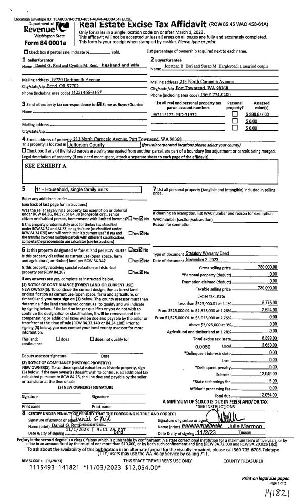
| 1 | 11/02/2023 | SWD | Statutory Warranty Deed | DANIEL G REID | JONATHAN B EARL | | | $730,000.00 | 141821 | |
| 2 | 07/14/2009 | SWD | Statutory Warranty Deed | MERIDIAN GREENFIELD LLC, | REID, DANIEL G/CYNTHIA M | | | $289,000.00 | 113148 | 0 |
| 3 | 12/13/2007 | QCD | Quit Claim Deed | MERIDIAN MTG INVESTORS FU | MERIDIAN - GREENFIELD, LLC | 0 | 0 | $593,500.00 | 110623 | 0 |
|   | |
Payout Agreement
| No payout information available.. |