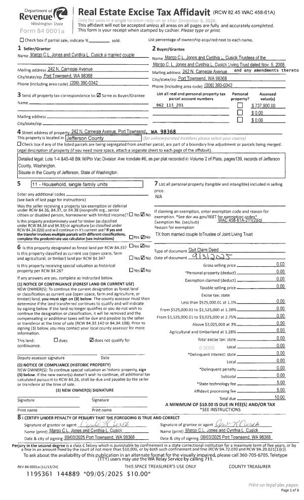
Property
Account |
| Property ID: | 31940 | Abbreviated Legal Description: | IRONDALE #6 BLK 152, LOTS 1 - 4 & 45 - 48 W/PTN VAC DIVISON AVE ADJ TO LOTS 1 & 48 |
| Parcel # / Geo ID: | 962115201 | Agent Code: | |
| Type: | Real | | |
| Tax Area: | 0211 - 1-49F1E1H2L1 | Land Use Code | 11 |
| Open Space: | N | DFL | N |
| Historic Property: | N | Remodel Property: | N |
| Multi-Family Redevelopment: | N | | |
| Township: | 30N | Section: | 35 |
| Range: | 1W |
Location |
| Address: | 242 N CARNEGIE AVE PORT TOWNSEND, WA 98368 | Mapsco: | 053/016 |
| Neighborhood: | IRONDALE BLOCKS 100 - 179 (I.E. PROSPECT AVENUE AREA) | Map ID: | |
| Neighborhood CD: | 4120 |
Owner |
| Name: | M JONES & C CUSICK LIVING TRUST | Owner ID: | 113286 |
| Mailing Address: | MARGO C L JONES TRUSTEE CYNTHIA L CUSICK TRUSTEE 242 N CARNEGIE AVE PORT TOWNSEND, WA 98368-2231 | % Ownership: | 100.0000000000% |
| | | Exemptions: | |
Pay Tax Due
Select the appropriate checkbox next to the year to be paid. Multiple years may be selected.
*Convenience Fee not included
Taxes and Assessment Details
Property Tax Information as of
03/13/2026
Click on "Statement Details" to expand or collapse a tax statement.
* Please enter a valid date ** Please enter a valid date *
Statement Details |
| 2026 | 21213 | STATE - STATE LEVY (SCHOOL) | $862.01 | $862.01 | $0.00 | $0.00 | $0.00 | $1724.02 |
| 2026 | 21213 | COUNTY - COUNTY LEVIES (CE, DD, VET, MH) | $344.64 | $344.62 | $0.00 | $0.00 | $0.00 | $689.26 |
| 2026 | 21213 | CONSERVE - CONSERVATION FUTURES | $10.34 | $10.33 | $0.00 | $0.00 | $0.00 | $20.67 |
| 2026 | 21213 | COROADS - COUNTY ROADS (ROADS, DIV TO CE) | $278.02 | $278.01 | $0.00 | $0.00 | $0.00 | $556.03 |
| 2026 | 21213 | PORTPT - PORT DISTRICT | $139.20 | $139.18 | $0.00 | $0.00 | $0.00 | $278.38 |
| 2026 | 21213 | PUD1 - PUD #1 | $22.42 | $22.41 | $0.00 | $0.00 | $0.00 | $44.83 |
| 2026 | 21213 | LIB1 - LIBRARY DIST #1 | $107.56 | $107.56 | $0.00 | $0.00 | $0.00 | $215.12 |
| 2026 | 21213 | HD2 - HOSP DIST #2 | $20.10 | $20.10 | $0.00 | $0.00 | $0.00 | $40.20 |
| 2026 | 21213 | SD49 - SCHOOL DIST #49 | $474.51 | $474.49 | $0.00 | $0.00 | $0.00 | $949.00 |
| 2026 | 21213 | FD1 - FIRE DISTRICT #1 | $456.37 | $456.37 | $0.00 | $0.00 | $0.00 | $912.74 |
| 2026 | 21213 | EMS1 - FIRE DIST #1 EMS | $175.47 | $175.47 | $0.00 | $0.00 | $0.00 | $350.94 |
| 2026 | 21213 | FP - DNR Forest Fire Protection Assmt | $8.50 | $8.50 | $0.00 | $0.00 | $0.00 | $17.00 |
| 2026 | 21213 | FPLCA - DNR Landowner Contingency Assmt | $3.00 | $3.00 | $0.00 | $0.00 | $0.00 | $6.00 |
| 2026 | 21213 | JCCD - JC Conservation District | $2.55 | $2.55 | $0.00 | $0.00 | $0.00 | $5.10 |
| 2026 | 21213 | NWA - Noxious Weed Assessment | $2.98 | $2.97 | $0.00 | $0.00 | $0.00 | $5.95 |
| 2026 | 21213 | OSS - On Site Septic | $23.10 | $23.10 | $0.00 | $0.00 | $0.00 | $46.20 |
| 2026 | 21213 | WAT - Clean Water District | $13.00 | $13.00 | $0.00 | $0.00 | $0.00 | $26.00 |
| 2026 | 21213 | FP ADMIN - FP ADMIN | $0.50 | $0.00 | $0.00 | $0.00 | $0.00 | $0.50 |
| 2026 | 21213 | TOTAL: | $2944.27 | $2943.67 | $0.00 | $0.00 | $0.00 | $5887.94 |
|
| 2026 | 21213 | $2944.27 | $2943.67 | $0.00 | $0.00 | $0.00 | $5887.94 |
Statement Details |
| 2025 | 21274 | STATE - STATE LEVY (SCHOOL) | $884.75 | $884.75 | $0.00 | $0.00 | $1769.50 | $0.00 |
| 2025 | 21274 | COUNTY - COUNTY LEVIES (CE, DD, VET, MH) | $347.94 | $347.92 | $0.00 | $0.00 | $695.86 | $0.00 |
| 2025 | 21274 | CONSERVE - CONSERVATION FUTURES | $10.44 | $10.43 | $0.00 | $0.00 | $20.87 | $0.00 |
| 2025 | 21274 | COROADS - COUNTY ROADS (ROADS, DIV TO CE) | $278.74 | $278.74 | $0.00 | $0.00 | $557.48 | $0.00 |
| 2025 | 21274 | PORTPT - PORT DISTRICT | $141.98 | $141.97 | $0.00 | $0.00 | $283.95 | $0.00 |
| 2025 | 21274 | PUD1 - PUD #1 | $22.77 | $22.76 | $0.00 | $0.00 | $45.53 | $0.00 |
| 2025 | 21274 | LIB1 - LIBRARY DIST #1 | $107.85 | $107.84 | $0.00 | $0.00 | $215.69 | $0.00 |
| 2025 | 21274 | HD2 - HOSP DIST #2 | $20.30 | $20.30 | $0.00 | $0.00 | $40.60 | $0.00 |
| 2025 | 21274 | SD49 - SCHOOL DIST #49 | $474.18 | $474.17 | $0.00 | $0.00 | $948.35 | $0.00 |
| 2025 | 21274 | FD1 - FIRE DISTRICT #1 | $459.13 | $459.12 | $0.00 | $0.00 | $918.25 | $0.00 |
| 2025 | 21274 | EMS1 - FIRE DIST #1 EMS | $176.59 | $176.59 | $0.00 | $0.00 | $353.18 | $0.00 |
| 2025 | 21274 | FP - DNR Forest Fire Protection Assmt | $8.50 | $8.50 | $0.00 | $0.00 | $17.00 | $0.00 |
| 2025 | 21274 | FPLCA - DNR Landowner Contingency Assmt | $3.00 | $3.00 | $0.00 | $0.00 | $6.00 | $0.00 |
| 2025 | 21274 | JCCD - JC Conservation District | $2.55 | $2.55 | $0.00 | $0.00 | $5.10 | $0.00 |
| 2025 | 21274 | NWA - Noxious Weed Assessment | $2.15 | $2.15 | $0.00 | $0.00 | $4.30 | $0.00 |
| 2025 | 21274 | OSS - On Site Septic | $21.50 | $21.50 | $0.00 | $0.00 | $43.00 | $0.00 |
| 2025 | 21274 | WAT - Clean Water District | $13.00 | $13.00 | $0.00 | $0.00 | $26.00 | $0.00 |
| 2025 | 21274 | FP ADMIN - FP ADMIN | $0.50 | $0.00 | $0.00 | $0.00 | $0.50 | $0.00 |
| 2025 | 21274 | TOTAL: | $2975.87 | $2975.29 | $0.00 | $0.00 | $5951.16 | $0.00 |
|
| 2025 | 21274 | $2975.87 | $2975.29 | $0.00 | $0.00 | $5951.16 | $0.00 |
Statement Details |
| 2024 | 21318 | STATE - STATE LEVY (SCHOOL) | $808.33 | $808.33 | $0.00 | $0.00 | $1616.66 | $0.00 |
| 2024 | 21318 | COUNTY - COUNTY LEVIES (CE, DD, VET, MH) | $345.91 | $345.88 | $0.00 | $0.00 | $691.79 | $0.00 |
| 2024 | 21318 | CONSERVE - CONSERVATION FUTURES | $10.37 | $10.37 | $0.00 | $0.00 | $20.74 | $0.00 |
| 2024 | 21318 | COROADS - COUNTY ROADS (ROADS, DIV TO CE) | $278.33 | $278.33 | $0.00 | $0.00 | $556.66 | $0.00 |
| 2024 | 21318 | PORTPT - PORT DISTRICT | $142.87 | $142.87 | $0.00 | $0.00 | $285.74 | $0.00 |
| 2024 | 21318 | PUD1 - PUD #1 | $22.72 | $22.72 | $0.00 | $0.00 | $45.44 | $0.00 |
| 2024 | 21318 | LIB1 - LIBRARY DIST #1 | $107.69 | $107.68 | $0.00 | $0.00 | $215.37 | $0.00 |
| 2024 | 21318 | HD2 - HOSP DIST #2 | $20.18 | $20.18 | $0.00 | $0.00 | $40.36 | $0.00 |
| 2024 | 21318 | SD49 - SCHOOL DIST #49 | $360.97 | $360.95 | $0.00 | $0.00 | $721.92 | $0.00 |
| 2024 | 21318 | FD1 - FIRE DISTRICT #1 | $457.35 | $457.35 | $0.00 | $0.00 | $914.70 | $0.00 |
| 2024 | 21318 | EMS1 - FIRE DIST #1 EMS | $174.69 | $174.69 | $0.00 | $0.00 | $349.38 | $0.00 |
| 2024 | 21318 | JCCD - JC Conservation District | $2.55 | $2.55 | $0.00 | $0.00 | $5.10 | $0.00 |
| 2024 | 21318 | NWA - Noxious Weed Assessment | $2.15 | $2.15 | $0.00 | $0.00 | $4.30 | $0.00 |
| 2024 | 21318 | OSS - On Site Septic | $21.00 | $21.00 | $0.00 | $0.00 | $42.00 | $0.00 |
| 2024 | 21318 | WAT - Clean Water District | $12.50 | $12.50 | $0.00 | $0.00 | $25.00 | $0.00 |
| 2024 | 21318 | TOTAL: | $2767.61 | $2767.55 | $0.00 | $0.00 | $5535.16 | $0.00 |
|
| 2024 | 21318 | $2767.61 | $2767.55 | $0.00 | $0.00 | $5535.16 | $0.00 |
Statement Details |
| 2023 | 21355 | STATE - STATE LEVY (SCHOOL) | $722.59 | $722.58 | $0.00 | $0.00 | $1445.17 | $0.00 |
| 2023 | 21355 | COUNTY - COUNTY LEVIES (CE, DD, VET, MH) | $315.31 | $315.31 | $0.00 | $0.00 | $630.62 | $0.00 |
| 2023 | 21355 | CONSERVE - CONSERVATION FUTURES | $9.46 | $9.45 | $0.00 | $0.00 | $18.91 | $0.00 |
| 2023 | 21355 | COROADS - COUNTY ROADS (ROADS, DIV TO CE) | $255.12 | $255.10 | $0.00 | $0.00 | $510.22 | $0.00 |
| 2023 | 21355 | PORTPT - PORT DISTRICT | $132.84 | $132.82 | $0.00 | $0.00 | $265.66 | $0.00 |
| 2023 | 21355 | PUD1 - PUD #1 | $20.90 | $20.90 | $0.00 | $0.00 | $41.80 | $0.00 |
| 2023 | 21355 | LIB1 - LIBRARY DIST #1 | $98.70 | $98.70 | $0.00 | $0.00 | $197.40 | $0.00 |
| 2023 | 21355 | HD2 - HOSP DIST #2 | $18.40 | $18.40 | $0.00 | $0.00 | $36.80 | $0.00 |
| 2023 | 21355 | SD49 - SCHOOL DIST #49 | $337.77 | $337.77 | $0.00 | $0.00 | $675.54 | $0.00 |
| 2023 | 21355 | FD1 - FIRE DISTRICT #1 | $259.76 | $259.75 | $0.00 | $0.00 | $519.51 | $0.00 |
| 2023 | 21355 | EMS1 - FIRE DIST #1 EMS | $110.50 | $110.49 | $0.00 | $0.00 | $220.99 | $0.00 |
| 2023 | 21355 | JCCD - JC Conservation District | $2.55 | $2.55 | $0.00 | $0.00 | $5.10 | $0.00 |
| 2023 | 21355 | NWA - Noxious Weed Assessment | $2.15 | $2.15 | $0.00 | $0.00 | $4.30 | $0.00 |
| 2023 | 21355 | OSS - On Site Septic | $20.50 | $20.50 | $0.00 | $0.00 | $41.00 | $0.00 |
| 2023 | 21355 | WAT - Clean Water District | $12.00 | $12.00 | $0.00 | $0.00 | $24.00 | $0.00 |
| 2023 | 21355 | TOTAL: | $2318.55 | $2318.47 | $0.00 | $0.00 | $4637.02 | $0.00 |
|
| 2023 | 21355 | $2318.55 | $2318.47 | $0.00 | $0.00 | $4637.02 | $0.00 |
Values
| (+) Improvement Homesite Value: | + | $0 | |
| (+) Improvement Non-Homesite Value: | + | $463,955 | |
| (+) Land Homesite Value: | + | $0 | |
| (+) Land Non-Homesite Value: | + | $285,915 | |
| (+) Curr Use (HS): | + | $0 | $0 |
| (+) Curr Use (NHS): | + | $0 | $0 |
| | | -------------------------- | |
| (=) Market Value: | = | $749,870 | |
| (–) Productivity Loss: | – | $0 | |
| | | -------------------------- | |
| (=) Subtotal: | = | $749,870 | |
| (+) Senior Appraised Value: | + | $0 | |
| (+) Non-Senior Appraised Value: | + | $749,870 | |
| | | -------------------------- | |
| (=) Total Appraised Value: | = | $749,870 | |
| (–) Senior Exemption Loss: | – | $0 | |
| (–) Exemption Loss: | – | $0 | |
| | | -------------------------- | |
| (=) Taxable Value: | = | $749,870 | |
Taxing Jurisdiction
| Owner: | M JONES & C CUSICK LIVING TRUST | | |
| % Ownership: | 100.0000000000% | | |
| Total Value: | $749,870 | | |
| Tax Area: | 0211 - 1-49F1E1H2L1 |
| CE | COUNTY CURRENT EXPENSE | 0.9034619479 | $749,870 | $749,870 | $677.48 | | |
| CNTYDD | DEVELOPMENTAL DISABILITIES | 0.0052121823 | $749,870 | $749,870 | $3.91 | | |
| CNTYVET | VETERANS RELIEF | 0.0052777810 | $749,870 | $749,870 | $3.96 | | |
| MENTAL | MENTAL HEALTH | 0.0052121823 | $749,870 | $749,870 | $3.91 | | |
| ROADS | COUNTY ROADS | 0.7415066410 | $749,870 | $749,870 | $556.03 | | |
| ROADSCU | COUNTY ROADS TO CUR EXP | 0.0000000000 | $749,870 | $749,870 | $0.00 | | |
| HOSP2CASH | HOSP DIST #2 GENERAL | 0.0536075306 | $749,870 | $749,870 | $40.20 | | |
| SCH49CP | SCHOOL DIST #49 CAP PROJ | 0.6279093905 | $749,870 | $749,870 | $470.85 | | |
| SCH49MO | SCHOOL DIST #49 EP & O | 0.6376483602 | $749,870 | $749,870 | $478.15 | | |
| CONSERVE | CONSERVATION FUTURES | 0.0275621078 | $749,870 | $749,870 | $20.67 | | |
| EMS1 | FIRE DIST #1 EMS | 0.4679948282 | $749,870 | $749,870 | $350.94 | | |
| FD1 | FIRE DIST #1 GENERAL | 1.2171942929 | $749,870 | $749,870 | $912.74 | | |
| LIB1 | LIBRARY DIST #1 GENERAL | 0.2868827388 | $749,870 | $749,870 | $215.12 | | |
| PORTPT | PORT OF PT GENERAL | 0.1134941229 | $749,870 | $749,870 | $85.11 | | |
| PORTPTIDD | PORT OF PT IDD 2019 | 0.2577346692 | $749,870 | $749,870 | $193.27 | | |
| PUD1 | PUD #1 GENERAL | 0.0597888892 | $749,870 | $749,870 | $44.83 | | |
| STATE | STATE SCHOOL PART 1 | 1.4940692947 | $749,870 | $749,870 | $1,120.36 | | |
| STATE2 | STATE SCHOOL PART 2 | 0.8050170049 | $749,870 | $749,870 | $603.66 | | |
| | Total Tax Rate: | 7.7095739644 | | | | | |
| | | | | Taxes w/Current Exemptions: | $5,781.19 | | |
| | | | | Taxes w/o Exemptions: | $5,781.19 | | |
Improvement / Building
| Improvement #1: | Residential Bldg | State Code: | 11 | 2029.0 sqft | Value: | $463,955 |
| Bathrooms (#): | 2 (FULL) | Bathrooms (#): | 1 (HALF) | | Bedrooms (#): | 2 | Exterior Wall: | SI/ST | | Fireplace: | SIN 1-GOOD | Floor Construction: | FRAME | | Foundation: | CONPR | Heating/Cooling: | HPUMP | | Inside Verify: | YES-FIX | Roof Cover: | COMP |
|
| | Type | Description | Class CD | Sub Class CD | Year Built | Area |
| | MA | Main Area | 4 | 1S | 2005 | 2029.0 |
| | HWPOR | House Wood Porch | 4 | * | 2005 | 66.0 |
| | HCPOR | House Concrete Porch | 4 | * | 2005 | 144.0 |
| | HDECK | House Deck | 4 | * | 2005 | 527.0 |
| | GATT | House Attached Garage | 4 | 1S | 2005 | 770.0 |
Sketch
Property Image
Land
| 1 | 4120-1184L | | 0.0000 | 0.00 | 0.00 | 0.00 | 1.00 | $53,865 | $0 |
| 2 | 4120-1245S | | 0.0000 | 0.00 | 0.00 | 0.00 | 1.00 | $147,000 | $0 |
| 3 | 4120-1275S | | 0.0000 | 0.00 | 0.00 | 0.00 | 1.00 | $85,050 | $0 |
Roll Value History
| 2026 | N/A | N/A | N/A | N/A | N/A |
| 2025 | $463,955 | $285,915 | $0 | $749,870 | $749,870 |
| 2024 | $463,955 | $273,945 | $0 | $737,900 | $737,900 |
| 2023 | $442,866 | $255,900 | $0 | $698,766 | $698,766 |
| 2022 | $395,980 | $217,900 | $0 | $613,880 | $613,880 |
Deed and Sales History
| 1 | 09/03/2025 | QCD | Quit Claim Deed | MARGO C L JONES | M JONES & C CUSICK LIVING TRUST | | | | 144889 | |
| 2 | 10/20/2025 | QCD | Quit Claim Deed | MARGO C L JONES | M JONES & C CUSICK LIVING TRUST | | | | 145158 | CORRECTION |
| 3 | 07/23/2023 | SWD | Statutory Warranty Deed | SANDRA L SWEENEY | MARGO C L JONES | | | $800,000.00 | 141305 | |
| 4 | 10/16/2015 | PRD | Personal Representatives Deed | | | | | | 124196 | |
| 5 | 09/07/2000 | SWD | Statutory Warranty Deed | SUNSET INVESTMENT INC | RUTHERFORD, D/SWEENEY, S | 0 | 0 | $108,000.00 | 90572 | 0 |
| 6 | 08/18/2000 | SWD | Statutory Warranty Deed | SUNSET INVESTMENT INC | M B D TRUST | 0 | 0 | $0.00 | 90383 | 0 |
| 7 | 01/24/1997 | SWD | Statutory Warranty Deed | SETON, W E/MARILYN J | SUNSET INVESTMENT INC | 0 | 0 | $0.00 | 81270 | 0 |
| 8 | 04/21/1995 | SWD | Statutory Warranty Deed | SETON, W E/MARILYN J | SUNSET INVESTMENT INC | 0 | 0 | $1,200.00 | 76748 | 0 |
Payout Agreement
| No payout information available.. |