Property
Account |
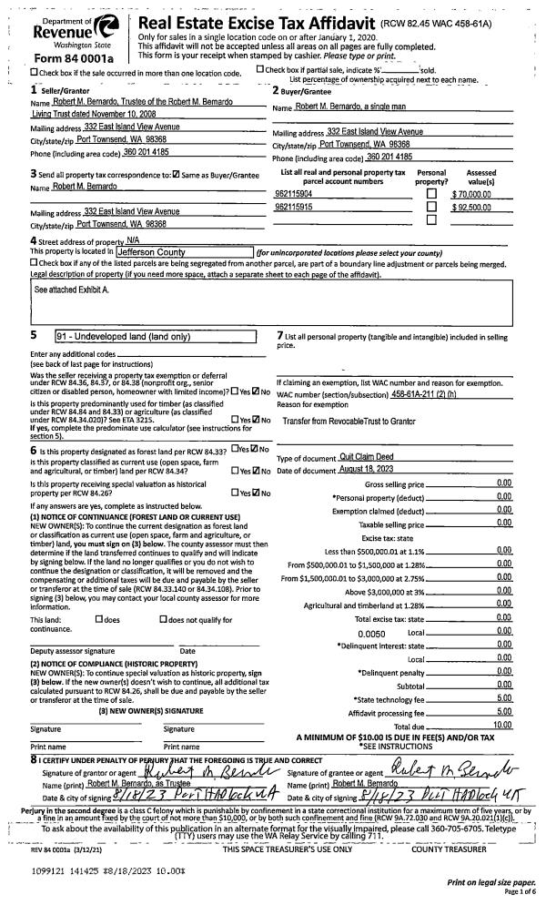
| Property ID: | 31986 | Abbreviated Legal Description: | IRONDALE #6 BLK 159 LOTS 16 THRU 20 |
| Parcel # / Geo ID: | 962115904 | Agent Code: | |
| Type: | Real | | |
| Tax Area: | 0211 - 1-49F1E1H2L1 | Land Use Code | 91 |
| Open Space: | N | DFL | N |
| Historic Property: | N | Remodel Property: | N |
| Multi-Family Redevelopment: | N | | |
| Township: | 30N | Section: | 35 |
| Range: | 1W |
Location |
| Address: | | Mapsco: | 054/017 |
| Neighborhood: | IRONDALE BLOCKS 100 - 179 (I.E. PROSPECT AVENUE AREA) | Map ID: | |
| Neighborhood CD: | 4120 |
Owner |
| Name: | ROBERT M BERNARDO | Owner ID: | 35020 |
| Mailing Address: | 332 E ISLAND VIEW AVE PORT TOWNSEND, WA 98368-2531 | % Ownership: | 100.0000000000% |
| | | Exemptions: | |
Pay Tax Due
Select the appropriate checkbox next to the year to be paid. Multiple years may be selected.
*Convenience Fee not included
Taxes and Assessment Details
Property Tax Information as of
03/11/2026
Click on "Statement Details" to expand or collapse a tax statement.
* Please enter a valid date ** Please enter a valid date *
Statement Details |
| 2026 | 21258 | STATE - STATE LEVY (SCHOOL) | $98.98 | $98.97 | $0.00 | $0.00 | $0.00 | $197.95 |
| 2026 | 21258 | COUNTY - COUNTY LEVIES (CE, DD, VET, MH) | $39.59 | $39.55 | $0.00 | $0.00 | $0.00 | $79.14 |
| 2026 | 21258 | CONSERVE - CONSERVATION FUTURES | $1.19 | $1.18 | $0.00 | $0.00 | $0.00 | $2.37 |
| 2026 | 21258 | COROADS - COUNTY ROADS (ROADS, DIV TO CE) | $31.92 | $31.92 | $0.00 | $0.00 | $0.00 | $63.84 |
| 2026 | 21258 | PORTPT - PORT DISTRICT | $15.99 | $15.97 | $0.00 | $0.00 | $0.00 | $31.96 |
| 2026 | 21258 | PUD1 - PUD #1 | $2.58 | $2.57 | $0.00 | $0.00 | $0.00 | $5.15 |
| 2026 | 21258 | LIB1 - LIBRARY DIST #1 | $12.35 | $12.35 | $0.00 | $0.00 | $0.00 | $24.70 |
| 2026 | 21258 | HD2 - HOSP DIST #2 | $2.31 | $2.31 | $0.00 | $0.00 | $0.00 | $4.62 |
| 2026 | 21258 | SD49 - SCHOOL DIST #49 | $54.48 | $54.48 | $0.00 | $0.00 | $0.00 | $108.96 |
| 2026 | 21258 | FD1 - FIRE DISTRICT #1 | $52.40 | $52.40 | $0.00 | $0.00 | $0.00 | $104.80 |
| 2026 | 21258 | EMS1 - FIRE DIST #1 EMS | $20.15 | $20.14 | $0.00 | $0.00 | $0.00 | $40.29 |
| 2026 | 21258 | JCCD - JC Conservation District | $2.53 | $2.53 | $0.00 | $0.00 | $0.00 | $5.06 |
| 2026 | 21258 | NWA - Noxious Weed Assessment | $2.98 | $2.97 | $0.00 | $0.00 | $0.00 | $5.95 |
| 2026 | 21258 | WAT - Clean Water District | $13.00 | $13.00 | $0.00 | $0.00 | $0.00 | $26.00 |
| 2026 | 21258 | TOTAL: | $350.45 | $350.34 | $0.00 | $0.00 | $0.00 | $700.79 |
|
| 2026 | 21258 | $350.45 | $350.34 | $0.00 | $0.00 | $0.00 | $700.79 |
Statement Details |
| 2025 | 21320 | STATE - STATE LEVY (SCHOOL) | $95.68 | $95.68 | $0.00 | $0.00 | $191.36 | $0.00 |
| 2025 | 21320 | COUNTY - COUNTY LEVIES (CE, DD, VET, MH) | $37.65 | $37.61 | $0.00 | $0.00 | $75.26 | $0.00 |
| 2025 | 21320 | CONSERVE - CONSERVATION FUTURES | $1.13 | $1.13 | $0.00 | $0.00 | $2.26 | $0.00 |
| 2025 | 21320 | COROADS - COUNTY ROADS (ROADS, DIV TO CE) | $30.15 | $30.14 | $0.00 | $0.00 | $60.29 | $0.00 |
| 2025 | 21320 | PORTPT - PORT DISTRICT | $15.36 | $15.35 | $0.00 | $0.00 | $30.71 | $0.00 |
| 2025 | 21320 | PUD1 - PUD #1 | $2.46 | $2.46 | $0.00 | $0.00 | $4.92 | $0.00 |
| 2025 | 21320 | LIB1 - LIBRARY DIST #1 | $11.67 | $11.66 | $0.00 | $0.00 | $23.33 | $0.00 |
| 2025 | 21320 | HD2 - HOSP DIST #2 | $2.20 | $2.19 | $0.00 | $0.00 | $4.39 | $0.00 |
| 2025 | 21320 | SD49 - SCHOOL DIST #49 | $51.29 | $51.27 | $0.00 | $0.00 | $102.56 | $0.00 |
| 2025 | 21320 | FD1 - FIRE DISTRICT #1 | $49.65 | $49.65 | $0.00 | $0.00 | $99.30 | $0.00 |
| 2025 | 21320 | EMS1 - FIRE DIST #1 EMS | $19.10 | $19.09 | $0.00 | $0.00 | $38.19 | $0.00 |
| 2025 | 21320 | JCCD - JC Conservation District | $2.53 | $2.53 | $0.00 | $0.00 | $5.06 | $0.00 |
| 2025 | 21320 | NWA - Noxious Weed Assessment | $2.15 | $2.15 | $0.00 | $0.00 | $4.30 | $0.00 |
| 2025 | 21320 | WAT - Clean Water District | $13.00 | $13.00 | $0.00 | $0.00 | $26.00 | $0.00 |
| 2025 | 21320 | TOTAL: | $334.02 | $333.91 | $0.00 | $0.00 | $667.93 | $0.00 |
|
| 2025 | 21320 | $334.02 | $333.91 | $0.00 | $0.00 | $667.93 | $0.00 |
Statement Details |
| 2024 | 21364 | STATE - STATE LEVY (SCHOOL) | $87.92 | $87.91 | $0.00 | $0.00 | $175.83 | $0.00 |
| 2024 | 21364 | COUNTY - COUNTY LEVIES (CE, DD, VET, MH) | $37.62 | $37.61 | $0.00 | $0.00 | $75.23 | $0.00 |
| 2024 | 21364 | CONSERVE - CONSERVATION FUTURES | $1.13 | $1.13 | $0.00 | $0.00 | $2.26 | $0.00 |
| 2024 | 21364 | COROADS - COUNTY ROADS (ROADS, DIV TO CE) | $30.27 | $30.27 | $0.00 | $0.00 | $60.54 | $0.00 |
| 2024 | 21364 | PORTPT - PORT DISTRICT | $15.55 | $15.53 | $0.00 | $0.00 | $31.08 | $0.00 |
| 2024 | 21364 | PUD1 - PUD #1 | $2.47 | $2.47 | $0.00 | $0.00 | $4.94 | $0.00 |
| 2024 | 21364 | LIB1 - LIBRARY DIST #1 | $11.71 | $11.71 | $0.00 | $0.00 | $23.42 | $0.00 |
| 2024 | 21364 | HD2 - HOSP DIST #2 | $2.20 | $2.19 | $0.00 | $0.00 | $4.39 | $0.00 |
| 2024 | 21364 | SD49 - SCHOOL DIST #49 | $39.27 | $39.25 | $0.00 | $0.00 | $78.52 | $0.00 |
| 2024 | 21364 | FD1 - FIRE DISTRICT #1 | $49.75 | $49.74 | $0.00 | $0.00 | $99.49 | $0.00 |
| 2024 | 21364 | EMS1 - FIRE DIST #1 EMS | $19.00 | $19.00 | $0.00 | $0.00 | $38.00 | $0.00 |
| 2024 | 21364 | JCCD - JC Conservation District | $2.53 | $2.53 | $0.00 | $0.00 | $5.06 | $0.00 |
| 2024 | 21364 | NWA - Noxious Weed Assessment | $2.15 | $2.15 | $0.00 | $0.00 | $4.30 | $0.00 |
| 2024 | 21364 | WAT - Clean Water District | $12.50 | $12.50 | $0.00 | $0.00 | $25.00 | $0.00 |
| 2024 | 21364 | TOTAL: | $314.07 | $313.99 | $0.00 | $0.00 | $628.06 | $0.00 |
|
| 2024 | 21364 | $314.07 | $313.99 | $0.00 | $0.00 | $628.06 | $0.00 |
Statement Details |
| 2023 | 21401 | STATE - STATE LEVY (SCHOOL) | $82.40 | $82.39 | $0.00 | $0.00 | $164.79 | $0.00 |
| 2023 | 21401 | COUNTY - COUNTY LEVIES (CE, DD, VET, MH) | $35.97 | $35.94 | $0.00 | $0.00 | $71.91 | $0.00 |
| 2023 | 21401 | CONSERVE - CONSERVATION FUTURES | $1.08 | $1.08 | $0.00 | $0.00 | $2.16 | $0.00 |
| 2023 | 21401 | COROADS - COUNTY ROADS (ROADS, DIV TO CE) | $29.10 | $29.08 | $0.00 | $0.00 | $58.18 | $0.00 |
| 2023 | 21401 | PORTPT - PORT DISTRICT | $15.15 | $15.14 | $0.00 | $0.00 | $30.29 | $0.00 |
| 2023 | 21401 | PUD1 - PUD #1 | $2.39 | $2.38 | $0.00 | $0.00 | $4.77 | $0.00 |
| 2023 | 21401 | LIB1 - LIBRARY DIST #1 | $11.26 | $11.25 | $0.00 | $0.00 | $22.51 | $0.00 |
| 2023 | 21401 | HD2 - HOSP DIST #2 | $2.10 | $2.09 | $0.00 | $0.00 | $4.19 | $0.00 |
| 2023 | 21401 | SD49 - SCHOOL DIST #49 | $38.52 | $38.51 | $0.00 | $0.00 | $77.03 | $0.00 |
| 2023 | 21401 | FD1 - FIRE DISTRICT #1 | $29.62 | $29.62 | $0.00 | $0.00 | $59.24 | $0.00 |
| 2023 | 21401 | EMS1 - FIRE DIST #1 EMS | $12.60 | $12.60 | $0.00 | $0.00 | $25.20 | $0.00 |
| 2023 | 21401 | JCCD - JC Conservation District | $2.53 | $2.53 | $0.00 | $0.00 | $5.06 | $0.00 |
| 2023 | 21401 | NWA - Noxious Weed Assessment | $2.15 | $2.15 | $0.00 | $0.00 | $4.30 | $0.00 |
| 2023 | 21401 | WAT - Clean Water District | $12.00 | $12.00 | $0.00 | $0.00 | $24.00 | $0.00 |
| 2023 | 21401 | TOTAL: | $276.87 | $276.76 | $0.00 | $0.00 | $553.63 | $0.00 |
|
| 2023 | 21401 | $276.87 | $276.76 | $0.00 | $0.00 | $553.63 | $0.00 |
Values
| (+) Improvement Homesite Value: | + | $0 | |
| (+) Improvement Non-Homesite Value: | + | $0 | |
| (+) Land Homesite Value: | + | $0 | |
| (+) Land Non-Homesite Value: | + | $86,100 | |
| (+) Curr Use (HS): | + | $0 | $0 |
| (+) Curr Use (NHS): | + | $0 | $0 |
| | | -------------------------- | |
| (=) Market Value: | = | $86,100 | |
| (–) Productivity Loss: | – | $0 | |
| | | -------------------------- | |
| (=) Subtotal: | = | $86,100 | |
| (+) Senior Appraised Value: | + | $0 | |
| (+) Non-Senior Appraised Value: | + | $86,100 | |
| | | -------------------------- | |
| (=) Total Appraised Value: | = | $86,100 | |
| (–) Senior Exemption Loss: | – | $0 | |
| (–) Exemption Loss: | – | $0 | |
| | | -------------------------- | |
| (=) Taxable Value: | = | $86,100 | |
Taxing Jurisdiction
| Owner: | ROBERT M BERNARDO | | |
| % Ownership: | 100.0000000000% | | |
| Total Value: | N/A | | |
| Tax Area: | 0211 - 1-49F1E1H2L1 |
| CE | COUNTY CURRENT EXPENSE | N/A | N/A | N/A | N/A | | |
| CNTYDD | DEVELOPMENTAL DISABILITIES | N/A | N/A | N/A | N/A | | |
| CNTYVET | VETERANS RELIEF | N/A | N/A | N/A | N/A | | |
| MENTAL | MENTAL HEALTH | N/A | N/A | N/A | N/A | | |
| ROADS | COUNTY ROADS | N/A | N/A | N/A | N/A | | |
| HOSP2CASH | HOSP DIST #2 GENERAL | N/A | N/A | N/A | N/A | | |
| SCH49CP | SCHOOL DIST #49 CAP PROJ | N/A | N/A | N/A | N/A | | |
| SCH49MO | SCHOOL DIST #49 EP & O | N/A | N/A | N/A | N/A | | |
| CONSERVE | CONSERVATION FUTURES | N/A | N/A | N/A | N/A | | |
| EMS1 | FIRE DIST #1 EMS | N/A | N/A | N/A | N/A | | |
| FD1 | FIRE DIST #1 GENERAL | N/A | N/A | N/A | N/A | | |
| LIB1 | LIBRARY DIST #1 GENERAL | N/A | N/A | N/A | N/A | | |
| PORTPT | PORT OF PT GENERAL | N/A | N/A | N/A | N/A | | |
| PORTPTIDD | PORT OF PT IDD 2019 | N/A | N/A | N/A | N/A | | |
| PUD1 | PUD #1 GENERAL | N/A | N/A | N/A | N/A | | |
| STATE | STATE SCHOOL PART 1 | N/A | N/A | N/A | N/A | | |
| STATE2 | STATE SCHOOL PART 2 | N/A | N/A | N/A | N/A | | |
| | Total Tax Rate: | N/A | | | | | |
| | | | | Taxes w/Current Exemptions: | N/A | | |
| | | | | Taxes w/o Exemptions: | N/A | | |
Improvement / Building
Sketch
| No sketches available for this property. |
Property Image
Land
| 1 | 4120-1245S | | 0.0000 | 0.00 | 0.00 | 0.00 | 1.00 | $57,750 | $0 |
| 2 | 4120-1184L | | 0.0000 | 0.00 | 0.00 | 0.00 | 3.00 | $28,350 | $0 |
Roll Value History
| 2026 | N/A | N/A | N/A | N/A | N/A |
| 2025 | $0 | $86,100 | $0 | $86,100 | $86,100 |
| 2024 | $0 | $79,800 | $0 | $79,800 | $79,800 |
| 2023 | $0 | $76,000 | $0 | $76,000 | $76,000 |
| 2022 | $0 | $70,000 | $0 | $70,000 | $70,000 |
Deed and Sales History
| 1 | 08/18/2023 | QCD | Quit Claim Deed | ROBERT M BERNARDO LIVING TRUST | ROBERT M BERNARDO | | | | 141425 | |
| 2 | 08/30/2021 | SWD | Statutory Warranty Deed | AMELIA ENLOW SILVESTRE TRSTE | ROBERT M BERNARDO LIVING TRUST | | | $150,000.00 | 137674 | |
|   | |
| 3 | 12/17/1997 | QCD | Quit Claim Deed | ENLOW FAMILY '94 TRUST | COMSTOCK IRREVOCABLE TRUST | 0 | 0 | $0.00 | 83458 | 0 |
| 4 | 12/17/1997 | QCD | Quit Claim Deed | ENLOW FAMILY '94 TRUST | SILVESTRE IRREVOCABLE TRUST | 0 | 0 | $0.00 | 83459 | 0 |
Payout Agreement
| No payout information available.. |