Property
Account |
| Property ID: | 32043 | Abbreviated Legal Description: | IRONDALE AC TRACTS TRACT J BND TGTH THRU BLA#108158 SURVEY V31P124 |
| Parcel # / Geo ID: | 962700028 | Agent Code: | |
| Type: | Real | | |
| Tax Area: | 0211 - 1-49F1E1H2L1 | Land Use Code | 11 |
| Open Space: | N | DFL | N |
| Historic Property: | N | Remodel Property: | N |
| Multi-Family Redevelopment: | N | | |
| Township: | 29N | Section: | 13 |
| Range: | 1W |
Location |
| Address: | 182 KINGFISHER PL PORT HADLOCK, WA 98339 | Mapsco: | 055/079 |
| Neighborhood: | IRONDALE ACRE TRACTS - TRACTS 1 THRU 78 | Map ID: | |
| Neighborhood CD: | 4255 |
Owner |
| Name: | ANTHONY & ALISON CLARK | Owner ID: | 107885 |
| Mailing Address: | 182 KINGFISHER PL PORT HADLOCK, WA 98339 | % Ownership: | 100.0000000000% |
| | | Exemptions: | |
Pay Tax Due
Select the appropriate checkbox next to the year to be paid. Multiple years may be selected.
*Convenience Fee not included
Taxes and Assessment Details
Property Tax Information as of
03/10/2026
Click on "Statement Details" to expand or collapse a tax statement.
* Please enter a valid date ** Please enter a valid date *
Statement Details |
| 2026 | 21315 | STATE - STATE LEVY (SCHOOL) | $680.94 | $680.94 | $0.00 | $0.00 | $0.00 | $1361.88 |
| 2026 | 21315 | COUNTY - COUNTY LEVIES (CE, DD, VET, MH) | $272.26 | $272.22 | $0.00 | $0.00 | $0.00 | $544.48 |
| 2026 | 21315 | CONSERVE - CONSERVATION FUTURES | $8.17 | $8.16 | $0.00 | $0.00 | $0.00 | $16.33 |
| 2026 | 21315 | COROADS - COUNTY ROADS (ROADS, DIV TO CE) | $219.62 | $219.62 | $0.00 | $0.00 | $0.00 | $439.24 |
| 2026 | 21315 | PORTPT - PORT DISTRICT | $109.96 | $109.94 | $0.00 | $0.00 | $0.00 | $219.90 |
| 2026 | 21315 | PUD1 - PUD #1 | $17.71 | $17.71 | $0.00 | $0.00 | $0.00 | $35.42 |
| 2026 | 21315 | LIB1 - LIBRARY DIST #1 | $84.97 | $84.97 | $0.00 | $0.00 | $0.00 | $169.94 |
| 2026 | 21315 | HD2 - HOSP DIST #2 | $15.88 | $15.87 | $0.00 | $0.00 | $0.00 | $31.75 |
| 2026 | 21315 | SD49 - SCHOOL DIST #49 | $374.84 | $374.82 | $0.00 | $0.00 | $0.00 | $749.66 |
| 2026 | 21315 | FD1 - FIRE DISTRICT #1 | $360.51 | $360.50 | $0.00 | $0.00 | $0.00 | $721.01 |
| 2026 | 21315 | EMS1 - FIRE DIST #1 EMS | $138.61 | $138.61 | $0.00 | $0.00 | $0.00 | $277.22 |
| 2026 | 21315 | FP - DNR Forest Fire Protection Assmt | $8.50 | $8.50 | $0.00 | $0.00 | $0.00 | $17.00 |
| 2026 | 21315 | FPLCA - DNR Landowner Contingency Assmt | $3.00 | $3.00 | $0.00 | $0.00 | $0.00 | $6.00 |
| 2026 | 21315 | JCCD - JC Conservation District | $2.75 | $2.75 | $0.00 | $0.00 | $0.00 | $5.50 |
| 2026 | 21315 | NWA - Noxious Weed Assessment | $3.88 | $3.87 | $0.00 | $0.00 | $0.00 | $7.75 |
| 2026 | 21315 | OSS - On Site Septic | $23.10 | $23.10 | $0.00 | $0.00 | $0.00 | $46.20 |
| 2026 | 21315 | WAT - Clean Water District | $13.00 | $13.00 | $0.00 | $0.00 | $0.00 | $26.00 |
| 2026 | 21315 | FP ADMIN - FP ADMIN | $0.50 | $0.00 | $0.00 | $0.00 | $0.00 | $0.50 |
| 2026 | 21315 | TOTAL: | $2338.20 | $2337.58 | $0.00 | $0.00 | $0.00 | $4675.78 |
|
| 2026 | 21315 | $2338.20 | $2337.58 | $0.00 | $0.00 | $0.00 | $4675.78 |
Statement Details |
| 2025 | 21377 | STATE - STATE LEVY (SCHOOL) | $678.94 | $678.93 | $0.00 | $0.00 | $1357.87 | $0.00 |
| 2025 | 21377 | COUNTY - COUNTY LEVIES (CE, DD, VET, MH) | $266.99 | $266.98 | $0.00 | $0.00 | $533.97 | $0.00 |
| 2025 | 21377 | CONSERVE - CONSERVATION FUTURES | $8.01 | $8.00 | $0.00 | $0.00 | $16.01 | $0.00 |
| 2025 | 21377 | COROADS - COUNTY ROADS (ROADS, DIV TO CE) | $213.90 | $213.89 | $0.00 | $0.00 | $427.79 | $0.00 |
| 2025 | 21377 | PORTPT - PORT DISTRICT | $108.95 | $108.94 | $0.00 | $0.00 | $217.89 | $0.00 |
| 2025 | 21377 | PUD1 - PUD #1 | $17.47 | $17.47 | $0.00 | $0.00 | $34.94 | $0.00 |
| 2025 | 21377 | LIB1 - LIBRARY DIST #1 | $82.76 | $82.75 | $0.00 | $0.00 | $165.51 | $0.00 |
| 2025 | 21377 | HD2 - HOSP DIST #2 | $15.58 | $15.57 | $0.00 | $0.00 | $31.15 | $0.00 |
| 2025 | 21377 | SD49 - SCHOOL DIST #49 | $363.87 | $363.86 | $0.00 | $0.00 | $727.73 | $0.00 |
| 2025 | 21377 | FD1 - FIRE DISTRICT #1 | $352.32 | $352.31 | $0.00 | $0.00 | $704.63 | $0.00 |
| 2025 | 21377 | EMS1 - FIRE DIST #1 EMS | $135.51 | $135.51 | $0.00 | $0.00 | $271.02 | $0.00 |
| 2025 | 21377 | FP - DNR Forest Fire Protection Assmt | $8.50 | $8.50 | $0.00 | $0.00 | $17.00 | $0.00 |
| 2025 | 21377 | FPLCA - DNR Landowner Contingency Assmt | $3.00 | $3.00 | $0.00 | $0.00 | $6.00 | $0.00 |
| 2025 | 21377 | JCCD - JC Conservation District | $2.75 | $2.75 | $0.00 | $0.00 | $5.50 | $0.00 |
| 2025 | 21377 | NWA - Noxious Weed Assessment | $2.75 | $2.75 | $0.00 | $0.00 | $5.50 | $0.00 |
| 2025 | 21377 | OSS - On Site Septic | $21.50 | $21.50 | $0.00 | $0.00 | $43.00 | $0.00 |
| 2025 | 21377 | WAT - Clean Water District | $13.00 | $13.00 | $0.00 | $0.00 | $26.00 | $0.00 |
| 2025 | 21377 | FP ADMIN - FP ADMIN | $0.50 | $0.00 | $0.00 | $0.00 | $0.50 | $0.00 |
| 2025 | 21377 | TOTAL: | $2296.30 | $2295.71 | $0.00 | $0.00 | $4592.01 | $0.00 |
|
| 2025 | 21377 | $2296.30 | $2295.71 | $0.00 | $0.00 | $4592.01 | $0.00 |
Statement Details |
| 2024 | 21421 | STATE - STATE LEVY (SCHOOL) | $616.14 | $616.12 | $0.00 | $0.00 | $1232.26 | $0.00 |
| 2024 | 21421 | COUNTY - COUNTY LEVIES (CE, DD, VET, MH) | $263.66 | $263.64 | $0.00 | $0.00 | $527.30 | $0.00 |
| 2024 | 21421 | CONSERVE - CONSERVATION FUTURES | $7.91 | $7.90 | $0.00 | $0.00 | $15.81 | $0.00 |
| 2024 | 21421 | COROADS - COUNTY ROADS (ROADS, DIV TO CE) | $212.15 | $212.15 | $0.00 | $0.00 | $424.30 | $0.00 |
| 2024 | 21421 | PORTPT - PORT DISTRICT | $108.91 | $108.89 | $0.00 | $0.00 | $217.80 | $0.00 |
| 2024 | 21421 | PUD1 - PUD #1 | $17.32 | $17.31 | $0.00 | $0.00 | $34.63 | $0.00 |
| 2024 | 21421 | LIB1 - LIBRARY DIST #1 | $82.08 | $82.08 | $0.00 | $0.00 | $164.16 | $0.00 |
| 2024 | 21421 | HD2 - HOSP DIST #2 | $15.39 | $15.38 | $0.00 | $0.00 | $30.77 | $0.00 |
| 2024 | 21421 | SD49 - SCHOOL DIST #49 | $275.14 | $275.12 | $0.00 | $0.00 | $550.26 | $0.00 |
| 2024 | 21421 | FD1 - FIRE DISTRICT #1 | $348.61 | $348.60 | $0.00 | $0.00 | $697.21 | $0.00 |
| 2024 | 21421 | EMS1 - FIRE DIST #1 EMS | $133.16 | $133.15 | $0.00 | $0.00 | $266.31 | $0.00 |
| 2024 | 21421 | FP - DNR Forest Fire Protection Assmt | $8.50 | $8.50 | $0.00 | $0.00 | $17.00 | $0.00 |
| 2024 | 21421 | FPLCA - DNR Landowner Contingency Assmt | $3.00 | $3.00 | $0.00 | $0.00 | $6.00 | $0.00 |
| 2024 | 21421 | JCCD - JC Conservation District | $2.75 | $2.75 | $0.00 | $0.00 | $5.50 | $0.00 |
| 2024 | 21421 | NWA - Noxious Weed Assessment | $2.75 | $2.75 | $0.00 | $0.00 | $5.50 | $0.00 |
| 2024 | 21421 | OSS - On Site Septic | $21.00 | $21.00 | $0.00 | $0.00 | $42.00 | $0.00 |
| 2024 | 21421 | WAT - Clean Water District | $12.50 | $12.50 | $0.00 | $0.00 | $25.00 | $0.00 |
| 2024 | 21421 | FP ADMIN - FP ADMIN | $0.50 | $0.00 | $0.00 | $0.00 | $0.50 | $0.00 |
| 2024 | 21421 | TOTAL: | $2131.47 | $2130.84 | $0.00 | $0.00 | $4262.31 | $0.00 |
|
| 2024 | 21421 | $2131.47 | $2130.84 | $0.00 | $0.00 | $4262.31 | $0.00 |
Statement Details |
| 2023 | 21458 | STATE - STATE LEVY (SCHOOL) | $408.45 | $408.43 | $0.00 | $0.00 | $816.88 | $0.00 |
| 2023 | 21458 | COUNTY - COUNTY LEVIES (CE, DD, VET, MH) | $178.23 | $178.22 | $0.00 | $0.00 | $356.45 | $0.00 |
| 2023 | 21458 | CONSERVE - CONSERVATION FUTURES | $5.35 | $5.34 | $0.00 | $0.00 | $10.69 | $0.00 |
| 2023 | 21458 | COROADS - COUNTY ROADS (ROADS, DIV TO CE) | $144.21 | $144.20 | $0.00 | $0.00 | $288.41 | $0.00 |
| 2023 | 21458 | PORTPT - PORT DISTRICT | $75.09 | $75.07 | $0.00 | $0.00 | $150.16 | $0.00 |
| 2023 | 21458 | PUD1 - PUD #1 | $11.82 | $11.81 | $0.00 | $0.00 | $23.63 | $0.00 |
| 2023 | 21458 | LIB1 - LIBRARY DIST #1 | $55.79 | $55.79 | $0.00 | $0.00 | $111.58 | $0.00 |
| 2023 | 21458 | HD2 - HOSP DIST #2 | $10.41 | $10.39 | $0.00 | $0.00 | $20.80 | $0.00 |
| 2023 | 21458 | SD49 - SCHOOL DIST #49 | $190.93 | $190.91 | $0.00 | $0.00 | $381.84 | $0.00 |
| 2023 | 21458 | FD1 - FIRE DISTRICT #1 | $146.83 | $146.82 | $0.00 | $0.00 | $293.65 | $0.00 |
| 2023 | 21458 | EMS1 - FIRE DIST #1 EMS | $62.46 | $62.45 | $0.00 | $0.00 | $124.91 | $0.00 |
| 2023 | 21458 | FP - DNR Forest Fire Protection Assmt | $8.50 | $8.50 | $0.00 | $0.00 | $17.00 | $0.00 |
| 2023 | 21458 | FPLCA - DNR Landowner Contingency Assmt | $3.00 | $3.00 | $0.00 | $0.00 | $6.00 | $0.00 |
| 2023 | 21458 | JCCD - JC Conservation District | $2.75 | $2.75 | $0.00 | $0.00 | $5.50 | $0.00 |
| 2023 | 21458 | NWA - Noxious Weed Assessment | $2.75 | $2.75 | $0.00 | $0.00 | $5.50 | $0.00 |
| 2023 | 21458 | OSS - On Site Septic | $20.50 | $20.50 | $0.00 | $0.00 | $41.00 | $0.00 |
| 2023 | 21458 | WAT - Clean Water District | $12.00 | $12.00 | $0.00 | $0.00 | $24.00 | $0.00 |
| 2023 | 21458 | FP ADMIN - FP ADMIN | $0.50 | $0.00 | $0.00 | $0.00 | $0.50 | $0.00 |
| 2023 | 21458 | TOTAL: | $1339.57 | $1338.93 | $0.00 | $0.00 | $2678.50 | $0.00 |
|
| 2023 | 21458 | $1339.57 | $1338.93 | $0.00 | $0.00 | $2678.50 | $0.00 |
Values
| (+) Improvement Homesite Value: | + | $0 | |
| (+) Improvement Non-Homesite Value: | + | $410,617 | |
| (+) Land Homesite Value: | + | $0 | |
| (+) Land Non-Homesite Value: | + | $181,738 | |
| (+) Curr Use (HS): | + | $0 | $0 |
| (+) Curr Use (NHS): | + | $0 | $0 |
| | | -------------------------- | |
| (=) Market Value: | = | $592,355 | |
| (–) Productivity Loss: | – | $0 | |
| | | -------------------------- | |
| (=) Subtotal: | = | $592,355 | |
| (+) Senior Appraised Value: | + | $0 | |
| (+) Non-Senior Appraised Value: | + | $592,355 | |
| | | -------------------------- | |
| (=) Total Appraised Value: | = | $592,355 | |
| (–) Senior Exemption Loss: | – | $0 | |
| (–) Exemption Loss: | – | $0 | |
| | | -------------------------- | |
| (=) Taxable Value: | = | $592,355 | |
Taxing Jurisdiction
| Owner: | ANTHONY & ALISON CLARK | | |
| % Ownership: | 100.0000000000% | | |
| Total Value: | $592,355 | | |
| Tax Area: | 0211 - 1-49F1E1H2L1 |
| CE | COUNTY CURRENT EXPENSE | 0.9034619479 | $592,355 | $592,355 | $535.17 | | |
| CNTYDD | DEVELOPMENTAL DISABILITIES | 0.0052121823 | $592,355 | $592,355 | $3.09 | | |
| CNTYVET | VETERANS RELIEF | 0.0052777810 | $592,355 | $592,355 | $3.13 | | |
| MENTAL | MENTAL HEALTH | 0.0052121823 | $592,355 | $592,355 | $3.09 | | |
| ROADS | COUNTY ROADS | 0.7415066410 | $592,355 | $592,355 | $439.24 | | |
| ROADSCU | COUNTY ROADS TO CUR EXP | 0.0000000000 | $592,355 | $592,355 | $0.00 | | |
| HOSP2CASH | HOSP DIST #2 GENERAL | 0.0536075306 | $592,355 | $592,355 | $31.75 | | |
| SCH49CP | SCHOOL DIST #49 CAP PROJ | 0.6279093905 | $592,355 | $592,355 | $371.95 | | |
| SCH49MO | SCHOOL DIST #49 EP & O | 0.6376483602 | $592,355 | $592,355 | $377.71 | | |
| CONSERVE | CONSERVATION FUTURES | 0.0275621078 | $592,355 | $592,355 | $16.33 | | |
| EMS1 | FIRE DIST #1 EMS | 0.4679948282 | $592,355 | $592,355 | $277.22 | | |
| FD1 | FIRE DIST #1 GENERAL | 1.2171942929 | $592,355 | $592,355 | $721.01 | | |
| LIB1 | LIBRARY DIST #1 GENERAL | 0.2868827388 | $592,355 | $592,355 | $169.94 | | |
| PORTPT | PORT OF PT GENERAL | 0.1134941229 | $592,355 | $592,355 | $67.23 | | |
| PORTPTIDD | PORT OF PT IDD 2019 | 0.2577346692 | $592,355 | $592,355 | $152.67 | | |
| PUD1 | PUD #1 GENERAL | 0.0597888892 | $592,355 | $592,355 | $35.42 | | |
| STATE | STATE SCHOOL PART 1 | 1.4940692947 | $592,355 | $592,355 | $885.02 | | |
| STATE2 | STATE SCHOOL PART 2 | 0.8050170049 | $592,355 | $592,355 | $476.86 | | |
| | Total Tax Rate: | 7.7095739644 | | | | | |
| | | | | Taxes w/Current Exemptions: | $4,566.83 | | |
| | | | | Taxes w/o Exemptions: | $4,566.83 | | |
Improvement / Building
| Improvement #1: | Residential Bldg | State Code: | 11 | 1030.0 sqft | Value: | $410,617 |
| Bathrooms (#): | 1 (FULL) | Exterior Wall: | SI/ST | | Foundation: | CONPR | Heating/Cooling: | ELBB | | Inside Verify: | YES | Roof Cover: | METAL |
|
| | Type | Description | Class CD | Sub Class CD | Year Built | Area |
| | MA | Main Area | 5 | 1S | 2014 | 1030.0 |
| | GDET | Detached Garage | 5 | 1S | 2014 | 672.0 |
| | HWPOR | House Wood Porch | 5 | 1S | 2014 | 45.0 |
| | HDECK | House Deck | 5 | 1S | 2014 | 360.0 |
| | SHED | Shed (Table Not Dep) | 5 | 1S | 2014 | 224.0 |
| | SHED | Shed (Table Not Dep) | 4 | 1S | 2014 | 112.0 |
Sketch
Property Image
Land
| 1 | 4255-1365S | | 1.0000 | 43560.00 | 0.00 | 0.00 | 1.00 | $132,000 | $0 |
| 2 | 1572A | | 3.1400 | 136778.40 | 0.00 | 0.00 | 0.00 | $49,738 | $0 |
Roll Value History
| 2026 | N/A | N/A | N/A | N/A | N/A |
| 2025 | $410,617 | $181,738 | $0 | $592,355 | $592,355 |
| 2024 | $392,764 | $173,477 | $0 | $566,241 | $566,241 |
| 2023 | $374,911 | $157,704 | $0 | $532,615 | $532,615 |
| 2022 | $231,113 | $115,881 | $0 | $346,994 | $346,994 |
Deed and Sales History
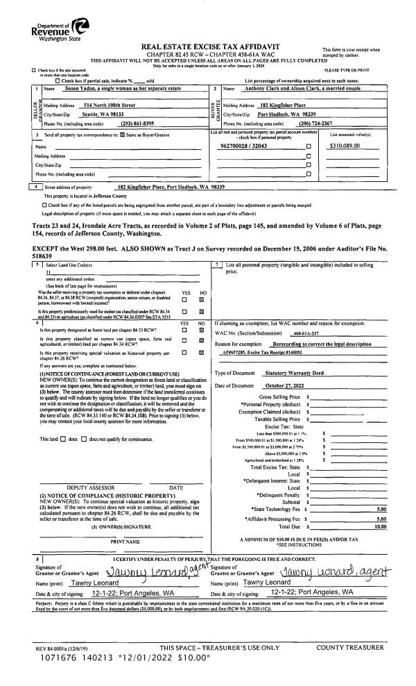
| 1 | 10/27/2022 | SWD | Statutory Warranty Deed | SUSAN YADON | ANTHONY & ALISON CLARK | | | $530,000.00 | 140052 | |
| 2 | 10/27/2022 | SWD | Statutory Warranty Deed | SUSAN YADON | ANTHONY & ALISON CLARK | | | | 140213 | |
| 3 | 11/08/2007 | SWD | Statutory Warranty Deed | TUKEY INVESTMENTS LLC | YADON, SUSAN | 0 | 0 | $99,500.00 | 110398 | 0 |
| 4 | 11/01/2007 | QCD | Quit Claim Deed | YADON, TOM F | YADON, SUSAN | 0 | 0 | $0.00 | 110399 | 0 |
| 5 | 09/29/2006 | BLA | Boundary Line Adjustment | TUKEY INVESTMENTS LLC | ROTH, DOUGLAS | 0 | 0 | $0.00 | 108158 | 0 |
| 6 | 09/29/2006 | BLA | Boundary Line Adjustment | TUKEY INVESTMENTS LLC | TUKEY INVESTMENTS LLC | 0 | 0 | $0.00 | 108075 | 0 |
Payout Agreement
| No payout information available.. |