Property
Account |
| Property ID: | 32084 | Abbreviated Legal Description: | IRONDALE AC TRACTS TRACT 69 W/PTN VAC GRANT ST ADJ RES#22-02 |
| Parcel # / Geo ID: | 962700070 | Agent Code: | |
| Type: | Real | | |
| Tax Area: | 0211 - 1-49F1E1H2L1 | Land Use Code | 91 |
| Open Space: | N | DFL | N |
| Historic Property: | N | Remodel Property: | N |
| Multi-Family Redevelopment: | N | | |
| Township: | 29N | Section: | 7 |
| Range: | 1E |
Location |
| Address: | | Mapsco: | 056/009 |
| Neighborhood: | IRONDALE ACRE TRACTS - TRACTS 1 THRU 78 | Map ID: | |
| Neighborhood CD: | 4255 |
Owner |
| Name: | JEREMY ELGIN LALA | Owner ID: | 96823 |
| Mailing Address: | SARAH KATHERINE McHUGH 320 SUNSET BLVD PORT TOWNSEND, WA 98368-9443 | % Ownership: | 100.0000000000% |
| | | Exemptions: | |
Pay Tax Due
Select the appropriate checkbox next to the year to be paid. Multiple years may be selected.
*Convenience Fee not included
Taxes and Assessment Details
Property Tax Information as of
03/12/2026
Click on "Statement Details" to expand or collapse a tax statement.
* Please enter a valid date ** Please enter a valid date *
Statement Details |
| 2026 | 21356 | STATE - STATE LEVY (SCHOOL) | $235.58 | $235.57 | $0.00 | $0.00 | $0.00 | $471.15 |
| 2026 | 21356 | COUNTY - COUNTY LEVIES (CE, DD, VET, MH) | $94.20 | $94.17 | $0.00 | $0.00 | $0.00 | $188.37 |
| 2026 | 21356 | CONSERVE - CONSERVATION FUTURES | $2.83 | $2.82 | $0.00 | $0.00 | $0.00 | $5.65 |
| 2026 | 21356 | COROADS - COUNTY ROADS (ROADS, DIV TO CE) | $75.98 | $75.98 | $0.00 | $0.00 | $0.00 | $151.96 |
| 2026 | 21356 | PORTPT - PORT DISTRICT | $38.04 | $38.04 | $0.00 | $0.00 | $0.00 | $76.08 |
| 2026 | 21356 | PUD1 - PUD #1 | $6.13 | $6.12 | $0.00 | $0.00 | $0.00 | $12.25 |
| 2026 | 21356 | LIB1 - LIBRARY DIST #1 | $29.40 | $29.39 | $0.00 | $0.00 | $0.00 | $58.79 |
| 2026 | 21356 | HD2 - HOSP DIST #2 | $5.50 | $5.49 | $0.00 | $0.00 | $0.00 | $10.99 |
| 2026 | 21356 | SD49 - SCHOOL DIST #49 | $129.68 | $129.67 | $0.00 | $0.00 | $0.00 | $259.35 |
| 2026 | 21356 | FD1 - FIRE DISTRICT #1 | $124.72 | $124.72 | $0.00 | $0.00 | $0.00 | $249.44 |
| 2026 | 21356 | EMS1 - FIRE DIST #1 EMS | $47.96 | $47.95 | $0.00 | $0.00 | $0.00 | $95.91 |
| 2026 | 21356 | FP - DNR Forest Fire Protection Assmt | $8.50 | $8.50 | $0.00 | $0.00 | $0.00 | $17.00 |
| 2026 | 21356 | FPLCA - DNR Landowner Contingency Assmt | $3.00 | $3.00 | $0.00 | $0.00 | $0.00 | $6.00 |
| 2026 | 21356 | JCCD - JC Conservation District | $2.69 | $2.69 | $0.00 | $0.00 | $0.00 | $5.38 |
| 2026 | 21356 | NWA - Noxious Weed Assessment | $3.88 | $3.87 | $0.00 | $0.00 | $0.00 | $7.75 |
| 2026 | 21356 | WAT - Clean Water District | $13.00 | $13.00 | $0.00 | $0.00 | $0.00 | $26.00 |
| 2026 | 21356 | FP ADMIN - FP ADMIN | $0.50 | $0.00 | $0.00 | $0.00 | $0.00 | $0.50 |
| 2026 | 21356 | TOTAL: | $821.59 | $820.98 | $0.00 | $0.00 | $0.00 | $1642.57 |
|
| 2026 | 21356 | $821.59 | $820.98 | $0.00 | $0.00 | $0.00 | $1642.57 |
Statement Details |
| 2025 | 21418 | STATE - STATE LEVY (SCHOOL) | $234.55 | $234.54 | $0.00 | $0.00 | $469.09 | $0.00 |
| 2025 | 21418 | COUNTY - COUNTY LEVIES (CE, DD, VET, MH) | $92.23 | $92.23 | $0.00 | $0.00 | $184.46 | $0.00 |
| 2025 | 21418 | CONSERVE - CONSERVATION FUTURES | $2.77 | $2.76 | $0.00 | $0.00 | $5.53 | $0.00 |
| 2025 | 21418 | COROADS - COUNTY ROADS (ROADS, DIV TO CE) | $73.89 | $73.89 | $0.00 | $0.00 | $147.78 | $0.00 |
| 2025 | 21418 | PORTPT - PORT DISTRICT | $37.64 | $37.64 | $0.00 | $0.00 | $75.28 | $0.00 |
| 2025 | 21418 | PUD1 - PUD #1 | $6.04 | $6.03 | $0.00 | $0.00 | $12.07 | $0.00 |
| 2025 | 21418 | LIB1 - LIBRARY DIST #1 | $28.59 | $28.59 | $0.00 | $0.00 | $57.18 | $0.00 |
| 2025 | 21418 | HD2 - HOSP DIST #2 | $5.38 | $5.38 | $0.00 | $0.00 | $10.76 | $0.00 |
| 2025 | 21418 | SD49 - SCHOOL DIST #49 | $125.71 | $125.70 | $0.00 | $0.00 | $251.41 | $0.00 |
| 2025 | 21418 | FD1 - FIRE DISTRICT #1 | $121.72 | $121.71 | $0.00 | $0.00 | $243.43 | $0.00 |
| 2025 | 21418 | EMS1 - FIRE DIST #1 EMS | $46.82 | $46.81 | $0.00 | $0.00 | $93.63 | $0.00 |
| 2025 | 21418 | FP - DNR Forest Fire Protection Assmt | $8.50 | $8.50 | $0.00 | $0.00 | $17.00 | $0.00 |
| 2025 | 21418 | FPLCA - DNR Landowner Contingency Assmt | $3.00 | $3.00 | $0.00 | $0.00 | $6.00 | $0.00 |
| 2025 | 21418 | JCCD - JC Conservation District | $2.69 | $2.69 | $0.00 | $0.00 | $5.38 | $0.00 |
| 2025 | 21418 | NWA - Noxious Weed Assessment | $2.75 | $2.75 | $0.00 | $0.00 | $5.50 | $0.00 |
| 2025 | 21418 | WAT - Clean Water District | $13.00 | $13.00 | $0.00 | $0.00 | $26.00 | $0.00 |
| 2025 | 21418 | FP ADMIN - FP ADMIN | $0.50 | $0.00 | $0.00 | $0.00 | $0.50 | $0.00 |
| 2025 | 21418 | TOTAL: | $805.78 | $805.22 | $0.00 | $0.00 | $1611.00 | $0.00 |
|
| 2025 | 21418 | $805.78 | $805.22 | $0.00 | $0.00 | $1611.00 | $0.00 |
Statement Details |
| 2024 | 21462 | STATE - STATE LEVY (SCHOOL) | $213.46 | $213.45 | $0.00 | $0.00 | $426.91 | $0.00 |
| 2024 | 21462 | COUNTY - COUNTY LEVIES (CE, DD, VET, MH) | $91.35 | $91.32 | $0.00 | $0.00 | $182.67 | $0.00 |
| 2024 | 21462 | CONSERVE - CONSERVATION FUTURES | $2.74 | $2.74 | $0.00 | $0.00 | $5.48 | $0.00 |
| 2024 | 21462 | COROADS - COUNTY ROADS (ROADS, DIV TO CE) | $73.50 | $73.49 | $0.00 | $0.00 | $146.99 | $0.00 |
| 2024 | 21462 | PORTPT - PORT DISTRICT | $37.73 | $37.73 | $0.00 | $0.00 | $75.46 | $0.00 |
| 2024 | 21462 | PUD1 - PUD #1 | $6.00 | $6.00 | $0.00 | $0.00 | $12.00 | $0.00 |
| 2024 | 21462 | LIB1 - LIBRARY DIST #1 | $28.44 | $28.43 | $0.00 | $0.00 | $56.87 | $0.00 |
| 2024 | 21462 | HD2 - HOSP DIST #2 | $5.33 | $5.33 | $0.00 | $0.00 | $10.66 | $0.00 |
| 2024 | 21462 | SD49 - SCHOOL DIST #49 | $95.32 | $95.32 | $0.00 | $0.00 | $190.64 | $0.00 |
| 2024 | 21462 | FD1 - FIRE DISTRICT #1 | $120.78 | $120.77 | $0.00 | $0.00 | $241.55 | $0.00 |
| 2024 | 21462 | EMS1 - FIRE DIST #1 EMS | $46.13 | $46.13 | $0.00 | $0.00 | $92.26 | $0.00 |
| 2024 | 21462 | FP - DNR Forest Fire Protection Assmt | $8.50 | $8.50 | $0.00 | $0.00 | $17.00 | $0.00 |
| 2024 | 21462 | FPLCA - DNR Landowner Contingency Assmt | $3.00 | $3.00 | $0.00 | $0.00 | $6.00 | $0.00 |
| 2024 | 21462 | JCCD - JC Conservation District | $2.69 | $2.69 | $0.00 | $0.00 | $5.38 | $0.00 |
| 2024 | 21462 | NWA - Noxious Weed Assessment | $2.75 | $2.75 | $0.00 | $0.00 | $5.50 | $0.00 |
| 2024 | 21462 | WAT - Clean Water District | $12.50 | $12.50 | $0.00 | $0.00 | $25.00 | $0.00 |
| 2024 | 21462 | FP ADMIN - FP ADMIN | $0.50 | $0.00 | $0.00 | $0.00 | $0.50 | $0.00 |
| 2024 | 21462 | TOTAL: | $750.72 | $750.15 | $0.00 | $0.00 | $1500.87 | $0.00 |
|
| 2024 | 21462 | $750.72 | $750.15 | $0.00 | $0.00 | $1500.87 | $0.00 |
Statement Details |
| 2023 | 21499 | STATE - STATE LEVY (SCHOOL) | $184.77 | $184.77 | $0.00 | $0.00 | $369.54 | $0.00 |
| 2023 | 21499 | COUNTY - COUNTY LEVIES (CE, DD, VET, MH) | $80.64 | $80.63 | $0.00 | $0.00 | $161.27 | $0.00 |
| 2023 | 21499 | CONSERVE - CONSERVATION FUTURES | $2.42 | $2.42 | $0.00 | $0.00 | $4.84 | $0.00 |
| 2023 | 21499 | COROADS - COUNTY ROADS (ROADS, DIV TO CE) | $65.24 | $65.23 | $0.00 | $0.00 | $130.47 | $0.00 |
| 2023 | 21499 | PORTPT - PORT DISTRICT | $33.97 | $33.96 | $0.00 | $0.00 | $67.93 | $0.00 |
| 2023 | 21499 | PUD1 - PUD #1 | $5.35 | $5.34 | $0.00 | $0.00 | $10.69 | $0.00 |
| 2023 | 21499 | LIB1 - LIBRARY DIST #1 | $25.24 | $25.24 | $0.00 | $0.00 | $50.48 | $0.00 |
| 2023 | 21499 | HD2 - HOSP DIST #2 | $4.71 | $4.70 | $0.00 | $0.00 | $9.41 | $0.00 |
| 2023 | 21499 | SD49 - SCHOOL DIST #49 | $86.38 | $86.36 | $0.00 | $0.00 | $172.74 | $0.00 |
| 2023 | 21499 | FD1 - FIRE DISTRICT #1 | $66.42 | $66.42 | $0.00 | $0.00 | $132.84 | $0.00 |
| 2023 | 21499 | EMS1 - FIRE DIST #1 EMS | $28.26 | $28.25 | $0.00 | $0.00 | $56.51 | $0.00 |
| 2023 | 21499 | FP - DNR Forest Fire Protection Assmt | $8.50 | $8.50 | $0.00 | $0.00 | $17.00 | $0.00 |
| 2023 | 21499 | FPLCA - DNR Landowner Contingency Assmt | $3.00 | $3.00 | $0.00 | $0.00 | $6.00 | $0.00 |
| 2023 | 21499 | JCCD - JC Conservation District | $2.69 | $2.69 | $0.00 | $0.00 | $5.38 | $0.00 |
| 2023 | 21499 | NWA - Noxious Weed Assessment | $2.75 | $2.75 | $0.00 | $0.00 | $5.50 | $0.00 |
| 2023 | 21499 | WAT - Clean Water District | $12.00 | $12.00 | $0.00 | $0.00 | $24.00 | $0.00 |
| 2023 | 21499 | FP ADMIN - FP ADMIN | $0.50 | $0.00 | $0.00 | $0.00 | $0.50 | $0.00 |
| 2023 | 21499 | TOTAL: | $612.84 | $612.26 | $0.00 | $0.00 | $1225.10 | $0.00 |
|
| 2023 | 21499 | $612.84 | $612.26 | $0.00 | $0.00 | $1225.10 | $0.00 |
Values
| (+) Improvement Homesite Value: | + | $0 | |
| (+) Improvement Non-Homesite Value: | + | $0 | |
| (+) Land Homesite Value: | + | $0 | |
| (+) Land Non-Homesite Value: | + | $204,930 | |
| (+) Curr Use (HS): | + | $0 | $0 |
| (+) Curr Use (NHS): | + | $0 | $0 |
| | | -------------------------- | |
| (=) Market Value: | = | $204,930 | |
| (–) Productivity Loss: | – | $0 | |
| | | -------------------------- | |
| (=) Subtotal: | = | $204,930 | |
| (+) Senior Appraised Value: | + | $0 | |
| (+) Non-Senior Appraised Value: | + | $204,930 | |
| | | -------------------------- | |
| (=) Total Appraised Value: | = | $204,930 | |
| (–) Senior Exemption Loss: | – | $0 | |
| (–) Exemption Loss: | – | $0 | |
| | | -------------------------- | |
| (=) Taxable Value: | = | $204,930 | |
Taxing Jurisdiction
| Owner: | JEREMY ELGIN LALA | | |
| % Ownership: | 100.0000000000% | | |
| Total Value: | N/A | | |
| Tax Area: | 0211 - 1-49F1E1H2L1 |
| CE | COUNTY CURRENT EXPENSE | N/A | N/A | N/A | N/A | | |
| CNTYDD | DEVELOPMENTAL DISABILITIES | N/A | N/A | N/A | N/A | | |
| CNTYVET | VETERANS RELIEF | N/A | N/A | N/A | N/A | | |
| MENTAL | MENTAL HEALTH | N/A | N/A | N/A | N/A | | |
| ROADS | COUNTY ROADS | N/A | N/A | N/A | N/A | | |
| HOSP2CASH | HOSP DIST #2 GENERAL | N/A | N/A | N/A | N/A | | |
| SCH49CP | SCHOOL DIST #49 CAP PROJ | N/A | N/A | N/A | N/A | | |
| SCH49MO | SCHOOL DIST #49 EP & O | N/A | N/A | N/A | N/A | | |
| CONSERVE | CONSERVATION FUTURES | N/A | N/A | N/A | N/A | | |
| EMS1 | FIRE DIST #1 EMS | N/A | N/A | N/A | N/A | | |
| FD1 | FIRE DIST #1 GENERAL | N/A | N/A | N/A | N/A | | |
| LIB1 | LIBRARY DIST #1 GENERAL | N/A | N/A | N/A | N/A | | |
| PORTPT | PORT OF PT GENERAL | N/A | N/A | N/A | N/A | | |
| PORTPTIDD | PORT OF PT IDD 2019 | N/A | N/A | N/A | N/A | | |
| PUD1 | PUD #1 GENERAL | N/A | N/A | N/A | N/A | | |
| STATE | STATE SCHOOL PART 1 | N/A | N/A | N/A | N/A | | |
| STATE2 | STATE SCHOOL PART 2 | N/A | N/A | N/A | N/A | | |
| | Total Tax Rate: | N/A | | | | | |
| | | | | Taxes w/Current Exemptions: | N/A | | |
| | | | | Taxes w/o Exemptions: | N/A | | |
Improvement / Building
Sketch
| No sketches available for this property. |
Property Image
Land
| 1 | 1574A | | 3.5500 | 154638.00 | 0.00 | 0.00 | 0.00 | $42,955 | $0 |
| 2 | 4255-1345S | | 1.0000 | 43560.00 | 0.00 | 0.00 | 1.00 | $161,975 | $0 |
Roll Value History
| 2026 | N/A | N/A | N/A | N/A | N/A |
| 2025 | $0 | $204,930 | $0 | $204,930 | $204,930 |
| 2024 | $0 | $195,616 | $0 | $195,616 | $195,616 |
| 2023 | $0 | $184,525 | $0 | $184,525 | $184,525 |
| 2022 | $0 | $156,975 | $0 | $156,975 | $156,975 |
Deed and Sales History
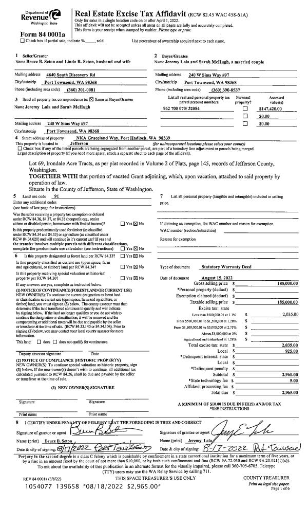
| 1 | 08/15/2022 | SWD | Statutory Warranty Deed | BRUCE B SETON | JEREMY ELGIN LALA | | | $185,000.00 | 139658 | |
| 2 | 01/09/2006 | SWD | Statutory Warranty Deed | DAVISON, MARK/KATHLEEN GA | SETON, BRUCE B/LINDA R | 0 | 0 | $140,000.00 | 105826 | 0 |
|   | |
Payout Agreement
| No payout information available.. |