Property
Account |
| Property ID: | 32096 | Abbreviated Legal Description: | IRONDALE AC TRACTS TRACT 79(S1/2) |
| Parcel # / Geo ID: | 962700082 | Agent Code: | |
| Type: | Real | | |
| Tax Area: | 0211 - 1-49F1E1H2L1 | Land Use Code | 91 |
| Open Space: | N | DFL | N |
| Historic Property: | N | Remodel Property: | N |
| Multi-Family Redevelopment: | N | | |
| Township: | 29N | Section: | 7 |
| Range: | 1E |
Location |
| Address: | 450 CLEVELAND ST PORT HADLOCK, WA 98339 | Mapsco: | 056/025 |
| Neighborhood: | S6&7 T29N R1E; IRONDALE ACRE TRTS (79-89); R.B.CO./NASON SP | Map ID: | |
| Neighborhood CD: | 4640 |
Owner |
| Name: | JOHN E TEVIS | Owner ID: | 113131 |
| Mailing Address: | DAVID C PARISI JTWROS 440 CLEVELAND ST PORT HADLOCK, WA 98339-9716 | % Ownership: | 100.0000000000% |
| | | Exemptions: | |
Pay Tax Due
There is currently No Amount Due on this property.
Taxes and Assessment Details
Property Tax Information as of
03/11/2026
Click on "Statement Details" to expand or collapse a tax statement.
* Please enter a valid date ** Please enter a valid date *
Statement Details |
| 2026 | 21368 | STATE - STATE LEVY (SCHOOL) | $260.69 | $260.69 | $0.00 | $0.00 | $521.38 | $0.00 |
| 2026 | 21368 | COUNTY - COUNTY LEVIES (CE, DD, VET, MH) | $104.23 | $104.22 | $0.00 | $0.00 | $208.45 | $0.00 |
| 2026 | 21368 | CONSERVE - CONSERVATION FUTURES | $3.13 | $3.12 | $0.00 | $0.00 | $6.25 | $0.00 |
| 2026 | 21368 | COROADS - COUNTY ROADS (ROADS, DIV TO CE) | $84.08 | $84.08 | $0.00 | $0.00 | $168.16 | $0.00 |
| 2026 | 21368 | PORTPT - PORT DISTRICT | $42.10 | $42.09 | $0.00 | $0.00 | $84.19 | $0.00 |
| 2026 | 21368 | PUD1 - PUD #1 | $6.78 | $6.78 | $0.00 | $0.00 | $13.56 | $0.00 |
| 2026 | 21368 | LIB1 - LIBRARY DIST #1 | $32.53 | $32.53 | $0.00 | $0.00 | $65.06 | $0.00 |
| 2026 | 21368 | HD2 - HOSP DIST #2 | $6.08 | $6.08 | $0.00 | $0.00 | $12.16 | $0.00 |
| 2026 | 21368 | SD49 - SCHOOL DIST #49 | $143.51 | $143.50 | $0.00 | $0.00 | $287.01 | $0.00 |
| 2026 | 21368 | FD1 - FIRE DISTRICT #1 | $138.02 | $138.01 | $0.00 | $0.00 | $276.03 | $0.00 |
| 2026 | 21368 | EMS1 - FIRE DIST #1 EMS | $53.07 | $53.06 | $0.00 | $0.00 | $106.13 | $0.00 |
| 2026 | 21368 | FP - DNR Forest Fire Protection Assmt | $8.50 | $8.50 | $0.00 | $0.00 | $17.00 | $0.00 |
| 2026 | 21368 | FPLCA - DNR Landowner Contingency Assmt | $3.00 | $3.00 | $0.00 | $0.00 | $6.00 | $0.00 |
| 2026 | 21368 | JCCD - JC Conservation District | $2.61 | $2.61 | $0.00 | $0.00 | $5.22 | $0.00 |
| 2026 | 21368 | NWA - Noxious Weed Assessment | $3.43 | $3.42 | $0.00 | $0.00 | $6.85 | $0.00 |
| 2026 | 21368 | OSS - On Site Septic | $23.10 | $23.10 | $0.00 | $0.00 | $46.20 | $0.00 |
| 2026 | 21368 | WAT - Clean Water District | $13.00 | $13.00 | $0.00 | $0.00 | $26.00 | $0.00 |
| 2026 | 21368 | FP ADMIN - FP ADMIN | $0.50 | $0.00 | $0.00 | $0.00 | $0.50 | $0.00 |
| 2026 | 21368 | TOTAL: | $928.36 | $927.79 | $0.00 | $0.00 | $1856.15 | $0.00 |
|
| 2026 | 21368 | $928.36 | $927.79 | $0.00 | $0.00 | $1856.15 | $0.00 |
Statement Details |
| 2025 | 21430 | STATE - STATE LEVY (SCHOOL) | $271.92 | $271.90 | $0.00 | $0.00 | $543.82 | $0.00 |
| 2025 | 21430 | COUNTY - COUNTY LEVIES (CE, DD, VET, MH) | $106.95 | $106.91 | $0.00 | $0.00 | $213.86 | $0.00 |
| 2025 | 21430 | CONSERVE - CONSERVATION FUTURES | $3.21 | $3.20 | $0.00 | $0.00 | $6.41 | $0.00 |
| 2025 | 21430 | COROADS - COUNTY ROADS (ROADS, DIV TO CE) | $85.67 | $85.66 | $0.00 | $0.00 | $171.33 | $0.00 |
| 2025 | 21430 | PORTPT - PORT DISTRICT | $43.64 | $43.63 | $0.00 | $0.00 | $87.27 | $0.00 |
| 2025 | 21430 | PUD1 - PUD #1 | $7.00 | $6.99 | $0.00 | $0.00 | $13.99 | $0.00 |
| 2025 | 21430 | LIB1 - LIBRARY DIST #1 | $33.15 | $33.14 | $0.00 | $0.00 | $66.29 | $0.00 |
| 2025 | 21430 | HD2 - HOSP DIST #2 | $6.24 | $6.24 | $0.00 | $0.00 | $12.48 | $0.00 |
| 2025 | 21430 | SD49 - SCHOOL DIST #49 | $145.74 | $145.72 | $0.00 | $0.00 | $291.46 | $0.00 |
| 2025 | 21430 | FD1 - FIRE DISTRICT #1 | $141.10 | $141.10 | $0.00 | $0.00 | $282.20 | $0.00 |
| 2025 | 21430 | EMS1 - FIRE DIST #1 EMS | $54.27 | $54.27 | $0.00 | $0.00 | $108.54 | $0.00 |
| 2025 | 21430 | FPLCA - DNR Landowner Contingency Assmt | $3.00 | $3.00 | $0.00 | $0.00 | $6.00 | $0.00 |
| 2025 | 21430 | JCCD - JC Conservation District | $2.61 | $2.61 | $0.00 | $0.00 | $5.22 | $0.00 |
| 2025 | 21430 | NWA - Noxious Weed Assessment | $2.45 | $2.45 | $0.00 | $0.00 | $4.90 | $0.00 |
| 2025 | 21430 | OSS - On Site Septic | $21.50 | $21.50 | $0.00 | $0.00 | $43.00 | $0.00 |
| 2025 | 21430 | WAT - Clean Water District | $13.00 | $13.00 | $0.00 | $0.00 | $26.00 | $0.00 |
| 2025 | 21430 | TOTAL: | $941.45 | $941.32 | $0.00 | $0.00 | $1882.77 | $0.00 |
|
| 2025 | 21430 | $941.45 | $941.32 | $0.00 | $0.00 | $1882.77 | $0.00 |
Statement Details |
| 2024 | 21474 | STATE - STATE LEVY (SCHOOL) | $244.06 | $244.06 | $0.00 | $0.00 | $488.12 | $0.00 |
| 2024 | 21474 | COUNTY - COUNTY LEVIES (CE, DD, VET, MH) | $104.44 | $104.43 | $0.00 | $0.00 | $208.87 | $0.00 |
| 2024 | 21474 | CONSERVE - CONSERVATION FUTURES | $3.13 | $3.13 | $0.00 | $0.00 | $6.26 | $0.00 |
| 2024 | 21474 | COROADS - COUNTY ROADS (ROADS, DIV TO CE) | $84.04 | $84.03 | $0.00 | $0.00 | $168.07 | $0.00 |
| 2024 | 21474 | PORTPT - PORT DISTRICT | $43.14 | $43.13 | $0.00 | $0.00 | $86.27 | $0.00 |
| 2024 | 21474 | PUD1 - PUD #1 | $6.86 | $6.86 | $0.00 | $0.00 | $13.72 | $0.00 |
| 2024 | 21474 | LIB1 - LIBRARY DIST #1 | $32.52 | $32.51 | $0.00 | $0.00 | $65.03 | $0.00 |
| 2024 | 21474 | HD2 - HOSP DIST #2 | $6.10 | $6.09 | $0.00 | $0.00 | $12.19 | $0.00 |
| 2024 | 21474 | SD49 - SCHOOL DIST #49 | $108.99 | $108.98 | $0.00 | $0.00 | $217.97 | $0.00 |
| 2024 | 21474 | FD1 - FIRE DISTRICT #1 | $138.09 | $138.09 | $0.00 | $0.00 | $276.18 | $0.00 |
| 2024 | 21474 | EMS1 - FIRE DIST #1 EMS | $52.75 | $52.74 | $0.00 | $0.00 | $105.49 | $0.00 |
| 2024 | 21474 | FP - DNR Forest Fire Protection Assmt | $8.50 | $8.50 | $0.00 | $0.00 | $17.00 | $0.00 |
| 2024 | 21474 | FPLCA - DNR Landowner Contingency Assmt | $3.00 | $3.00 | $0.00 | $0.00 | $6.00 | $0.00 |
| 2024 | 21474 | JCCD - JC Conservation District | $2.61 | $2.61 | $0.00 | $0.00 | $5.22 | $0.00 |
| 2024 | 21474 | NWA - Noxious Weed Assessment | $2.45 | $2.45 | $0.00 | $0.00 | $4.90 | $0.00 |
| 2024 | 21474 | OSS - On Site Septic | $21.00 | $21.00 | $0.00 | $0.00 | $42.00 | $0.00 |
| 2024 | 21474 | WAT - Clean Water District | $12.50 | $12.50 | $0.00 | $0.00 | $25.00 | $0.00 |
| 2024 | 21474 | FP ADMIN - FP ADMIN | $0.50 | $0.00 | $0.00 | $0.00 | $0.50 | $0.00 |
| 2024 | 21474 | TOTAL: | $874.68 | $874.11 | $0.00 | $0.00 | $1748.79 | $0.00 |
|
| 2024 | 21474 | $874.68 | $874.11 | $0.00 | $0.00 | $1748.79 | $0.00 |
Statement Details |
| 2023 | 21511 | STATE - STATE LEVY (SCHOOL) | $234.78 | $234.77 | $0.00 | $0.00 | $469.55 | $0.00 |
| 2023 | 21511 | COUNTY - COUNTY LEVIES (CE, DD, VET, MH) | $102.45 | $102.44 | $0.00 | $0.00 | $204.89 | $0.00 |
| 2023 | 21511 | CONSERVE - CONSERVATION FUTURES | $3.07 | $3.07 | $0.00 | $0.00 | $6.14 | $0.00 |
| 2023 | 21511 | COROADS - COUNTY ROADS (ROADS, DIV TO CE) | $82.90 | $82.88 | $0.00 | $0.00 | $165.78 | $0.00 |
| 2023 | 21511 | PORTPT - PORT DISTRICT | $43.16 | $43.15 | $0.00 | $0.00 | $86.31 | $0.00 |
| 2023 | 21511 | PUD1 - PUD #1 | $6.79 | $6.79 | $0.00 | $0.00 | $13.58 | $0.00 |
| 2023 | 21511 | LIB1 - LIBRARY DIST #1 | $32.07 | $32.07 | $0.00 | $0.00 | $64.14 | $0.00 |
| 2023 | 21511 | HD2 - HOSP DIST #2 | $5.99 | $5.97 | $0.00 | $0.00 | $11.96 | $0.00 |
| 2023 | 21511 | SD49 - SCHOOL DIST #49 | $109.75 | $109.74 | $0.00 | $0.00 | $219.49 | $0.00 |
| 2023 | 21511 | FD1 - FIRE DISTRICT #1 | $84.40 | $84.39 | $0.00 | $0.00 | $168.79 | $0.00 |
| 2023 | 21511 | EMS1 - FIRE DIST #1 EMS | $35.90 | $35.90 | $0.00 | $0.00 | $71.80 | $0.00 |
| 2023 | 21511 | FP - DNR Forest Fire Protection Assmt | $8.50 | $8.50 | $0.00 | $0.00 | $17.00 | $0.00 |
| 2023 | 21511 | FPLCA - DNR Landowner Contingency Assmt | $3.00 | $3.00 | $0.00 | $0.00 | $6.00 | $0.00 |
| 2023 | 21511 | JCCD - JC Conservation District | $2.61 | $2.61 | $0.00 | $0.00 | $5.22 | $0.00 |
| 2023 | 21511 | NWA - Noxious Weed Assessment | $2.45 | $2.45 | $0.00 | $0.00 | $4.90 | $0.00 |
| 2023 | 21511 | OSS - On Site Septic | $20.50 | $20.50 | $0.00 | $0.00 | $41.00 | $0.00 |
| 2023 | 21511 | WAT - Clean Water District | $12.00 | $12.00 | $0.00 | $0.00 | $24.00 | $0.00 |
| 2023 | 21511 | FP ADMIN - FP ADMIN | $0.50 | $0.00 | $0.00 | $0.00 | $0.50 | $0.00 |
| 2023 | 21511 | TOTAL: | $790.82 | $790.23 | $0.00 | $0.00 | $1581.05 | $0.00 |
|
| 2023 | 21511 | $790.82 | $790.23 | $0.00 | $0.00 | $1581.05 | $0.00 |
Values
| (+) Improvement Homesite Value: | + | $0 | |
| (+) Improvement Non-Homesite Value: | + | $0 | |
| (+) Land Homesite Value: | + | $0 | |
| (+) Land Non-Homesite Value: | + | $226,779 | |
| (+) Curr Use (HS): | + | $0 | $0 |
| (+) Curr Use (NHS): | + | $0 | $0 |
| | | -------------------------- | |
| (=) Market Value: | = | $226,779 | |
| (–) Productivity Loss: | – | $0 | |
| | | -------------------------- | |
| (=) Subtotal: | = | $226,779 | |
| (+) Senior Appraised Value: | + | $0 | |
| (+) Non-Senior Appraised Value: | + | $226,779 | |
| | | -------------------------- | |
| (=) Total Appraised Value: | = | $226,779 | |
| (–) Senior Exemption Loss: | – | $0 | |
| (–) Exemption Loss: | – | $0 | |
| | | -------------------------- | |
| (=) Taxable Value: | = | $226,779 | |
Taxing Jurisdiction
| Owner: | JOHN E TEVIS | | |
| % Ownership: | 100.0000000000% | | |
| Total Value: | $226,779 | | |
| Tax Area: | 0211 - 1-49F1E1H2L1 |
| CE | COUNTY CURRENT EXPENSE | 0.9034619479 | $226,779 | $226,779 | $204.89 | | |
| CNTYDD | DEVELOPMENTAL DISABILITIES | 0.0052121823 | $226,779 | $226,779 | $1.18 | | |
| CNTYVET | VETERANS RELIEF | 0.0052777810 | $226,779 | $226,779 | $1.20 | | |
| MENTAL | MENTAL HEALTH | 0.0052121823 | $226,779 | $226,779 | $1.18 | | |
| ROADS | COUNTY ROADS | 0.7415066410 | $226,779 | $226,779 | $168.16 | | |
| ROADSCU | COUNTY ROADS TO CUR EXP | 0.0000000000 | $226,779 | $226,779 | $0.00 | | |
| HOSP2CASH | HOSP DIST #2 GENERAL | 0.0536075306 | $226,779 | $226,779 | $12.16 | | |
| SCH49CP | SCHOOL DIST #49 CAP PROJ | 0.6279093905 | $226,779 | $226,779 | $142.40 | | |
| SCH49MO | SCHOOL DIST #49 EP & O | 0.6376483602 | $226,779 | $226,779 | $144.61 | | |
| CONSERVE | CONSERVATION FUTURES | 0.0275621078 | $226,779 | $226,779 | $6.25 | | |
| EMS1 | FIRE DIST #1 EMS | 0.4679948282 | $226,779 | $226,779 | $106.13 | | |
| FD1 | FIRE DIST #1 GENERAL | 1.2171942929 | $226,779 | $226,779 | $276.03 | | |
| LIB1 | LIBRARY DIST #1 GENERAL | 0.2868827388 | $226,779 | $226,779 | $65.06 | | |
| PORTPT | PORT OF PT GENERAL | 0.1134941229 | $226,779 | $226,779 | $25.74 | | |
| PORTPTIDD | PORT OF PT IDD 2019 | 0.2577346692 | $226,779 | $226,779 | $58.45 | | |
| PUD1 | PUD #1 GENERAL | 0.0597888892 | $226,779 | $226,779 | $13.56 | | |
| STATE | STATE SCHOOL PART 1 | 1.4940692947 | $226,779 | $226,779 | $338.82 | | |
| STATE2 | STATE SCHOOL PART 2 | 0.8050170049 | $226,779 | $226,779 | $182.56 | | |
| | Total Tax Rate: | 7.7095739644 | | | | | |
| | | | | Taxes w/Current Exemptions: | $1,748.38 | | |
| | | | | Taxes w/o Exemptions: | $1,748.38 | | |
Improvement / Building
Sketch
| No sketches available for this property. |
Property Image
Land
| 1 | 4640-1127F | | 0.0000 | 0.00 | 0.00 | 0.00 | 0.00 | $211,050 | $0 |
| 2 | 4640-1127F | | 0.0000 | 0.00 | 0.00 | 0.00 | 0.00 | $15,729 | $0 |
Roll Value History
| 2026 | N/A | N/A | N/A | N/A | N/A |
| 2025 | $0 | $226,779 | $0 | $226,779 | $226,779 |
| 2024 | $0 | $226,779 | $0 | $226,779 | $226,779 |
| 2023 | $0 | $210,980 | $0 | $210,980 | $210,980 |
| 2022 | $0 | $199,454 | $0 | $199,454 | $199,454 |
Deed and Sales History
| 1 | 08/15/2025 | QCD | Quit Claim Deed | REBECCA L TAYLOR | JOHN E TEVIS | | | $1,000.00 | 144759 | |
| 2 | 05/08/2002 | QCD | Quit Claim Deed | RICHARD H FRIEDMAN | REBECCA L TAYLOR | 0 | 0 | $0.00 | 94629 | 0 |
| 3 | 07/21/1999 | SWD | Statutory Warranty Deed | RIEGLE, CAROLE J/TRUST | FRIEDMAN, RICHARD/TAYLOR, R L | 0 | 0 | $520,000.00 | 87496 | 0 |
|   | |
| 4 | 01/20/1999 | QCD | Quit Claim Deed | RIEGLE, CAROLE J/TRUST | RIEGLE, CAROLE J/TRUST | 0 | 0 | $0.00 | 86189 | 0 |
| 5 | 06/09/1997 | QCD | Quit Claim Deed | RIEGLE, CAROLE J/TRUST | RIEGLE, CAROLE J/TR & GOFF, D | 0 | 0 | $0.00 | 82150 | 0 |
| 6 | 07/01/1996 | BLA | Boundary Line Adjustment | RIEGLE, CAROLE J/TRUST | RIEGLE, CAROLE J/TRUST | 0 | 0 | $0.00 | 79825 | 0 |
| 7 | 05/13/1994 | QCD | Quit Claim Deed | RIEGLE, CAROLE | RIEGLE, CAROLE J/TRUST | 0 | 0 | $0.00 | 74251 | 0 |
Payout Agreement
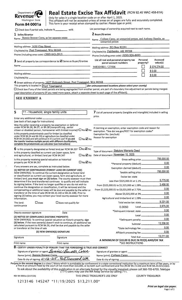
| No payout information available.. |