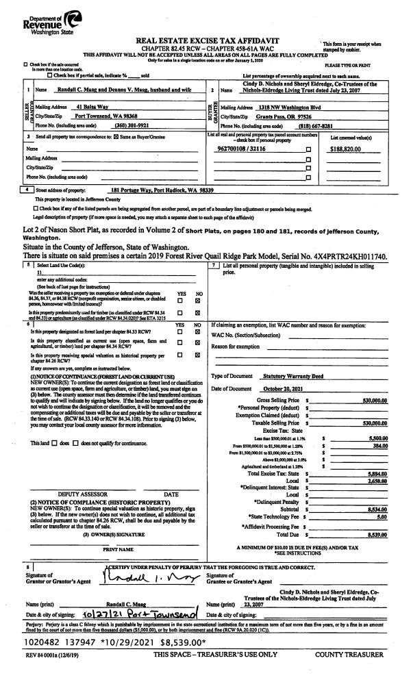
Property
Account |
| Property ID: | 32116 | Abbreviated Legal Description: | NASON SHORT PLAT .83AC LOT 2 |
| Parcel # / Geo ID: | 962700108 | Agent Code: | |
| Type: | Real | | |
| Tax Area: | 0211 - 1-49F1E1H2L1 | Land Use Code | 11 |
| Open Space: | N | DFL | N |
| Historic Property: | N | Remodel Property: | N |
| Multi-Family Redevelopment: | N | | |
| Township: | 29N | Section: | 7 |
| Range: | 1E |
Location |
| Address: | 181 PORTAGE WAY PORT HADLOCK, WA 98339 | Mapsco: | 238/002 |
| Neighborhood: | S6&7 T29N R1E; IRONDALE ACRE TRTS (79-89); R.B.CO./NASON SP | Map ID: | |
| Neighborhood CD: | 4640 |
Owner |
| Name: | NICHOLS ELDREDGE LIVING TRUST | Owner ID: | 105898 |
| Mailing Address: | CINDY D NICHOLS TRUSTEE SHERYL ELDREDGE TRUSTEE 1318 NW WASHINGTON BLVD GRANTS PASS, OR 97526-1248 | % Ownership: | 100.0000000000% |
| | | Exemptions: | |
Pay Tax Due
There is currently No Amount Due on this property.
Taxes and Assessment Details
Property Tax Information as of
03/10/2026
Click on "Statement Details" to expand or collapse a tax statement.
* Please enter a valid date ** Please enter a valid date *
Statement Details |
| | TOTAL: | $0.00 | $0.00 | $0.00 | $0.00 | $0.00 | $0.00 |
|
| | $0.00 | $0.00 | $0.00 | $0.00 | $0.00 | $0.00 |
Values
| (+) Improvement Homesite Value: | + | $0 | |
| (+) Improvement Non-Homesite Value: | + | $92,632 | |
| (+) Land Homesite Value: | + | $0 | |
| (+) Land Non-Homesite Value: | + | $476,635 | |
| (+) Curr Use (HS): | + | $0 | $0 |
| (+) Curr Use (NHS): | + | $0 | $0 |
| | | -------------------------- | |
| (=) Market Value: | = | $569,267 | |
| (–) Productivity Loss: | – | $0 | |
| | | -------------------------- | |
| (=) Subtotal: | = | $569,267 | |
| (+) Senior Appraised Value: | + | $0 | |
| (+) Non-Senior Appraised Value: | + | $569,267 | |
| | | -------------------------- | |
| (=) Total Appraised Value: | = | $569,267 | |
| (–) Senior Exemption Loss: | – | $0 | |
| (–) Exemption Loss: | – | $0 | |
| | | -------------------------- | |
| (=) Taxable Value: | = | $569,267 | |
Taxing Jurisdiction
| Owner: | NICHOLS ELDREDGE LIVING TRUST | | |
| % Ownership: | 100.0000000000% | | |
| Total Value: | $569,267 | | |
| Tax Area: | 0211 - 1-49F1E1H2L1 |
| CE | COUNTY CURRENT EXPENSE | 0.9034619479 | $569,267 | $569,267 | $514.31 | | |
| CNTYDD | DEVELOPMENTAL DISABILITIES | 0.0052121823 | $569,267 | $569,267 | $2.97 | | |
| CNTYVET | VETERANS RELIEF | 0.0052777810 | $569,267 | $569,267 | $3.00 | | |
| MENTAL | MENTAL HEALTH | 0.0052121823 | $569,267 | $569,267 | $2.97 | | |
| ROADS | COUNTY ROADS | 0.7415066410 | $569,267 | $569,267 | $422.12 | | |
| ROADSCU | COUNTY ROADS TO CUR EXP | 0.0000000000 | $569,267 | $569,267 | $0.00 | | |
| HOSP2CASH | HOSP DIST #2 GENERAL | 0.0536075306 | $569,267 | $569,267 | $30.52 | | |
| SCH49CP | SCHOOL DIST #49 CAP PROJ | 0.6279093905 | $569,267 | $569,267 | $357.45 | | |
| SCH49MO | SCHOOL DIST #49 EP & O | 0.6376483602 | $569,267 | $569,267 | $362.99 | | |
| CONSERVE | CONSERVATION FUTURES | 0.0275621078 | $569,267 | $569,267 | $15.69 | | |
| EMS1 | FIRE DIST #1 EMS | 0.4679948282 | $569,267 | $569,267 | $266.41 | | |
| FD1 | FIRE DIST #1 GENERAL | 1.2171942929 | $569,267 | $569,267 | $692.91 | | |
| LIB1 | LIBRARY DIST #1 GENERAL | 0.2868827388 | $569,267 | $569,267 | $163.31 | | |
| PORTPT | PORT OF PT GENERAL | 0.1134941229 | $569,267 | $569,267 | $64.61 | | |
| PORTPTIDD | PORT OF PT IDD 2019 | 0.2577346692 | $569,267 | $569,267 | $146.72 | | |
| PUD1 | PUD #1 GENERAL | 0.0597888892 | $569,267 | $569,267 | $34.04 | | |
| STATE | STATE SCHOOL PART 1 | 1.4940692947 | $569,267 | $569,267 | $850.52 | | |
| STATE2 | STATE SCHOOL PART 2 | 0.8050170049 | $569,267 | $569,267 | $458.27 | | |
| | Total Tax Rate: | 7.7095739644 | | | | | |
| | | | | Taxes w/Current Exemptions: | $4,388.81 | | |
| | | | | Taxes w/o Exemptions: | $4,388.81 | | |
Improvement / Building
| Improvement #1: | Manufactured Home | State Code: | 11M | 385.0 sqft | Value: | $92,632 |
| Bathrooms (#): | 1 (FULL) | Bedrooms (#): | 1 | | Exterior Wall: | SI/ST | Floor Construction: | FRAME | | Foundation: | CONBL | Heating/Cooling: | OTHER | | Roof Cover: | COMP |   |   |
|
| | Type | Description | Class CD | Sub Class CD | Year Built | Area |
| | MA | Main Area | 3 | MPARK | 2020 | 385.0 |
| | MDECK | MH Deck | 3 | MPARK | 2020 | 290.0 |
| | ADDN-D | Addition (Table Depreciated) | 3 | MPARK | 2020 | 264.0 |
Sketch
Property Image
Land
| 1 | 4640-1127F | Medium Bank Waterfront w/Filled Tidelands | 0.0000 | 0.00 | 0.00 | 0.00 | 0.00 | $330,750 | $0 |
| 2 | 4640-1127F | Medium Bank Waterfront w/Filled Tidelands | 0.0000 | 0.00 | 0.00 | 0.00 | 0.00 | $145,885 | $0 |
Roll Value History
| 2026 | N/A | N/A | N/A | N/A | N/A |
| 2025 | $92,632 | $476,635 | $0 | $569,267 | $569,267 |
| 2024 | $92,632 | $476,635 | $0 | $569,267 | $569,267 |
| 2023 | $88,422 | $448,938 | $0 | $537,360 | $537,360 |
| 2022 | $79,501 | $429,063 | $0 | $508,564 | $508,564 |
Deed and Sales History
| 1 | 10/20/2021 | SWD | Statutory Warranty Deed | RANDALL C MAAG | NICHOLS ELDREDGE LIVING TRUST | | | $530,000.00 | 137947 | |
| 2 | 09/11/2017 | SWD | Statutory Warranty Deed | ROSEMARY LAW | RANDALL C MAAG | | | $229,900.00 | 128556 | |
| 3 | 06/08/2016 | PRD | Personal Representatives Deed | | | | | | 125808 | |
| 4 | 05/14/2008 | PRD | Personal Representatives Deed | NSON, FRED PR ESTATE OF | LAW, CHARLES/ROSEMARY | | | $210,000.00 | 111273 | 0 |
| 5 | 11/21/1997 | QCD | Quit Claim Deed | NASON, GAYLYN J | NASON, DONA O | 0 | 0 | $0.00 | 83221 | 0 |
| 6 | 09/07/1993 | QCD | Quit Claim Deed | NASON, GUY P/EST | NASON, FRED P/GAYLYN J | 0 | 0 | $0.00 | 72268 | 0 |
Payout Agreement
| No payout information available.. |