Property
Account |
| Property ID: | 32166 | Abbreviated Legal Description: | IRONDALE ORCHARD TR BLK 4 8(E 151.5') WITH EASE |
| Parcel # / Geo ID: | 963000406 | Agent Code: | |
| Type: | Real | | |
| Tax Area: | 0211 - 1-49F1E1H2L1 | Land Use Code | 11 |
| Open Space: | N | DFL | N |
| Historic Property: | N | Remodel Property: | N |
| Multi-Family Redevelopment: | N | | |
| Township: | 29N | Section: | 10 |
| Range: | 1W |
Location |
| Address: | 80 TYNER RD CHIMACUM, WA 98325 | Mapsco: | 057/044 |
| Neighborhood: | IRONDALE ORCHARD TRACTS, LAY & ROGERS SHORT PLATS | Map ID: | |
| Neighborhood CD: | 4238 |
Owner |
| Name: | JASON J & ROBIN L WOODS | Owner ID: | 30797 |
| Mailing Address: | 500 CHERRY AVE CHIMACUM, WA 98325-8727 | % Ownership: | 100.0000000000% |
| | | Exemptions: | |
Pay Tax Due
Select the appropriate checkbox next to the year to be paid. Multiple years may be selected.
*Convenience Fee not included
Taxes and Assessment Details
Property Tax Information as of
03/11/2026
Click on "Statement Details" to expand or collapse a tax statement.
* Please enter a valid date ** Please enter a valid date *
Statement Details |
| 2026 | 21436 | STATE - STATE LEVY (SCHOOL) | $120.60 | $120.59 | $0.00 | $0.00 | $0.00 | $241.19 |
| 2026 | 21436 | COUNTY - COUNTY LEVIES (CE, DD, VET, MH) | $48.23 | $48.20 | $0.00 | $0.00 | $0.00 | $96.43 |
| 2026 | 21436 | CONSERVE - CONSERVATION FUTURES | $1.45 | $1.44 | $0.00 | $0.00 | $0.00 | $2.89 |
| 2026 | 21436 | COROADS - COUNTY ROADS (ROADS, DIV TO CE) | $38.90 | $38.89 | $0.00 | $0.00 | $0.00 | $77.79 |
| 2026 | 21436 | PORTPT - PORT DISTRICT | $19.48 | $19.47 | $0.00 | $0.00 | $0.00 | $38.95 |
| 2026 | 21436 | PUD1 - PUD #1 | $3.14 | $3.13 | $0.00 | $0.00 | $0.00 | $6.27 |
| 2026 | 21436 | LIB1 - LIBRARY DIST #1 | $15.05 | $15.05 | $0.00 | $0.00 | $0.00 | $30.10 |
| 2026 | 21436 | HD2 - HOSP DIST #2 | $2.81 | $2.81 | $0.00 | $0.00 | $0.00 | $5.62 |
| 2026 | 21436 | SD49 - SCHOOL DIST #49 | $66.39 | $66.37 | $0.00 | $0.00 | $0.00 | $132.76 |
| 2026 | 21436 | FD1 - FIRE DISTRICT #1 | $63.85 | $63.84 | $0.00 | $0.00 | $0.00 | $127.69 |
| 2026 | 21436 | EMS1 - FIRE DIST #1 EMS | $24.55 | $24.55 | $0.00 | $0.00 | $0.00 | $49.10 |
| 2026 | 21436 | JCCD - JC Conservation District | $2.55 | $2.55 | $0.00 | $0.00 | $0.00 | $5.10 |
| 2026 | 21436 | NWA - Noxious Weed Assessment | $2.98 | $2.97 | $0.00 | $0.00 | $0.00 | $5.95 |
| 2026 | 21436 | OSS - On Site Septic | $23.10 | $23.10 | $0.00 | $0.00 | $0.00 | $46.20 |
| 2026 | 21436 | WAT - Clean Water District | $13.00 | $13.00 | $0.00 | $0.00 | $0.00 | $26.00 |
| 2026 | 21436 | TOTAL: | $446.08 | $445.96 | $0.00 | $0.00 | $0.00 | $892.04 |
|
| 2026 | 21436 | $446.08 | $445.96 | $0.00 | $0.00 | $0.00 | $892.04 |
Statement Details |
| 2025 | 21498 | STATE - STATE LEVY (SCHOOL) | $120.07 | $120.06 | $0.00 | $0.00 | $240.13 | $0.00 |
| 2025 | 21498 | COUNTY - COUNTY LEVIES (CE, DD, VET, MH) | $47.22 | $47.20 | $0.00 | $0.00 | $94.42 | $0.00 |
| 2025 | 21498 | CONSERVE - CONSERVATION FUTURES | $1.42 | $1.41 | $0.00 | $0.00 | $2.83 | $0.00 |
| 2025 | 21498 | COROADS - COUNTY ROADS (ROADS, DIV TO CE) | $37.83 | $37.82 | $0.00 | $0.00 | $75.65 | $0.00 |
| 2025 | 21498 | PORTPT - PORT DISTRICT | $19.27 | $19.26 | $0.00 | $0.00 | $38.53 | $0.00 |
| 2025 | 21498 | PUD1 - PUD #1 | $3.09 | $3.09 | $0.00 | $0.00 | $6.18 | $0.00 |
| 2025 | 21498 | LIB1 - LIBRARY DIST #1 | $14.64 | $14.63 | $0.00 | $0.00 | $29.27 | $0.00 |
| 2025 | 21498 | HD2 - HOSP DIST #2 | $2.76 | $2.75 | $0.00 | $0.00 | $5.51 | $0.00 |
| 2025 | 21498 | SD49 - SCHOOL DIST #49 | $64.35 | $64.34 | $0.00 | $0.00 | $128.69 | $0.00 |
| 2025 | 21498 | FD1 - FIRE DISTRICT #1 | $62.31 | $62.30 | $0.00 | $0.00 | $124.61 | $0.00 |
| 2025 | 21498 | EMS1 - FIRE DIST #1 EMS | $23.97 | $23.96 | $0.00 | $0.00 | $47.93 | $0.00 |
| 2025 | 21498 | JCCD - JC Conservation District | $2.55 | $2.55 | $0.00 | $0.00 | $5.10 | $0.00 |
| 2025 | 21498 | NWA - Noxious Weed Assessment | $2.15 | $2.15 | $0.00 | $0.00 | $4.30 | $0.00 |
| 2025 | 21498 | OSS - On Site Septic | $21.50 | $21.50 | $0.00 | $0.00 | $43.00 | $0.00 |
| 2025 | 21498 | WAT - Clean Water District | $13.00 | $13.00 | $0.00 | $0.00 | $26.00 | $0.00 |
| 2025 | 21498 | TOTAL: | $436.13 | $436.02 | $0.00 | $0.00 | $872.15 | $0.00 |
|
| 2025 | 21498 | $436.13 | $436.02 | $0.00 | $0.00 | $872.15 | $0.00 |
Statement Details |
| 2024 | 21543 | STATE - STATE LEVY (SCHOOL) | $105.72 | $105.71 | $0.00 | $0.00 | $211.43 | $0.00 |
| 2024 | 21543 | COUNTY - COUNTY LEVIES (CE, DD, VET, MH) | $45.25 | $45.23 | $0.00 | $0.00 | $90.48 | $0.00 |
| 2024 | 21543 | CONSERVE - CONSERVATION FUTURES | $1.36 | $1.35 | $0.00 | $0.00 | $2.71 | $0.00 |
| 2024 | 21543 | COROADS - COUNTY ROADS (ROADS, DIV TO CE) | $36.40 | $36.40 | $0.00 | $0.00 | $72.80 | $0.00 |
| 2024 | 21543 | PORTPT - PORT DISTRICT | $18.69 | $18.68 | $0.00 | $0.00 | $37.37 | $0.00 |
| 2024 | 21543 | PUD1 - PUD #1 | $2.97 | $2.97 | $0.00 | $0.00 | $5.94 | $0.00 |
| 2024 | 21543 | LIB1 - LIBRARY DIST #1 | $14.09 | $14.08 | $0.00 | $0.00 | $28.17 | $0.00 |
| 2024 | 21543 | HD2 - HOSP DIST #2 | $2.64 | $2.64 | $0.00 | $0.00 | $5.28 | $0.00 |
| 2024 | 21543 | SD49 - SCHOOL DIST #49 | $47.22 | $47.20 | $0.00 | $0.00 | $94.42 | $0.00 |
| 2024 | 21543 | FD1 - FIRE DISTRICT #1 | $59.82 | $59.81 | $0.00 | $0.00 | $119.63 | $0.00 |
| 2024 | 21543 | EMS1 - FIRE DIST #1 EMS | $22.85 | $22.84 | $0.00 | $0.00 | $45.69 | $0.00 |
| 2024 | 21543 | JCCD - JC Conservation District | $2.55 | $2.55 | $0.00 | $0.00 | $5.10 | $0.00 |
| 2024 | 21543 | NWA - Noxious Weed Assessment | $2.15 | $2.15 | $0.00 | $0.00 | $4.30 | $0.00 |
| 2024 | 21543 | OSS - On Site Septic | $21.00 | $21.00 | $0.00 | $0.00 | $42.00 | $0.00 |
| 2024 | 21543 | WAT - Clean Water District | $12.50 | $12.50 | $0.00 | $0.00 | $25.00 | $0.00 |
| 2024 | 21543 | TOTAL: | $395.21 | $395.11 | $0.00 | $0.00 | $790.32 | $0.00 |
|
| 2024 | 21543 | $395.21 | $395.11 | $0.00 | $0.00 | $790.32 | $0.00 |
Statement Details |
| 2023 | 21580 | STATE - STATE LEVY (SCHOOL) | $101.09 | $101.07 | $0.00 | $0.00 | $202.16 | $0.00 |
| 2023 | 21580 | COUNTY - COUNTY LEVIES (CE, DD, VET, MH) | $44.12 | $44.10 | $0.00 | $0.00 | $88.22 | $0.00 |
| 2023 | 21580 | CONSERVE - CONSERVATION FUTURES | $1.33 | $1.32 | $0.00 | $0.00 | $2.65 | $0.00 |
| 2023 | 21580 | COROADS - COUNTY ROADS (ROADS, DIV TO CE) | $35.69 | $35.68 | $0.00 | $0.00 | $71.37 | $0.00 |
| 2023 | 21580 | PORTPT - PORT DISTRICT | $18.59 | $18.57 | $0.00 | $0.00 | $37.16 | $0.00 |
| 2023 | 21580 | PUD1 - PUD #1 | $2.93 | $2.92 | $0.00 | $0.00 | $5.85 | $0.00 |
| 2023 | 21580 | LIB1 - LIBRARY DIST #1 | $13.81 | $13.80 | $0.00 | $0.00 | $27.61 | $0.00 |
| 2023 | 21580 | HD2 - HOSP DIST #2 | $2.57 | $2.57 | $0.00 | $0.00 | $5.14 | $0.00 |
| 2023 | 21580 | SD49 - SCHOOL DIST #49 | $47.26 | $47.24 | $0.00 | $0.00 | $94.50 | $0.00 |
| 2023 | 21580 | FD1 - FIRE DISTRICT #1 | $36.34 | $36.33 | $0.00 | $0.00 | $72.67 | $0.00 |
| 2023 | 21580 | EMS1 - FIRE DIST #1 EMS | $15.46 | $15.45 | $0.00 | $0.00 | $30.91 | $0.00 |
| 2023 | 21580 | JCCD - JC Conservation District | $2.55 | $2.55 | $0.00 | $0.00 | $5.10 | $0.00 |
| 2023 | 21580 | NWA - Noxious Weed Assessment | $2.15 | $2.15 | $0.00 | $0.00 | $4.30 | $0.00 |
| 2023 | 21580 | OSS - On Site Septic | $20.50 | $20.50 | $0.00 | $0.00 | $41.00 | $0.00 |
| 2023 | 21580 | WAT - Clean Water District | $12.00 | $12.00 | $0.00 | $0.00 | $24.00 | $0.00 |
| 2023 | 21580 | TOTAL: | $356.39 | $356.25 | $0.00 | $0.00 | $712.64 | $0.00 |
|
| 2023 | 21580 | $356.39 | $356.25 | $0.00 | $0.00 | $712.64 | $0.00 |
Values
| (+) Improvement Homesite Value: | + | $0 | |
| (+) Improvement Non-Homesite Value: | + | $22,406 | |
| (+) Land Homesite Value: | + | $0 | |
| (+) Land Non-Homesite Value: | + | $82,500 | |
| (+) Curr Use (HS): | + | $0 | $0 |
| (+) Curr Use (NHS): | + | $0 | $0 |
| | | -------------------------- | |
| (=) Market Value: | = | $104,906 | |
| (–) Productivity Loss: | – | $0 | |
| | | -------------------------- | |
| (=) Subtotal: | = | $104,906 | |
| (+) Senior Appraised Value: | + | $0 | |
| (+) Non-Senior Appraised Value: | + | $104,906 | |
| | | -------------------------- | |
| (=) Total Appraised Value: | = | $104,906 | |
| (–) Senior Exemption Loss: | – | $0 | |
| (–) Exemption Loss: | – | $0 | |
| | | -------------------------- | |
| (=) Taxable Value: | = | $104,906 | |
Taxing Jurisdiction
| Owner: | JASON J & ROBIN L WOODS | | |
| % Ownership: | 100.0000000000% | | |
| Total Value: | N/A | | |
| Tax Area: | 0211 - 1-49F1E1H2L1 |
| CE | COUNTY CURRENT EXPENSE | N/A | N/A | N/A | N/A | | |
| CNTYDD | DEVELOPMENTAL DISABILITIES | N/A | N/A | N/A | N/A | | |
| CNTYVET | VETERANS RELIEF | N/A | N/A | N/A | N/A | | |
| MENTAL | MENTAL HEALTH | N/A | N/A | N/A | N/A | | |
| ROADS | COUNTY ROADS | N/A | N/A | N/A | N/A | | |
| HOSP2CASH | HOSP DIST #2 GENERAL | N/A | N/A | N/A | N/A | | |
| SCH49CP | SCHOOL DIST #49 CAP PROJ | N/A | N/A | N/A | N/A | | |
| SCH49MO | SCHOOL DIST #49 EP & O | N/A | N/A | N/A | N/A | | |
| CONSERVE | CONSERVATION FUTURES | N/A | N/A | N/A | N/A | | |
| EMS1 | FIRE DIST #1 EMS | N/A | N/A | N/A | N/A | | |
| FD1 | FIRE DIST #1 GENERAL | N/A | N/A | N/A | N/A | | |
| LIB1 | LIBRARY DIST #1 GENERAL | N/A | N/A | N/A | N/A | | |
| PORTPT | PORT OF PT GENERAL | N/A | N/A | N/A | N/A | | |
| PORTPTIDD | PORT OF PT IDD 2019 | N/A | N/A | N/A | N/A | | |
| PUD1 | PUD #1 GENERAL | N/A | N/A | N/A | N/A | | |
| STATE | STATE SCHOOL PART 1 | N/A | N/A | N/A | N/A | | |
| STATE2 | STATE SCHOOL PART 2 | N/A | N/A | N/A | N/A | | |
| | Total Tax Rate: | N/A | | | | | |
| | | | | Taxes w/Current Exemptions: | N/A | | |
| | | | | Taxes w/o Exemptions: | N/A | | |
Improvement / Building
| Improvement #1: | Manufactured Home | State Code: | 11 | 1440.0 sqft | Value: | $22,406 |
| Bathrooms (#): | 2 (FULL) | Bedrooms (#): | 3 | | Exterior Wall: | METAL | Fireplace: | WD ST-GOOD | | Floor Construction: | FRAME | Foundation: | PO&BL | | Heating/Cooling: | F/A | Roof Cover: | METAL |
|
| | Type | Description | Class CD | Sub Class CD | Year Built | Area |
| | MA | Main Area | 2 | MDBL | 1972 | 1440.0 |
| | MDECK | MH Deck | 2 | * | 1972 | 464.0 |
| | MSKIRT_MTL | MH Skirting - Metal/Vinyl | 2 | * | 1972 | 168.0 |
| | MWPOR | MH Wood Porch | 2 | * | 1972 | 240.0 |
Sketch
Property Image
Land
| 1 | 4238-1275S | | 0.0000 | 0.00 | 0.00 | 0.00 | 1.00 | $82,500 | $0 |
Roll Value History
| 2026 | N/A | N/A | N/A | N/A | N/A |
| 2025 | $22,406 | $82,500 | $0 | $104,906 | $104,906 |
| 2024 | $21,387 | $78,750 | $0 | $100,137 | $100,137 |
| 2023 | $21,387 | $70,000 | $0 | $91,387 | $91,387 |
| 2022 | $20,873 | $65,000 | $0 | $85,873 | $85,873 |
Deed and Sales History
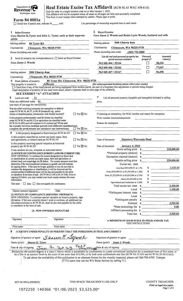
| 1 | 01/04/2023 | SWD | Statutory Warranty Deed | JOHN L TYNER | JASON J & ROBIN L WOODS | | | $220,000.00 | 140366 | |
|   | |
Payout Agreement
| No payout information available.. |