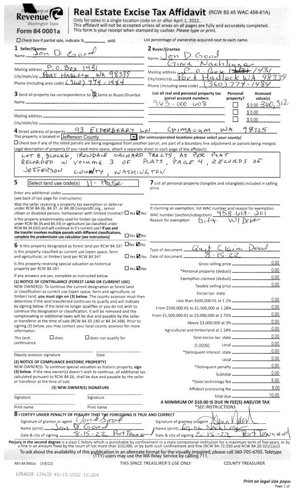
Property
Account |
| Property ID: | 32185 | Abbreviated Legal Description: | IRONDALE ORCHARD TRACTS BLK 6 LOT 8 |
| Parcel # / Geo ID: | 963000608 | Agent Code: | |
| Type: | Real | | |
| Tax Area: | 0211 - 1-49F1E1H2L1 | Land Use Code | 11 |
| Open Space: | N | DFL | N |
| Historic Property: | N | Remodel Property: | N |
| Multi-Family Redevelopment: | N | | |
| Township: | 29N | Section: | 10 |
| Range: | 1W |
Location |
| Address: | 93 ELDERBERRY LN CHIMACUM, WA 98325 | Mapsco: | 057/062 |
| Neighborhood: | IRONDALE ORCHARD TRACTS, LAY & ROGERS SHORT PLATS | Map ID: | |
| Neighborhood CD: | 4238 |
Owner |
| Name: | MARK G & ELIZABETH EDGREN | Owner ID: | 15021 |
| Mailing Address: | 42 CEDAR HILL PL NE ALBUQUERQUE, NM 87122-1907 | % Ownership: | 100.0000000000% |
| | | Exemptions: | |
Pay Tax Due
There is currently No Amount Due on this property.
Taxes and Assessment Details
Property Tax Information as of
03/11/2026
Click on "Statement Details" to expand or collapse a tax statement.
* Please enter a valid date ** Please enter a valid date *
Statement Details |
| | TOTAL: | $0.00 | $0.00 | $0.00 | $0.00 | $0.00 | $0.00 |
|
| | $0.00 | $0.00 | $0.00 | $0.00 | $0.00 | $0.00 |
Values
| (+) Improvement Homesite Value: | + | $0 | |
| (+) Improvement Non-Homesite Value: | + | $478,159 | |
| (+) Land Homesite Value: | + | $0 | |
| (+) Land Non-Homesite Value: | + | $99,000 | |
| (+) Curr Use (HS): | + | $0 | $0 |
| (+) Curr Use (NHS): | + | $0 | $0 |
| | | -------------------------- | |
| (=) Market Value: | = | $577,159 | |
| (–) Productivity Loss: | – | $0 | |
| | | -------------------------- | |
| (=) Subtotal: | = | $577,159 | |
| (+) Senior Appraised Value: | + | $0 | |
| (+) Non-Senior Appraised Value: | + | $577,159 | |
| | | -------------------------- | |
| (=) Total Appraised Value: | = | $577,159 | |
| (–) Senior Exemption Loss: | – | $0 | |
| (–) Exemption Loss: | – | $0 | |
| | | -------------------------- | |
| (=) Taxable Value: | = | $577,159 | |
Taxing Jurisdiction
| Owner: | MARK G & ELIZABETH EDGREN | | |
| % Ownership: | 100.0000000000% | | |
| Total Value: | $577,159 | | |
| Tax Area: | 0211 - 1-49F1E1H2L1 |
| CE | COUNTY CURRENT EXPENSE | 0.9034619479 | $577,159 | $577,159 | $521.44 | | |
| CNTYDD | DEVELOPMENTAL DISABILITIES | 0.0052121823 | $577,159 | $577,159 | $3.01 | | |
| CNTYVET | VETERANS RELIEF | 0.0052777810 | $577,159 | $577,159 | $3.05 | | |
| MENTAL | MENTAL HEALTH | 0.0052121823 | $577,159 | $577,159 | $3.01 | | |
| ROADS | COUNTY ROADS | 0.7415066410 | $577,159 | $577,159 | $427.97 | | |
| ROADSCU | COUNTY ROADS TO CUR EXP | 0.0000000000 | $577,159 | $577,159 | $0.00 | | |
| HOSP2CASH | HOSP DIST #2 GENERAL | 0.0536075306 | $577,159 | $577,159 | $30.94 | | |
| SCH49CP | SCHOOL DIST #49 CAP PROJ | 0.6279093905 | $577,159 | $577,159 | $362.40 | | |
| SCH49MO | SCHOOL DIST #49 EP & O | 0.6376483602 | $577,159 | $577,159 | $368.02 | | |
| CONSERVE | CONSERVATION FUTURES | 0.0275621078 | $577,159 | $577,159 | $15.91 | | |
| EMS1 | FIRE DIST #1 EMS | 0.4679948282 | $577,159 | $577,159 | $270.11 | | |
| FD1 | FIRE DIST #1 GENERAL | 1.2171942929 | $577,159 | $577,159 | $702.51 | | |
| LIB1 | LIBRARY DIST #1 GENERAL | 0.2868827388 | $577,159 | $577,159 | $165.58 | | |
| PORTPT | PORT OF PT GENERAL | 0.1134941229 | $577,159 | $577,159 | $65.50 | | |
| PORTPTIDD | PORT OF PT IDD 2019 | 0.2577346692 | $577,159 | $577,159 | $148.75 | | |
| PUD1 | PUD #1 GENERAL | 0.0597888892 | $577,159 | $577,159 | $34.51 | | |
| STATE | STATE SCHOOL PART 1 | 1.4940692947 | $577,159 | $577,159 | $862.32 | | |
| STATE2 | STATE SCHOOL PART 2 | 0.8050170049 | $577,159 | $577,159 | $464.62 | | |
| | Total Tax Rate: | 7.7095739644 | | | | | |
| | | | | Taxes w/Current Exemptions: | $4,449.65 | | |
| | | | | Taxes w/o Exemptions: | $4,449.65 | | |
Improvement / Building
| Improvement #1: | Residential Bldg | State Code: | 11 | 1822.0 sqft | Value: | $478,159 |
| Bathrooms (#): | 2 (FULL) | Bedrooms (#): | 3 | | Exterior Wall: | SI/ST | Floor Construction: | FRAME | | Foundation: | CONPR | Heating/Cooling: | HPUMP | | Roof Cover: | COMP |   |   |
|
| | Type | Description | Class CD | Sub Class CD | Year Built | Area |
| | MA | Main Area | 4+ | 1S | 1995 | 1822.0 |
| | HWPOR | House Wood Porch | 4 | * | 1995 | 25.0 |
| | HDECK | House Deck | 4 | * | 1995 | 100.0 |
| | GATT | House Attached Garage | 4 | 1S | 1995 | 440.0 |
| | SHED | Shed (Table Not Dep) | 4 | * | 1995 | 160.0 |
| | GARAG | Garage (Table Not Dep) | 4 | * | 1995 | 808.0 |
Sketch
Property Image
Land
| 1 | 4238-1375S | Residential Sites Full Lots in Orchard Tracts | 0.0000 | 0.00 | 0.00 | 0.00 | 1.00 | $99,000 | $0 |
Roll Value History
| 2026 | N/A | N/A | N/A | N/A | N/A |
| 2025 | $478,159 | $99,000 | $0 | $577,159 | $577,159 |
| 2024 | $456,425 | $94,500 | $0 | $550,925 | $550,925 |
| 2023 | $442,230 | $85,000 | $0 | $527,230 | $527,230 |
| 2022 | $309,109 | $80,000 | $0 | $389,109 | $389,109 |
Deed and Sales History
| 1 | 07/22/2024 | SWD | Statutory Warranty Deed | AARON D & SHANNEA M BIENKOWSKI | MARK G & ELIZABETH EDGREN | | | $683,000.00 | 142939 | |
| 2 | 06/29/2023 | SWD | Statutory Warranty Deed | JON D GOOD | AARON D & SHANNEA M BIENKOWSKI | | | $637,000.00 | 141180 | |
| 3 | 08/15/2022 | QCD | Quit Claim Deed | JON D GOOD | JON D GOOD | | | | 139635 | |
| 4 | 08/26/2020 | QCD | Quit Claim Deed | JON D GOOD | JON D GOOD | | | | 134936 | |
| 5 | 06/29/2002 | QCD | Quit Claim Deed | JON D GOOD | JON D/JILL LOUISE GOOD | 0 | 0 | $45,100.00 | 95034 | 0 |
| 6 | 06/28/2002 | QCD | Quit Claim Deed | JON D GOOD | JON D/JILL LOUISE GOOD | 0 | 0 | $0.00 | 95035 | 0 |
| 7 | 08/05/1994 | QCD | Quit Claim Deed | GOOD, JON D | GOOD, JOHN D/JAMES L/DIANE M | 0 | 0 | $0.00 | 74856 | 0 |
| 8 | 07/05/1994 | QCD | Quit Claim Deed | BISHOP BROTHERS CONSTRUCT | GOOD, JON D | 0 | 0 | $0.00 | 74558 | 0 |
| 9 | 12/17/1993 | TXD | Tax Deed | JEFFERSON COUNTY | BISHOP BROTHERS CONTRUCTION | 0 | 0 | $0.00 | 72909 | 0 |
Payout Agreement
| No payout information available.. |