Property
Account |
| Property ID: | 32222 | Abbreviated Legal Description: | IRVING PARK ADDITION BLK 7 LOTS 9 & 10 |
| Parcel # / Geo ID: | 963300705 | Agent Code: | |
| Type: | Real | | |
| Tax Area: | 0111 - 1-50F1E1H2L1 | Land Use Code | 91 |
| Open Space: | N | DFL | N |
| Historic Property: | N | Remodel Property: | N |
| Multi-Family Redevelopment: | N | | |
| Township: | 30N | Section: | 16 |
| Range: | 1W |
Location |
| Address: | | Mapsco: | 034/048 |
| Neighborhood: | S16&17 T30 R1W SALEM,EVERGRN,IRVING&SUNNYSIDE PKS,PIONEER AC | Map ID: | |
| Neighborhood CD: | 5340 |
Owner |
| Name: | FRARY FAMILY TRUST | Owner ID: | 101560 |
| Mailing Address: | WILLIAM R FRARY TRUSTEE 231 S 2ND ST PORT TOWNSEND, WA 98368 | % Ownership: | 100.0000000000% |
| | | Exemptions: | |
Pay Tax Due
Select the appropriate checkbox next to the year to be paid. Multiple years may be selected.
*Convenience Fee not included
Taxes and Assessment Details
Property Tax Information as of
03/11/2026
Click on "Statement Details" to expand or collapse a tax statement.
* Please enter a valid date ** Please enter a valid date *
Statement Details |
| 2026 | 21492 | STATE - STATE LEVY (SCHOOL) | $9.49 | $9.48 | $0.00 | $0.00 | $0.00 | $18.97 |
| 2026 | 21492 | COUNTY - COUNTY LEVIES (CE, DD, VET, MH) | $3.79 | $3.78 | $0.00 | $0.00 | $0.00 | $7.57 |
| 2026 | 21492 | CONSERVE - CONSERVATION FUTURES | $0.12 | $0.11 | $0.00 | $0.00 | $0.00 | $0.23 |
| 2026 | 21492 | COROADS - COUNTY ROADS (ROADS, DIV TO CE) | $3.06 | $3.06 | $0.00 | $0.00 | $0.00 | $6.12 |
| 2026 | 21492 | PORTPT - PORT DISTRICT | $1.54 | $1.53 | $0.00 | $0.00 | $0.00 | $3.07 |
| 2026 | 21492 | PUD1 - PUD #1 | $0.25 | $0.24 | $0.00 | $0.00 | $0.00 | $0.49 |
| 2026 | 21492 | LIB1 - LIBRARY DIST #1 | $1.19 | $1.18 | $0.00 | $0.00 | $0.00 | $2.37 |
| 2026 | 21492 | HD2 - HOSP DIST #2 | $0.22 | $0.22 | $0.00 | $0.00 | $0.00 | $0.44 |
| 2026 | 21492 | SD50 - SCHOOL DIST #50 | $7.52 | $7.51 | $0.00 | $0.00 | $0.00 | $15.03 |
| 2026 | 21492 | FD1 - FIRE DISTRICT #1 | $5.02 | $5.02 | $0.00 | $0.00 | $0.00 | $10.04 |
| 2026 | 21492 | EMS1 - FIRE DIST #1 EMS | $1.93 | $1.93 | $0.00 | $0.00 | $0.00 | $3.86 |
| 2026 | 21492 | FPLCA - DNR Landowner Contingency Assmt | $3.00 | $3.00 | $0.00 | $0.00 | $0.00 | $6.00 |
| 2026 | 21492 | JCCD - JC Conservation District | $2.53 | $2.53 | $0.00 | $0.00 | $0.00 | $5.06 |
| 2026 | 21492 | NWA - Noxious Weed Assessment | $2.98 | $2.97 | $0.00 | $0.00 | $0.00 | $5.95 |
| 2026 | 21492 | OSS - On Site Septic | $23.10 | $23.10 | $0.00 | $0.00 | $0.00 | $46.20 |
| 2026 | 21492 | TOTAL: | $65.74 | $65.66 | $0.00 | $0.00 | $0.00 | $131.40 |
|
| 2026 | 21492 | $65.74 | $65.66 | $0.00 | $0.00 | $0.00 | $131.40 |
Statement Details |
| 2025 | 21554 | STATE - STATE LEVY (SCHOOL) | $9.89 | $9.89 | $0.00 | $0.00 | $19.78 | $0.00 |
| 2025 | 21554 | COUNTY - COUNTY LEVIES (CE, DD, VET, MH) | $3.89 | $3.88 | $0.00 | $0.00 | $7.77 | $0.00 |
| 2025 | 21554 | CONSERVE - CONSERVATION FUTURES | $0.12 | $0.11 | $0.00 | $0.00 | $0.23 | $0.00 |
| 2025 | 21554 | COROADS - COUNTY ROADS (ROADS, DIV TO CE) | $3.12 | $3.11 | $0.00 | $0.00 | $6.23 | $0.00 |
| 2025 | 21554 | PORTPT - PORT DISTRICT | $1.59 | $1.58 | $0.00 | $0.00 | $3.17 | $0.00 |
| 2025 | 21554 | PUD1 - PUD #1 | $0.26 | $0.25 | $0.00 | $0.00 | $0.51 | $0.00 |
| 2025 | 21554 | LIB1 - LIBRARY DIST #1 | $1.21 | $1.20 | $0.00 | $0.00 | $2.41 | $0.00 |
| 2025 | 21554 | HD2 - HOSP DIST #2 | $0.23 | $0.22 | $0.00 | $0.00 | $0.45 | $0.00 |
| 2025 | 21554 | SD50 - SCHOOL DIST #50 | $7.24 | $7.22 | $0.00 | $0.00 | $14.46 | $0.00 |
| 2025 | 21554 | FD1 - FIRE DISTRICT #1 | $5.14 | $5.13 | $0.00 | $0.00 | $10.27 | $0.00 |
| 2025 | 21554 | EMS1 - FIRE DIST #1 EMS | $1.98 | $1.97 | $0.00 | $0.00 | $3.95 | $0.00 |
| 2025 | 21554 | FPLCA - DNR Landowner Contingency Assmt | $3.00 | $3.00 | $0.00 | $0.00 | $6.00 | $0.00 |
| 2025 | 21554 | JCCD - JC Conservation District | $2.53 | $2.53 | $0.00 | $0.00 | $5.06 | $0.00 |
| 2025 | 21554 | NWA - Noxious Weed Assessment | $2.15 | $2.15 | $0.00 | $0.00 | $4.30 | $0.00 |
| 2025 | 21554 | TOTAL: | $42.35 | $42.24 | $0.00 | $0.00 | $84.59 | $0.00 |
|
| 2025 | 21554 | $42.35 | $42.24 | $0.00 | $0.00 | $84.59 | $0.00 |
Statement Details |
| 2024 | 21599 | STATE - STATE LEVY (SCHOOL) | $9.11 | $9.11 | $0.00 | $0.00 | $18.22 | $0.00 |
| 2024 | 21599 | COUNTY - COUNTY LEVIES (CE, DD, VET, MH) | $3.89 | $3.89 | $0.00 | $0.00 | $7.78 | $0.00 |
| 2024 | 21599 | CONSERVE - CONSERVATION FUTURES | $0.12 | $0.11 | $0.00 | $0.00 | $0.23 | $0.00 |
| 2024 | 21599 | COROADS - COUNTY ROADS (ROADS, DIV TO CE) | $3.14 | $3.13 | $0.00 | $0.00 | $6.27 | $0.00 |
| 2024 | 21599 | PORTPT - PORT DISTRICT | $1.61 | $1.61 | $0.00 | $0.00 | $3.22 | $0.00 |
| 2024 | 21599 | PUD1 - PUD #1 | $0.26 | $0.25 | $0.00 | $0.00 | $0.51 | $0.00 |
| 2024 | 21599 | LIB1 - LIBRARY DIST #1 | $1.22 | $1.21 | $0.00 | $0.00 | $2.43 | $0.00 |
| 2024 | 21599 | HD2 - HOSP DIST #2 | $0.23 | $0.22 | $0.00 | $0.00 | $0.45 | $0.00 |
| 2024 | 21599 | SD50 - SCHOOL DIST #50 | $7.37 | $7.36 | $0.00 | $0.00 | $14.73 | $0.00 |
| 2024 | 21599 | FD1 - FIRE DISTRICT #1 | $5.16 | $5.15 | $0.00 | $0.00 | $10.31 | $0.00 |
| 2024 | 21599 | EMS1 - FIRE DIST #1 EMS | $1.97 | $1.97 | $0.00 | $0.00 | $3.94 | $0.00 |
| 2024 | 21599 | FPLCA - DNR Landowner Contingency Assmt | $3.00 | $3.00 | $0.00 | $0.00 | $6.00 | $0.00 |
| 2024 | 21599 | JCCD - JC Conservation District | $2.53 | $2.53 | $0.00 | $0.00 | $5.06 | $0.00 |
| 2024 | 21599 | NWA - Noxious Weed Assessment | $2.15 | $2.15 | $0.00 | $0.00 | $4.30 | $0.00 |
| 2024 | 21599 | TOTAL: | $41.76 | $41.69 | $0.00 | $0.00 | $83.45 | $0.00 |
|
| 2024 | 21599 | $41.76 | $41.69 | $0.00 | $0.00 | $83.45 | $0.00 |
Statement Details |
| 2023 | 21636 | STATE - STATE LEVY (SCHOOL) | $8.83 | $8.82 | $0.00 | $0.00 | $17.65 | $0.00 |
| 2023 | 21636 | COUNTY - COUNTY LEVIES (CE, DD, VET, MH) | $3.85 | $3.84 | $0.00 | $0.00 | $7.69 | $0.00 |
| 2023 | 21636 | CONSERVE - CONSERVATION FUTURES | $0.12 | $0.11 | $0.00 | $0.00 | $0.23 | $0.00 |
| 2023 | 21636 | COROADS - COUNTY ROADS (ROADS, DIV TO CE) | $3.12 | $3.11 | $0.00 | $0.00 | $6.23 | $0.00 |
| 2023 | 21636 | PORTPT - PORT DISTRICT | $1.63 | $1.61 | $0.00 | $0.00 | $3.24 | $0.00 |
| 2023 | 21636 | PUD1 - PUD #1 | $0.26 | $0.25 | $0.00 | $0.00 | $0.51 | $0.00 |
| 2023 | 21636 | LIB1 - LIBRARY DIST #1 | $1.21 | $1.20 | $0.00 | $0.00 | $2.41 | $0.00 |
| 2023 | 21636 | HD2 - HOSP DIST #2 | $0.23 | $0.22 | $0.00 | $0.00 | $0.45 | $0.00 |
| 2023 | 21636 | SD50 - SCHOOL DIST #50 | $7.00 | $7.00 | $0.00 | $0.00 | $14.00 | $0.00 |
| 2023 | 21636 | FD1 - FIRE DISTRICT #1 | $3.18 | $3.17 | $0.00 | $0.00 | $6.35 | $0.00 |
| 2023 | 21636 | EMS1 - FIRE DIST #1 EMS | $1.35 | $1.35 | $0.00 | $0.00 | $2.70 | $0.00 |
| 2023 | 21636 | FPLCA - DNR Landowner Contingency Assmt | $3.00 | $3.00 | $0.00 | $0.00 | $6.00 | $0.00 |
| 2023 | 21636 | JCCD - JC Conservation District | $2.53 | $2.53 | $0.00 | $0.00 | $5.06 | $0.00 |
| 2023 | 21636 | NWA - Noxious Weed Assessment | $2.15 | $2.15 | $0.00 | $0.00 | $4.30 | $0.00 |
| 2023 | 21636 | TOTAL: | $38.46 | $38.36 | $0.00 | $0.00 | $76.82 | $0.00 |
|
| 2023 | 21636 | $38.46 | $38.36 | $0.00 | $0.00 | $76.82 | $0.00 |
Values
| (+) Improvement Homesite Value: | + | $0 | |
| (+) Improvement Non-Homesite Value: | + | $0 | |
| (+) Land Homesite Value: | + | $0 | |
| (+) Land Non-Homesite Value: | + | $8,250 | |
| (+) Curr Use (HS): | + | $0 | $0 |
| (+) Curr Use (NHS): | + | $0 | $0 |
| | | -------------------------- | |
| (=) Market Value: | = | $8,250 | |
| (–) Productivity Loss: | – | $0 | |
| | | -------------------------- | |
| (=) Subtotal: | = | $8,250 | |
| (+) Senior Appraised Value: | + | $0 | |
| (+) Non-Senior Appraised Value: | + | $8,250 | |
| | | -------------------------- | |
| (=) Total Appraised Value: | = | $8,250 | |
| (–) Senior Exemption Loss: | – | $0 | |
| (–) Exemption Loss: | – | $0 | |
| | | -------------------------- | |
| (=) Taxable Value: | = | $8,250 | |
Taxing Jurisdiction
| Owner: | FRARY FAMILY TRUST | | |
| % Ownership: | 100.0000000000% | | |
| Total Value: | N/A | | |
| Tax Area: | 0111 - 1-50F1E1H2L1 |
| CE | COUNTY CURRENT EXPENSE | N/A | N/A | N/A | N/A | | |
| CNTYDD | DEVELOPMENTAL DISABILITIES | N/A | N/A | N/A | N/A | | |
| CNTYVET | VETERANS RELIEF | N/A | N/A | N/A | N/A | | |
| MENTAL | MENTAL HEALTH | N/A | N/A | N/A | N/A | | |
| ROADS | COUNTY ROADS | N/A | N/A | N/A | N/A | | |
| HOSP2CASH | HOSP DIST #2 GENERAL | N/A | N/A | N/A | N/A | | |
| SCH50BOND | SCHOOL DIST #50 BOND 2016 | N/A | N/A | N/A | N/A | | |
| SCH50CP | SCHOOL DIST #50 CAP PROJ | N/A | N/A | N/A | N/A | | |
| SCH50MO | SCHOOL DIST #50 EP & O | N/A | N/A | N/A | N/A | | |
| CONSERVE | CONSERVATION FUTURES | N/A | N/A | N/A | N/A | | |
| EMS1 | FIRE DIST #1 EMS | N/A | N/A | N/A | N/A | | |
| FD1 | FIRE DIST #1 GENERAL | N/A | N/A | N/A | N/A | | |
| LIB1 | LIBRARY DIST #1 GENERAL | N/A | N/A | N/A | N/A | | |
| PORTPT | PORT OF PT GENERAL | N/A | N/A | N/A | N/A | | |
| PORTPTIDD | PORT OF PT IDD 2019 | N/A | N/A | N/A | N/A | | |
| PUD1 | PUD #1 GENERAL | N/A | N/A | N/A | N/A | | |
| STATE | STATE SCHOOL PART 1 | N/A | N/A | N/A | N/A | | |
| STATE2 | STATE SCHOOL PART 2 | N/A | N/A | N/A | N/A | | |
| | Total Tax Rate: | N/A | | | | | |
| | | | | Taxes w/Current Exemptions: | N/A | | |
| | | | | Taxes w/o Exemptions: | N/A | | |
Improvement / Building
Sketch
| No sketches available for this property. |
Property Image
Land
| 1 | 5340-1187L | | 0.0000 | 0.00 | 0.00 | 0.00 | 2.00 | $8,250 | $0 |
Roll Value History
| 2026 | N/A | N/A | N/A | N/A | N/A |
| 2025 | $0 | $8,250 | $0 | $8,250 | $8,250 |
| 2024 | $0 | $8,250 | $0 | $8,250 | $8,250 |
| 2023 | $0 | $7,875 | $0 | $7,875 | $7,875 |
| 2022 | $0 | $7,500 | $0 | $7,500 | $7,500 |
Deed and Sales History
| 1 | 10/23/2019 | SWD | Statutory Warranty Deed | AMERICAN LEGION POST #26 | FRARY FAMILY TRUST | | | $68,000.00 | 133387 | |
|   | |
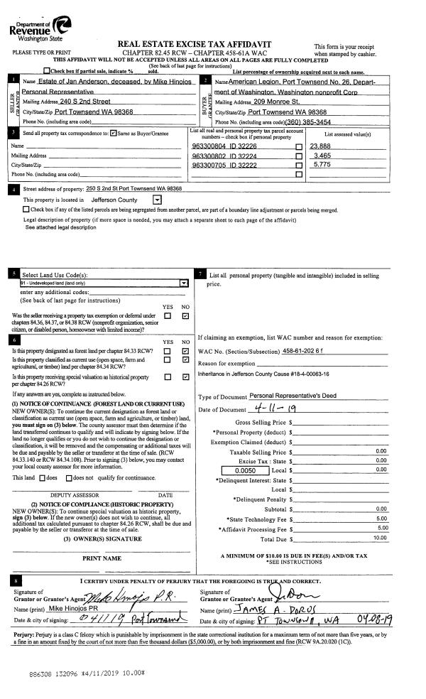
| 2 | 04/11/2019 | PRD | Personal Representatives Deed | JAN ANDERSON | AMERICAN LEGION POST #26 | | | | 132096 | |
Payout Agreement
| No payout information available.. |