Property
Account |
| Property ID: | 32239 | Abbreviated Legal Description: | IRVING PARK ADDITION BLK 14 LOTS 1 THRU 10 & VAC ST |
| Parcel # / Geo ID: | 963301401 | Agent Code: | |
| Type: | Real | | |
| Tax Area: | 0111 - 1-50F1E1H2L1 | Land Use Code | 83 |
| Open Space: | Y | DFL | N |
| Historic Property: | N | Remodel Property: | N |
| Multi-Family Redevelopment: | N | | |
| Township: | 30N | Section: | 16 |
| Range: | 1W |
Location |
| Address: | 1893 S JACOB MILLER RD PORT TOWNSEND, WA 98368 | Mapsco: | 034/072 |
| Neighborhood: | S16&17 T30 R1W SALEM,EVERGRN,IRVING&SUNNYSIDE PKS,PIONEER AC | Map ID: | |
| Neighborhood CD: | 5340 |
Owner |
| Name: | ARCADIA PROPERTIES LLC | Owner ID: | 95378 |
| Mailing Address: | PO BOX 2014 PORT TOWNSEND, WA 98368-0089 | % Ownership: | 100.0000000000% |
| | | Exemptions: | |
Pay Tax Due
Select the appropriate checkbox next to the year to be paid. Multiple years may be selected.
*Convenience Fee not included
Taxes and Assessment Details
Property Tax Information as of
02/13/2026
Click on "Statement Details" to expand or collapse a tax statement.
* Please enter a valid date ** Please enter a valid date *
Statement Details |
| 2026 | 21509 | STATE - STATE LEVY (SCHOOL) | $302.98 | $302.96 | $0.00 | $0.00 | $0.00 | $605.94 |
| 2026 | 21509 | COUNTY - COUNTY LEVIES (CE, DD, VET, MH) | $121.14 | $121.10 | $0.00 | $0.00 | $0.00 | $242.24 |
| 2026 | 21509 | CONSERVE - CONSERVATION FUTURES | $3.63 | $3.63 | $0.00 | $0.00 | $0.00 | $7.26 |
| 2026 | 21509 | COROADS - COUNTY ROADS (ROADS, DIV TO CE) | $97.72 | $97.71 | $0.00 | $0.00 | $0.00 | $195.43 |
| 2026 | 21509 | PORTPT - PORT DISTRICT | $48.93 | $48.91 | $0.00 | $0.00 | $0.00 | $97.84 |
| 2026 | 21509 | PUD1 - PUD #1 | $7.88 | $7.88 | $0.00 | $0.00 | $0.00 | $15.76 |
| 2026 | 21509 | LIB1 - LIBRARY DIST #1 | $37.81 | $37.80 | $0.00 | $0.00 | $0.00 | $75.61 |
| 2026 | 21509 | HD2 - HOSP DIST #2 | $7.07 | $7.06 | $0.00 | $0.00 | $0.00 | $14.13 |
| 2026 | 21509 | SD50 - SCHOOL DIST #50 | $240.02 | $240.01 | $0.00 | $0.00 | $0.00 | $480.03 |
| 2026 | 21509 | FD1 - FIRE DISTRICT #1 | $160.40 | $160.40 | $0.00 | $0.00 | $0.00 | $320.80 |
| 2026 | 21509 | EMS1 - FIRE DIST #1 EMS | $61.67 | $61.67 | $0.00 | $0.00 | $0.00 | $123.34 |
| 2026 | 21509 | FP - DNR Forest Fire Protection Assmt | $8.50 | $8.50 | $0.00 | $0.00 | $0.00 | $17.00 |
| 2026 | 21509 | FPLCA - DNR Landowner Contingency Assmt | $3.00 | $3.00 | $0.00 | $0.00 | $0.00 | $6.00 |
| 2026 | 21509 | JCCD - JC Conservation District | $2.65 | $2.64 | $0.00 | $0.00 | $0.00 | $5.29 |
| 2026 | 21509 | NWA - Noxious Weed Assessment | $3.43 | $3.42 | $0.00 | $0.00 | $0.00 | $6.85 |
| 2026 | 21509 | WAT - Clean Water District | $13.00 | $13.00 | $0.00 | $0.00 | $0.00 | $26.00 |
| 2026 | 21509 | FP ADMIN - FP ADMIN | $0.50 | $0.00 | $0.00 | $0.00 | $0.00 | $0.50 |
| 2026 | 21509 | TOTAL: | $1120.33 | $1119.69 | $0.00 | $0.00 | $0.00 | $2240.02 |
|
| 2026 | 21509 | $1120.33 | $1119.69 | $0.00 | $0.00 | $0.00 | $2240.02 |
Statement Details |
| 2025 | 21571 | STATE - STATE LEVY (SCHOOL) | $316.00 | $316.00 | $0.00 | $0.00 | $632.00 | $0.00 |
| 2025 | 21571 | COUNTY - COUNTY LEVIES (CE, DD, VET, MH) | $124.28 | $124.26 | $0.00 | $0.00 | $248.54 | $0.00 |
| 2025 | 21571 | CONSERVE - CONSERVATION FUTURES | $3.73 | $3.72 | $0.00 | $0.00 | $7.45 | $0.00 |
| 2025 | 21571 | COROADS - COUNTY ROADS (ROADS, DIV TO CE) | $99.56 | $99.56 | $0.00 | $0.00 | $199.12 | $0.00 |
| 2025 | 21571 | PORTPT - PORT DISTRICT | $50.72 | $50.70 | $0.00 | $0.00 | $101.42 | $0.00 |
| 2025 | 21571 | PUD1 - PUD #1 | $8.13 | $8.13 | $0.00 | $0.00 | $16.26 | $0.00 |
| 2025 | 21571 | LIB1 - LIBRARY DIST #1 | $38.52 | $38.52 | $0.00 | $0.00 | $77.04 | $0.00 |
| 2025 | 21571 | HD2 - HOSP DIST #2 | $7.25 | $7.25 | $0.00 | $0.00 | $14.50 | $0.00 |
| 2025 | 21571 | SD50 - SCHOOL DIST #50 | $230.96 | $230.94 | $0.00 | $0.00 | $461.90 | $0.00 |
| 2025 | 21571 | FD1 - FIRE DISTRICT #1 | $163.99 | $163.98 | $0.00 | $0.00 | $327.97 | $0.00 |
| 2025 | 21571 | EMS1 - FIRE DIST #1 EMS | $63.08 | $63.07 | $0.00 | $0.00 | $126.15 | $0.00 |
| 2025 | 21571 | FP - DNR Forest Fire Protection Assmt | $8.50 | $8.50 | $0.00 | $0.00 | $17.00 | $0.00 |
| 2025 | 21571 | FPLCA - DNR Landowner Contingency Assmt | $3.00 | $3.00 | $0.00 | $0.00 | $6.00 | $0.00 |
| 2025 | 21571 | JCCD - JC Conservation District | $2.65 | $2.64 | $0.00 | $0.00 | $5.29 | $0.00 |
| 2025 | 21571 | NWA - Noxious Weed Assessment | $2.45 | $2.45 | $0.00 | $0.00 | $4.90 | $0.00 |
| 2025 | 21571 | WAT - Clean Water District | $13.00 | $13.00 | $0.00 | $0.00 | $26.00 | $0.00 |
| 2025 | 21571 | FP ADMIN - FP ADMIN | $0.50 | $0.00 | $0.00 | $0.00 | $0.50 | $0.00 |
| 2025 | 21571 | TOTAL: | $1136.32 | $1135.72 | $0.00 | $0.00 | $2272.04 | $0.00 |
|
| 2025 | 21571 | $1136.32 | $1135.72 | $0.00 | $0.00 | $2272.04 | $0.00 |
Statement Details |
| 2024 | 21616 | STATE - STATE LEVY (SCHOOL) | $285.22 | $285.22 | $0.00 | $0.00 | $570.44 | $0.00 |
| 2024 | 21616 | COUNTY - COUNTY LEVIES (CE, DD, VET, MH) | $122.05 | $122.05 | $0.00 | $0.00 | $244.10 | $0.00 |
| 2024 | 21616 | CONSERVE - CONSERVATION FUTURES | $3.66 | $3.66 | $0.00 | $0.00 | $7.32 | $0.00 |
| 2024 | 21616 | COROADS - COUNTY ROADS (ROADS, DIV TO CE) | $98.22 | $98.20 | $0.00 | $0.00 | $196.42 | $0.00 |
| 2024 | 21616 | PORTPT - PORT DISTRICT | $50.41 | $50.41 | $0.00 | $0.00 | $100.82 | $0.00 |
| 2024 | 21616 | PUD1 - PUD #1 | $8.02 | $8.01 | $0.00 | $0.00 | $16.03 | $0.00 |
| 2024 | 21616 | LIB1 - LIBRARY DIST #1 | $38.00 | $37.99 | $0.00 | $0.00 | $75.99 | $0.00 |
| 2024 | 21616 | HD2 - HOSP DIST #2 | $7.12 | $7.12 | $0.00 | $0.00 | $14.24 | $0.00 |
| 2024 | 21616 | SD50 - SCHOOL DIST #50 | $230.77 | $230.74 | $0.00 | $0.00 | $461.51 | $0.00 |
| 2024 | 21616 | FD1 - FIRE DISTRICT #1 | $161.38 | $161.37 | $0.00 | $0.00 | $322.75 | $0.00 |
| 2024 | 21616 | EMS1 - FIRE DIST #1 EMS | $61.64 | $61.64 | $0.00 | $0.00 | $123.28 | $0.00 |
| 2024 | 21616 | FP - DNR Forest Fire Protection Assmt | $8.50 | $8.50 | $0.00 | $0.00 | $17.00 | $0.00 |
| 2024 | 21616 | FPLCA - DNR Landowner Contingency Assmt | $3.00 | $3.00 | $0.00 | $0.00 | $6.00 | $0.00 |
| 2024 | 21616 | JCCD - JC Conservation District | $2.65 | $2.64 | $0.00 | $0.00 | $5.29 | $0.00 |
| 2024 | 21616 | NWA - Noxious Weed Assessment | $2.45 | $2.45 | $0.00 | $0.00 | $4.90 | $0.00 |
| 2024 | 21616 | WAT - Clean Water District | $12.50 | $12.50 | $0.00 | $0.00 | $25.00 | $0.00 |
| 2024 | 21616 | FP ADMIN - FP ADMIN | $0.50 | $0.00 | $0.00 | $0.00 | $0.50 | $0.00 |
| 2024 | 21616 | TOTAL: | $1096.09 | $1095.50 | $0.00 | $0.00 | $2191.59 | $0.00 |
|
| 2024 | 21616 | $1096.09 | $1095.50 | $0.00 | $0.00 | $2191.59 | $0.00 |
Statement Details |
| 2023 | 21653 | STATE - STATE LEVY (SCHOOL) | $265.23 | $265.21 | $0.00 | $0.00 | $530.44 | $0.00 |
| 2023 | 21653 | COUNTY - COUNTY LEVIES (CE, DD, VET, MH) | $115.75 | $115.71 | $0.00 | $0.00 | $231.46 | $0.00 |
| 2023 | 21653 | CONSERVE - CONSERVATION FUTURES | $3.47 | $3.47 | $0.00 | $0.00 | $6.94 | $0.00 |
| 2023 | 21653 | COROADS - COUNTY ROADS (ROADS, DIV TO CE) | $93.64 | $93.63 | $0.00 | $0.00 | $187.27 | $0.00 |
| 2023 | 21653 | PORTPT - PORT DISTRICT | $48.76 | $48.75 | $0.00 | $0.00 | $97.51 | $0.00 |
| 2023 | 21653 | PUD1 - PUD #1 | $7.67 | $7.67 | $0.00 | $0.00 | $15.34 | $0.00 |
| 2023 | 21653 | LIB1 - LIBRARY DIST #1 | $36.23 | $36.22 | $0.00 | $0.00 | $72.45 | $0.00 |
| 2023 | 21653 | HD2 - HOSP DIST #2 | $6.76 | $6.75 | $0.00 | $0.00 | $13.51 | $0.00 |
| 2023 | 21653 | SD50 - SCHOOL DIST #50 | $210.46 | $210.45 | $0.00 | $0.00 | $420.91 | $0.00 |
| 2023 | 21653 | FD1 - FIRE DISTRICT #1 | $95.34 | $95.34 | $0.00 | $0.00 | $190.68 | $0.00 |
| 2023 | 21653 | EMS1 - FIRE DIST #1 EMS | $40.56 | $40.55 | $0.00 | $0.00 | $81.11 | $0.00 |
| 2023 | 21653 | FP - DNR Forest Fire Protection Assmt | $8.50 | $8.50 | $0.00 | $0.00 | $17.00 | $0.00 |
| 2023 | 21653 | FPLCA - DNR Landowner Contingency Assmt | $3.00 | $3.00 | $0.00 | $0.00 | $6.00 | $0.00 |
| 2023 | 21653 | JCCD - JC Conservation District | $2.65 | $2.64 | $0.00 | $0.00 | $5.29 | $0.00 |
| 2023 | 21653 | NWA - Noxious Weed Assessment | $2.45 | $2.45 | $0.00 | $0.00 | $4.90 | $0.00 |
| 2023 | 21653 | WAT - Clean Water District | $12.00 | $12.00 | $0.00 | $0.00 | $24.00 | $0.00 |
| 2023 | 21653 | FP ADMIN - FP ADMIN | $0.50 | $0.00 | $0.00 | $0.00 | $0.50 | $0.00 |
| 2023 | 21653 | TOTAL: | $952.97 | $952.34 | $0.00 | $0.00 | $1905.31 | $0.00 |
|
| 2023 | 21653 | $952.97 | $952.34 | $0.00 | $0.00 | $1905.31 | $0.00 |
Values
| (+) Improvement Homesite Value: | + | $0 | |
| (+) Improvement Non-Homesite Value: | + | $109,143 | |
| (+) Land Homesite Value: | + | $0 | |
| (+) Land Non-Homesite Value: | + | $154,000 | |
| (+) Curr Use (HS): | + | $0 | $0 |
| (+) Curr Use (NHS): | + | $15,070 | $411 |
| | | -------------------------- | |
| (=) Market Value: | = | $278,213 | |
| (–) Productivity Loss: | – | $14,659 | |
| | | -------------------------- | |
| (=) Subtotal: | = | $263,554 | |
| (+) Senior Appraised Value: | + | $0 | |
| (+) Non-Senior Appraised Value: | + | $263,554 | |
| | | -------------------------- | |
| (=) Total Appraised Value: | = | $263,554 | |
| (–) Senior Exemption Loss: | – | $0 | |
| (–) Exemption Loss: | – | $0 | |
| | | -------------------------- | |
| (=) Taxable Value: | = | $263,554 | |
Taxing Jurisdiction
| Owner: | ARCADIA PROPERTIES LLC | | |
| % Ownership: | 100.0000000000% | | |
| Total Value: | N/A | | |
| Tax Area: | 0111 - 1-50F1E1H2L1 |
| CE | COUNTY CURRENT EXPENSE | N/A | N/A | N/A | N/A | | |
| CNTYDD | DEVELOPMENTAL DISABILITIES | N/A | N/A | N/A | N/A | | |
| CNTYVET | VETERANS RELIEF | N/A | N/A | N/A | N/A | | |
| MENTAL | MENTAL HEALTH | N/A | N/A | N/A | N/A | | |
| ROADS | COUNTY ROADS | N/A | N/A | N/A | N/A | | |
| HOSP2CASH | HOSP DIST #2 GENERAL | N/A | N/A | N/A | N/A | | |
| SCH50BOND | SCHOOL DIST #50 BOND 2016 | N/A | N/A | N/A | N/A | | |
| SCH50CP | SCHOOL DIST #50 CAP PROJ | N/A | N/A | N/A | N/A | | |
| SCH50MO | SCHOOL DIST #50 EP & O | N/A | N/A | N/A | N/A | | |
| CONSERVE | CONSERVATION FUTURES | N/A | N/A | N/A | N/A | | |
| EMS1 | FIRE DIST #1 EMS | N/A | N/A | N/A | N/A | | |
| FD1 | FIRE DIST #1 GENERAL | N/A | N/A | N/A | N/A | | |
| LIB1 | LIBRARY DIST #1 GENERAL | N/A | N/A | N/A | N/A | | |
| PORTPT | PORT OF PT GENERAL | N/A | N/A | N/A | N/A | | |
| PORTPTIDD | PORT OF PT IDD 2019 | N/A | N/A | N/A | N/A | | |
| PUD1 | PUD #1 GENERAL | N/A | N/A | N/A | N/A | | |
| STATE | STATE SCHOOL PART 1 | N/A | N/A | N/A | N/A | | |
| STATE2 | STATE SCHOOL PART 2 | N/A | N/A | N/A | N/A | | |
| | Total Tax Rate: | N/A | | | | | |
| | | | | Taxes w/Current Exemptions: | N/A | | |
| | | | | Taxes w/o Exemptions: | N/A | | |
Improvement / Building
| Improvement #1: | Residential Bldg | State Code: | 19 | 0.0 sqft | Value: | $109,143 |
Sketch
Property Image
Land
| 1 | 5340-1187L | | 0.0000 | 0.00 | 0.00 | 0.00 | 11.00 | $154,000 | $0 |
| 2 | 5340-1187L | | 0.0000 | 0.00 | 0.00 | 0.00 | 1.00 | $15,070 | $411 |
Roll Value History
| 2026 | N/A | N/A | N/A | N/A | N/A |
| 2025 | $109,143 | $169,070 | $411 | $263,554 | $263,554 |
| 2024 | $109,143 | $169,070 | $411 | $263,554 | $263,554 |
| 2023 | $104,398 | $156,135 | $411 | $246,559 | $246,559 |
| 2022 | $94,907 | $143,700 | $411 | $225,318 | $225,318 |
Deed and Sales History
| 1 | 05/04/2016 | QCD | Quit Claim Deed | JAMES L DAVIS | ARCADIA PROPERTIES LLC | | | | 125385 | |
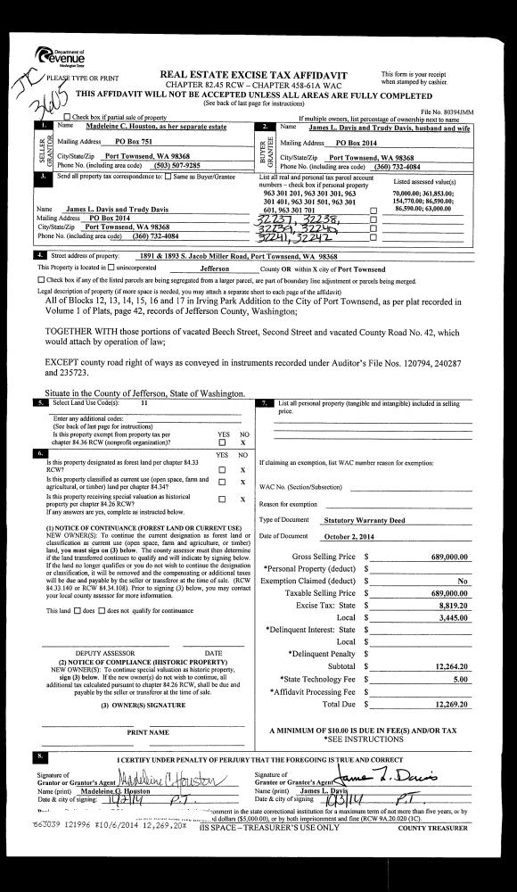
| 2 | 10/02/2014 | SWD | Statutory Warranty Deed | MADELEINE C HOUSTON | JAMES L DAVIS | | | $689,000.00 | 121996 | |
|   | |
| 3 | 02/19/2009 | QCD | Quit Claim Deed | ARCADIA REACH LLC | HOUSTON, MADELEINE C | 0 | 0 | $0.00 | 112527 | 0 |
| 4 | 12/02/2000 | WD | Warranty Deed | SEVERIN GROUP | ARCARDIA REACH LLC | 0 | 0 | $0.00 | 91274 | 0 |
| 5 | 06/29/2000 | SWD | Statutory Warranty Deed | MAGID, PAUL/ET AL | SEVERIN GROUP/NOMINEE | 0 | 0 | $145,000.00 | 89993 | 0 |
|   | |
Payout Agreement
| No payout information available.. |