Property
Account |
| Property ID: | 32241 | Abbreviated Legal Description: | IRVING PARK ADDITION BLK 16 LOTS 1 THRU 10 & VAC ST |
| Parcel # / Geo ID: | 963301601 | Agent Code: | |
| Type: | Real | | |
| Tax Area: | 0111 - 1-50F1E1H2L1 | Land Use Code | 83 |
| Open Space: | Y | DFL | N |
| Historic Property: | N | Remodel Property: | N |
| Multi-Family Redevelopment: | N | | |
| Township: | 30N | Section: | 16 |
| Range: | 1W |
Location |
| Address: | | Mapsco: | 034/076 |
| Neighborhood: | S16&17 T30 R1W SALEM,EVERGRN,IRVING&SUNNYSIDE PKS,PIONEER AC | Map ID: | |
| Neighborhood CD: | 5340 |
Owner |
| Name: | ARCADIA PROPERTIES LLC | Owner ID: | 95378 |
| Mailing Address: | PO BOX 2014 PORT TOWNSEND, WA 98368-0089 | % Ownership: | 100.0000000000% |
| | | Exemptions: | |
Pay Tax Due
Select the appropriate checkbox next to the year to be paid. Multiple years may be selected.
*Convenience Fee not included
Taxes and Assessment Details
Property Tax Information as of
02/13/2026
Click on "Statement Details" to expand or collapse a tax statement.
* Please enter a valid date ** Please enter a valid date *
Statement Details |
| 2026 | 21511 | STATE - STATE LEVY (SCHOOL) | $4.27 | $4.26 | $0.00 | $0.00 | $0.00 | $8.53 |
| 2026 | 21511 | COUNTY - COUNTY LEVIES (CE, DD, VET, MH) | $1.71 | $1.70 | $0.00 | $0.00 | $0.00 | $3.41 |
| 2026 | 21511 | CONSERVE - CONSERVATION FUTURES | $0.05 | $0.05 | $0.00 | $0.00 | $0.00 | $0.10 |
| 2026 | 21511 | COROADS - COUNTY ROADS (ROADS, DIV TO CE) | $1.38 | $1.37 | $0.00 | $0.00 | $0.00 | $2.75 |
| 2026 | 21511 | PORTPT - PORT DISTRICT | $0.69 | $0.69 | $0.00 | $0.00 | $0.00 | $1.38 |
| 2026 | 21511 | PUD1 - PUD #1 | $0.11 | $0.11 | $0.00 | $0.00 | $0.00 | $0.22 |
| 2026 | 21511 | LIB1 - LIBRARY DIST #1 | $0.53 | $0.53 | $0.00 | $0.00 | $0.00 | $1.06 |
| 2026 | 21511 | HD2 - HOSP DIST #2 | $0.10 | $0.10 | $0.00 | $0.00 | $0.00 | $0.20 |
| 2026 | 21511 | SD50 - SCHOOL DIST #50 | $3.39 | $3.38 | $0.00 | $0.00 | $0.00 | $6.77 |
| 2026 | 21511 | FD1 - FIRE DISTRICT #1 | $2.26 | $2.26 | $0.00 | $0.00 | $0.00 | $4.52 |
| 2026 | 21511 | EMS1 - FIRE DIST #1 EMS | $0.87 | $0.87 | $0.00 | $0.00 | $0.00 | $1.74 |
| 2026 | 21511 | FPLCA - DNR Landowner Contingency Assmt | $3.00 | $3.00 | $0.00 | $0.00 | $0.00 | $6.00 |
| 2026 | 21511 | JCCD - JC Conservation District | $2.65 | $2.64 | $0.00 | $0.00 | $0.00 | $5.29 |
| 2026 | 21511 | NWA - Noxious Weed Assessment | $3.43 | $3.42 | $0.00 | $0.00 | $0.00 | $6.85 |
| 2026 | 21511 | WAT - Clean Water District | $13.00 | $13.00 | $0.00 | $0.00 | $0.00 | $26.00 |
| 2026 | 21511 | TOTAL: | $37.44 | $37.38 | $0.00 | $0.00 | $0.00 | $74.82 |
|
| 2026 | 21511 | $37.44 | $37.38 | $0.00 | $0.00 | $0.00 | $74.82 |
Statement Details |
| 2025 | 21573 | STATE - STATE LEVY (SCHOOL) | $4.46 | $4.44 | $0.00 | $0.00 | $8.90 | $0.00 |
| 2025 | 21573 | COUNTY - COUNTY LEVIES (CE, DD, VET, MH) | $1.75 | $1.75 | $0.00 | $0.00 | $3.50 | $0.00 |
| 2025 | 21573 | CONSERVE - CONSERVATION FUTURES | $0.05 | $0.05 | $0.00 | $0.00 | $0.10 | $0.00 |
| 2025 | 21573 | COROADS - COUNTY ROADS (ROADS, DIV TO CE) | $1.40 | $1.40 | $0.00 | $0.00 | $2.80 | $0.00 |
| 2025 | 21573 | PORTPT - PORT DISTRICT | $0.72 | $0.71 | $0.00 | $0.00 | $1.43 | $0.00 |
| 2025 | 21573 | PUD1 - PUD #1 | $0.12 | $0.11 | $0.00 | $0.00 | $0.23 | $0.00 |
| 2025 | 21573 | LIB1 - LIBRARY DIST #1 | $0.54 | $0.54 | $0.00 | $0.00 | $1.08 | $0.00 |
| 2025 | 21573 | HD2 - HOSP DIST #2 | $0.10 | $0.10 | $0.00 | $0.00 | $0.20 | $0.00 |
| 2025 | 21573 | SD50 - SCHOOL DIST #50 | $3.26 | $3.24 | $0.00 | $0.00 | $6.50 | $0.00 |
| 2025 | 21573 | FD1 - FIRE DISTRICT #1 | $2.31 | $2.31 | $0.00 | $0.00 | $4.62 | $0.00 |
| 2025 | 21573 | EMS1 - FIRE DIST #1 EMS | $0.89 | $0.89 | $0.00 | $0.00 | $1.78 | $0.00 |
| 2025 | 21573 | FPLCA - DNR Landowner Contingency Assmt | $3.00 | $3.00 | $0.00 | $0.00 | $6.00 | $0.00 |
| 2025 | 21573 | JCCD - JC Conservation District | $2.65 | $2.64 | $0.00 | $0.00 | $5.29 | $0.00 |
| 2025 | 21573 | NWA - Noxious Weed Assessment | $2.45 | $2.45 | $0.00 | $0.00 | $4.90 | $0.00 |
| 2025 | 21573 | WAT - Clean Water District | $13.00 | $13.00 | $0.00 | $0.00 | $26.00 | $0.00 |
| 2025 | 21573 | TOTAL: | $36.70 | $36.63 | $0.00 | $0.00 | $73.33 | $0.00 |
|
| 2025 | 21573 | $36.70 | $36.63 | $0.00 | $0.00 | $73.33 | $0.00 |
Statement Details |
| 2024 | 21618 | STATE - STATE LEVY (SCHOOL) | $4.30 | $4.29 | $0.00 | $0.00 | $8.59 | $0.00 |
| 2024 | 21618 | COUNTY - COUNTY LEVIES (CE, DD, VET, MH) | $1.84 | $1.83 | $0.00 | $0.00 | $3.67 | $0.00 |
| 2024 | 21618 | CONSERVE - CONSERVATION FUTURES | $0.06 | $0.05 | $0.00 | $0.00 | $0.11 | $0.00 |
| 2024 | 21618 | COROADS - COUNTY ROADS (ROADS, DIV TO CE) | $1.48 | $1.48 | $0.00 | $0.00 | $2.96 | $0.00 |
| 2024 | 21618 | PORTPT - PORT DISTRICT | $0.76 | $0.75 | $0.00 | $0.00 | $1.51 | $0.00 |
| 2024 | 21618 | PUD1 - PUD #1 | $0.12 | $0.12 | $0.00 | $0.00 | $0.24 | $0.00 |
| 2024 | 21618 | LIB1 - LIBRARY DIST #1 | $0.57 | $0.57 | $0.00 | $0.00 | $1.14 | $0.00 |
| 2024 | 21618 | HD2 - HOSP DIST #2 | $0.11 | $0.10 | $0.00 | $0.00 | $0.21 | $0.00 |
| 2024 | 21618 | SD50 - SCHOOL DIST #50 | $3.47 | $3.47 | $0.00 | $0.00 | $6.94 | $0.00 |
| 2024 | 21618 | FD1 - FIRE DISTRICT #1 | $2.43 | $2.43 | $0.00 | $0.00 | $4.86 | $0.00 |
| 2024 | 21618 | EMS1 - FIRE DIST #1 EMS | $0.93 | $0.93 | $0.00 | $0.00 | $1.86 | $0.00 |
| 2024 | 21618 | FPLCA - DNR Landowner Contingency Assmt | $3.00 | $3.00 | $0.00 | $0.00 | $6.00 | $0.00 |
| 2024 | 21618 | JCCD - JC Conservation District | $2.65 | $2.64 | $0.00 | $0.00 | $5.29 | $0.00 |
| 2024 | 21618 | NWA - Noxious Weed Assessment | $2.45 | $2.45 | $0.00 | $0.00 | $4.90 | $0.00 |
| 2024 | 21618 | WAT - Clean Water District | $12.50 | $12.50 | $0.00 | $0.00 | $25.00 | $0.00 |
| 2024 | 21618 | TOTAL: | $36.67 | $36.61 | $0.00 | $0.00 | $73.28 | $0.00 |
|
| 2024 | 21618 | $36.67 | $36.61 | $0.00 | $0.00 | $73.28 | $0.00 |
Statement Details |
| 2023 | 21655 | STATE - STATE LEVY (SCHOOL) | $4.37 | $4.36 | $0.00 | $0.00 | $8.73 | $0.00 |
| 2023 | 21655 | COUNTY - COUNTY LEVIES (CE, DD, VET, MH) | $1.91 | $1.90 | $0.00 | $0.00 | $3.81 | $0.00 |
| 2023 | 21655 | CONSERVE - CONSERVATION FUTURES | $0.06 | $0.05 | $0.00 | $0.00 | $0.11 | $0.00 |
| 2023 | 21655 | COROADS - COUNTY ROADS (ROADS, DIV TO CE) | $1.55 | $1.54 | $0.00 | $0.00 | $3.09 | $0.00 |
| 2023 | 21655 | PORTPT - PORT DISTRICT | $0.81 | $0.80 | $0.00 | $0.00 | $1.61 | $0.00 |
| 2023 | 21655 | PUD1 - PUD #1 | $0.13 | $0.12 | $0.00 | $0.00 | $0.25 | $0.00 |
| 2023 | 21655 | LIB1 - LIBRARY DIST #1 | $0.60 | $0.59 | $0.00 | $0.00 | $1.19 | $0.00 |
| 2023 | 21655 | HD2 - HOSP DIST #2 | $0.12 | $0.11 | $0.00 | $0.00 | $0.23 | $0.00 |
| 2023 | 21655 | SD50 - SCHOOL DIST #50 | $3.48 | $3.46 | $0.00 | $0.00 | $6.94 | $0.00 |
| 2023 | 21655 | FD1 - FIRE DISTRICT #1 | $1.57 | $1.57 | $0.00 | $0.00 | $3.14 | $0.00 |
| 2023 | 21655 | EMS1 - FIRE DIST #1 EMS | $0.67 | $0.67 | $0.00 | $0.00 | $1.34 | $0.00 |
| 2023 | 21655 | FPLCA - DNR Landowner Contingency Assmt | $3.00 | $3.00 | $0.00 | $0.00 | $6.00 | $0.00 |
| 2023 | 21655 | JCCD - JC Conservation District | $2.65 | $2.64 | $0.00 | $0.00 | $5.29 | $0.00 |
| 2023 | 21655 | NWA - Noxious Weed Assessment | $2.45 | $2.45 | $0.00 | $0.00 | $4.90 | $0.00 |
| 2023 | 21655 | WAT - Clean Water District | $12.00 | $12.00 | $0.00 | $0.00 | $24.00 | $0.00 |
| 2023 | 21655 | TOTAL: | $35.37 | $35.26 | $0.00 | $0.00 | $70.63 | $0.00 |
|
| 2023 | 21655 | $35.37 | $35.26 | $0.00 | $0.00 | $70.63 | $0.00 |
Values
| (+) Improvement Homesite Value: | + | $0 | |
| (+) Improvement Non-Homesite Value: | + | $0 | |
| (+) Land Homesite Value: | + | $0 | |
| (+) Land Non-Homesite Value: | + | $0 | |
| (+) Curr Use (HS): | + | $0 | $0 |
| (+) Curr Use (NHS): | + | $136,070 | $3,711 |
| | | -------------------------- | |
| (=) Market Value: | = | $136,070 | |
| (–) Productivity Loss: | – | $132,359 | |
| | | -------------------------- | |
| (=) Subtotal: | = | $3,711 | |
| (+) Senior Appraised Value: | + | $0 | |
| (+) Non-Senior Appraised Value: | + | $3,711 | |
| | | -------------------------- | |
| (=) Total Appraised Value: | = | $3,711 | |
| (–) Senior Exemption Loss: | – | $0 | |
| (–) Exemption Loss: | – | $0 | |
| | | -------------------------- | |
| (=) Taxable Value: | = | $3,711 | |
Taxing Jurisdiction
| Owner: | ARCADIA PROPERTIES LLC | | |
| % Ownership: | 100.0000000000% | | |
| Total Value: | N/A | | |
| Tax Area: | 0111 - 1-50F1E1H2L1 |
| CE | COUNTY CURRENT EXPENSE | N/A | N/A | N/A | N/A | | |
| CNTYDD | DEVELOPMENTAL DISABILITIES | N/A | N/A | N/A | N/A | | |
| CNTYVET | VETERANS RELIEF | N/A | N/A | N/A | N/A | | |
| MENTAL | MENTAL HEALTH | N/A | N/A | N/A | N/A | | |
| ROADS | COUNTY ROADS | N/A | N/A | N/A | N/A | | |
| HOSP2CASH | HOSP DIST #2 GENERAL | N/A | N/A | N/A | N/A | | |
| SCH50BOND | SCHOOL DIST #50 BOND 2016 | N/A | N/A | N/A | N/A | | |
| SCH50CP | SCHOOL DIST #50 CAP PROJ | N/A | N/A | N/A | N/A | | |
| SCH50MO | SCHOOL DIST #50 EP & O | N/A | N/A | N/A | N/A | | |
| CONSERVE | CONSERVATION FUTURES | N/A | N/A | N/A | N/A | | |
| EMS1 | FIRE DIST #1 EMS | N/A | N/A | N/A | N/A | | |
| FD1 | FIRE DIST #1 GENERAL | N/A | N/A | N/A | N/A | | |
| LIB1 | LIBRARY DIST #1 GENERAL | N/A | N/A | N/A | N/A | | |
| PORTPT | PORT OF PT GENERAL | N/A | N/A | N/A | N/A | | |
| PORTPTIDD | PORT OF PT IDD 2019 | N/A | N/A | N/A | N/A | | |
| PUD1 | PUD #1 GENERAL | N/A | N/A | N/A | N/A | | |
| STATE | STATE SCHOOL PART 1 | N/A | N/A | N/A | N/A | | |
| STATE2 | STATE SCHOOL PART 2 | N/A | N/A | N/A | N/A | | |
| | Total Tax Rate: | N/A | | | | | |
| | | | | Taxes w/Current Exemptions: | N/A | | |
| | | | | Taxes w/o Exemptions: | N/A | | |
Improvement / Building
Sketch
| No sketches available for this property. |
Property Image
Land
| 1 | 5340-1187L | | 0.0000 | 0.00 | 0.00 | 0.00 | 12.00 | $132,000 | $3,600 |
| 2 | 5340-1187L | | 0.0000 | 0.00 | 0.00 | 0.00 | 1.00 | $4,070 | $111 |
Roll Value History
| 2026 | N/A | N/A | N/A | N/A | N/A |
| 2025 | $0 | $136,070 | $3,711 | $3,711 | $3,711 |
| 2024 | $0 | $136,070 | $3,711 | $3,711 | $3,711 |
| 2023 | $0 | $129,885 | $3,711 | $3,711 | $3,711 |
| 2022 | $0 | $123,700 | $3,711 | $3,711 | $3,711 |
Deed and Sales History
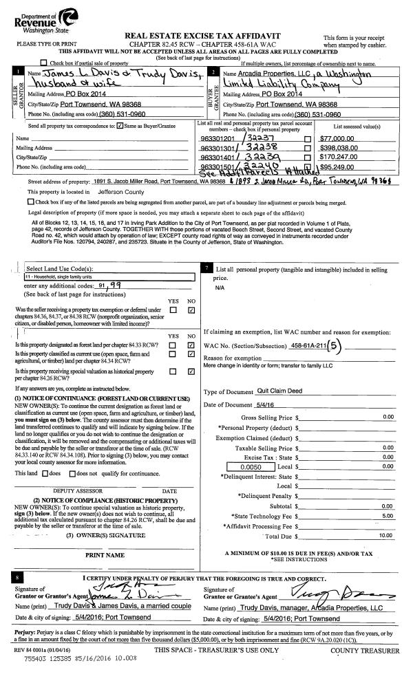
| 1 | 05/04/2016 | QCD | Quit Claim Deed | JAMES L DAVIS | ARCADIA PROPERTIES LLC | | | | 125385 | |
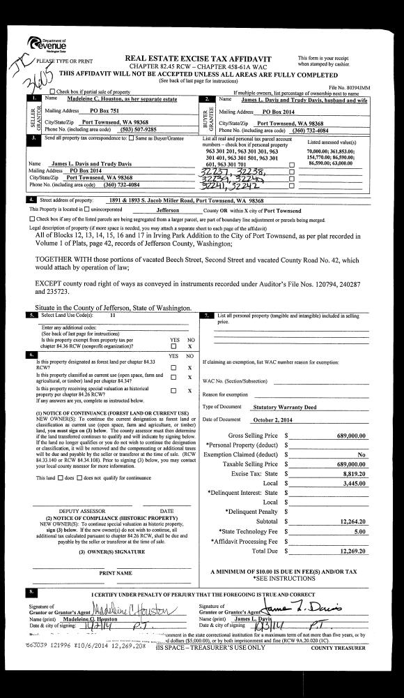
| 2 | 10/02/2014 | SWD | Statutory Warranty Deed | MADELEINE C HOUSTON | JAMES L DAVIS | | | $689,000.00 | 121996 | |
|   | |
| 3 | 02/19/2009 | QCD | Quit Claim Deed | ARCADIA REACH LLC | HOUSTON, MADELEINE C | 0 | 0 | $0.00 | 112527 | 0 |
| 4 | 06/27/2000 | SWD | Statutory Warranty Deed | MAGID, PAUL/ET AL | ARCADIA REACH | 0 | 0 | $0.00 | 89994 | 0 |
Payout Agreement
| No payout information available.. |