Property
Account |
| Property ID: | 32242 | Abbreviated Legal Description: | IRVING PARK ADDITION BLK 17, LOTS 1 THRU 10, LESS R/W ON LOTS 6 THRU 8 |
| Parcel # / Geo ID: | 963301701 | Agent Code: | |
| Type: | Real | | |
| Tax Area: | 0111 - 1-50F1E1H2L1 | Land Use Code | 83 |
| Open Space: | Y | DFL | N |
| Historic Property: | N | Remodel Property: | N |
| Multi-Family Redevelopment: | N | | |
| Township: | 30N | Section: | 16 |
| Range: | 1W |
Location |
| Address: | | Mapsco: | 034/078 |
| Neighborhood: | S16&17 T30 R1W SALEM,EVERGRN,IRVING&SUNNYSIDE PKS,PIONEER AC | Map ID: | |
| Neighborhood CD: | 5340 |
Owner |
| Name: | ARCADIA PROPERTIES LLC | Owner ID: | 95378 |
| Mailing Address: | PO BOX 2014 PORT TOWNSEND, WA 98368-0089 | % Ownership: | 100.0000000000% |
| | | Exemptions: | |
Pay Tax Due
Select the appropriate checkbox next to the year to be paid. Multiple years may be selected.
*Convenience Fee not included
Taxes and Assessment Details
Property Tax Information as of
02/13/2026
Click on "Statement Details" to expand or collapse a tax statement.
* Please enter a valid date ** Please enter a valid date *
Statement Details |
| 2026 | 21512 | STATE - STATE LEVY (SCHOOL) | $3.11 | $3.09 | $0.00 | $0.00 | $0.00 | $6.20 |
| 2026 | 21512 | COUNTY - COUNTY LEVIES (CE, DD, VET, MH) | $1.25 | $1.22 | $0.00 | $0.00 | $0.00 | $2.47 |
| 2026 | 21512 | CONSERVE - CONSERVATION FUTURES | $0.04 | $0.03 | $0.00 | $0.00 | $0.00 | $0.07 |
| 2026 | 21512 | COROADS - COUNTY ROADS (ROADS, DIV TO CE) | $1.00 | $1.00 | $0.00 | $0.00 | $0.00 | $2.00 |
| 2026 | 21512 | PORTPT - PORT DISTRICT | $0.51 | $0.50 | $0.00 | $0.00 | $0.00 | $1.01 |
| 2026 | 21512 | PUD1 - PUD #1 | $0.08 | $0.08 | $0.00 | $0.00 | $0.00 | $0.16 |
| 2026 | 21512 | LIB1 - LIBRARY DIST #1 | $0.39 | $0.38 | $0.00 | $0.00 | $0.00 | $0.77 |
| 2026 | 21512 | HD2 - HOSP DIST #2 | $0.07 | $0.07 | $0.00 | $0.00 | $0.00 | $0.14 |
| 2026 | 21512 | SD50 - SCHOOL DIST #50 | $2.47 | $2.44 | $0.00 | $0.00 | $0.00 | $4.91 |
| 2026 | 21512 | FD1 - FIRE DISTRICT #1 | $1.65 | $1.64 | $0.00 | $0.00 | $0.00 | $3.29 |
| 2026 | 21512 | EMS1 - FIRE DIST #1 EMS | $0.63 | $0.63 | $0.00 | $0.00 | $0.00 | $1.26 |
| 2026 | 21512 | FPLCA - DNR Landowner Contingency Assmt | $3.00 | $3.00 | $0.00 | $0.00 | $0.00 | $6.00 |
| 2026 | 21512 | JCCD - JC Conservation District | $2.60 | $2.59 | $0.00 | $0.00 | $0.00 | $5.19 |
| 2026 | 21512 | NWA - Noxious Weed Assessment | $3.20 | $3.20 | $0.00 | $0.00 | $0.00 | $6.40 |
| 2026 | 21512 | WAT - Clean Water District | $13.00 | $13.00 | $0.00 | $0.00 | $0.00 | $26.00 |
| 2026 | 21512 | TOTAL: | $33.00 | $32.87 | $0.00 | $0.00 | $0.00 | $65.87 |
|
| 2026 | 21512 | $33.00 | $32.87 | $0.00 | $0.00 | $0.00 | $65.87 |
Statement Details |
| 2025 | 21574 | STATE - STATE LEVY (SCHOOL) | $3.25 | $3.23 | $0.00 | $0.00 | $6.48 | $0.00 |
| 2025 | 21574 | COUNTY - COUNTY LEVIES (CE, DD, VET, MH) | $1.28 | $1.25 | $0.00 | $0.00 | $2.53 | $0.00 |
| 2025 | 21574 | CONSERVE - CONSERVATION FUTURES | $0.04 | $0.04 | $0.00 | $0.00 | $0.08 | $0.00 |
| 2025 | 21574 | COROADS - COUNTY ROADS (ROADS, DIV TO CE) | $1.03 | $1.01 | $0.00 | $0.00 | $2.04 | $0.00 |
| 2025 | 21574 | PORTPT - PORT DISTRICT | $0.52 | $0.51 | $0.00 | $0.00 | $1.03 | $0.00 |
| 2025 | 21574 | PUD1 - PUD #1 | $0.09 | $0.08 | $0.00 | $0.00 | $0.17 | $0.00 |
| 2025 | 21574 | LIB1 - LIBRARY DIST #1 | $0.40 | $0.39 | $0.00 | $0.00 | $0.79 | $0.00 |
| 2025 | 21574 | HD2 - HOSP DIST #2 | $0.08 | $0.07 | $0.00 | $0.00 | $0.15 | $0.00 |
| 2025 | 21574 | SD50 - SCHOOL DIST #50 | $2.37 | $2.36 | $0.00 | $0.00 | $4.73 | $0.00 |
| 2025 | 21574 | FD1 - FIRE DISTRICT #1 | $1.68 | $1.68 | $0.00 | $0.00 | $3.36 | $0.00 |
| 2025 | 21574 | EMS1 - FIRE DIST #1 EMS | $0.65 | $0.64 | $0.00 | $0.00 | $1.29 | $0.00 |
| 2025 | 21574 | FPLCA - DNR Landowner Contingency Assmt | $3.00 | $3.00 | $0.00 | $0.00 | $6.00 | $0.00 |
| 2025 | 21574 | JCCD - JC Conservation District | $2.60 | $2.59 | $0.00 | $0.00 | $5.19 | $0.00 |
| 2025 | 21574 | NWA - Noxious Weed Assessment | $2.30 | $2.30 | $0.00 | $0.00 | $4.60 | $0.00 |
| 2025 | 21574 | WAT - Clean Water District | $13.00 | $13.00 | $0.00 | $0.00 | $26.00 | $0.00 |
| 2025 | 21574 | TOTAL: | $32.29 | $32.15 | $0.00 | $0.00 | $64.44 | $0.00 |
|
| 2025 | 21574 | $32.29 | $32.15 | $0.00 | $0.00 | $64.44 | $0.00 |
Statement Details |
| 2024 | 21619 | STATE - STATE LEVY (SCHOOL) | $3.13 | $3.12 | $0.00 | $0.00 | $6.25 | $0.00 |
| 2024 | 21619 | COUNTY - COUNTY LEVIES (CE, DD, VET, MH) | $1.35 | $1.34 | $0.00 | $0.00 | $2.69 | $0.00 |
| 2024 | 21619 | CONSERVE - CONSERVATION FUTURES | $0.04 | $0.04 | $0.00 | $0.00 | $0.08 | $0.00 |
| 2024 | 21619 | COROADS - COUNTY ROADS (ROADS, DIV TO CE) | $1.08 | $1.07 | $0.00 | $0.00 | $2.15 | $0.00 |
| 2024 | 21619 | PORTPT - PORT DISTRICT | $0.56 | $0.54 | $0.00 | $0.00 | $1.10 | $0.00 |
| 2024 | 21619 | PUD1 - PUD #1 | $0.09 | $0.09 | $0.00 | $0.00 | $0.18 | $0.00 |
| 2024 | 21619 | LIB1 - LIBRARY DIST #1 | $0.42 | $0.41 | $0.00 | $0.00 | $0.83 | $0.00 |
| 2024 | 21619 | HD2 - HOSP DIST #2 | $0.08 | $0.08 | $0.00 | $0.00 | $0.16 | $0.00 |
| 2024 | 21619 | SD50 - SCHOOL DIST #50 | $2.54 | $2.51 | $0.00 | $0.00 | $5.05 | $0.00 |
| 2024 | 21619 | FD1 - FIRE DISTRICT #1 | $1.77 | $1.76 | $0.00 | $0.00 | $3.53 | $0.00 |
| 2024 | 21619 | EMS1 - FIRE DIST #1 EMS | $0.68 | $0.67 | $0.00 | $0.00 | $1.35 | $0.00 |
| 2024 | 21619 | JCCD - JC Conservation District | $2.60 | $2.59 | $0.00 | $0.00 | $5.19 | $0.00 |
| 2024 | 21619 | NWA - Noxious Weed Assessment | $2.30 | $2.30 | $0.00 | $0.00 | $4.60 | $0.00 |
| 2024 | 21619 | WAT - Clean Water District | $12.50 | $12.50 | $0.00 | $0.00 | $25.00 | $0.00 |
| 2024 | 21619 | TOTAL: | $29.14 | $29.02 | $0.00 | $0.00 | $58.16 | $0.00 |
|
| 2024 | 21619 | $29.14 | $29.02 | $0.00 | $0.00 | $58.16 | $0.00 |
Statement Details |
| 2023 | 21656 | STATE - STATE LEVY (SCHOOL) | $3.18 | $3.18 | $0.00 | $0.00 | $6.36 | $0.00 |
| 2023 | 21656 | COUNTY - COUNTY LEVIES (CE, DD, VET, MH) | $1.40 | $1.39 | $0.00 | $0.00 | $2.79 | $0.00 |
| 2023 | 21656 | CONSERVE - CONSERVATION FUTURES | $0.04 | $0.04 | $0.00 | $0.00 | $0.08 | $0.00 |
| 2023 | 21656 | COROADS - COUNTY ROADS (ROADS, DIV TO CE) | $1.12 | $1.12 | $0.00 | $0.00 | $2.24 | $0.00 |
| 2023 | 21656 | PORTPT - PORT DISTRICT | $0.59 | $0.58 | $0.00 | $0.00 | $1.17 | $0.00 |
| 2023 | 21656 | PUD1 - PUD #1 | $0.09 | $0.09 | $0.00 | $0.00 | $0.18 | $0.00 |
| 2023 | 21656 | LIB1 - LIBRARY DIST #1 | $0.44 | $0.43 | $0.00 | $0.00 | $0.87 | $0.00 |
| 2023 | 21656 | HD2 - HOSP DIST #2 | $0.09 | $0.07 | $0.00 | $0.00 | $0.16 | $0.00 |
| 2023 | 21656 | SD50 - SCHOOL DIST #50 | $2.53 | $2.52 | $0.00 | $0.00 | $5.05 | $0.00 |
| 2023 | 21656 | FD1 - FIRE DISTRICT #1 | $1.14 | $1.14 | $0.00 | $0.00 | $2.28 | $0.00 |
| 2023 | 21656 | EMS1 - FIRE DIST #1 EMS | $0.49 | $0.48 | $0.00 | $0.00 | $0.97 | $0.00 |
| 2023 | 21656 | JCCD - JC Conservation District | $2.60 | $2.59 | $0.00 | $0.00 | $5.19 | $0.00 |
| 2023 | 21656 | NWA - Noxious Weed Assessment | $2.30 | $2.30 | $0.00 | $0.00 | $4.60 | $0.00 |
| 2023 | 21656 | WAT - Clean Water District | $12.00 | $12.00 | $0.00 | $0.00 | $24.00 | $0.00 |
| 2023 | 21656 | TOTAL: | $28.01 | $27.93 | $0.00 | $0.00 | $55.94 | $0.00 |
|
| 2023 | 21656 | $28.01 | $27.93 | $0.00 | $0.00 | $55.94 | $0.00 |
Values
| (+) Improvement Homesite Value: | + | $0 | |
| (+) Improvement Non-Homesite Value: | + | $0 | |
| (+) Land Homesite Value: | + | $0 | |
| (+) Land Non-Homesite Value: | + | $0 | |
| (+) Curr Use (HS): | + | $0 | $0 |
| (+) Curr Use (NHS): | + | $99,000 | $2,700 |
| | | -------------------------- | |
| (=) Market Value: | = | $99,000 | |
| (–) Productivity Loss: | – | $96,300 | |
| | | -------------------------- | |
| (=) Subtotal: | = | $2,700 | |
| (+) Senior Appraised Value: | + | $0 | |
| (+) Non-Senior Appraised Value: | + | $2,700 | |
| | | -------------------------- | |
| (=) Total Appraised Value: | = | $2,700 | |
| (–) Senior Exemption Loss: | – | $0 | |
| (–) Exemption Loss: | – | $0 | |
| | | -------------------------- | |
| (=) Taxable Value: | = | $2,700 | |
Taxing Jurisdiction
| Owner: | ARCADIA PROPERTIES LLC | | |
| % Ownership: | 100.0000000000% | | |
| Total Value: | N/A | | |
| Tax Area: | 0111 - 1-50F1E1H2L1 |
| CE | COUNTY CURRENT EXPENSE | N/A | N/A | N/A | N/A | | |
| CNTYDD | DEVELOPMENTAL DISABILITIES | N/A | N/A | N/A | N/A | | |
| CNTYVET | VETERANS RELIEF | N/A | N/A | N/A | N/A | | |
| MENTAL | MENTAL HEALTH | N/A | N/A | N/A | N/A | | |
| ROADS | COUNTY ROADS | N/A | N/A | N/A | N/A | | |
| HOSP2CASH | HOSP DIST #2 GENERAL | N/A | N/A | N/A | N/A | | |
| SCH50BOND | SCHOOL DIST #50 BOND 2016 | N/A | N/A | N/A | N/A | | |
| SCH50CP | SCHOOL DIST #50 CAP PROJ | N/A | N/A | N/A | N/A | | |
| SCH50MO | SCHOOL DIST #50 EP & O | N/A | N/A | N/A | N/A | | |
| CONSERVE | CONSERVATION FUTURES | N/A | N/A | N/A | N/A | | |
| EMS1 | FIRE DIST #1 EMS | N/A | N/A | N/A | N/A | | |
| FD1 | FIRE DIST #1 GENERAL | N/A | N/A | N/A | N/A | | |
| LIB1 | LIBRARY DIST #1 GENERAL | N/A | N/A | N/A | N/A | | |
| PORTPT | PORT OF PT GENERAL | N/A | N/A | N/A | N/A | | |
| PORTPTIDD | PORT OF PT IDD 2019 | N/A | N/A | N/A | N/A | | |
| PUD1 | PUD #1 GENERAL | N/A | N/A | N/A | N/A | | |
| STATE | STATE SCHOOL PART 1 | N/A | N/A | N/A | N/A | | |
| STATE2 | STATE SCHOOL PART 2 | N/A | N/A | N/A | N/A | | |
| | Total Tax Rate: | N/A | | | | | |
| | | | | Taxes w/Current Exemptions: | N/A | | |
| | | | | Taxes w/o Exemptions: | N/A | | |
Improvement / Building
Sketch
| No sketches available for this property. |
Property Image
Land
| 1 | 5340-1187L | | 0.0000 | 0.00 | 0.00 | 0.00 | 9.00 | $99,000 | $2,700 |
Roll Value History
| 2026 | N/A | N/A | N/A | N/A | N/A |
| 2025 | $0 | $99,000 | $2,700 | $2,700 | $2,700 |
| 2024 | $0 | $99,000 | $2,700 | $2,700 | $2,700 |
| 2023 | $0 | $94,500 | $2,700 | $2,700 | $2,700 |
| 2022 | $0 | $90,000 | $2,700 | $2,700 | $2,700 |
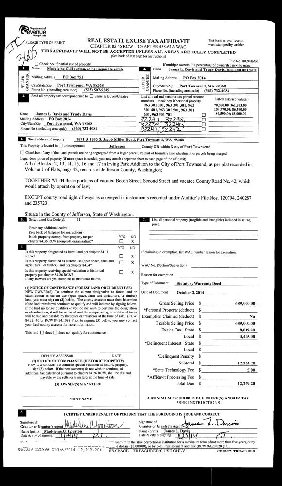
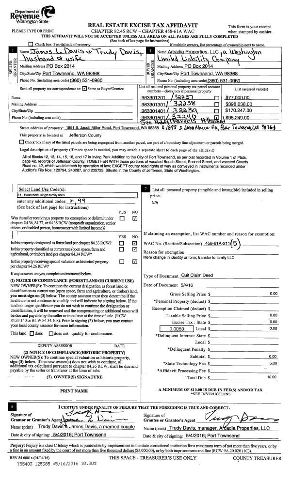
Deed and Sales History
| 1 | 05/04/2016 | QCD | Quit Claim Deed | JAMES L DAVIS | ARCADIA PROPERTIES LLC | | | | 125385 | |
| 2 | 10/02/2014 | SWD | Statutory Warranty Deed | MADELEINE C HOUSTON | JAMES L DAVIS | | | $689,000.00 | 121996 | |
|   | |
| 3 | 02/19/2009 | QCD | Quit Claim Deed | ARCADIA REACH LLC | HOUSTON, MADELEINE C | 0 | 0 | $0.00 | 112527 | 0 |
| 4 | 06/27/2000 | SWD | Statutory Warranty Deed | MAGID, PAUL/ET AL | ARCADIA REACH | 0 | 0 | $0.00 | 89994 | 0 |
Payout Agreement
| No payout information available.. |