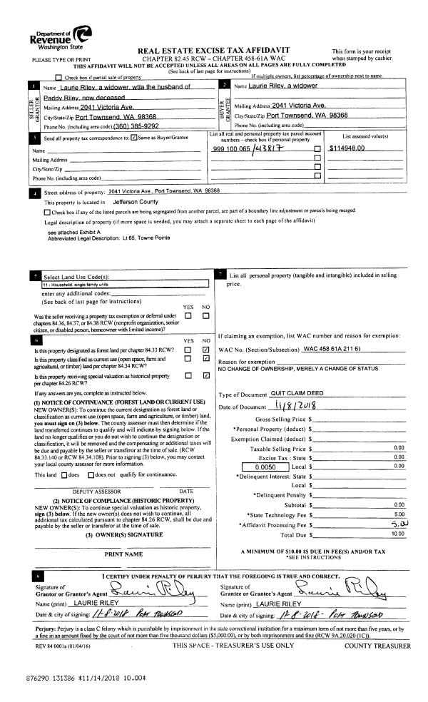
Property
Account |
| Property ID: | 32300 | Abbreviated Legal Description: | IRVING PARK ADDITION BLK 35 TAX 66 |
| Parcel # / Geo ID: | 963303509 | Agent Code: | |
| Type: | Real | | |
| Tax Area: | 0111 - 1-50F1E1H2L1 | Land Use Code | 11 |
| Open Space: | N | DFL | N |
| Historic Property: | N | Remodel Property: | N |
| Multi-Family Redevelopment: | N | | |
| Township: | 30N | Section: | 17 |
| Range: | 1W |
Location |
| Address: | 50 MEDITERRANEAN AVE PORT TOWNSEND, WA 98368 | Mapsco: | 035/066 |
| Neighborhood: | S16&17 T30 R1W SALEM,EVERGRN,IRVING&SUNNYSIDE PKS,PIONEER AC | Map ID: | |
| Neighborhood CD: | 5340 |
Owner |
| Name: | MARK E PARSONS | Owner ID: | 24369 |
| Mailing Address: | CHRISTINE P PARSONS PO BOX 1202 PORT HADLOCK, WA 98339-1202 | % Ownership: | 100.0000000000% |
| | | Exemptions: | |
Pay Tax Due
There is currently No Amount Due on this property.
Taxes and Assessment Details
Property Tax Information as of
03/10/2026
Click on "Statement Details" to expand or collapse a tax statement.
* Please enter a valid date ** Please enter a valid date *
Statement Details |
| 2026 | 21569 | STATE - STATE LEVY (SCHOOL) | $312.56 | $312.56 | $0.00 | $0.00 | $625.12 | $0.00 |
| 2026 | 21569 | COUNTY - COUNTY LEVIES (CE, DD, VET, MH) | $124.97 | $124.96 | $0.00 | $0.00 | $249.93 | $0.00 |
| 2026 | 21569 | CONSERVE - CONSERVATION FUTURES | $3.75 | $3.74 | $0.00 | $0.00 | $7.49 | $0.00 |
| 2026 | 21569 | COROADS - COUNTY ROADS (ROADS, DIV TO CE) | $100.81 | $100.81 | $0.00 | $0.00 | $201.62 | $0.00 |
| 2026 | 21569 | PORTPT - PORT DISTRICT | $50.47 | $50.47 | $0.00 | $0.00 | $100.94 | $0.00 |
| 2026 | 21569 | PUD1 - PUD #1 | $8.13 | $8.13 | $0.00 | $0.00 | $16.26 | $0.00 |
| 2026 | 21569 | LIB1 - LIBRARY DIST #1 | $39.00 | $39.00 | $0.00 | $0.00 | $78.00 | $0.00 |
| 2026 | 21569 | HD2 - HOSP DIST #2 | $7.29 | $7.29 | $0.00 | $0.00 | $14.58 | $0.00 |
| 2026 | 21569 | SD50 - SCHOOL DIST #50 | $247.63 | $247.60 | $0.00 | $0.00 | $495.23 | $0.00 |
| 2026 | 21569 | FD1 - FIRE DISTRICT #1 | $165.48 | $165.48 | $0.00 | $0.00 | $330.96 | $0.00 |
| 2026 | 21569 | EMS1 - FIRE DIST #1 EMS | $63.63 | $63.62 | $0.00 | $0.00 | $127.25 | $0.00 |
| 2026 | 21569 | JCCD - JC Conservation District | $2.55 | $2.55 | $0.00 | $0.00 | $5.10 | $0.00 |
| 2026 | 21569 | NWA - Noxious Weed Assessment | $2.98 | $2.97 | $0.00 | $0.00 | $5.95 | $0.00 |
| 2026 | 21569 | OSS - On Site Septic | $23.10 | $23.10 | $0.00 | $0.00 | $46.20 | $0.00 |
| 2026 | 21569 | WAT - Clean Water District | $13.00 | $13.00 | $0.00 | $0.00 | $26.00 | $0.00 |
| 2026 | 21569 | TOTAL: | $1165.35 | $1165.28 | $0.00 | $0.00 | $2330.63 | $0.00 |
|
| 2026 | 21569 | $1165.35 | $1165.28 | $0.00 | $0.00 | $2330.63 | $0.00 |
Statement Details |
| 2025 | 21631 | STATE - STATE LEVY (SCHOOL) | $326.02 | $326.01 | $0.00 | $0.00 | $652.03 | $0.00 |
| 2025 | 21631 | COUNTY - COUNTY LEVIES (CE, DD, VET, MH) | $128.22 | $128.18 | $0.00 | $0.00 | $256.40 | $0.00 |
| 2025 | 21631 | CONSERVE - CONSERVATION FUTURES | $3.85 | $3.84 | $0.00 | $0.00 | $7.69 | $0.00 |
| 2025 | 21631 | COROADS - COUNTY ROADS (ROADS, DIV TO CE) | $102.72 | $102.71 | $0.00 | $0.00 | $205.43 | $0.00 |
| 2025 | 21631 | PORTPT - PORT DISTRICT | $52.32 | $52.31 | $0.00 | $0.00 | $104.63 | $0.00 |
| 2025 | 21631 | PUD1 - PUD #1 | $8.39 | $8.39 | $0.00 | $0.00 | $16.78 | $0.00 |
| 2025 | 21631 | LIB1 - LIBRARY DIST #1 | $39.74 | $39.74 | $0.00 | $0.00 | $79.48 | $0.00 |
| 2025 | 21631 | HD2 - HOSP DIST #2 | $7.48 | $7.48 | $0.00 | $0.00 | $14.96 | $0.00 |
| 2025 | 21631 | SD50 - SCHOOL DIST #50 | $238.27 | $238.25 | $0.00 | $0.00 | $476.52 | $0.00 |
| 2025 | 21631 | FD1 - FIRE DISTRICT #1 | $169.18 | $169.17 | $0.00 | $0.00 | $338.35 | $0.00 |
| 2025 | 21631 | EMS1 - FIRE DIST #1 EMS | $65.07 | $65.07 | $0.00 | $0.00 | $130.14 | $0.00 |
| 2025 | 21631 | JCCD - JC Conservation District | $2.55 | $2.55 | $0.00 | $0.00 | $5.10 | $0.00 |
| 2025 | 21631 | NWA - Noxious Weed Assessment | $2.15 | $2.15 | $0.00 | $0.00 | $4.30 | $0.00 |
| 2025 | 21631 | OSS - On Site Septic | $21.50 | $21.50 | $0.00 | $0.00 | $43.00 | $0.00 |
| 2025 | 21631 | WAT - Clean Water District | $13.00 | $13.00 | $0.00 | $0.00 | $26.00 | $0.00 |
| 2025 | 21631 | TOTAL: | $1180.46 | $1180.35 | $0.00 | $0.00 | $2360.81 | $0.00 |
|
| 2025 | 21631 | $1180.46 | $1180.35 | $0.00 | $0.00 | $2360.81 | $0.00 |
Statement Details |
| 2024 | 21676 | STATE - STATE LEVY (SCHOOL) | $270.97 | $270.96 | $0.00 | $0.00 | $541.93 | $0.00 |
| 2024 | 21676 | COUNTY - COUNTY LEVIES (CE, DD, VET, MH) | $115.97 | $115.93 | $0.00 | $0.00 | $231.90 | $0.00 |
| 2024 | 21676 | CONSERVE - CONSERVATION FUTURES | $3.48 | $3.47 | $0.00 | $0.00 | $6.95 | $0.00 |
| 2024 | 21676 | COROADS - COUNTY ROADS (ROADS, DIV TO CE) | $93.31 | $93.29 | $0.00 | $0.00 | $186.60 | $0.00 |
| 2024 | 21676 | PORTPT - PORT DISTRICT | $47.90 | $47.88 | $0.00 | $0.00 | $95.78 | $0.00 |
| 2024 | 21676 | PUD1 - PUD #1 | $7.62 | $7.61 | $0.00 | $0.00 | $15.23 | $0.00 |
| 2024 | 21676 | LIB1 - LIBRARY DIST #1 | $36.10 | $36.09 | $0.00 | $0.00 | $72.19 | $0.00 |
| 2024 | 21676 | HD2 - HOSP DIST #2 | $6.77 | $6.76 | $0.00 | $0.00 | $13.53 | $0.00 |
| 2024 | 21676 | SD50 - SCHOOL DIST #50 | $219.23 | $219.22 | $0.00 | $0.00 | $438.45 | $0.00 |
| 2024 | 21676 | FD1 - FIRE DISTRICT #1 | $153.31 | $153.31 | $0.00 | $0.00 | $306.62 | $0.00 |
| 2024 | 21676 | EMS1 - FIRE DIST #1 EMS | $58.56 | $58.56 | $0.00 | $0.00 | $117.12 | $0.00 |
| 2024 | 21676 | JCCD - JC Conservation District | $2.55 | $2.55 | $0.00 | $0.00 | $5.10 | $0.00 |
| 2024 | 21676 | NWA - Noxious Weed Assessment | $2.15 | $2.15 | $0.00 | $0.00 | $4.30 | $0.00 |
| 2024 | 21676 | OSS - On Site Septic | $21.00 | $21.00 | $0.00 | $0.00 | $42.00 | $0.00 |
| 2024 | 21676 | WAT - Clean Water District | $12.50 | $12.50 | $0.00 | $0.00 | $25.00 | $0.00 |
| 2024 | 21676 | TOTAL: | $1051.42 | $1051.28 | $0.00 | $0.00 | $2102.70 | $0.00 |
|
| 2024 | 21676 | $1051.42 | $1051.28 | $0.00 | $0.00 | $2102.70 | $0.00 |
Statement Details |
| 2023 | 21713 | STATE - STATE LEVY (SCHOOL) | $249.05 | $249.04 | $0.00 | $0.00 | $498.09 | $0.00 |
| 2023 | 21713 | COUNTY - COUNTY LEVIES (CE, DD, VET, MH) | $108.69 | $108.65 | $0.00 | $0.00 | $217.34 | $0.00 |
| 2023 | 21713 | CONSERVE - CONSERVATION FUTURES | $3.26 | $3.26 | $0.00 | $0.00 | $6.52 | $0.00 |
| 2023 | 21713 | COROADS - COUNTY ROADS (ROADS, DIV TO CE) | $87.93 | $87.92 | $0.00 | $0.00 | $175.85 | $0.00 |
| 2023 | 21713 | PORTPT - PORT DISTRICT | $45.78 | $45.78 | $0.00 | $0.00 | $91.56 | $0.00 |
| 2023 | 21713 | PUD1 - PUD #1 | $7.21 | $7.20 | $0.00 | $0.00 | $14.41 | $0.00 |
| 2023 | 21713 | LIB1 - LIBRARY DIST #1 | $34.02 | $34.02 | $0.00 | $0.00 | $68.04 | $0.00 |
| 2023 | 21713 | HD2 - HOSP DIST #2 | $6.34 | $6.34 | $0.00 | $0.00 | $12.68 | $0.00 |
| 2023 | 21713 | SD50 - SCHOOL DIST #50 | $197.63 | $197.61 | $0.00 | $0.00 | $395.24 | $0.00 |
| 2023 | 21713 | FD1 - FIRE DISTRICT #1 | $89.53 | $89.52 | $0.00 | $0.00 | $179.05 | $0.00 |
| 2023 | 21713 | EMS1 - FIRE DIST #1 EMS | $38.09 | $38.08 | $0.00 | $0.00 | $76.17 | $0.00 |
| 2023 | 21713 | JCCD - JC Conservation District | $2.55 | $2.55 | $0.00 | $0.00 | $5.10 | $0.00 |
| 2023 | 21713 | NWA - Noxious Weed Assessment | $2.15 | $2.15 | $0.00 | $0.00 | $4.30 | $0.00 |
| 2023 | 21713 | OSS - On Site Septic | $20.50 | $20.50 | $0.00 | $0.00 | $41.00 | $0.00 |
| 2023 | 21713 | WAT - Clean Water District | $12.00 | $12.00 | $0.00 | $0.00 | $24.00 | $0.00 |
| 2023 | 21713 | TOTAL: | $904.73 | $904.62 | $0.00 | $0.00 | $1809.35 | $0.00 |
|
| 2023 | 21713 | $904.73 | $904.62 | $0.00 | $0.00 | $1809.35 | $0.00 |
Values
| (+) Improvement Homesite Value: | + | $178,401 | |
| (+) Improvement Non-Homesite Value: | + | $0 | |
| (+) Land Homesite Value: | + | $93,500 | |
| (+) Land Non-Homesite Value: | + | $0 | |
| (+) Curr Use (HS): | + | $0 | $0 |
| (+) Curr Use (NHS): | + | $0 | $0 |
| | | -------------------------- | |
| (=) Market Value: | = | $271,901 | |
| (–) Productivity Loss: | – | $0 | |
| | | -------------------------- | |
| (=) Subtotal: | = | $271,901 | |
| (+) Senior Appraised Value: | + | $0 | |
| (+) Non-Senior Appraised Value: | + | $271,901 | |
| | | -------------------------- | |
| (=) Total Appraised Value: | = | $271,901 | |
| (–) Senior Exemption Loss: | – | $0 | |
| (–) Exemption Loss: | – | $0 | |
| | | -------------------------- | |
| (=) Taxable Value: | = | $271,901 | |
Taxing Jurisdiction
| Owner: | MARK E PARSONS | | |
| % Ownership: | 100.0000000000% | | |
| Total Value: | $271,901 | | |
| Tax Area: | 0111 - 1-50F1E1H2L1 |
| CE | COUNTY CURRENT EXPENSE | 0.9034619479 | $271,901 | $271,901 | $245.65 | | |
| CNTYDD | DEVELOPMENTAL DISABILITIES | 0.0052121823 | $271,901 | $271,901 | $1.42 | | |
| CNTYVET | VETERANS RELIEF | 0.0052777810 | $271,901 | $271,901 | $1.44 | | |
| MENTAL | MENTAL HEALTH | 0.0052121823 | $271,901 | $271,901 | $1.42 | | |
| ROADS | COUNTY ROADS | 0.7415066410 | $271,901 | $271,901 | $201.62 | | |
| ROADSCU | COUNTY ROADS TO CUR EXP | 0.0000000000 | $271,901 | $271,901 | $0.00 | | |
| HOSP2CASH | HOSP DIST #2 GENERAL | 0.0536075306 | $271,901 | $271,901 | $14.58 | | |
| SCH50BOND | SCHOOL DIST #50 BOND 2016 | 0.5377451389 | $271,901 | $271,901 | $146.21 | | |
| SCH50CP | SCHOOL DIST #50 CAP PROJ | 0.4573475088 | $271,901 | $271,901 | $124.35 | | |
| SCH50MO | SCHOOL DIST #50 EP & O | 0.8262822886 | $271,901 | $271,901 | $224.67 | | |
| CONSERVE | CONSERVATION FUTURES | 0.0275621078 | $271,901 | $271,901 | $7.49 | | |
| EMS1 | FIRE DIST #1 EMS | 0.4679948282 | $271,901 | $271,901 | $127.25 | | |
| FD1 | FIRE DIST #1 GENERAL | 1.2171942929 | $271,901 | $271,901 | $330.96 | | |
| LIB1 | LIBRARY DIST #1 GENERAL | 0.2868827388 | $271,901 | $271,901 | $78.00 | | |
| PORTPT | PORT OF PT GENERAL | 0.1134941229 | $271,901 | $271,901 | $30.86 | | |
| PORTPTIDD | PORT OF PT IDD 2019 | 0.2577346692 | $271,901 | $271,901 | $70.08 | | |
| PUD1 | PUD #1 GENERAL | 0.0597888892 | $271,901 | $271,901 | $16.26 | | |
| STATE | STATE SCHOOL PART 1 | 1.4940692947 | $271,901 | $271,901 | $406.24 | | |
| STATE2 | STATE SCHOOL PART 2 | 0.8050170049 | $271,901 | $271,901 | $218.88 | | |
| | Total Tax Rate: | 8.2653911500 | | | | | |
| | | | | Taxes w/Current Exemptions: | $2,247.38 | | |
| | | | | Taxes w/o Exemptions: | $2,247.38 | | |
Improvement / Building
| Improvement #1: | Manufactured Home | State Code: | 11 | 1100.0 sqft | Value: | $178,401 |
| Bathrooms (#): | 2 (FULL) | Bedrooms (#): | 3 | | Exterior Wall: | SI/ST | Fireplace: | WD ST-GOOD | | Floor Construction: | FRAME | Foundation: | PO&BL | | Heating/Cooling: | F/A | Inside Verify: | YES-FIX | | Roof Cover: | COMP |   |   |
|
| | Type | Description | Class CD | Sub Class CD | Year Built | Area |
| | MA | Main Area | 4+ | MDBL | 1993 | 1100.0 |
| | MDECK | MH Deck | 4 | MDBL | 1993 | 160.0 |
| | MDET | MH Detached Garage | 3 | MDBL | 1993 | 520.0 |
| | MSKIRT_WD | MH Skirting - Wood | 4 | MDBL | 1993 | 138.0 |
| | ADDN-D | Addition (Table Depreciated) | 3 | MDBL | 1993 | 0.0 |
Sketch
| No sketches available for this property. |
Property Image
Land
| 1 | 5340-1285S | | 0.0000 | 0.00 | 0.00 | 0.00 | 1.00 | $93,500 | $0 |
Roll Value History
| 2026 | N/A | N/A | N/A | N/A | N/A |
| 2025 | $178,401 | $93,500 | $0 | $271,901 | $271,901 |
| 2024 | $178,401 | $93,500 | $0 | $271,901 | $271,901 |
| 2023 | $150,237 | $84,000 | $0 | $234,237 | $234,237 |
| 2022 | $136,579 | $75,000 | $0 | $211,579 | $211,579 |
Deed and Sales History
| 1 | 08/16/2006 | SWD | Statutory Warranty Deed | CRAIGHEAD, WILLIAM O | PARSONS, MARK/CHRISTINE | 0 | 0 | $140,000.00 | 107423 | 0 |
| 2 | 11/16/1993 | SWD | Statutory Warranty Deed | GE DEVELOPMENT | CRAIGHEAD, WILLIAM O | 0 | 0 | $18,000.00 | 72632 | 0 |
| 3 | 11/16/1993 | SWD | Statutory Warranty Deed | GE DEVELOPMENT | CRAIGHEAD, WILLIAM O | 0 | 0 | $0.00 | 73242 | 0 |
Payout Agreement
| No payout information available.. |