Property
Account |
| Property ID: | 32327 | Abbreviated Legal Description: | IRVINGTON ADDITION BLK 5 LOTS 6 THRU 10 (W1/2 EACH) INC VACATED STS ADJ QTA#20-2-00193-16 |
| Parcel # / Geo ID: | 963600501 | Agent Code: | |
| Type: | Real | | |
| Tax Area: | 0111 - 1-50F1E1H2L1 | Land Use Code | 91 |
| Open Space: | N | DFL | N |
| Historic Property: | N | Remodel Property: | N |
| Multi-Family Redevelopment: | N | | |
| Township: | 30N | Section: | 17 |
| Range: | 1W |
Location |
| Address: | | Mapsco: | 036/042 |
| Neighborhood: | S16&17 T30 R1W SALEM,EVERGRN,IRVING&SUNNYSIDE PKS,PIONEER AC | Map ID: | |
| Neighborhood CD: | 5340 |
Owner |
| Name: | CAPE GEORGE LAND CO LLC | Owner ID: | 103556 |
| Mailing Address: | PO BOX 4438 OLYMPIA, WA 98501-1779 | % Ownership: | 100.0000000000% |
| | | Exemptions: | |
Pay Tax Due
There is currently No Amount Due on this property.
Taxes and Assessment Details
Property Tax Information as of
03/13/2026
Click on "Statement Details" to expand or collapse a tax statement.
* Please enter a valid date ** Please enter a valid date *
Statement Details |
| | TOTAL: | $0.00 | $0.00 | $0.00 | $0.00 | $0.00 | $0.00 |
|
| | $0.00 | $0.00 | $0.00 | $0.00 | $0.00 | $0.00 |
Values
| (+) Improvement Homesite Value: | + | $0 | |
| (+) Improvement Non-Homesite Value: | + | $0 | |
| (+) Land Homesite Value: | + | $0 | |
| (+) Land Non-Homesite Value: | + | $10,120 | |
| (+) Curr Use (HS): | + | $0 | $0 |
| (+) Curr Use (NHS): | + | $0 | $0 |
| | | -------------------------- | |
| (=) Market Value: | = | $10,120 | |
| (–) Productivity Loss: | – | $0 | |
| | | -------------------------- | |
| (=) Subtotal: | = | $10,120 | |
| (+) Senior Appraised Value: | + | $0 | |
| (+) Non-Senior Appraised Value: | + | $10,120 | |
| | | -------------------------- | |
| (=) Total Appraised Value: | = | $10,120 | |
| (–) Senior Exemption Loss: | – | $0 | |
| (–) Exemption Loss: | – | $0 | |
| | | -------------------------- | |
| (=) Taxable Value: | = | $10,120 | |
Taxing Jurisdiction
| Owner: | CAPE GEORGE LAND CO LLC | | |
| % Ownership: | 100.0000000000% | | |
| Total Value: | $10,120 | | |
| Tax Area: | 0111 - 1-50F1E1H2L1 |
| CE | COUNTY CURRENT EXPENSE | 0.9034619479 | $10,120 | $10,120 | $9.14 | | |
| CNTYDD | DEVELOPMENTAL DISABILITIES | 0.0052121823 | $10,120 | $10,120 | $0.05 | | |
| CNTYVET | VETERANS RELIEF | 0.0052777810 | $10,120 | $10,120 | $0.05 | | |
| MENTAL | MENTAL HEALTH | 0.0052121823 | $10,120 | $10,120 | $0.05 | | |
| ROADS | COUNTY ROADS | 0.7415066410 | $10,120 | $10,120 | $7.50 | | |
| ROADSCU | COUNTY ROADS TO CUR EXP | 0.0000000000 | $10,120 | $10,120 | $0.00 | | |
| HOSP2CASH | HOSP DIST #2 GENERAL | 0.0536075306 | $10,120 | $10,120 | $0.54 | | |
| SCH50BOND | SCHOOL DIST #50 BOND 2016 | 0.5377451389 | $10,120 | $10,120 | $5.44 | | |
| SCH50CP | SCHOOL DIST #50 CAP PROJ | 0.4573475088 | $10,120 | $10,120 | $4.63 | | |
| SCH50MO | SCHOOL DIST #50 EP & O | 0.8262822886 | $10,120 | $10,120 | $8.36 | | |
| CONSERVE | CONSERVATION FUTURES | 0.0275621078 | $10,120 | $10,120 | $0.28 | | |
| EMS1 | FIRE DIST #1 EMS | 0.4679948282 | $10,120 | $10,120 | $4.74 | | |
| FD1 | FIRE DIST #1 GENERAL | 1.2171942929 | $10,120 | $10,120 | $12.32 | | |
| LIB1 | LIBRARY DIST #1 GENERAL | 0.2868827388 | $10,120 | $10,120 | $2.90 | | |
| PORTPT | PORT OF PT GENERAL | 0.1134941229 | $10,120 | $10,120 | $1.15 | | |
| PORTPTIDD | PORT OF PT IDD 2019 | 0.2577346692 | $10,120 | $10,120 | $2.61 | | |
| PUD1 | PUD #1 GENERAL | 0.0597888892 | $10,120 | $10,120 | $0.61 | | |
| STATE | STATE SCHOOL PART 1 | 1.4940692947 | $10,120 | $10,120 | $15.12 | | |
| STATE2 | STATE SCHOOL PART 2 | 0.8050170049 | $10,120 | $10,120 | $8.15 | | |
| | Total Tax Rate: | 8.2653911500 | | | | | |
| | | | | Taxes w/Current Exemptions: | $83.64 | | |
| | | | | Taxes w/o Exemptions: | $83.64 | | |
Improvement / Building
Sketch
| No sketches available for this property. |
Property Image
Land
| 1 | 1571A | Terr/Mtn/No View <6 Acres | 0.4000 | 17424.00 | 0.00 | 0.00 | 1.00 | $10,120 | $0 |
Roll Value History
| 2026 | N/A | N/A | N/A | N/A | N/A |
| 2025 | $0 | $10,120 | $0 | $10,120 | $10,120 |
| 2024 | $0 | $10,120 | $0 | $10,120 | $10,120 |
| 2023 | $0 | $37,538 | $0 | $37,538 | $37,538 |
| 2022 | $0 | $35,750 | $0 | $35,750 | $35,750 |
Deed and Sales History
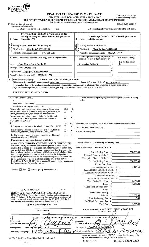
| 1 | 10/20/2020 | SWD | Statutory Warranty Deed | EVERYTHING ELSE TOO LLC | CAPE GEORGE LAND CO LLC | | | $350,000.00 | 135411 | |
|   | |
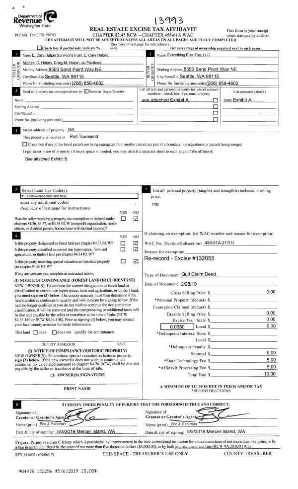
| 2 | 02/28/2019 | QCD | Quit Claim Deed | | | | | | 132256 | |
| 3 | 02/28/2019 | QCD | Quit Claim Deed | | | | | | 132055 | |
| 4 | 02/28/2019 | QCD | Quit Claim Deed | E CARY HALPIN SURVIVORS TRUST | EVERYTHING ELSE TOO LLC | | | | 131917 | |
| 5 | 02/28/2019 | QCD | Quit Claim Deed | | | | | | 132255 | |
| 6 | 02/28/2019 | QCD | Quit Claim Deed | | | | | | 132054 | |
| 7 | 02/28/2019 | QCD | Quit Claim Deed | CARY & MO HALPIN REVOCABLE LIVING TRUST | E CARY HALPIN SURVIVORS TRUST | | | | 131916 | |
| 8 | 02/28/2019 | QCD | Quit Claim Deed | | | | | | 132254 | |
| 9 | 02/28/2019 | QCD | Quit Claim Deed | | | | | | 132053 | |
| 10 | 02/28/2019 | QCD | Quit Claim Deed | E CARY HALPIN | CARY & MO HALPIN REVOCABLE LIVING TRUST | | | | 131915 | |
Payout Agreement
| No payout information available.. |