Property
Account |
| Property ID: | 32327 | Abbreviated Legal Description: | IRVINGTON ADDITION BLK 5 LOTS 6 THRU 10 (W1/2 EACH) INC VACATED STS ADJ QTA#20-2-00193-16 |
| Parcel # / Geo ID: | 963600501 | Agent Code: | |
| Type: | Real | | |
| Tax Area: | 0111 - 1-50F1E1H2L1 | Land Use Code | 91 |
| Open Space: | N | DFL | N |
| Historic Property: | N | Remodel Property: | N |
| Multi-Family Redevelopment: | N | | |
| Township: | 30N | Section: | 17 |
| Range: | 1W |
Location |
| Address: | | Mapsco: | 036/042 |
| Neighborhood: | S16&17 T30 R1W SALEM,EVERGRN,IRVING&SUNNYSIDE PKS,PIONEER AC | Map ID: | |
| Neighborhood CD: | 5340 |
Owner |
| Name: | CAPE GEORGE LAND CO LLC | Owner ID: | 103556 |
| Mailing Address: | PO BOX 4438 OLYMPIA, WA 98501-1779 | % Ownership: | 100.0000000000% |
| | | Exemptions: | |
Pay Tax Due
Select the appropriate checkbox next to the year to be paid. Multiple years may be selected.
*Convenience Fee not included
Taxes and Assessment Details
Property Tax Information as of
03/12/2026
Click on "Statement Details" to expand or collapse a tax statement.
* Please enter a valid date ** Please enter a valid date *
Statement Details |
| 2026 | 21596 | STATE - STATE LEVY (SCHOOL) | $11.64 | $11.63 | $0.00 | $0.00 | $0.00 | $23.27 |
| 2026 | 21596 | COUNTY - COUNTY LEVIES (CE, DD, VET, MH) | $4.66 | $4.63 | $0.00 | $0.00 | $0.00 | $9.29 |
| 2026 | 21596 | CONSERVE - CONSERVATION FUTURES | $0.14 | $0.14 | $0.00 | $0.00 | $0.00 | $0.28 |
| 2026 | 21596 | COROADS - COUNTY ROADS (ROADS, DIV TO CE) | $3.75 | $3.75 | $0.00 | $0.00 | $0.00 | $7.50 |
| 2026 | 21596 | PORTPT - PORT DISTRICT | $1.89 | $1.87 | $0.00 | $0.00 | $0.00 | $3.76 |
| 2026 | 21596 | PUD1 - PUD #1 | $0.31 | $0.30 | $0.00 | $0.00 | $0.00 | $0.61 |
| 2026 | 21596 | LIB1 - LIBRARY DIST #1 | $1.45 | $1.45 | $0.00 | $0.00 | $0.00 | $2.90 |
| 2026 | 21596 | HD2 - HOSP DIST #2 | $0.27 | $0.27 | $0.00 | $0.00 | $0.00 | $0.54 |
| 2026 | 21596 | SD50 - SCHOOL DIST #50 | $9.22 | $9.21 | $0.00 | $0.00 | $0.00 | $18.43 |
| 2026 | 21596 | FD1 - FIRE DISTRICT #1 | $6.16 | $6.16 | $0.00 | $0.00 | $0.00 | $12.32 |
| 2026 | 21596 | EMS1 - FIRE DIST #1 EMS | $2.37 | $2.37 | $0.00 | $0.00 | $0.00 | $4.74 |
| 2026 | 21596 | JCCD - JC Conservation District | $2.53 | $2.53 | $0.00 | $0.00 | $0.00 | $5.06 |
| 2026 | 21596 | NWA - Noxious Weed Assessment | $2.98 | $2.97 | $0.00 | $0.00 | $0.00 | $5.95 |
| 2026 | 21596 | WAT - Clean Water District | $13.00 | $13.00 | $0.00 | $0.00 | $0.00 | $26.00 |
| 2026 | 21596 | TOTAL: | $60.37 | $60.28 | $0.00 | $0.00 | $0.00 | $120.65 |
|
| 2026 | 21596 | $60.37 | $60.28 | $0.00 | $0.00 | $0.00 | $120.65 |
Statement Details |
| 2025 | 21658 | STATE - STATE LEVY (SCHOOL) | $12.14 | $12.13 | $0.00 | $0.00 | $24.27 | $0.00 |
| 2025 | 21658 | COUNTY - COUNTY LEVIES (CE, DD, VET, MH) | $4.78 | $4.75 | $0.00 | $0.00 | $9.53 | $0.00 |
| 2025 | 21658 | CONSERVE - CONSERVATION FUTURES | $0.15 | $0.14 | $0.00 | $0.00 | $0.29 | $0.00 |
| 2025 | 21658 | COROADS - COUNTY ROADS (ROADS, DIV TO CE) | $3.83 | $3.81 | $0.00 | $0.00 | $7.64 | $0.00 |
| 2025 | 21658 | PORTPT - PORT DISTRICT | $1.95 | $1.95 | $0.00 | $0.00 | $3.90 | $0.00 |
| 2025 | 21658 | PUD1 - PUD #1 | $0.31 | $0.31 | $0.00 | $0.00 | $0.62 | $0.00 |
| 2025 | 21658 | LIB1 - LIBRARY DIST #1 | $1.48 | $1.48 | $0.00 | $0.00 | $2.96 | $0.00 |
| 2025 | 21658 | HD2 - HOSP DIST #2 | $0.28 | $0.28 | $0.00 | $0.00 | $0.56 | $0.00 |
| 2025 | 21658 | SD50 - SCHOOL DIST #50 | $8.87 | $8.86 | $0.00 | $0.00 | $17.73 | $0.00 |
| 2025 | 21658 | FD1 - FIRE DISTRICT #1 | $6.30 | $6.29 | $0.00 | $0.00 | $12.59 | $0.00 |
| 2025 | 21658 | EMS1 - FIRE DIST #1 EMS | $2.42 | $2.42 | $0.00 | $0.00 | $4.84 | $0.00 |
| 2025 | 21658 | JCCD - JC Conservation District | $2.53 | $2.53 | $0.00 | $0.00 | $5.06 | $0.00 |
| 2025 | 21658 | NWA - Noxious Weed Assessment | $2.15 | $2.15 | $0.00 | $0.00 | $4.30 | $0.00 |
| 2025 | 21658 | WAT - Clean Water District | $13.00 | $13.00 | $0.00 | $0.00 | $26.00 | $0.00 |
| 2025 | 21658 | TOTAL: | $60.19 | $60.10 | $0.00 | $0.00 | $120.29 | $0.00 |
|
| 2025 | 21658 | $60.19 | $60.10 | $0.00 | $0.00 | $120.29 | $0.00 |
Statement Details |
| 2024 | 21703 | STATE - STATE LEVY (SCHOOL) | $43.43 | $43.42 | $0.00 | $0.00 | $86.85 | $0.00 |
| 2024 | 21703 | COUNTY - COUNTY LEVIES (CE, DD, VET, MH) | $18.60 | $18.56 | $0.00 | $0.00 | $37.16 | $0.00 |
| 2024 | 21703 | CONSERVE - CONSERVATION FUTURES | $0.56 | $0.55 | $0.00 | $0.00 | $1.11 | $0.00 |
| 2024 | 21703 | COROADS - COUNTY ROADS (ROADS, DIV TO CE) | $14.96 | $14.95 | $0.00 | $0.00 | $29.91 | $0.00 |
| 2024 | 21703 | PORTPT - PORT DISTRICT | $7.68 | $7.67 | $0.00 | $0.00 | $15.35 | $0.00 |
| 2024 | 21703 | PUD1 - PUD #1 | $1.22 | $1.22 | $0.00 | $0.00 | $2.44 | $0.00 |
| 2024 | 21703 | LIB1 - LIBRARY DIST #1 | $5.79 | $5.78 | $0.00 | $0.00 | $11.57 | $0.00 |
| 2024 | 21703 | HD2 - HOSP DIST #2 | $1.09 | $1.08 | $0.00 | $0.00 | $2.17 | $0.00 |
| 2024 | 21703 | SD50 - SCHOOL DIST #50 | $35.14 | $35.13 | $0.00 | $0.00 | $70.27 | $0.00 |
| 2024 | 21703 | FD1 - FIRE DISTRICT #1 | $24.57 | $24.57 | $0.00 | $0.00 | $49.14 | $0.00 |
| 2024 | 21703 | EMS1 - FIRE DIST #1 EMS | $9.39 | $9.38 | $0.00 | $0.00 | $18.77 | $0.00 |
| 2024 | 21703 | JCCD - JC Conservation District | $2.53 | $2.53 | $0.00 | $0.00 | $5.06 | $0.00 |
| 2024 | 21703 | NWA - Noxious Weed Assessment | $2.15 | $2.15 | $0.00 | $0.00 | $4.30 | $0.00 |
| 2024 | 21703 | WAT - Clean Water District | $12.50 | $12.50 | $0.00 | $0.00 | $25.00 | $0.00 |
| 2024 | 21703 | TOTAL: | $179.61 | $179.49 | $0.00 | $0.00 | $359.10 | $0.00 |
|
| 2024 | 21703 | $179.61 | $179.49 | $0.00 | $0.00 | $359.10 | $0.00 |
Statement Details |
| 2023 | 21740 | STATE - STATE LEVY (SCHOOL) | $42.09 | $42.07 | $0.00 | $0.00 | $84.16 | $0.00 |
| 2023 | 21740 | COUNTY - COUNTY LEVIES (CE, DD, VET, MH) | $18.38 | $18.35 | $0.00 | $0.00 | $36.73 | $0.00 |
| 2023 | 21740 | CONSERVE - CONSERVATION FUTURES | $0.55 | $0.55 | $0.00 | $0.00 | $1.10 | $0.00 |
| 2023 | 21740 | COROADS - COUNTY ROADS (ROADS, DIV TO CE) | $14.86 | $14.85 | $0.00 | $0.00 | $29.71 | $0.00 |
| 2023 | 21740 | PORTPT - PORT DISTRICT | $7.74 | $7.73 | $0.00 | $0.00 | $15.47 | $0.00 |
| 2023 | 21740 | PUD1 - PUD #1 | $1.22 | $1.21 | $0.00 | $0.00 | $2.43 | $0.00 |
| 2023 | 21740 | LIB1 - LIBRARY DIST #1 | $5.75 | $5.75 | $0.00 | $0.00 | $11.50 | $0.00 |
| 2023 | 21740 | HD2 - HOSP DIST #2 | $1.08 | $1.07 | $0.00 | $0.00 | $2.15 | $0.00 |
| 2023 | 21740 | SD50 - SCHOOL DIST #50 | $33.40 | $33.38 | $0.00 | $0.00 | $66.78 | $0.00 |
| 2023 | 21740 | FD1 - FIRE DISTRICT #1 | $15.13 | $15.12 | $0.00 | $0.00 | $30.25 | $0.00 |
| 2023 | 21740 | EMS1 - FIRE DIST #1 EMS | $6.44 | $6.43 | $0.00 | $0.00 | $12.87 | $0.00 |
| 2023 | 21740 | JCCD - JC Conservation District | $2.53 | $2.53 | $0.00 | $0.00 | $5.06 | $0.00 |
| 2023 | 21740 | NWA - Noxious Weed Assessment | $2.15 | $2.15 | $0.00 | $0.00 | $4.30 | $0.00 |
| 2023 | 21740 | WAT - Clean Water District | $12.00 | $12.00 | $0.00 | $0.00 | $24.00 | $0.00 |
| 2023 | 21740 | TOTAL: | $163.32 | $163.19 | $0.00 | $0.00 | $326.51 | $0.00 |
|
| 2023 | 21740 | $163.32 | $163.19 | $0.00 | $0.00 | $326.51 | $0.00 |
Values
| (+) Improvement Homesite Value: | + | $0 | |
| (+) Improvement Non-Homesite Value: | + | $0 | |
| (+) Land Homesite Value: | + | $0 | |
| (+) Land Non-Homesite Value: | + | $10,120 | |
| (+) Curr Use (HS): | + | $0 | $0 |
| (+) Curr Use (NHS): | + | $0 | $0 |
| | | -------------------------- | |
| (=) Market Value: | = | $10,120 | |
| (–) Productivity Loss: | – | $0 | |
| | | -------------------------- | |
| (=) Subtotal: | = | $10,120 | |
| (+) Senior Appraised Value: | + | $0 | |
| (+) Non-Senior Appraised Value: | + | $10,120 | |
| | | -------------------------- | |
| (=) Total Appraised Value: | = | $10,120 | |
| (–) Senior Exemption Loss: | – | $0 | |
| (–) Exemption Loss: | – | $0 | |
| | | -------------------------- | |
| (=) Taxable Value: | = | $10,120 | |
Taxing Jurisdiction
| Owner: | CAPE GEORGE LAND CO LLC | | |
| % Ownership: | 100.0000000000% | | |
| Total Value: | N/A | | |
| Tax Area: | 0111 - 1-50F1E1H2L1 |
| CE | COUNTY CURRENT EXPENSE | N/A | N/A | N/A | N/A | | |
| CNTYDD | DEVELOPMENTAL DISABILITIES | N/A | N/A | N/A | N/A | | |
| CNTYVET | VETERANS RELIEF | N/A | N/A | N/A | N/A | | |
| MENTAL | MENTAL HEALTH | N/A | N/A | N/A | N/A | | |
| ROADS | COUNTY ROADS | N/A | N/A | N/A | N/A | | |
| HOSP2CASH | HOSP DIST #2 GENERAL | N/A | N/A | N/A | N/A | | |
| SCH50BOND | SCHOOL DIST #50 BOND 2016 | N/A | N/A | N/A | N/A | | |
| SCH50CP | SCHOOL DIST #50 CAP PROJ | N/A | N/A | N/A | N/A | | |
| SCH50MO | SCHOOL DIST #50 EP & O | N/A | N/A | N/A | N/A | | |
| CONSERVE | CONSERVATION FUTURES | N/A | N/A | N/A | N/A | | |
| EMS1 | FIRE DIST #1 EMS | N/A | N/A | N/A | N/A | | |
| FD1 | FIRE DIST #1 GENERAL | N/A | N/A | N/A | N/A | | |
| LIB1 | LIBRARY DIST #1 GENERAL | N/A | N/A | N/A | N/A | | |
| PORTPT | PORT OF PT GENERAL | N/A | N/A | N/A | N/A | | |
| PORTPTIDD | PORT OF PT IDD 2019 | N/A | N/A | N/A | N/A | | |
| PUD1 | PUD #1 GENERAL | N/A | N/A | N/A | N/A | | |
| STATE | STATE SCHOOL PART 1 | N/A | N/A | N/A | N/A | | |
| STATE2 | STATE SCHOOL PART 2 | N/A | N/A | N/A | N/A | | |
| | Total Tax Rate: | N/A | | | | | |
| | | | | Taxes w/Current Exemptions: | N/A | | |
| | | | | Taxes w/o Exemptions: | N/A | | |
Improvement / Building
Sketch
| No sketches available for this property. |
Property Image
Land
| 1 | 1571A | | 0.4000 | 17424.00 | 0.00 | 0.00 | 1.00 | $10,120 | $0 |
Roll Value History
| 2026 | N/A | N/A | N/A | N/A | N/A |
| 2025 | $0 | $10,120 | $0 | $10,120 | $10,120 |
| 2024 | $0 | $10,120 | $0 | $10,120 | $10,120 |
| 2023 | $0 | $37,538 | $0 | $37,538 | $37,538 |
| 2022 | $0 | $35,750 | $0 | $35,750 | $35,750 |
Deed and Sales History
| 1 | 10/20/2020 | SWD | Statutory Warranty Deed | EVERYTHING ELSE TOO LLC | CAPE GEORGE LAND CO LLC | | | $350,000.00 | 135411 | |
|   | |
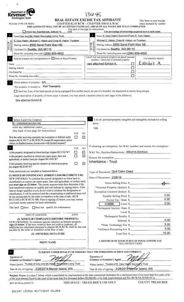
| 2 | 02/28/2019 | QCD | Quit Claim Deed | | | | | | 132256 | |
| 3 | 02/28/2019 | QCD | Quit Claim Deed | | | | | | 132055 | |
| 4 | 02/28/2019 | QCD | Quit Claim Deed | E CARY HALPIN SURVIVORS TRUST | EVERYTHING ELSE TOO LLC | | | | 131917 | |
| 5 | 02/28/2019 | QCD | Quit Claim Deed | | | | | | 132255 | |
| 6 | 02/28/2019 | QCD | Quit Claim Deed | | | | | | 132054 | |
| 7 | 02/28/2019 | QCD | Quit Claim Deed | CARY & MO HALPIN REVOCABLE LIVING TRUST | E CARY HALPIN SURVIVORS TRUST | | | | 131916 | |
| 8 | 02/28/2019 | QCD | Quit Claim Deed | | | | | | 132254 | |
| 9 | 02/28/2019 | QCD | Quit Claim Deed | | | | | | 132053 | |
| 10 | 02/28/2019 | QCD | Quit Claim Deed | E CARY HALPIN | CARY & MO HALPIN REVOCABLE LIVING TRUST | | | | 131915 | |
Payout Agreement
| No payout information available.. |