Property
Account |
| Property ID: | 32331 | Abbreviated Legal Description: | IRVINGTON ADDITION BLK 6 LOTS 1 THRU 8 INC VACATED STS ADJ QTA#20-2-00193-16 |
| Parcel # / Geo ID: | 963600601 | Agent Code: | |
| Type: | Real | | |
| Tax Area: | 0111 - 1-50F1E1H2L1 | Land Use Code | 91 |
| Open Space: | N | DFL | N |
| Historic Property: | N | Remodel Property: | N |
| Multi-Family Redevelopment: | N | | |
| Township: | 30N | Section: | 17 |
| Range: | 1W |
Location |
| Address: | | Mapsco: | 036/044 |
| Neighborhood: | S16&17 T30 R1W SALEM,EVERGRN,IRVING&SUNNYSIDE PKS,PIONEER AC | Map ID: | |
| Neighborhood CD: | 5340 |
Owner |
| Name: | CAPE GEORGE LAND CO LLC | Owner ID: | 103556 |
| Mailing Address: | PO BOX 4438 OLYMPIA, WA 98501-1779 | % Ownership: | 100.0000000000% |
| | | Exemptions: | |
Pay Tax Due
Select the appropriate checkbox next to the year to be paid. Multiple years may be selected.
*Convenience Fee not included
Taxes and Assessment Details
Property Tax Information as of
03/11/2026
Click on "Statement Details" to expand or collapse a tax statement.
* Please enter a valid date ** Please enter a valid date *
Statement Details |
| 2026 | 21600 | STATE - STATE LEVY (SCHOOL) | $32.87 | $32.85 | $0.00 | $0.00 | $0.00 | $65.72 |
| 2026 | 21600 | COUNTY - COUNTY LEVIES (CE, DD, VET, MH) | $13.16 | $13.12 | $0.00 | $0.00 | $0.00 | $26.28 |
| 2026 | 21600 | CONSERVE - CONSERVATION FUTURES | $0.40 | $0.39 | $0.00 | $0.00 | $0.00 | $0.79 |
| 2026 | 21600 | COROADS - COUNTY ROADS (ROADS, DIV TO CE) | $10.60 | $10.60 | $0.00 | $0.00 | $0.00 | $21.20 |
| 2026 | 21600 | PORTPT - PORT DISTRICT | $5.31 | $5.30 | $0.00 | $0.00 | $0.00 | $10.61 |
| 2026 | 21600 | PUD1 - PUD #1 | $0.86 | $0.85 | $0.00 | $0.00 | $0.00 | $1.71 |
| 2026 | 21600 | LIB1 - LIBRARY DIST #1 | $4.10 | $4.10 | $0.00 | $0.00 | $0.00 | $8.20 |
| 2026 | 21600 | HD2 - HOSP DIST #2 | $0.77 | $0.76 | $0.00 | $0.00 | $0.00 | $1.53 |
| 2026 | 21600 | SD50 - SCHOOL DIST #50 | $26.04 | $26.03 | $0.00 | $0.00 | $0.00 | $52.07 |
| 2026 | 21600 | FD1 - FIRE DISTRICT #1 | $17.40 | $17.40 | $0.00 | $0.00 | $0.00 | $34.80 |
| 2026 | 21600 | EMS1 - FIRE DIST #1 EMS | $6.69 | $6.69 | $0.00 | $0.00 | $0.00 | $13.38 |
| 2026 | 21600 | FPLCA - DNR Landowner Contingency Assmt | $3.00 | $3.00 | $0.00 | $0.00 | $0.00 | $6.00 |
| 2026 | 21600 | JCCD - JC Conservation District | $2.53 | $2.53 | $0.00 | $0.00 | $0.00 | $5.06 |
| 2026 | 21600 | NWA - Noxious Weed Assessment | $2.98 | $2.97 | $0.00 | $0.00 | $0.00 | $5.95 |
| 2026 | 21600 | WAT - Clean Water District | $13.00 | $13.00 | $0.00 | $0.00 | $0.00 | $26.00 |
| 2026 | 21600 | TOTAL: | $139.71 | $139.59 | $0.00 | $0.00 | $0.00 | $279.30 |
|
| 2026 | 21600 | $139.71 | $139.59 | $0.00 | $0.00 | $0.00 | $279.30 |
Statement Details |
| 2025 | 21662 | STATE - STATE LEVY (SCHOOL) | $34.29 | $34.27 | $0.00 | $0.00 | $68.56 | $0.00 |
| 2025 | 21662 | COUNTY - COUNTY LEVIES (CE, DD, VET, MH) | $13.49 | $13.46 | $0.00 | $0.00 | $26.95 | $0.00 |
| 2025 | 21662 | CONSERVE - CONSERVATION FUTURES | $0.41 | $0.40 | $0.00 | $0.00 | $0.81 | $0.00 |
| 2025 | 21662 | COROADS - COUNTY ROADS (ROADS, DIV TO CE) | $10.80 | $10.80 | $0.00 | $0.00 | $21.60 | $0.00 |
| 2025 | 21662 | PORTPT - PORT DISTRICT | $5.51 | $5.49 | $0.00 | $0.00 | $11.00 | $0.00 |
| 2025 | 21662 | PUD1 - PUD #1 | $0.88 | $0.88 | $0.00 | $0.00 | $1.76 | $0.00 |
| 2025 | 21662 | LIB1 - LIBRARY DIST #1 | $4.18 | $4.18 | $0.00 | $0.00 | $8.36 | $0.00 |
| 2025 | 21662 | HD2 - HOSP DIST #2 | $0.79 | $0.78 | $0.00 | $0.00 | $1.57 | $0.00 |
| 2025 | 21662 | SD50 - SCHOOL DIST #50 | $25.06 | $25.05 | $0.00 | $0.00 | $50.11 | $0.00 |
| 2025 | 21662 | FD1 - FIRE DISTRICT #1 | $17.79 | $17.79 | $0.00 | $0.00 | $35.58 | $0.00 |
| 2025 | 21662 | EMS1 - FIRE DIST #1 EMS | $6.84 | $6.84 | $0.00 | $0.00 | $13.68 | $0.00 |
| 2025 | 21662 | FPLCA - DNR Landowner Contingency Assmt | $3.00 | $3.00 | $0.00 | $0.00 | $6.00 | $0.00 |
| 2025 | 21662 | JCCD - JC Conservation District | $2.53 | $2.53 | $0.00 | $0.00 | $5.06 | $0.00 |
| 2025 | 21662 | NWA - Noxious Weed Assessment | $2.15 | $2.15 | $0.00 | $0.00 | $4.30 | $0.00 |
| 2025 | 21662 | WAT - Clean Water District | $13.00 | $13.00 | $0.00 | $0.00 | $26.00 | $0.00 |
| 2025 | 21662 | TOTAL: | $140.72 | $140.62 | $0.00 | $0.00 | $281.34 | $0.00 |
|
| 2025 | 21662 | $140.72 | $140.62 | $0.00 | $0.00 | $281.34 | $0.00 |
Statement Details |
| 2024 | 21707 | STATE - STATE LEVY (SCHOOL) | $58.25 | $58.24 | $0.00 | $0.00 | $116.49 | $0.00 |
| 2024 | 21707 | COUNTY - COUNTY LEVIES (CE, DD, VET, MH) | $24.92 | $24.92 | $0.00 | $0.00 | $49.84 | $0.00 |
| 2024 | 21707 | CONSERVE - CONSERVATION FUTURES | $0.75 | $0.74 | $0.00 | $0.00 | $1.49 | $0.00 |
| 2024 | 21707 | COROADS - COUNTY ROADS (ROADS, DIV TO CE) | $20.06 | $20.05 | $0.00 | $0.00 | $40.11 | $0.00 |
| 2024 | 21707 | PORTPT - PORT DISTRICT | $10.30 | $10.28 | $0.00 | $0.00 | $20.58 | $0.00 |
| 2024 | 21707 | PUD1 - PUD #1 | $1.64 | $1.63 | $0.00 | $0.00 | $3.27 | $0.00 |
| 2024 | 21707 | LIB1 - LIBRARY DIST #1 | $7.76 | $7.76 | $0.00 | $0.00 | $15.52 | $0.00 |
| 2024 | 21707 | HD2 - HOSP DIST #2 | $1.46 | $1.45 | $0.00 | $0.00 | $2.91 | $0.00 |
| 2024 | 21707 | SD50 - SCHOOL DIST #50 | $47.13 | $47.11 | $0.00 | $0.00 | $94.24 | $0.00 |
| 2024 | 21707 | FD1 - FIRE DISTRICT #1 | $32.96 | $32.95 | $0.00 | $0.00 | $65.91 | $0.00 |
| 2024 | 21707 | EMS1 - FIRE DIST #1 EMS | $12.59 | $12.58 | $0.00 | $0.00 | $25.17 | $0.00 |
| 2024 | 21707 | FPLCA - DNR Landowner Contingency Assmt | $3.00 | $3.00 | $0.00 | $0.00 | $6.00 | $0.00 |
| 2024 | 21707 | JCCD - JC Conservation District | $2.53 | $2.53 | $0.00 | $0.00 | $5.06 | $0.00 |
| 2024 | 21707 | NWA - Noxious Weed Assessment | $2.15 | $2.15 | $0.00 | $0.00 | $4.30 | $0.00 |
| 2024 | 21707 | WAT - Clean Water District | $12.50 | $12.50 | $0.00 | $0.00 | $25.00 | $0.00 |
| 2024 | 21707 | TOTAL: | $238.00 | $237.89 | $0.00 | $0.00 | $475.89 | $0.00 |
|
| 2024 | 21707 | $238.00 | $237.89 | $0.00 | $0.00 | $475.89 | $0.00 |
Statement Details |
| 2023 | 21744 | STATE - STATE LEVY (SCHOOL) | $56.44 | $56.44 | $0.00 | $0.00 | $112.88 | $0.00 |
| 2023 | 21744 | COUNTY - COUNTY LEVIES (CE, DD, VET, MH) | $24.63 | $24.63 | $0.00 | $0.00 | $49.26 | $0.00 |
| 2023 | 21744 | CONSERVE - CONSERVATION FUTURES | $0.74 | $0.74 | $0.00 | $0.00 | $1.48 | $0.00 |
| 2023 | 21744 | COROADS - COUNTY ROADS (ROADS, DIV TO CE) | $19.93 | $19.92 | $0.00 | $0.00 | $39.85 | $0.00 |
| 2023 | 21744 | PORTPT - PORT DISTRICT | $10.38 | $10.37 | $0.00 | $0.00 | $20.75 | $0.00 |
| 2023 | 21744 | PUD1 - PUD #1 | $1.64 | $1.63 | $0.00 | $0.00 | $3.27 | $0.00 |
| 2023 | 21744 | LIB1 - LIBRARY DIST #1 | $7.71 | $7.71 | $0.00 | $0.00 | $15.42 | $0.00 |
| 2023 | 21744 | HD2 - HOSP DIST #2 | $1.44 | $1.43 | $0.00 | $0.00 | $2.87 | $0.00 |
| 2023 | 21744 | SD50 - SCHOOL DIST #50 | $44.80 | $44.78 | $0.00 | $0.00 | $89.58 | $0.00 |
| 2023 | 21744 | FD1 - FIRE DISTRICT #1 | $20.29 | $20.29 | $0.00 | $0.00 | $40.58 | $0.00 |
| 2023 | 21744 | EMS1 - FIRE DIST #1 EMS | $8.63 | $8.63 | $0.00 | $0.00 | $17.26 | $0.00 |
| 2023 | 21744 | FPLCA - DNR Landowner Contingency Assmt | $3.00 | $3.00 | $0.00 | $0.00 | $6.00 | $0.00 |
| 2023 | 21744 | JCCD - JC Conservation District | $2.53 | $2.53 | $0.00 | $0.00 | $5.06 | $0.00 |
| 2023 | 21744 | NWA - Noxious Weed Assessment | $2.15 | $2.15 | $0.00 | $0.00 | $4.30 | $0.00 |
| 2023 | 21744 | WAT - Clean Water District | $12.00 | $12.00 | $0.00 | $0.00 | $24.00 | $0.00 |
| 2023 | 21744 | TOTAL: | $216.31 | $216.25 | $0.00 | $0.00 | $432.56 | $0.00 |
|
| 2023 | 21744 | $216.31 | $216.25 | $0.00 | $0.00 | $432.56 | $0.00 |
Values
| (+) Improvement Homesite Value: | + | $0 | |
| (+) Improvement Non-Homesite Value: | + | $0 | |
| (+) Land Homesite Value: | + | $0 | |
| (+) Land Non-Homesite Value: | + | $28,589 | |
| (+) Curr Use (HS): | + | $0 | $0 |
| (+) Curr Use (NHS): | + | $0 | $0 |
| | | -------------------------- | |
| (=) Market Value: | = | $28,589 | |
| (–) Productivity Loss: | – | $0 | |
| | | -------------------------- | |
| (=) Subtotal: | = | $28,589 | |
| (+) Senior Appraised Value: | + | $0 | |
| (+) Non-Senior Appraised Value: | + | $28,589 | |
| | | -------------------------- | |
| (=) Total Appraised Value: | = | $28,589 | |
| (–) Senior Exemption Loss: | – | $0 | |
| (–) Exemption Loss: | – | $0 | |
| | | -------------------------- | |
| (=) Taxable Value: | = | $28,589 | |
Taxing Jurisdiction
| Owner: | CAPE GEORGE LAND CO LLC | | |
| % Ownership: | 100.0000000000% | | |
| Total Value: | $28,589 | | |
| Tax Area: | 0111 - 1-50F1E1H2L1 |
| CE | COUNTY CURRENT EXPENSE | 0.9034619479 | $28,589 | $28,589 | $25.83 | | |
| CNTYDD | DEVELOPMENTAL DISABILITIES | 0.0052121823 | $28,589 | $28,589 | $0.15 | | |
| CNTYVET | VETERANS RELIEF | 0.0052777810 | $28,589 | $28,589 | $0.15 | | |
| MENTAL | MENTAL HEALTH | 0.0052121823 | $28,589 | $28,589 | $0.15 | | |
| ROADS | COUNTY ROADS | 0.7415066410 | $28,589 | $28,589 | $21.20 | | |
| ROADSCU | COUNTY ROADS TO CUR EXP | 0.0000000000 | $28,589 | $28,589 | $0.00 | | |
| HOSP2CASH | HOSP DIST #2 GENERAL | 0.0536075306 | $28,589 | $28,589 | $1.53 | | |
| SCH50BOND | SCHOOL DIST #50 BOND 2016 | 0.5377451389 | $28,589 | $28,589 | $15.37 | | |
| SCH50CP | SCHOOL DIST #50 CAP PROJ | 0.4573475088 | $28,589 | $28,589 | $13.08 | | |
| SCH50MO | SCHOOL DIST #50 EP & O | 0.8262822886 | $28,589 | $28,589 | $23.62 | | |
| CONSERVE | CONSERVATION FUTURES | 0.0275621078 | $28,589 | $28,589 | $0.79 | | |
| EMS1 | FIRE DIST #1 EMS | 0.4679948282 | $28,589 | $28,589 | $13.38 | | |
| FD1 | FIRE DIST #1 GENERAL | 1.2171942929 | $28,589 | $28,589 | $34.80 | | |
| LIB1 | LIBRARY DIST #1 GENERAL | 0.2868827388 | $28,589 | $28,589 | $8.20 | | |
| PORTPT | PORT OF PT GENERAL | 0.1134941229 | $28,589 | $28,589 | $3.24 | | |
| PORTPTIDD | PORT OF PT IDD 2019 | 0.2577346692 | $28,589 | $28,589 | $7.37 | | |
| PUD1 | PUD #1 GENERAL | 0.0597888892 | $28,589 | $28,589 | $1.71 | | |
| STATE | STATE SCHOOL PART 1 | 1.4940692947 | $28,589 | $28,589 | $42.71 | | |
| STATE2 | STATE SCHOOL PART 2 | 0.8050170049 | $28,589 | $28,589 | $23.01 | | |
| | Total Tax Rate: | 8.2653911500 | | | | | |
| | | | | Taxes w/Current Exemptions: | $236.29 | | |
| | | | | Taxes w/o Exemptions: | $236.29 | | |
Improvement / Building
Sketch
| No sketches available for this property. |
Property Image
Land
| 1 | 1571A | | 1.1300 | 49222.80 | 0.00 | 0.00 | 1.00 | $28,589 | $0 |
Roll Value History
| 2026 | N/A | N/A | N/A | N/A | N/A |
| 2025 | $0 | $28,589 | $0 | $28,589 | $28,589 |
| 2024 | $0 | $28,589 | $0 | $28,589 | $28,589 |
| 2023 | $0 | $50,348 | $0 | $50,348 | $50,348 |
| 2022 | $0 | $47,950 | $0 | $47,950 | $47,950 |
Deed and Sales History
| 1 | 10/20/2020 | SWD | Statutory Warranty Deed | EVERYTHING ELSE TOO LLC | CAPE GEORGE LAND CO LLC | | | $350,000.00 | 135411 | |
|   | |
| 2 | 02/28/2019 | QCD | Quit Claim Deed | | | | | | 132256 | |
| 3 | 02/28/2019 | QCD | Quit Claim Deed | | | | | | 132055 | |
| 4 | 02/28/2019 | QCD | Quit Claim Deed | E CARY HALPIN SURVIVORS TRUST | EVERYTHING ELSE TOO LLC | | | | 131917 | |
| 5 | 02/28/2019 | QCD | Quit Claim Deed | | | | | | 132255 | |
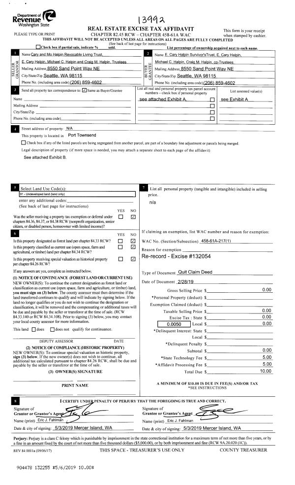
| 6 | 02/28/2019 | QCD | Quit Claim Deed | | | | | | 132054 | |
| 7 | 02/28/2019 | QCD | Quit Claim Deed | CARY & MO HALPIN REVOCABLE LIVING TRUST | E CARY HALPIN SURVIVORS TRUST | | | | 131916 | |
| 8 | 02/28/2019 | QCD | Quit Claim Deed | | | | | | 132254 | |
| 9 | 02/28/2019 | QCD | Quit Claim Deed | | | | | | 132053 | |
| 10 | 02/28/2019 | QCD | Quit Claim Deed | E CARY HALPIN | CARY & MO HALPIN REVOCABLE LIVING TRUST | | | | 131915 | |
Payout Agreement
| No payout information available.. |