Property
Account |
| Property ID: | 32339 | Abbreviated Legal Description: | IRVINGTON ADDITION BLK 14 LOTS 1 THRU 12 INC VACATED STS ADJ QTA#20-2-00193-16 |
| Parcel # / Geo ID: | 963601401 | Agent Code: | |
| Type: | Real | | |
| Tax Area: | 0111 - 1-50F1E1H2L1 | Land Use Code | 91 |
| Open Space: | N | DFL | N |
| Historic Property: | N | Remodel Property: | N |
| Multi-Family Redevelopment: | N | | |
| Township: | 30N | Section: | 17 |
| Range: | 1W |
Location |
| Address: | | Mapsco: | 036/060 |
| Neighborhood: | S16&17 T30 R1W SALEM,EVERGRN,IRVING&SUNNYSIDE PKS,PIONEER AC | Map ID: | |
| Neighborhood CD: | 5340 |
Owner |
| Name: | CAPE GEORGE LAND CO LLC | Owner ID: | 103556 |
| Mailing Address: | PO BOX 4438 OLYMPIA, WA 98501-1779 | % Ownership: | 100.0000000000% |
| | | Exemptions: | |
Pay Tax Due
Select the appropriate checkbox next to the year to be paid. Multiple years may be selected.
*Convenience Fee not included
Taxes and Assessment Details
Property Tax Information as of
03/10/2026
Click on "Statement Details" to expand or collapse a tax statement.
* Please enter a valid date ** Please enter a valid date *
Statement Details |
| 2026 | 21608 | STATE - STATE LEVY (SCHOOL) | $38.10 | $38.10 | $0.00 | $0.00 | $0.00 | $76.20 |
| 2026 | 21608 | COUNTY - COUNTY LEVIES (CE, DD, VET, MH) | $15.24 | $15.21 | $0.00 | $0.00 | $0.00 | $30.45 |
| 2026 | 21608 | CONSERVE - CONSERVATION FUTURES | $0.46 | $0.45 | $0.00 | $0.00 | $0.00 | $0.91 |
| 2026 | 21608 | COROADS - COUNTY ROADS (ROADS, DIV TO CE) | $12.29 | $12.29 | $0.00 | $0.00 | $0.00 | $24.58 |
| 2026 | 21608 | PORTPT - PORT DISTRICT | $6.15 | $6.15 | $0.00 | $0.00 | $0.00 | $12.30 |
| 2026 | 21608 | PUD1 - PUD #1 | $0.99 | $0.99 | $0.00 | $0.00 | $0.00 | $1.98 |
| 2026 | 21608 | LIB1 - LIBRARY DIST #1 | $4.76 | $4.75 | $0.00 | $0.00 | $0.00 | $9.51 |
| 2026 | 21608 | HD2 - HOSP DIST #2 | $0.89 | $0.89 | $0.00 | $0.00 | $0.00 | $1.78 |
| 2026 | 21608 | SD50 - SCHOOL DIST #50 | $30.19 | $30.18 | $0.00 | $0.00 | $0.00 | $60.37 |
| 2026 | 21608 | FD1 - FIRE DISTRICT #1 | $20.17 | $20.17 | $0.00 | $0.00 | $0.00 | $40.34 |
| 2026 | 21608 | EMS1 - FIRE DIST #1 EMS | $7.76 | $7.75 | $0.00 | $0.00 | $0.00 | $15.51 |
| 2026 | 21608 | FPLCA - DNR Landowner Contingency Assmt | $3.00 | $3.00 | $0.00 | $0.00 | $0.00 | $6.00 |
| 2026 | 21608 | JCCD - JC Conservation District | $2.53 | $2.53 | $0.00 | $0.00 | $0.00 | $5.06 |
| 2026 | 21608 | NWA - Noxious Weed Assessment | $2.98 | $2.97 | $0.00 | $0.00 | $0.00 | $5.95 |
| 2026 | 21608 | WAT - Clean Water District | $13.00 | $13.00 | $0.00 | $0.00 | $0.00 | $26.00 |
| 2026 | 21608 | TOTAL: | $158.51 | $158.43 | $0.00 | $0.00 | $0.00 | $316.94 |
|
| 2026 | 21608 | $158.51 | $158.43 | $0.00 | $0.00 | $0.00 | $316.94 |
Statement Details |
| 2025 | 21670 | STATE - STATE LEVY (SCHOOL) | $39.75 | $39.73 | $0.00 | $0.00 | $79.48 | $0.00 |
| 2025 | 21670 | COUNTY - COUNTY LEVIES (CE, DD, VET, MH) | $15.63 | $15.63 | $0.00 | $0.00 | $31.26 | $0.00 |
| 2025 | 21670 | CONSERVE - CONSERVATION FUTURES | $0.47 | $0.47 | $0.00 | $0.00 | $0.94 | $0.00 |
| 2025 | 21670 | COROADS - COUNTY ROADS (ROADS, DIV TO CE) | $12.53 | $12.51 | $0.00 | $0.00 | $25.04 | $0.00 |
| 2025 | 21670 | PORTPT - PORT DISTRICT | $6.38 | $6.37 | $0.00 | $0.00 | $12.75 | $0.00 |
| 2025 | 21670 | PUD1 - PUD #1 | $1.03 | $1.02 | $0.00 | $0.00 | $2.05 | $0.00 |
| 2025 | 21670 | LIB1 - LIBRARY DIST #1 | $4.85 | $4.84 | $0.00 | $0.00 | $9.69 | $0.00 |
| 2025 | 21670 | HD2 - HOSP DIST #2 | $0.91 | $0.91 | $0.00 | $0.00 | $1.82 | $0.00 |
| 2025 | 21670 | SD50 - SCHOOL DIST #50 | $29.05 | $29.04 | $0.00 | $0.00 | $58.09 | $0.00 |
| 2025 | 21670 | FD1 - FIRE DISTRICT #1 | $20.62 | $20.62 | $0.00 | $0.00 | $41.24 | $0.00 |
| 2025 | 21670 | EMS1 - FIRE DIST #1 EMS | $7.93 | $7.93 | $0.00 | $0.00 | $15.86 | $0.00 |
| 2025 | 21670 | FPLCA - DNR Landowner Contingency Assmt | $3.00 | $3.00 | $0.00 | $0.00 | $6.00 | $0.00 |
| 2025 | 21670 | JCCD - JC Conservation District | $2.53 | $2.53 | $0.00 | $0.00 | $5.06 | $0.00 |
| 2025 | 21670 | NWA - Noxious Weed Assessment | $2.15 | $2.15 | $0.00 | $0.00 | $4.30 | $0.00 |
| 2025 | 21670 | WAT - Clean Water District | $13.00 | $13.00 | $0.00 | $0.00 | $26.00 | $0.00 |
| 2025 | 21670 | TOTAL: | $159.83 | $159.75 | $0.00 | $0.00 | $319.58 | $0.00 |
|
| 2025 | 21670 | $159.83 | $159.75 | $0.00 | $0.00 | $319.58 | $0.00 |
Statement Details |
| 2024 | 21715 | STATE - STATE LEVY (SCHOOL) | $40.50 | $40.48 | $0.00 | $0.00 | $80.98 | $0.00 |
| 2024 | 21715 | COUNTY - COUNTY LEVIES (CE, DD, VET, MH) | $17.33 | $17.33 | $0.00 | $0.00 | $34.66 | $0.00 |
| 2024 | 21715 | CONSERVE - CONSERVATION FUTURES | $0.52 | $0.52 | $0.00 | $0.00 | $1.04 | $0.00 |
| 2024 | 21715 | COROADS - COUNTY ROADS (ROADS, DIV TO CE) | $13.94 | $13.94 | $0.00 | $0.00 | $27.88 | $0.00 |
| 2024 | 21715 | PORTPT - PORT DISTRICT | $7.16 | $7.15 | $0.00 | $0.00 | $14.31 | $0.00 |
| 2024 | 21715 | PUD1 - PUD #1 | $1.14 | $1.14 | $0.00 | $0.00 | $2.28 | $0.00 |
| 2024 | 21715 | LIB1 - LIBRARY DIST #1 | $5.40 | $5.39 | $0.00 | $0.00 | $10.79 | $0.00 |
| 2024 | 21715 | HD2 - HOSP DIST #2 | $1.01 | $1.01 | $0.00 | $0.00 | $2.02 | $0.00 |
| 2024 | 21715 | SD50 - SCHOOL DIST #50 | $32.77 | $32.75 | $0.00 | $0.00 | $65.52 | $0.00 |
| 2024 | 21715 | FD1 - FIRE DISTRICT #1 | $22.91 | $22.91 | $0.00 | $0.00 | $45.82 | $0.00 |
| 2024 | 21715 | EMS1 - FIRE DIST #1 EMS | $8.75 | $8.75 | $0.00 | $0.00 | $17.50 | $0.00 |
| 2024 | 21715 | FPLCA - DNR Landowner Contingency Assmt | $3.00 | $3.00 | $0.00 | $0.00 | $6.00 | $0.00 |
| 2024 | 21715 | JCCD - JC Conservation District | $2.53 | $2.53 | $0.00 | $0.00 | $5.06 | $0.00 |
| 2024 | 21715 | NWA - Noxious Weed Assessment | $2.15 | $2.15 | $0.00 | $0.00 | $4.30 | $0.00 |
| 2024 | 21715 | WAT - Clean Water District | $12.50 | $12.50 | $0.00 | $0.00 | $25.00 | $0.00 |
| 2024 | 21715 | TOTAL: | $171.61 | $171.55 | $0.00 | $0.00 | $343.16 | $0.00 |
|
| 2024 | 21715 | $171.61 | $171.55 | $0.00 | $0.00 | $343.16 | $0.00 |
Statement Details |
| 2023 | 21752 | STATE - STATE LEVY (SCHOOL) | $39.25 | $39.23 | $0.00 | $0.00 | $78.48 | $0.00 |
| 2023 | 21752 | COUNTY - COUNTY LEVIES (CE, DD, VET, MH) | $17.13 | $17.11 | $0.00 | $0.00 | $34.24 | $0.00 |
| 2023 | 21752 | CONSERVE - CONSERVATION FUTURES | $0.52 | $0.51 | $0.00 | $0.00 | $1.03 | $0.00 |
| 2023 | 21752 | COROADS - COUNTY ROADS (ROADS, DIV TO CE) | $13.86 | $13.84 | $0.00 | $0.00 | $27.70 | $0.00 |
| 2023 | 21752 | PORTPT - PORT DISTRICT | $7.22 | $7.21 | $0.00 | $0.00 | $14.43 | $0.00 |
| 2023 | 21752 | PUD1 - PUD #1 | $1.14 | $1.13 | $0.00 | $0.00 | $2.27 | $0.00 |
| 2023 | 21752 | LIB1 - LIBRARY DIST #1 | $5.36 | $5.36 | $0.00 | $0.00 | $10.72 | $0.00 |
| 2023 | 21752 | HD2 - HOSP DIST #2 | $1.00 | $0.99 | $0.00 | $0.00 | $1.99 | $0.00 |
| 2023 | 21752 | SD50 - SCHOOL DIST #50 | $31.15 | $31.12 | $0.00 | $0.00 | $62.27 | $0.00 |
| 2023 | 21752 | FD1 - FIRE DISTRICT #1 | $14.11 | $14.10 | $0.00 | $0.00 | $28.21 | $0.00 |
| 2023 | 21752 | EMS1 - FIRE DIST #1 EMS | $6.00 | $6.00 | $0.00 | $0.00 | $12.00 | $0.00 |
| 2023 | 21752 | FPLCA - DNR Landowner Contingency Assmt | $3.00 | $3.00 | $0.00 | $0.00 | $6.00 | $0.00 |
| 2023 | 21752 | JCCD - JC Conservation District | $2.53 | $2.53 | $0.00 | $0.00 | $5.06 | $0.00 |
| 2023 | 21752 | NWA - Noxious Weed Assessment | $2.15 | $2.15 | $0.00 | $0.00 | $4.30 | $0.00 |
| 2023 | 21752 | WAT - Clean Water District | $12.00 | $12.00 | $0.00 | $0.00 | $24.00 | $0.00 |
| 2023 | 21752 | TOTAL: | $156.42 | $156.28 | $0.00 | $0.00 | $312.70 | $0.00 |
|
| 2023 | 21752 | $156.42 | $156.28 | $0.00 | $0.00 | $312.70 | $0.00 |
Values
| (+) Improvement Homesite Value: | + | $0 | |
| (+) Improvement Non-Homesite Value: | + | $0 | |
| (+) Land Homesite Value: | + | $0 | |
| (+) Land Non-Homesite Value: | + | $33,143 | |
| (+) Curr Use (HS): | + | $0 | $0 |
| (+) Curr Use (NHS): | + | $0 | $0 |
| | | -------------------------- | |
| (=) Market Value: | = | $33,143 | |
| (–) Productivity Loss: | – | $0 | |
| | | -------------------------- | |
| (=) Subtotal: | = | $33,143 | |
| (+) Senior Appraised Value: | + | $0 | |
| (+) Non-Senior Appraised Value: | + | $33,143 | |
| | | -------------------------- | |
| (=) Total Appraised Value: | = | $33,143 | |
| (–) Senior Exemption Loss: | – | $0 | |
| (–) Exemption Loss: | – | $0 | |
| | | -------------------------- | |
| (=) Taxable Value: | = | $33,143 | |
Taxing Jurisdiction
| Owner: | CAPE GEORGE LAND CO LLC | | |
| % Ownership: | 100.0000000000% | | |
| Total Value: | $33,143 | | |
| Tax Area: | 0111 - 1-50F1E1H2L1 |
| CE | COUNTY CURRENT EXPENSE | 0.9034619479 | $33,143 | $33,143 | $29.94 | | |
| CNTYDD | DEVELOPMENTAL DISABILITIES | 0.0052121823 | $33,143 | $33,143 | $0.17 | | |
| CNTYVET | VETERANS RELIEF | 0.0052777810 | $33,143 | $33,143 | $0.17 | | |
| MENTAL | MENTAL HEALTH | 0.0052121823 | $33,143 | $33,143 | $0.17 | | |
| ROADS | COUNTY ROADS | 0.7415066410 | $33,143 | $33,143 | $24.58 | | |
| ROADSCU | COUNTY ROADS TO CUR EXP | 0.0000000000 | $33,143 | $33,143 | $0.00 | | |
| HOSP2CASH | HOSP DIST #2 GENERAL | 0.0536075306 | $33,143 | $33,143 | $1.78 | | |
| SCH50BOND | SCHOOL DIST #50 BOND 2016 | 0.5377451389 | $33,143 | $33,143 | $17.82 | | |
| SCH50CP | SCHOOL DIST #50 CAP PROJ | 0.4573475088 | $33,143 | $33,143 | $15.16 | | |
| SCH50MO | SCHOOL DIST #50 EP & O | 0.8262822886 | $33,143 | $33,143 | $27.39 | | |
| CONSERVE | CONSERVATION FUTURES | 0.0275621078 | $33,143 | $33,143 | $0.91 | | |
| EMS1 | FIRE DIST #1 EMS | 0.4679948282 | $33,143 | $33,143 | $15.51 | | |
| FD1 | FIRE DIST #1 GENERAL | 1.2171942929 | $33,143 | $33,143 | $40.34 | | |
| LIB1 | LIBRARY DIST #1 GENERAL | 0.2868827388 | $33,143 | $33,143 | $9.51 | | |
| PORTPT | PORT OF PT GENERAL | 0.1134941229 | $33,143 | $33,143 | $3.76 | | |
| PORTPTIDD | PORT OF PT IDD 2019 | 0.2577346692 | $33,143 | $33,143 | $8.54 | | |
| PUD1 | PUD #1 GENERAL | 0.0597888892 | $33,143 | $33,143 | $1.98 | | |
| STATE | STATE SCHOOL PART 1 | 1.4940692947 | $33,143 | $33,143 | $49.52 | | |
| STATE2 | STATE SCHOOL PART 2 | 0.8050170049 | $33,143 | $33,143 | $26.68 | | |
| | Total Tax Rate: | 8.2653911500 | | | | | |
| | | | | Taxes w/Current Exemptions: | $273.93 | | |
| | | | | Taxes w/o Exemptions: | $273.93 | | |
Improvement / Building
Sketch
| No sketches available for this property. |
Property Image
Land
| 1 | 1571A | | 1.3100 | 57063.60 | 0.00 | 0.00 | 1.00 | $33,143 | $0 |
Roll Value History
| 2026 | N/A | N/A | N/A | N/A | N/A |
| 2025 | $0 | $33,143 | $0 | $33,143 | $33,143 |
| 2024 | $0 | $33,143 | $0 | $33,143 | $33,143 |
| 2023 | $0 | $35,001 | $0 | $35,001 | $35,001 |
| 2022 | $0 | $33,334 | $0 | $33,334 | $33,334 |
Deed and Sales History
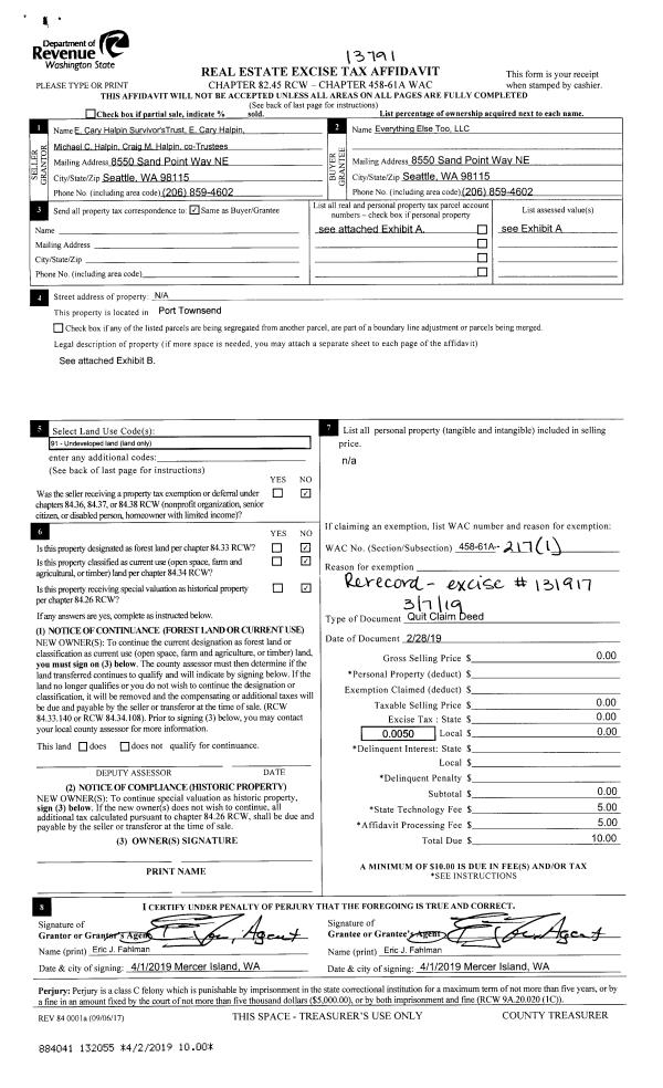
| 1 | 10/20/2020 | SWD | Statutory Warranty Deed | EVERYTHING ELSE TOO LLC | CAPE GEORGE LAND CO LLC | | | $350,000.00 | 135411 | |
|   | |
| 2 | 02/28/2019 | QCD | Quit Claim Deed | | | | | | 132256 | |
| 3 | 02/28/2019 | QCD | Quit Claim Deed | | | | | | 132055 | |
| 4 | 02/28/2019 | QCD | Quit Claim Deed | E CARY HALPIN SURVIVORS TRUST | EVERYTHING ELSE TOO LLC | | | | 131917 | |
| 5 | 02/28/2019 | QCD | Quit Claim Deed | | | | | | 132255 | |
| 6 | 02/28/2019 | QCD | Quit Claim Deed | | | | | | 132054 | |
| 7 | 02/28/2019 | QCD | Quit Claim Deed | CARY & MO HALPIN REVOCABLE LIVING TRUST | E CARY HALPIN SURVIVORS TRUST | | | | 131916 | |
| 8 | 02/28/2019 | QCD | Quit Claim Deed | | | | | | 132254 | |
| 9 | 02/28/2019 | QCD | Quit Claim Deed | | | | | | 132053 | |
| 10 | 02/28/2019 | QCD | Quit Claim Deed | E CARY HALPIN | CARY & MO HALPIN REVOCABLE LIVING TRUST | | | | 131915 | |
Payout Agreement
| No payout information available.. |