Property
Account |
| Property ID: | 32349 | Abbreviated Legal Description: | IRVINGTON ADDITION BLK 24 LOTS 1 THRU 4 INC VACATED STS ADJ QTA#20-2-00193-16 |
| Parcel # / Geo ID: | 963602401 | Agent Code: | |
| Type: | Real | | |
| Tax Area: | 0111 - 1-50F1E1H2L1 | Land Use Code | 91 |
| Open Space: | N | DFL | N |
| Historic Property: | N | Remodel Property: | N |
| Multi-Family Redevelopment: | N | | |
| Township: | 30N | Section: | 17 |
| Range: | 1W |
Location |
| Address: | | Mapsco: | 036/080 |
| Neighborhood: | S16&17 T30 R1W SALEM,EVERGRN,IRVING&SUNNYSIDE PKS,PIONEER AC | Map ID: | |
| Neighborhood CD: | 5340 |
Owner |
| Name: | CAPE GEORGE LAND CO LLC | Owner ID: | 103556 |
| Mailing Address: | PO BOX 4438 OLYMPIA, WA 98501-1779 | % Ownership: | 100.0000000000% |
| | | Exemptions: | |
Pay Tax Due
Select the appropriate checkbox next to the year to be paid. Multiple years may be selected.
*Convenience Fee not included
Taxes and Assessment Details
Property Tax Information as of
03/12/2026
Click on "Statement Details" to expand or collapse a tax statement.
* Please enter a valid date ** Please enter a valid date *
Statement Details |
| 2026 | 21618 | STATE - STATE LEVY (SCHOOL) | $19.20 | $19.19 | $0.00 | $0.00 | $0.00 | $38.39 |
| 2026 | 21618 | COUNTY - COUNTY LEVIES (CE, DD, VET, MH) | $7.70 | $7.66 | $0.00 | $0.00 | $0.00 | $15.36 |
| 2026 | 21618 | CONSERVE - CONSERVATION FUTURES | $0.23 | $0.23 | $0.00 | $0.00 | $0.00 | $0.46 |
| 2026 | 21618 | COROADS - COUNTY ROADS (ROADS, DIV TO CE) | $6.19 | $6.19 | $0.00 | $0.00 | $0.00 | $12.38 |
| 2026 | 21618 | PORTPT - PORT DISTRICT | $3.10 | $3.10 | $0.00 | $0.00 | $0.00 | $6.20 |
| 2026 | 21618 | PUD1 - PUD #1 | $0.50 | $0.50 | $0.00 | $0.00 | $0.00 | $1.00 |
| 2026 | 21618 | LIB1 - LIBRARY DIST #1 | $2.40 | $2.39 | $0.00 | $0.00 | $0.00 | $4.79 |
| 2026 | 21618 | HD2 - HOSP DIST #2 | $0.45 | $0.45 | $0.00 | $0.00 | $0.00 | $0.90 |
| 2026 | 21618 | SD50 - SCHOOL DIST #50 | $15.21 | $15.21 | $0.00 | $0.00 | $0.00 | $30.42 |
| 2026 | 21618 | FD1 - FIRE DISTRICT #1 | $10.16 | $10.16 | $0.00 | $0.00 | $0.00 | $20.32 |
| 2026 | 21618 | EMS1 - FIRE DIST #1 EMS | $3.91 | $3.90 | $0.00 | $0.00 | $0.00 | $7.81 |
| 2026 | 21618 | FPLCA - DNR Landowner Contingency Assmt | $3.00 | $3.00 | $0.00 | $0.00 | $0.00 | $6.00 |
| 2026 | 21618 | JCCD - JC Conservation District | $2.53 | $2.53 | $0.00 | $0.00 | $0.00 | $5.06 |
| 2026 | 21618 | NWA - Noxious Weed Assessment | $2.98 | $2.97 | $0.00 | $0.00 | $0.00 | $5.95 |
| 2026 | 21618 | WAT - Clean Water District | $13.00 | $13.00 | $0.00 | $0.00 | $0.00 | $26.00 |
| 2026 | 21618 | TOTAL: | $90.56 | $90.48 | $0.00 | $0.00 | $0.00 | $181.04 |
|
| 2026 | 21618 | $90.56 | $90.48 | $0.00 | $0.00 | $0.00 | $181.04 |
Statement Details |
| 2025 | 21680 | STATE - STATE LEVY (SCHOOL) | $20.03 | $20.01 | $0.00 | $0.00 | $40.04 | $0.00 |
| 2025 | 21680 | COUNTY - COUNTY LEVIES (CE, DD, VET, MH) | $7.89 | $7.86 | $0.00 | $0.00 | $15.75 | $0.00 |
| 2025 | 21680 | CONSERVE - CONSERVATION FUTURES | $0.24 | $0.23 | $0.00 | $0.00 | $0.47 | $0.00 |
| 2025 | 21680 | COROADS - COUNTY ROADS (ROADS, DIV TO CE) | $6.31 | $6.30 | $0.00 | $0.00 | $12.61 | $0.00 |
| 2025 | 21680 | PORTPT - PORT DISTRICT | $3.21 | $3.21 | $0.00 | $0.00 | $6.42 | $0.00 |
| 2025 | 21680 | PUD1 - PUD #1 | $0.52 | $0.51 | $0.00 | $0.00 | $1.03 | $0.00 |
| 2025 | 21680 | LIB1 - LIBRARY DIST #1 | $2.44 | $2.44 | $0.00 | $0.00 | $4.88 | $0.00 |
| 2025 | 21680 | HD2 - HOSP DIST #2 | $0.46 | $0.46 | $0.00 | $0.00 | $0.92 | $0.00 |
| 2025 | 21680 | SD50 - SCHOOL DIST #50 | $14.64 | $14.62 | $0.00 | $0.00 | $29.26 | $0.00 |
| 2025 | 21680 | FD1 - FIRE DISTRICT #1 | $10.39 | $10.39 | $0.00 | $0.00 | $20.78 | $0.00 |
| 2025 | 21680 | EMS1 - FIRE DIST #1 EMS | $4.00 | $3.99 | $0.00 | $0.00 | $7.99 | $0.00 |
| 2025 | 21680 | FPLCA - DNR Landowner Contingency Assmt | $3.00 | $3.00 | $0.00 | $0.00 | $6.00 | $0.00 |
| 2025 | 21680 | JCCD - JC Conservation District | $2.53 | $2.53 | $0.00 | $0.00 | $5.06 | $0.00 |
| 2025 | 21680 | NWA - Noxious Weed Assessment | $2.15 | $2.15 | $0.00 | $0.00 | $4.30 | $0.00 |
| 2025 | 21680 | WAT - Clean Water District | $13.00 | $13.00 | $0.00 | $0.00 | $26.00 | $0.00 |
| 2025 | 21680 | TOTAL: | $90.81 | $90.70 | $0.00 | $0.00 | $181.51 | $0.00 |
|
| 2025 | 21680 | $90.81 | $90.70 | $0.00 | $0.00 | $181.51 | $0.00 |
Statement Details |
| 2024 | 21725 | STATE - STATE LEVY (SCHOOL) | $39.55 | $39.53 | $0.00 | $0.00 | $79.08 | $0.00 |
| 2024 | 21725 | COUNTY - COUNTY LEVIES (CE, DD, VET, MH) | $16.93 | $16.90 | $0.00 | $0.00 | $33.83 | $0.00 |
| 2024 | 21725 | CONSERVE - CONSERVATION FUTURES | $0.51 | $0.50 | $0.00 | $0.00 | $1.01 | $0.00 |
| 2024 | 21725 | COROADS - COUNTY ROADS (ROADS, DIV TO CE) | $13.62 | $13.61 | $0.00 | $0.00 | $27.23 | $0.00 |
| 2024 | 21725 | PORTPT - PORT DISTRICT | $6.99 | $6.99 | $0.00 | $0.00 | $13.98 | $0.00 |
| 2024 | 21725 | PUD1 - PUD #1 | $1.11 | $1.11 | $0.00 | $0.00 | $2.22 | $0.00 |
| 2024 | 21725 | LIB1 - LIBRARY DIST #1 | $5.27 | $5.26 | $0.00 | $0.00 | $10.53 | $0.00 |
| 2024 | 21725 | HD2 - HOSP DIST #2 | $0.99 | $0.98 | $0.00 | $0.00 | $1.97 | $0.00 |
| 2024 | 21725 | SD50 - SCHOOL DIST #50 | $31.99 | $31.99 | $0.00 | $0.00 | $63.98 | $0.00 |
| 2024 | 21725 | FD1 - FIRE DISTRICT #1 | $22.37 | $22.37 | $0.00 | $0.00 | $44.74 | $0.00 |
| 2024 | 21725 | EMS1 - FIRE DIST #1 EMS | $8.55 | $8.54 | $0.00 | $0.00 | $17.09 | $0.00 |
| 2024 | 21725 | FPLCA - DNR Landowner Contingency Assmt | $3.00 | $3.00 | $0.00 | $0.00 | $6.00 | $0.00 |
| 2024 | 21725 | JCCD - JC Conservation District | $2.53 | $2.53 | $0.00 | $0.00 | $5.06 | $0.00 |
| 2024 | 21725 | NWA - Noxious Weed Assessment | $2.15 | $2.15 | $0.00 | $0.00 | $4.30 | $0.00 |
| 2024 | 21725 | WAT - Clean Water District | $12.50 | $12.50 | $0.00 | $0.00 | $25.00 | $0.00 |
| 2024 | 21725 | TOTAL: | $168.06 | $167.96 | $0.00 | $0.00 | $336.02 | $0.00 |
|
| 2024 | 21725 | $168.06 | $167.96 | $0.00 | $0.00 | $336.02 | $0.00 |
Statement Details |
| 2023 | 21762 | STATE - STATE LEVY (SCHOOL) | $38.31 | $38.31 | $0.00 | $0.00 | $76.62 | $0.00 |
| 2023 | 21762 | COUNTY - COUNTY LEVIES (CE, DD, VET, MH) | $16.74 | $16.70 | $0.00 | $0.00 | $33.44 | $0.00 |
| 2023 | 21762 | CONSERVE - CONSERVATION FUTURES | $0.50 | $0.50 | $0.00 | $0.00 | $1.00 | $0.00 |
| 2023 | 21762 | COROADS - COUNTY ROADS (ROADS, DIV TO CE) | $13.53 | $13.52 | $0.00 | $0.00 | $27.05 | $0.00 |
| 2023 | 21762 | PORTPT - PORT DISTRICT | $7.05 | $7.04 | $0.00 | $0.00 | $14.09 | $0.00 |
| 2023 | 21762 | PUD1 - PUD #1 | $1.11 | $1.11 | $0.00 | $0.00 | $2.22 | $0.00 |
| 2023 | 21762 | LIB1 - LIBRARY DIST #1 | $5.24 | $5.23 | $0.00 | $0.00 | $10.47 | $0.00 |
| 2023 | 21762 | HD2 - HOSP DIST #2 | $0.98 | $0.97 | $0.00 | $0.00 | $1.95 | $0.00 |
| 2023 | 21762 | SD50 - SCHOOL DIST #50 | $30.41 | $30.39 | $0.00 | $0.00 | $60.80 | $0.00 |
| 2023 | 21762 | FD1 - FIRE DISTRICT #1 | $13.78 | $13.77 | $0.00 | $0.00 | $27.55 | $0.00 |
| 2023 | 21762 | EMS1 - FIRE DIST #1 EMS | $5.86 | $5.86 | $0.00 | $0.00 | $11.72 | $0.00 |
| 2023 | 21762 | FPLCA - DNR Landowner Contingency Assmt | $3.00 | $3.00 | $0.00 | $0.00 | $6.00 | $0.00 |
| 2023 | 21762 | JCCD - JC Conservation District | $2.53 | $2.53 | $0.00 | $0.00 | $5.06 | $0.00 |
| 2023 | 21762 | NWA - Noxious Weed Assessment | $2.15 | $2.15 | $0.00 | $0.00 | $4.30 | $0.00 |
| 2023 | 21762 | WAT - Clean Water District | $12.00 | $12.00 | $0.00 | $0.00 | $24.00 | $0.00 |
| 2023 | 21762 | TOTAL: | $153.19 | $153.08 | $0.00 | $0.00 | $306.27 | $0.00 |
|
| 2023 | 21762 | $153.19 | $153.08 | $0.00 | $0.00 | $306.27 | $0.00 |
Values
| (+) Improvement Homesite Value: | + | $0 | |
| (+) Improvement Non-Homesite Value: | + | $0 | |
| (+) Land Homesite Value: | + | $0 | |
| (+) Land Non-Homesite Value: | + | $16,698 | |
| (+) Curr Use (HS): | + | $0 | $0 |
| (+) Curr Use (NHS): | + | $0 | $0 |
| | | -------------------------- | |
| (=) Market Value: | = | $16,698 | |
| (–) Productivity Loss: | – | $0 | |
| | | -------------------------- | |
| (=) Subtotal: | = | $16,698 | |
| (+) Senior Appraised Value: | + | $0 | |
| (+) Non-Senior Appraised Value: | + | $16,698 | |
| | | -------------------------- | |
| (=) Total Appraised Value: | = | $16,698 | |
| (–) Senior Exemption Loss: | – | $0 | |
| (–) Exemption Loss: | – | $0 | |
| | | -------------------------- | |
| (=) Taxable Value: | = | $16,698 | |
Taxing Jurisdiction
| Owner: | CAPE GEORGE LAND CO LLC | | |
| % Ownership: | 100.0000000000% | | |
| Total Value: | N/A | | |
| Tax Area: | 0111 - 1-50F1E1H2L1 |
| CE | COUNTY CURRENT EXPENSE | N/A | N/A | N/A | N/A | | |
| CNTYDD | DEVELOPMENTAL DISABILITIES | N/A | N/A | N/A | N/A | | |
| CNTYVET | VETERANS RELIEF | N/A | N/A | N/A | N/A | | |
| MENTAL | MENTAL HEALTH | N/A | N/A | N/A | N/A | | |
| ROADS | COUNTY ROADS | N/A | N/A | N/A | N/A | | |
| HOSP2CASH | HOSP DIST #2 GENERAL | N/A | N/A | N/A | N/A | | |
| SCH50BOND | SCHOOL DIST #50 BOND 2016 | N/A | N/A | N/A | N/A | | |
| SCH50CP | SCHOOL DIST #50 CAP PROJ | N/A | N/A | N/A | N/A | | |
| SCH50MO | SCHOOL DIST #50 EP & O | N/A | N/A | N/A | N/A | | |
| CONSERVE | CONSERVATION FUTURES | N/A | N/A | N/A | N/A | | |
| EMS1 | FIRE DIST #1 EMS | N/A | N/A | N/A | N/A | | |
| FD1 | FIRE DIST #1 GENERAL | N/A | N/A | N/A | N/A | | |
| LIB1 | LIBRARY DIST #1 GENERAL | N/A | N/A | N/A | N/A | | |
| PORTPT | PORT OF PT GENERAL | N/A | N/A | N/A | N/A | | |
| PORTPTIDD | PORT OF PT IDD 2019 | N/A | N/A | N/A | N/A | | |
| PUD1 | PUD #1 GENERAL | N/A | N/A | N/A | N/A | | |
| STATE | STATE SCHOOL PART 1 | N/A | N/A | N/A | N/A | | |
| STATE2 | STATE SCHOOL PART 2 | N/A | N/A | N/A | N/A | | |
| | Total Tax Rate: | N/A | | | | | |
| | | | | Taxes w/Current Exemptions: | N/A | | |
| | | | | Taxes w/o Exemptions: | N/A | | |
Improvement / Building
Sketch
| No sketches available for this property. |
Property Image
Land
| 1 | 1571A | | 0.6600 | 28749.60 | 0.00 | 0.00 | 1.00 | $16,698 | $0 |
Roll Value History
| 2026 | N/A | N/A | N/A | N/A | N/A |
| 2025 | $0 | $16,698 | $0 | $16,698 | $16,698 |
| 2024 | $0 | $16,698 | $0 | $16,698 | $16,698 |
| 2023 | $0 | $34,178 | $0 | $34,178 | $34,178 |
| 2022 | $0 | $32,550 | $0 | $32,550 | $32,550 |
Deed and Sales History
| 1 | 10/20/2020 | SWD | Statutory Warranty Deed | EVERYTHING ELSE TOO LLC | CAPE GEORGE LAND CO LLC | | | $350,000.00 | 135411 | |
|   | |
| 2 | 02/28/2019 | QCD | Quit Claim Deed | | | | | | 132256 | |
| 3 | 02/28/2019 | QCD | Quit Claim Deed | | | | | | 132055 | |
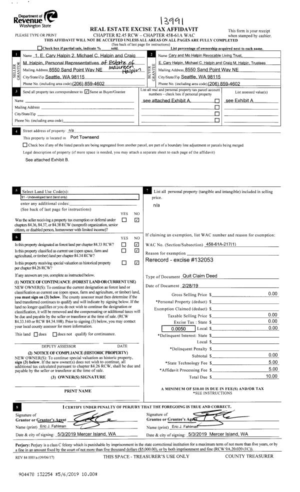
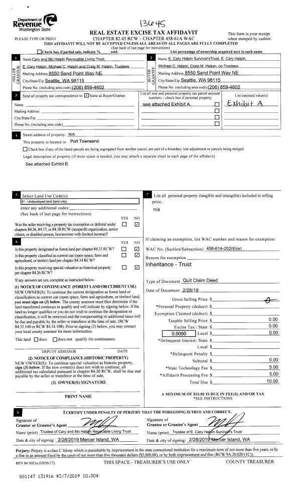
| 4 | 02/28/2019 | QCD | Quit Claim Deed | E CARY HALPIN SURVIVORS TRUST | EVERYTHING ELSE TOO LLC | | | | 131917 | |
| 5 | 02/28/2019 | QCD | Quit Claim Deed | | | | | | 132255 | |
| 6 | 02/28/2019 | QCD | Quit Claim Deed | | | | | | 132054 | |
| 7 | 02/28/2019 | QCD | Quit Claim Deed | CARY & MO HALPIN REVOCABLE LIVING TRUST | E CARY HALPIN SURVIVORS TRUST | | | | 131916 | |
| 8 | 02/28/2019 | QCD | Quit Claim Deed | | | | | | 132254 | |
| 9 | 02/28/2019 | QCD | Quit Claim Deed | | | | | | 132053 | |
| 10 | 02/28/2019 | QCD | Quit Claim Deed | E CARY HALPIN | CARY & MO HALPIN REVOCABLE LIVING TRUST | | | | 131915 | |
Payout Agreement
| No payout information available.. |