Property
Account |
| Property ID: | 32367 | Abbreviated Legal Description: | ISLAND VISTA LOT 18 |
| Parcel # / Geo ID: | 963700018 | Agent Code: | |
| Type: | Real | | |
| Tax Area: | 0110 - C-50F1E1H2 | Land Use Code | 11 |
| Open Space: | N | DFL | N |
| Historic Property: | N | Remodel Property: | N |
| Multi-Family Redevelopment: | N | | |
| Township: | 30N | Section: | 15 |
| Range: | 1W |
Location |
| Address: | 62 VISTA BLVD PORT TOWNSEND, WA 98368 | Mapsco: | 069/018 |
| Neighborhood: | GALLEON VIEW ESTATES, ISLAND VISTA, and TAX #14 15/30/1W | Map ID: | |
| Neighborhood CD: | 6230 |
Owner |
| Name: | JAMESON J & TIANA M HAWN | Owner ID: | 108268 |
| Mailing Address: | 62 VISTA BLVD PORT TOWNSEND, WA 98368-3066 | % Ownership: | 100.0000000000% |
| | | Exemptions: | |
Pay Tax Due
Select the appropriate checkbox next to the year to be paid. Multiple years may be selected.
*Convenience Fee not included
Taxes and Assessment Details
Property Tax Information as of
03/12/2026
Click on "Statement Details" to expand or collapse a tax statement.
* Please enter a valid date ** Please enter a valid date *
Statement Details |
| 2026 | 21636 | STATE - STATE LEVY (SCHOOL) | $653.50 | $653.50 | $0.00 | $0.00 | $0.00 | $1307.00 |
| 2026 | 21636 | COUNTY - COUNTY LEVIES (CE, DD, VET, MH) | $261.27 | $261.26 | $0.00 | $0.00 | $0.00 | $522.53 |
| 2026 | 21636 | CONSERVE - CONSERVATION FUTURES | $7.84 | $7.83 | $0.00 | $0.00 | $0.00 | $15.67 |
| 2026 | 21636 | CITYPT - CITY OF PT | $370.86 | $370.84 | $0.00 | $0.00 | $0.00 | $741.70 |
| 2026 | 21636 | PORTPT - PORT DISTRICT | $105.52 | $105.52 | $0.00 | $0.00 | $0.00 | $211.04 |
| 2026 | 21636 | PUD1 - PUD #1 | $17.00 | $16.99 | $0.00 | $0.00 | $0.00 | $33.99 |
| 2026 | 21636 | HD2 - HOSP DIST #2 | $15.24 | $15.24 | $0.00 | $0.00 | $0.00 | $30.48 |
| 2026 | 21636 | SD50 - SCHOOL DIST #50 | $517.72 | $517.71 | $0.00 | $0.00 | $0.00 | $1035.43 |
| 2026 | 21636 | FD1 - FIRE DISTRICT #1 | $345.98 | $345.98 | $0.00 | $0.00 | $0.00 | $691.96 |
| 2026 | 21636 | EMS1 - FIRE DIST #1 EMS | $133.03 | $133.02 | $0.00 | $0.00 | $0.00 | $266.05 |
| 2026 | 21636 | JCCD - JC Conservation District | $2.55 | $2.55 | $0.00 | $0.00 | $0.00 | $5.10 |
| 2026 | 21636 | NWA - Noxious Weed Assessment | $2.98 | $2.97 | $0.00 | $0.00 | $0.00 | $5.95 |
| 2026 | 21636 | TOTAL: | $2433.49 | $2433.41 | $0.00 | $0.00 | $0.00 | $4866.90 |
|
| 2026 | 21636 | $2433.49 | $2433.41 | $0.00 | $0.00 | $0.00 | $4866.90 |
Statement Details |
| 2025 | 21698 | STATE - STATE LEVY (SCHOOL) | $675.03 | $675.01 | $0.00 | $0.00 | $1350.04 | $0.00 |
| 2025 | 21698 | COUNTY - COUNTY LEVIES (CE, DD, VET, MH) | $265.44 | $265.44 | $0.00 | $0.00 | $530.88 | $0.00 |
| 2025 | 21698 | CONSERVE - CONSERVATION FUTURES | $7.96 | $7.96 | $0.00 | $0.00 | $15.92 | $0.00 |
| 2025 | 21698 | CITYPT - CITY OF PT | $382.80 | $382.80 | $0.00 | $0.00 | $765.60 | $0.00 |
| 2025 | 21698 | PORTPT - PORT DISTRICT | $108.32 | $108.31 | $0.00 | $0.00 | $216.63 | $0.00 |
| 2025 | 21698 | PUD1 - PUD #1 | $17.37 | $17.37 | $0.00 | $0.00 | $34.74 | $0.00 |
| 2025 | 21698 | HD2 - HOSP DIST #2 | $15.49 | $15.48 | $0.00 | $0.00 | $30.97 | $0.00 |
| 2025 | 21698 | SD50 - SCHOOL DIST #50 | $493.32 | $493.32 | $0.00 | $0.00 | $986.64 | $0.00 |
| 2025 | 21698 | FD1 - FIRE DISTRICT #1 | $350.29 | $350.28 | $0.00 | $0.00 | $700.57 | $0.00 |
| 2025 | 21698 | EMS1 - FIRE DIST #1 EMS | $134.73 | $134.73 | $0.00 | $0.00 | $269.46 | $0.00 |
| 2025 | 21698 | JCCD - JC Conservation District | $2.55 | $2.55 | $0.00 | $0.00 | $5.10 | $0.00 |
| 2025 | 21698 | NWA - Noxious Weed Assessment | $2.15 | $2.15 | $0.00 | $0.00 | $4.30 | $0.00 |
| 2025 | 21698 | TOTAL: | $2455.45 | $2455.40 | $0.00 | $0.00 | $4910.85 | $0.00 |
|
| 2025 | 21698 | $2455.45 | $2455.40 | $0.00 | $0.00 | $4910.85 | $0.00 |
Statement Details |
| 2024 | 21743 | STATE - STATE LEVY (SCHOOL) | $665.67 | $665.66 | $0.00 | $0.00 | $1331.33 | $0.00 |
| 2024 | 21743 | COUNTY - COUNTY LEVIES (CE, DD, VET, MH) | $284.85 | $284.85 | $0.00 | $0.00 | $569.70 | $0.00 |
| 2024 | 21743 | CONSERVE - CONSERVATION FUTURES | $8.54 | $8.54 | $0.00 | $0.00 | $17.08 | $0.00 |
| 2024 | 21743 | CITYPT - CITY OF PT | $407.01 | $406.99 | $0.00 | $0.00 | $814.00 | $0.00 |
| 2024 | 21743 | PORTPT - PORT DISTRICT | $117.65 | $117.65 | $0.00 | $0.00 | $235.30 | $0.00 |
| 2024 | 21743 | PUD1 - PUD #1 | $18.71 | $18.71 | $0.00 | $0.00 | $37.42 | $0.00 |
| 2024 | 21743 | HD2 - HOSP DIST #2 | $16.62 | $16.62 | $0.00 | $0.00 | $33.24 | $0.00 |
| 2024 | 21743 | SD50 - SCHOOL DIST #50 | $538.56 | $538.55 | $0.00 | $0.00 | $1077.11 | $0.00 |
| 2024 | 21743 | FD1 - FIRE DISTRICT #1 | $376.63 | $376.63 | $0.00 | $0.00 | $753.26 | $0.00 |
| 2024 | 21743 | EMS1 - FIRE DIST #1 EMS | $143.86 | $143.86 | $0.00 | $0.00 | $287.72 | $0.00 |
| 2024 | 21743 | JCCD - JC Conservation District | $2.55 | $2.55 | $0.00 | $0.00 | $5.10 | $0.00 |
| 2024 | 21743 | NWA - Noxious Weed Assessment | $2.15 | $2.15 | $0.00 | $0.00 | $4.30 | $0.00 |
| 2024 | 21743 | TOTAL: | $2582.80 | $2582.76 | $0.00 | $0.00 | $5165.56 | $0.00 |
|
| 2024 | 21743 | $2582.80 | $2582.76 | $0.00 | $0.00 | $5165.56 | $0.00 |
Statement Details |
| 2023 | 21780 | STATE - STATE LEVY (SCHOOL) | $728.88 | $728.87 | $0.00 | $0.00 | $1457.75 | $0.00 |
| 2023 | 21780 | COUNTY - COUNTY LEVIES (CE, DD, VET, MH) | $318.07 | $318.05 | $0.00 | $0.00 | $636.12 | $0.00 |
| 2023 | 21780 | CONSERVE - CONSERVATION FUTURES | $9.54 | $9.53 | $0.00 | $0.00 | $19.07 | $0.00 |
| 2023 | 21780 | CITYPT - CITY OF PT | $449.54 | $449.51 | $0.00 | $0.00 | $899.05 | $0.00 |
| 2023 | 21780 | PORTPT - PORT DISTRICT | $133.98 | $133.98 | $0.00 | $0.00 | $267.96 | $0.00 |
| 2023 | 21780 | PUD1 - PUD #1 | $21.09 | $21.08 | $0.00 | $0.00 | $42.17 | $0.00 |
| 2023 | 21780 | HD2 - HOSP DIST #2 | $18.56 | $18.56 | $0.00 | $0.00 | $37.12 | $0.00 |
| 2023 | 21780 | SD50 - SCHOOL DIST #50 | $578.39 | $578.36 | $0.00 | $0.00 | $1156.75 | $0.00 |
| 2023 | 21780 | FD1 - FIRE DISTRICT #1 | $262.02 | $262.01 | $0.00 | $0.00 | $524.03 | $0.00 |
| 2023 | 21780 | EMS1 - FIRE DIST #1 EMS | $111.46 | $111.45 | $0.00 | $0.00 | $222.91 | $0.00 |
| 2023 | 21780 | JCCD - JC Conservation District | $2.55 | $2.55 | $0.00 | $0.00 | $5.10 | $0.00 |
| 2023 | 21780 | NWA - Noxious Weed Assessment | $2.15 | $2.15 | $0.00 | $0.00 | $4.30 | $0.00 |
| 2023 | 21780 | TOTAL: | $2636.23 | $2636.10 | $0.00 | $0.00 | $5272.33 | $0.00 |
|
| 2023 | 21780 | $2636.23 | $2636.10 | $0.00 | $0.00 | $5272.33 | $0.00 |
Values
| (+) Improvement Homesite Value: | + | $0 | |
| (+) Improvement Non-Homesite Value: | + | $388,486 | |
| (+) Land Homesite Value: | + | $0 | |
| (+) Land Non-Homesite Value: | + | $180,000 | |
| (+) Curr Use (HS): | + | $0 | $0 |
| (+) Curr Use (NHS): | + | $0 | $0 |
| | | -------------------------- | |
| (=) Market Value: | = | $568,486 | |
| (–) Productivity Loss: | – | $0 | |
| | | -------------------------- | |
| (=) Subtotal: | = | $568,486 | |
| (+) Senior Appraised Value: | + | $0 | |
| (+) Non-Senior Appraised Value: | + | $568,486 | |
| | | -------------------------- | |
| (=) Total Appraised Value: | = | $568,486 | |
| (–) Senior Exemption Loss: | – | $0 | |
| (–) Exemption Loss: | – | $0 | |
| | | -------------------------- | |
| (=) Taxable Value: | = | $568,486 | |
Taxing Jurisdiction
| Owner: | JAMESON J & TIANA M HAWN | | |
| % Ownership: | 100.0000000000% | | |
| Total Value: | $568,486 | | |
| Tax Area: | 0110 - C-50F1E1H2 |
| CE | COUNTY CURRENT EXPENSE | 0.9034619479 | $568,486 | $568,486 | $513.61 | | |
| CNTYDD | DEVELOPMENTAL DISABILITIES | 0.0052121823 | $568,486 | $568,486 | $2.96 | | |
| CNTYVET | VETERANS RELIEF | 0.0052777810 | $568,486 | $568,486 | $3.00 | | |
| MENTAL | MENTAL HEALTH | 0.0052121823 | $568,486 | $568,486 | $2.96 | | |
| PTGEN | CITY OF PT GENERAL | 0.8551967795 | $568,486 | $568,486 | $486.17 | | |
| PTLLL | CITY OF PT - LIBRARY LID LIFT | 0.4010114288 | $568,486 | $568,486 | $227.97 | | |
| PTMVBOND | CITY OF PT MV BOND | 0.0484717981 | $568,486 | $568,486 | $27.56 | | |
| HOSP2CASH | HOSP DIST #2 GENERAL | 0.0536075306 | $568,486 | $568,486 | $30.48 | | |
| SCH50BOND | SCHOOL DIST #50 BOND 2016 | 0.5377451389 | $568,486 | $568,486 | $305.70 | | |
| SCH50CP | SCHOOL DIST #50 CAP PROJ | 0.4573475088 | $568,486 | $568,486 | $260.00 | | |
| SCH50MO | SCHOOL DIST #50 EP & O | 0.8262822886 | $568,486 | $568,486 | $469.73 | | |
| CONSERVE | CONSERVATION FUTURES | 0.0275621078 | $568,486 | $568,486 | $15.67 | | |
| EMS1 | FIRE DIST #1 EMS | 0.4679948282 | $568,486 | $568,486 | $266.05 | | |
| FD1 | FIRE DIST #1 GENERAL | 1.2171942929 | $568,486 | $568,486 | $691.96 | | |
| PORTPT | PORT OF PT GENERAL | 0.1134941229 | $568,486 | $568,486 | $64.52 | | |
| PORTPTIDD | PORT OF PT IDD 2019 | 0.2577346692 | $568,486 | $568,486 | $146.52 | | |
| PUD1 | PUD #1 GENERAL | 0.0597888892 | $568,486 | $568,486 | $33.99 | | |
| STATE | STATE SCHOOL PART 1 | 1.4940692947 | $568,486 | $568,486 | $849.36 | | |
| STATE2 | STATE SCHOOL PART 2 | 0.8050170049 | $568,486 | $568,486 | $457.64 | | |
| | Total Tax Rate: | 8.5416817766 | | | | | |
| | | | | Taxes w/Current Exemptions: | $4,855.85 | | |
| | | | | Taxes w/o Exemptions: | $4,855.85 | | |
Improvement / Building
| Improvement #1: | Residential Bldg | State Code: | 11 | 1578.0 sqft | Value: | $388,486 |
| Bathrooms (#): | 2 (FULL) | Bedrooms (#): | 3 | | Exterior Wall: | SI/ST | Fireplace: | SIN 1-GOOD | | Floor Construction: | FRAME | Foundation: | CONPR | | Heating/Cooling: | F/A | Inside Verify: | NO | | Roof Cover: | COMP |   |   |
|
| | Type | Description | Class CD | Sub Class CD | Year Built | Area |
| | MA | Main Area | 4 | 1S | 1990 | 1578.0 |
| | HWPOR | House Wood Porch | 4 | 1S | 1990 | 140.0 |
| | HDECK | House Deck | 4 | 1S | 1990 | 246.0 |
| | GATT | House Attached Garage | 4 | 1S | 1990 | 724.0 |
| | SOLAR | Solar Panel | 4 | 1S | 1990 | 0.0 |
| | SHED | Shed (Table Not Dep) | 4 | 1S | 1990 | 120.0 |
| | PATIO | House Patio | 4 | 1S | 1990 | 140.0 |
Sketch
Property Image
Land
| 1 | 6230-1255S | | 0.0000 | 0.00 | 0.00 | 0.00 | 1.00 | $180,000 | $0 |
Roll Value History
| 2026 | N/A | N/A | N/A | N/A | N/A |
| 2025 | $388,486 | $180,000 | $0 | $568,486 | $568,486 |
| 2024 | $392,977 | $170,000 | $0 | $562,977 | $562,977 |
| 2023 | $410,435 | $165,000 | $0 | $575,435 | $575,435 |
| 2022 | $459,221 | $160,000 | $0 | $619,221 | $619,221 |
Deed and Sales History
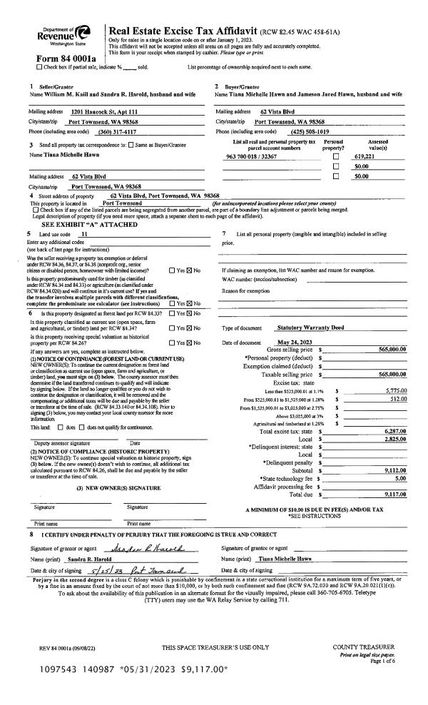
| 1 | 05/24/2023 | SWD | Statutory Warranty Deed | SANDRA R HAROLD | JAMESON J & TIANA M HAWN | | | $565,000.00 | 140987 | |
| 2 | 09/26/2013 | SWD | Statutory Warranty Deed | DAPHNE RUTH HUNT | SANDRA R HAROLD | | | $321,000.00 | 120073 | |
| 3 | 05/07/2009 | SWD | Statutory Warranty Deed | MCQUILLEN, WALTER/SARAH | HUNT, DAPHNE RUTH | | | $275,000.00 | 112908 | 0 |
Payout Agreement
| No payout information available.. |