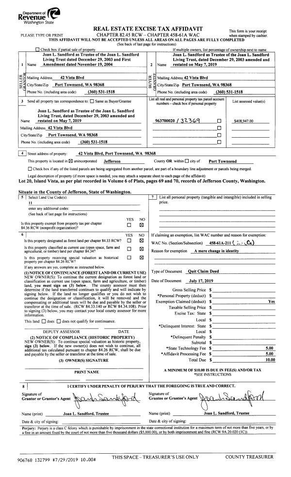
Property
Account |
| Property ID: | 32369 | Abbreviated Legal Description: | ISLAND VISTA LOT 20 |
| Parcel # / Geo ID: | 963700020 | Agent Code: | |
| Type: | Real | | |
| Tax Area: | 0110 - C-50F1E1H2 | Land Use Code | 11 |
| Open Space: | N | DFL | N |
| Historic Property: | N | Remodel Property: | N |
| Multi-Family Redevelopment: | N | | |
| Township: | 30N | Section: | 15 |
| Range: | 1W |
Location |
| Address: | 42 VISTA BLVD PORT TOWNSEND, WA 98368 | Mapsco: | 069/020 |
| Neighborhood: | GALLEON VIEW ESTATES, ISLAND VISTA, and TAX #14 15/30/1W | Map ID: | |
| Neighborhood CD: | 6230 |
Owner |
| Name: | JOAN L SANDFORD TRSTEE | Owner ID: | 26490 |
| Mailing Address: | J L SANDFORD LIVING TRUST 42 VISTA BLVD PORT TOWNSEND, WA 98368-3066 | % Ownership: | 100.0000000000% |
| | | Exemptions: | SNR/DSBL |
Pay Tax Due
There is currently No Amount Due on this property.
Taxes and Assessment Details
Property Tax Information as of
03/12/2026
Click on "Statement Details" to expand or collapse a tax statement.
* Please enter a valid date ** Please enter a valid date *
Statement Details |
| | TOTAL: | $0.00 | $0.00 | $0.00 | $0.00 | $0.00 | $0.00 |
|
| | $0.00 | $0.00 | $0.00 | $0.00 | $0.00 | $0.00 |
Values
| (+) Improvement Homesite Value: | + | $464,652 | |
| (+) Improvement Non-Homesite Value: | + | $0 | |
| (+) Land Homesite Value: | + | $180,000 | |
| (+) Land Non-Homesite Value: | + | $0 | |
| (+) Curr Use (HS): | + | $0 | $0 |
| (+) Curr Use (NHS): | + | $0 | $0 |
| | | -------------------------- | |
| (=) Market Value: | = | $644,652 | |
| (–) Productivity Loss: | – | $0 | |
| | | -------------------------- | |
| (=) Subtotal: | = | $644,652 | |
| (+) Senior Appraised Value: | + | $246,790 | |
| (+) Non-Senior Appraised Value: | + | $0 | |
| | | -------------------------- | |
| (=) Total Appraised Value: | = | $246,790 | |
| (–) Senior Exemption Loss: | – | $148,074 | |
| (–) Exemption Loss: | – | $0 | |
| | | -------------------------- | |
| (=) Taxable Value: | = | $98,716 | |
Taxing Jurisdiction
| Owner: | JOAN L SANDFORD TRSTEE | | |
| % Ownership: | 100.0000000000% | | |
| Total Value: | $644,652 | | |
| Tax Area: | 0110 - C-50F1E1H2 |
| CE | COUNTY CURRENT EXPENSE | 0.9034619479 | $644,652 | $98,716 | $89.19 | | |
| CNTYDD | DEVELOPMENTAL DISABILITIES | 0.0052121823 | $644,652 | $98,716 | $0.51 | | |
| CNTYVET | VETERANS RELIEF | 0.0052777810 | $644,652 | $98,716 | $0.52 | | |
| MENTAL | MENTAL HEALTH | 0.0052121823 | $644,652 | $98,716 | $0.51 | | |
| PTGEN | CITY OF PT GENERAL | 0.8551967795 | $644,652 | $98,716 | $84.42 | | |
| PTLLL | CITY OF PT - LIBRARY LID LIFT | 0.4010114288 | $644,652 | $98,716 | $39.59 | | |
| PTMVBOND | CITY OF PT MV BOND | 0.0000000000 | $644,652 | $0 | $0.00 | | |
| HOSP2CASH | HOSP DIST #2 GENERAL | 0.0536075306 | $644,652 | $98,716 | $5.29 | | |
| SCH50BOND | SCHOOL DIST #50 BOND 2016 | 0.0000000000 | $644,652 | $0 | $0.00 | | |
| SCH50CP | SCHOOL DIST #50 CAP PROJ | 0.0000000000 | $644,652 | $0 | $0.00 | | |
| SCH50MO | SCHOOL DIST #50 EP & O | 0.0000000000 | $644,652 | $0 | $0.00 | | |
| CONSERVE | CONSERVATION FUTURES | 0.0275621078 | $644,652 | $98,716 | $2.72 | | |
| EMS1 | FIRE DIST #1 EMS | 0.4679948282 | $644,652 | $98,716 | $46.20 | | |
| FD1 | FIRE DIST #1 GENERAL | 1.2171942929 | $644,652 | $98,716 | $120.16 | | |
| PORTPT | PORT OF PT GENERAL | 0.1134941229 | $644,652 | $98,716 | $11.20 | | |
| PORTPTIDD | PORT OF PT IDD 2019 | 0.2577346692 | $644,652 | $98,716 | $25.44 | | |
| PUD1 | PUD #1 GENERAL | 0.0597888892 | $644,652 | $98,716 | $5.90 | | |
| STATE | STATE SCHOOL PART 1 | 1.4940692947 | $644,652 | $98,716 | $147.49 | | |
| STATE2 | STATE SCHOOL PART 2 | 0.0000000000 | $644,652 | $0 | $0.00 | | |
| | Total Tax Rate: | 5.8668180373 | | | | | |
| | | | | Taxes w/Current Exemptions: | $579.14 | | |
| | | | | Taxes w/o Exemptions: | $5,506.40 | | |
Improvement / Building
| Improvement #1: | Residential Bldg | State Code: | 11 | 1634.0 sqft | Value: | $464,652 |
| Bathrooms (#): | 2 (FULL) | Bedrooms (#): | 3 | | Exterior Wall: | SI/ST | Fireplace: | SIN 1-AVG | | Floor Construction: | FRAME | Foundation: | CONPR | | Heating/Cooling: | HPUMP | Inside Verify: | YES-FIX | | Roof Cover: | COMP |   |   |
|
| | Type | Description | Class CD | Sub Class CD | Year Built | Area |
| | MA | Main Area | 4 | 1S | 1990 | 1634.0 |
| | HWPOR | House Wood Porch | 4 | 1S | 1990 | 194.0 |
| | HDECK | House Deck | 4 | 1S | 1990 | 735.0 |
| | GATT | House Attached Garage | 4 | 1S | 1990 | 484.0 |
| | ADDN-D | Addition (Table Depreciated) | 4 | 1S | 2007 | 425.0 |
| | GDET | Detached Garage | 4 | 1S | 1990 | 576.0 |
Sketch
Property Image
Land
| 1 | 6230-1255S | Avg-Good Wtr/Mtn View Sites | 0.0000 | 0.00 | 0.00 | 0.00 | 1.00 | $180,000 | $0 |
Roll Value History
| 2026 | N/A | N/A | N/A | N/A | N/A |
| 2025 | $464,652 | $180,000 | $0 | $644,652 | $98,716 |
| 2024 | $436,670 | $170,000 | $0 | $606,670 | $98,716 |
| 2023 | $436,670 | $165,000 | $0 | $601,670 | $98,716 |
| 2022 | $436,670 | $160,000 | $0 | $596,670 | $98,716 |
Deed and Sales History
| 1 | 07/17/2019 | QCD | Quit Claim Deed | JOAN L SANDFORD TRSTEE | | | | | 132799 | |
| 2 | 10/24/2005 | QCD | Quit Claim Deed | SANDFORD, JOAN L | SANFORD LIVING TRUST, JOAN L | 0 | 0 | $0.00 | 105149 | 0 |
| 3 | 07/20/2005 | QCD | Quit Claim Deed | SANDFORD TRSTEE, JOAN L | SANDFORD, JOAN L | | | $0.00 | 104207 | 0 |
| 4 | 05/13/2005 | QCD | Quit Claim Deed | SANDFORD, JOAN L | SANDFORD, JOAN/TRUSTEE | | | $0.00 | 103480 | 0 |
| 5 | 09/22/2004 | SWD | Statutory Warranty Deed | WHEELER, DONNA M | SANDFORD, JOAN L | 0 | 0 | $272,500.00 | 101600 | 0 |
| 6 | 06/02/1993 | SWD | Statutory Warranty Deed | HILL, ROBERT N/BARBARA MC | WHEELER, DONNA M | 0 | 0 | $140,000.00 | 71341 | 0 |
Payout Agreement
| No payout information available.. |