Property
Account |
| Property ID: | 32427 | Abbreviated Legal Description: | JOHNSTON'S ADDITION BLK 17 LOTS 1 & 2 |
| Parcel # / Geo ID: | 964201701 | Agent Code: | |
| Type: | Real | | |
| Tax Area: | 0110 - C-50F1E1H2 | Land Use Code | 11 |
| Open Space: | N | DFL | N |
| Historic Property: | N | Remodel Property: | N |
| Multi-Family Redevelopment: | N | | |
| Township: | 30N | Section: | 4 |
| Range: | 1W |
Location |
| Address: | 2235 HASTINGS AVE PORT TOWNSEND, WA 98368 | Mapsco: | 069/159 |
| Neighborhood: | S 1/2 S4-30-1W INC HAMILTON HEIGHTS & PHOENIX | Map ID: | |
| Neighborhood CD: | 6100 |
Owner |
| Name: | TIMOTHY E MINAKER | Owner ID: | 112356 |
| Mailing Address: | 2235 HASTINGS AVE PORT TOWNSEND, WA 98368-5957 | % Ownership: | 100.0000000000% |
| | | Exemptions: | |
Pay Tax Due
There is currently No Amount Due on this property.
Taxes and Assessment Details
Property Tax Information as of
03/13/2026
Click on "Statement Details" to expand or collapse a tax statement.
* Please enter a valid date ** Please enter a valid date *
Statement Details |
| 2026 | 21693 | STATE - STATE LEVY (SCHOOL) | $587.14 | $587.13 | $0.00 | $0.00 | $1174.27 | $0.00 |
| 2026 | 21693 | COUNTY - COUNTY LEVIES (CE, DD, VET, MH) | $234.74 | $234.73 | $0.00 | $0.00 | $469.47 | $0.00 |
| 2026 | 21693 | CONSERVE - CONSERVATION FUTURES | $7.04 | $7.04 | $0.00 | $0.00 | $14.08 | $0.00 |
| 2026 | 21693 | CITYPT - CITY OF PT | $333.19 | $333.19 | $0.00 | $0.00 | $666.38 | $0.00 |
| 2026 | 21693 | PORTPT - PORT DISTRICT | $94.81 | $94.80 | $0.00 | $0.00 | $189.61 | $0.00 |
| 2026 | 21693 | PUD1 - PUD #1 | $15.27 | $15.27 | $0.00 | $0.00 | $30.54 | $0.00 |
| 2026 | 21693 | HD2 - HOSP DIST #2 | $13.69 | $13.69 | $0.00 | $0.00 | $27.38 | $0.00 |
| 2026 | 21693 | SD50 - SCHOOL DIST #50 | $465.15 | $465.13 | $0.00 | $0.00 | $930.28 | $0.00 |
| 2026 | 21693 | FD1 - FIRE DISTRICT #1 | $310.85 | $310.84 | $0.00 | $0.00 | $621.69 | $0.00 |
| 2026 | 21693 | EMS1 - FIRE DIST #1 EMS | $119.52 | $119.51 | $0.00 | $0.00 | $239.03 | $0.00 |
| 2026 | 21693 | JCCD - JC Conservation District | $2.55 | $2.55 | $0.00 | $0.00 | $5.10 | $0.00 |
| 2026 | 21693 | NWA - Noxious Weed Assessment | $2.98 | $2.97 | $0.00 | $0.00 | $5.95 | $0.00 |
| 2026 | 21693 | TOTAL: | $2186.93 | $2186.85 | $0.00 | $0.00 | $4373.78 | $0.00 |
|
| 2026 | 21693 | $2186.93 | $2186.85 | $0.00 | $0.00 | $4373.78 | $0.00 |
Statement Details |
| 2025 | 21755 | STATE - STATE LEVY (SCHOOL) | $577.00 | $576.99 | $0.00 | $0.00 | $1153.99 | $0.00 |
| 2025 | 21755 | COUNTY - COUNTY LEVIES (CE, DD, VET, MH) | $226.91 | $226.89 | $0.00 | $0.00 | $453.80 | $0.00 |
| 2025 | 21755 | CONSERVE - CONSERVATION FUTURES | $6.81 | $6.80 | $0.00 | $0.00 | $13.61 | $0.00 |
| 2025 | 21755 | CITYPT - CITY OF PT | $327.23 | $327.20 | $0.00 | $0.00 | $654.43 | $0.00 |
| 2025 | 21755 | PORTPT - PORT DISTRICT | $92.59 | $92.58 | $0.00 | $0.00 | $185.17 | $0.00 |
| 2025 | 21755 | PUD1 - PUD #1 | $14.85 | $14.84 | $0.00 | $0.00 | $29.69 | $0.00 |
| 2025 | 21755 | HD2 - HOSP DIST #2 | $13.24 | $13.24 | $0.00 | $0.00 | $26.48 | $0.00 |
| 2025 | 21755 | SD50 - SCHOOL DIST #50 | $421.69 | $421.68 | $0.00 | $0.00 | $843.37 | $0.00 |
| 2025 | 21755 | FD1 - FIRE DISTRICT #1 | $299.42 | $299.41 | $0.00 | $0.00 | $598.83 | $0.00 |
| 2025 | 21755 | EMS1 - FIRE DIST #1 EMS | $115.17 | $115.16 | $0.00 | $0.00 | $230.33 | $0.00 |
| 2025 | 21755 | JCCD - JC Conservation District | $2.55 | $2.55 | $0.00 | $0.00 | $5.10 | $0.00 |
| 2025 | 21755 | NWA - Noxious Weed Assessment | $2.15 | $2.15 | $0.00 | $0.00 | $4.30 | $0.00 |
| 2025 | 21755 | TOTAL: | $2099.61 | $2099.49 | $0.00 | $0.00 | $4199.10 | $0.00 |
|
| 2025 | 21755 | $2099.61 | $2099.49 | $0.00 | $0.00 | $4199.10 | $0.00 |
Statement Details |
| 2024 | 21800 | STATE - STATE LEVY (SCHOOL) | $526.14 | $526.13 | $0.00 | $0.00 | $1052.27 | $0.00 |
| 2024 | 21800 | COUNTY - COUNTY LEVIES (CE, DD, VET, MH) | $225.14 | $225.13 | $0.00 | $0.00 | $450.27 | $0.00 |
| 2024 | 21800 | CONSERVE - CONSERVATION FUTURES | $6.75 | $6.75 | $0.00 | $0.00 | $13.50 | $0.00 |
| 2024 | 21800 | CITYPT - CITY OF PT | $321.69 | $321.68 | $0.00 | $0.00 | $643.37 | $0.00 |
| 2024 | 21800 | PORTPT - PORT DISTRICT | $93.00 | $92.99 | $0.00 | $0.00 | $185.99 | $0.00 |
| 2024 | 21800 | PUD1 - PUD #1 | $14.79 | $14.79 | $0.00 | $0.00 | $29.58 | $0.00 |
| 2024 | 21800 | HD2 - HOSP DIST #2 | $13.14 | $13.13 | $0.00 | $0.00 | $26.27 | $0.00 |
| 2024 | 21800 | SD50 - SCHOOL DIST #50 | $425.67 | $425.66 | $0.00 | $0.00 | $851.33 | $0.00 |
| 2024 | 21800 | FD1 - FIRE DISTRICT #1 | $297.69 | $297.68 | $0.00 | $0.00 | $595.37 | $0.00 |
| 2024 | 21800 | EMS1 - FIRE DIST #1 EMS | $113.71 | $113.70 | $0.00 | $0.00 | $227.41 | $0.00 |
| 2024 | 21800 | JCCD - JC Conservation District | $2.55 | $2.55 | $0.00 | $0.00 | $5.10 | $0.00 |
| 2024 | 21800 | NWA - Noxious Weed Assessment | $2.15 | $2.15 | $0.00 | $0.00 | $4.30 | $0.00 |
| 2024 | 21800 | TOTAL: | $2042.42 | $2042.34 | $0.00 | $0.00 | $4084.76 | $0.00 |
|
| 2024 | 21800 | $2042.42 | $2042.34 | $0.00 | $0.00 | $4084.76 | $0.00 |
Statement Details |
| 2023 | 21837 | STATE - STATE LEVY (SCHOOL) | $529.48 | $529.47 | $0.00 | $0.00 | $1058.95 | $0.00 |
| 2023 | 21837 | COUNTY - COUNTY LEVIES (CE, DD, VET, MH) | $231.05 | $231.04 | $0.00 | $0.00 | $462.09 | $0.00 |
| 2023 | 21837 | CONSERVE - CONSERVATION FUTURES | $6.93 | $6.93 | $0.00 | $0.00 | $13.86 | $0.00 |
| 2023 | 21837 | CITYPT - CITY OF PT | $326.55 | $326.54 | $0.00 | $0.00 | $653.09 | $0.00 |
| 2023 | 21837 | PORTPT - PORT DISTRICT | $97.33 | $97.33 | $0.00 | $0.00 | $194.66 | $0.00 |
| 2023 | 21837 | PUD1 - PUD #1 | $15.32 | $15.31 | $0.00 | $0.00 | $30.63 | $0.00 |
| 2023 | 21837 | HD2 - HOSP DIST #2 | $13.49 | $13.48 | $0.00 | $0.00 | $26.97 | $0.00 |
| 2023 | 21837 | SD50 - SCHOOL DIST #50 | $420.16 | $420.14 | $0.00 | $0.00 | $840.30 | $0.00 |
| 2023 | 21837 | FD1 - FIRE DISTRICT #1 | $190.34 | $190.33 | $0.00 | $0.00 | $380.67 | $0.00 |
| 2023 | 21837 | EMS1 - FIRE DIST #1 EMS | $80.97 | $80.96 | $0.00 | $0.00 | $161.93 | $0.00 |
| 2023 | 21837 | JCCD - JC Conservation District | $2.55 | $2.55 | $0.00 | $0.00 | $5.10 | $0.00 |
| 2023 | 21837 | NWA - Noxious Weed Assessment | $2.15 | $2.15 | $0.00 | $0.00 | $4.30 | $0.00 |
| 2023 | 21837 | TOTAL: | $1916.32 | $1916.23 | $0.00 | $0.00 | $3832.55 | $0.00 |
|
| 2023 | 21837 | $1916.32 | $1916.23 | $0.00 | $0.00 | $3832.55 | $0.00 |
Values
| (+) Improvement Homesite Value: | + | $0 | |
| (+) Improvement Non-Homesite Value: | + | $396,756 | |
| (+) Land Homesite Value: | + | $0 | |
| (+) Land Non-Homesite Value: | + | $114,000 | |
| (+) Curr Use (HS): | + | $0 | $0 |
| (+) Curr Use (NHS): | + | $0 | $0 |
| | | -------------------------- | |
| (=) Market Value: | = | $510,756 | |
| (–) Productivity Loss: | – | $0 | |
| | | -------------------------- | |
| (=) Subtotal: | = | $510,756 | |
| (+) Senior Appraised Value: | + | $0 | |
| (+) Non-Senior Appraised Value: | + | $510,756 | |
| | | -------------------------- | |
| (=) Total Appraised Value: | = | $510,756 | |
| (–) Senior Exemption Loss: | – | $0 | |
| (–) Exemption Loss: | – | $0 | |
| | | -------------------------- | |
| (=) Taxable Value: | = | $510,756 | |
Taxing Jurisdiction
| Owner: | TIMOTHY E MINAKER | | |
| % Ownership: | 100.0000000000% | | |
| Total Value: | $510,756 | | |
| Tax Area: | 0110 - C-50F1E1H2 |
| CE | COUNTY CURRENT EXPENSE | 0.9034619479 | $510,756 | $510,756 | $461.45 | | |
| CNTYDD | DEVELOPMENTAL DISABILITIES | 0.0052121823 | $510,756 | $510,756 | $2.66 | | |
| CNTYVET | VETERANS RELIEF | 0.0052777810 | $510,756 | $510,756 | $2.70 | | |
| MENTAL | MENTAL HEALTH | 0.0052121823 | $510,756 | $510,756 | $2.66 | | |
| PTGEN | CITY OF PT GENERAL | 0.8551967795 | $510,756 | $510,756 | $436.80 | | |
| PTLLL | CITY OF PT - LIBRARY LID LIFT | 0.4010114288 | $510,756 | $510,756 | $204.82 | | |
| PTMVBOND | CITY OF PT MV BOND | 0.0484717981 | $510,756 | $510,756 | $24.76 | | |
| HOSP2CASH | HOSP DIST #2 GENERAL | 0.0536075306 | $510,756 | $510,756 | $27.38 | | |
| SCH50BOND | SCHOOL DIST #50 BOND 2016 | 0.5377451389 | $510,756 | $510,756 | $274.66 | | |
| SCH50CP | SCHOOL DIST #50 CAP PROJ | 0.4573475088 | $510,756 | $510,756 | $233.59 | | |
| SCH50MO | SCHOOL DIST #50 EP & O | 0.8262822886 | $510,756 | $510,756 | $422.03 | | |
| CONSERVE | CONSERVATION FUTURES | 0.0275621078 | $510,756 | $510,756 | $14.08 | | |
| EMS1 | FIRE DIST #1 EMS | 0.4679948282 | $510,756 | $510,756 | $239.03 | | |
| FD1 | FIRE DIST #1 GENERAL | 1.2171942929 | $510,756 | $510,756 | $621.69 | | |
| PORTPT | PORT OF PT GENERAL | 0.1134941229 | $510,756 | $510,756 | $57.97 | | |
| PORTPTIDD | PORT OF PT IDD 2019 | 0.2577346692 | $510,756 | $510,756 | $131.64 | | |
| PUD1 | PUD #1 GENERAL | 0.0597888892 | $510,756 | $510,756 | $30.54 | | |
| STATE | STATE SCHOOL PART 1 | 1.4940692947 | $510,756 | $510,756 | $763.10 | | |
| STATE2 | STATE SCHOOL PART 2 | 0.8050170049 | $510,756 | $510,756 | $411.17 | | |
| | Total Tax Rate: | 8.5416817766 | | | | | |
| | | | | Taxes w/Current Exemptions: | $4,362.73 | | |
| | | | | Taxes w/o Exemptions: | $4,362.73 | | |
Improvement / Building
| Improvement #1: | Residential Bldg | State Code: | 11 | 1462.0 sqft | Value: | $396,756 |
| Bathrooms (#): | 2 (FULL) | Bedrooms (#): | 3 | | Exterior Wall: | SI/ST | Fireplace: | PROPS-GOOD | | Fireplace: | SIN 1-GOOD | Floor Construction: | FRAME | | Foundation: | CONPR | Heating/Cooling: | HPUMP | | Roof Cover: | COMP |   |   |
|
| | Type | Description | Class CD | Sub Class CD | Year Built | Area |
| | MA | Main Area | 4- | 1S | 2001 | 1462.0 |
| | PATIO | House Patio | 4 | * | 2001 | 1055.3 |
| | HWPOR | House Wood Porch | 4 | * | 2001 | 126.0 |
| | GATT | House Attached Garage | 4 | 1S | 2001 | 552.0 |
| | CARPTF | Carport W/Floor | 4 | * | 2001 | 483.0 |
| | ASPHD | Asphalt Drive | 4 | * | 2001 | 2300.0 |
Sketch
Property Image
Land
| 1 | 6100-1176L | | 0.0000 | 0.00 | 0.00 | 0.00 | 2.00 | $114,000 | $0 |
Roll Value History
| 2026 | N/A | N/A | N/A | N/A | N/A |
| 2025 | $396,756 | $114,000 | $0 | $510,756 | $510,756 |
| 2024 | $365,722 | $115,500 | $0 | $481,222 | $481,222 |
| 2023 | $349,821 | $105,000 | $0 | $454,821 | $454,821 |
| 2022 | $349,821 | $100,000 | $0 | $449,821 | $449,821 |
Deed and Sales History
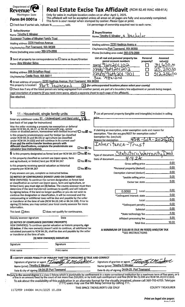
| 1 | 04/04/2025 | SWD | Statutory Warranty Deed | NORMA MINAKER TRUSTEE | TIMOTHY E MINAKER | | | | 144084 | |
| 2 | 12/26/2003 | QCD | Quit Claim Deed | MINAKER, RONALD E/NORMA K | MINAKER, RONALD & NORMA/TRUST | 0 | 0 | $0.00 | 99348 | 0 |
Payout Agreement
| No payout information available.. |