Property
Account |
| Property ID: | 32446 | Abbreviated Legal Description: | PARKVIEW ADD SHORT PLAT 2 LOT 8 SUBJ TO EASE/REST OF RECORD |
| Parcel # / Geo ID: | 964202018 | Agent Code: | |
| Type: | Real | | |
| Tax Area: | 0110 - C-50F1E1H2 | Land Use Code | 91 |
| Open Space: | N | DFL | N |
| Historic Property: | N | Remodel Property: | N |
| Multi-Family Redevelopment: | N | | |
| Township: | 30N | Section: | 4 |
| Range: | 1W |
Location |
| Address: | 313 EDDY CT PORT TOWNSEND, WA 98368 | Mapsco: | 164/041 |
| Neighborhood: | S 1/2 S4-30-1W INC HAMILTON HEIGHTS & PHOENIX | Map ID: | |
| Neighborhood CD: | 6100 |
Owner |
| Name: | GEORGE KELLER | Owner ID: | 112522 |
| Mailing Address: | 2405 PINE TREE DR SE PORT ORCHARD, WA 98366-2841 | % Ownership: | 100.0000000000% |
| | | Exemptions: | |
Pay Tax Due
Select the appropriate checkbox next to the year to be paid. Multiple years may be selected.
*Convenience Fee not included
Taxes and Assessment Details
Property Tax Information as of
03/11/2026
Click on "Statement Details" to expand or collapse a tax statement.
* Please enter a valid date ** Please enter a valid date *
Statement Details |
| 2026 | 21712 | STATE - STATE LEVY (SCHOOL) | $109.21 | $109.21 | $0.00 | $0.00 | $0.00 | $218.42 |
| 2026 | 21712 | COUNTY - COUNTY LEVIES (CE, DD, VET, MH) | $43.67 | $43.66 | $0.00 | $0.00 | $0.00 | $87.33 |
| 2026 | 21712 | CONSERVE - CONSERVATION FUTURES | $1.31 | $1.31 | $0.00 | $0.00 | $0.00 | $2.62 |
| 2026 | 21712 | CITYPT - CITY OF PT | $61.97 | $61.97 | $0.00 | $0.00 | $0.00 | $123.94 |
| 2026 | 21712 | PORTPT - PORT DISTRICT | $17.63 | $17.63 | $0.00 | $0.00 | $0.00 | $35.26 |
| 2026 | 21712 | PUD1 - PUD #1 | $2.84 | $2.84 | $0.00 | $0.00 | $0.00 | $5.68 |
| 2026 | 21712 | HD2 - HOSP DIST #2 | $2.55 | $2.54 | $0.00 | $0.00 | $0.00 | $5.09 |
| 2026 | 21712 | SD50 - SCHOOL DIST #50 | $86.53 | $86.51 | $0.00 | $0.00 | $0.00 | $173.04 |
| 2026 | 21712 | FD1 - FIRE DISTRICT #1 | $57.82 | $57.81 | $0.00 | $0.00 | $0.00 | $115.63 |
| 2026 | 21712 | EMS1 - FIRE DIST #1 EMS | $22.23 | $22.23 | $0.00 | $0.00 | $0.00 | $44.46 |
| 2026 | 21712 | JCCD - JC Conservation District | $2.53 | $2.53 | $0.00 | $0.00 | $0.00 | $5.06 |
| 2026 | 21712 | NWA - Noxious Weed Assessment | $2.98 | $2.97 | $0.00 | $0.00 | $0.00 | $5.95 |
| 2026 | 21712 | WAT - Clean Water District | $13.00 | $13.00 | $0.00 | $0.00 | $0.00 | $26.00 |
| 2026 | 21712 | TOTAL: | $424.27 | $424.21 | $0.00 | $0.00 | $0.00 | $848.48 |
|
| 2026 | 21712 | $424.27 | $424.21 | $0.00 | $0.00 | $0.00 | $848.48 |
Statement Details |
| 2025 | 21774 | STATE - STATE LEVY (SCHOOL) | $75.54 | $75.53 | $0.00 | $0.00 | $151.07 | $0.00 |
| 2025 | 21774 | COUNTY - COUNTY LEVIES (CE, DD, VET, MH) | $29.71 | $29.71 | $0.00 | $0.00 | $59.42 | $0.00 |
| 2025 | 21774 | CONSERVE - CONSERVATION FUTURES | $0.89 | $0.89 | $0.00 | $0.00 | $1.78 | $0.00 |
| 2025 | 21774 | CITYPT - CITY OF PT | $42.84 | $42.84 | $0.00 | $0.00 | $85.68 | $0.00 |
| 2025 | 21774 | PORTPT - PORT DISTRICT | $12.13 | $12.12 | $0.00 | $0.00 | $24.25 | $0.00 |
| 2025 | 21774 | PUD1 - PUD #1 | $1.95 | $1.94 | $0.00 | $0.00 | $3.89 | $0.00 |
| 2025 | 21774 | HD2 - HOSP DIST #2 | $1.74 | $1.73 | $0.00 | $0.00 | $3.47 | $0.00 |
| 2025 | 21774 | SD50 - SCHOOL DIST #50 | $55.21 | $55.19 | $0.00 | $0.00 | $110.40 | $0.00 |
| 2025 | 21774 | FD1 - FIRE DISTRICT #1 | $39.20 | $39.20 | $0.00 | $0.00 | $78.40 | $0.00 |
| 2025 | 21774 | EMS1 - FIRE DIST #1 EMS | $15.08 | $15.07 | $0.00 | $0.00 | $30.15 | $0.00 |
| 2025 | 21774 | JCCD - JC Conservation District | $2.53 | $2.53 | $0.00 | $0.00 | $5.06 | $0.00 |
| 2025 | 21774 | NWA - Noxious Weed Assessment | $2.15 | $2.15 | $0.00 | $0.00 | $4.30 | $0.00 |
| 2025 | 21774 | WAT - Clean Water District | $13.00 | $13.00 | $0.00 | $0.00 | $26.00 | $0.00 |
| 2025 | 21774 | TOTAL: | $291.97 | $291.90 | $0.00 | $0.00 | $583.87 | $0.00 |
|
| 2025 | 21774 | $291.97 | $291.90 | $0.00 | $0.00 | $583.87 | $0.00 |
Statement Details |
| 2024 | 21819 | STATE - STATE LEVY (SCHOOL) | $69.42 | $69.40 | $0.00 | $0.00 | $138.82 | $0.00 |
| 2024 | 21819 | COUNTY - COUNTY LEVIES (CE, DD, VET, MH) | $29.71 | $29.70 | $0.00 | $0.00 | $59.41 | $0.00 |
| 2024 | 21819 | CONSERVE - CONSERVATION FUTURES | $0.89 | $0.89 | $0.00 | $0.00 | $1.78 | $0.00 |
| 2024 | 21819 | CITYPT - CITY OF PT | $42.44 | $42.44 | $0.00 | $0.00 | $84.88 | $0.00 |
| 2024 | 21819 | PORTPT - PORT DISTRICT | $12.27 | $12.26 | $0.00 | $0.00 | $24.53 | $0.00 |
| 2024 | 21819 | PUD1 - PUD #1 | $1.95 | $1.95 | $0.00 | $0.00 | $3.90 | $0.00 |
| 2024 | 21819 | HD2 - HOSP DIST #2 | $1.74 | $1.73 | $0.00 | $0.00 | $3.47 | $0.00 |
| 2024 | 21819 | SD50 - SCHOOL DIST #50 | $56.16 | $56.14 | $0.00 | $0.00 | $112.30 | $0.00 |
| 2024 | 21819 | FD1 - FIRE DISTRICT #1 | $39.27 | $39.27 | $0.00 | $0.00 | $78.54 | $0.00 |
| 2024 | 21819 | EMS1 - FIRE DIST #1 EMS | $15.00 | $15.00 | $0.00 | $0.00 | $30.00 | $0.00 |
| 2024 | 21819 | JCCD - JC Conservation District | $2.53 | $2.53 | $0.00 | $0.00 | $5.06 | $0.00 |
| 2024 | 21819 | NWA - Noxious Weed Assessment | $2.15 | $2.15 | $0.00 | $0.00 | $4.30 | $0.00 |
| 2024 | 21819 | WAT - Clean Water District | $12.50 | $12.50 | $0.00 | $0.00 | $25.00 | $0.00 |
| 2024 | 21819 | TOTAL: | $286.03 | $285.96 | $0.00 | $0.00 | $571.99 | $0.00 |
|
| 2024 | 21819 | $286.03 | $285.96 | $0.00 | $0.00 | $571.99 | $0.00 |
Statement Details |
| 2023 | 21856 | STATE - STATE LEVY (SCHOOL) | $70.63 | $70.62 | $0.00 | $0.00 | $141.25 | $0.00 |
| 2023 | 21856 | COUNTY - COUNTY LEVIES (CE, DD, VET, MH) | $30.83 | $30.80 | $0.00 | $0.00 | $61.63 | $0.00 |
| 2023 | 21856 | CONSERVE - CONSERVATION FUTURES | $0.93 | $0.92 | $0.00 | $0.00 | $1.85 | $0.00 |
| 2023 | 21856 | CITYPT - CITY OF PT | $43.56 | $43.56 | $0.00 | $0.00 | $87.12 | $0.00 |
| 2023 | 21856 | PORTPT - PORT DISTRICT | $12.99 | $12.97 | $0.00 | $0.00 | $25.96 | $0.00 |
| 2023 | 21856 | PUD1 - PUD #1 | $2.05 | $2.04 | $0.00 | $0.00 | $4.09 | $0.00 |
| 2023 | 21856 | HD2 - HOSP DIST #2 | $1.80 | $1.79 | $0.00 | $0.00 | $3.59 | $0.00 |
| 2023 | 21856 | SD50 - SCHOOL DIST #50 | $56.05 | $56.04 | $0.00 | $0.00 | $112.09 | $0.00 |
| 2023 | 21856 | FD1 - FIRE DISTRICT #1 | $25.39 | $25.39 | $0.00 | $0.00 | $50.78 | $0.00 |
| 2023 | 21856 | EMS1 - FIRE DIST #1 EMS | $10.80 | $10.80 | $0.00 | $0.00 | $21.60 | $0.00 |
| 2023 | 21856 | JCCD - JC Conservation District | $2.53 | $2.53 | $0.00 | $0.00 | $5.06 | $0.00 |
| 2023 | 21856 | NWA - Noxious Weed Assessment | $2.15 | $2.15 | $0.00 | $0.00 | $4.30 | $0.00 |
| 2023 | 21856 | WAT - Clean Water District | $12.00 | $12.00 | $0.00 | $0.00 | $24.00 | $0.00 |
| 2023 | 21856 | TOTAL: | $271.71 | $271.61 | $0.00 | $0.00 | $543.32 | $0.00 |
|
| 2023 | 21856 | $271.71 | $271.61 | $0.00 | $0.00 | $543.32 | $0.00 |
Values
| (+) Improvement Homesite Value: | + | $0 | |
| (+) Improvement Non-Homesite Value: | + | $0 | |
| (+) Land Homesite Value: | + | $0 | |
| (+) Land Non-Homesite Value: | + | $95,000 | |
| (+) Curr Use (HS): | + | $0 | $0 |
| (+) Curr Use (NHS): | + | $0 | $0 |
| | | -------------------------- | |
| (=) Market Value: | = | $95,000 | |
| (–) Productivity Loss: | – | $0 | |
| | | -------------------------- | |
| (=) Subtotal: | = | $95,000 | |
| (+) Senior Appraised Value: | + | $0 | |
| (+) Non-Senior Appraised Value: | + | $95,000 | |
| | | -------------------------- | |
| (=) Total Appraised Value: | = | $95,000 | |
| (–) Senior Exemption Loss: | – | $0 | |
| (–) Exemption Loss: | – | $0 | |
| | | -------------------------- | |
| (=) Taxable Value: | = | $95,000 | |
Taxing Jurisdiction
| Owner: | GEORGE KELLER | | |
| % Ownership: | 100.0000000000% | | |
| Total Value: | $95,000 | | |
| Tax Area: | 0110 - C-50F1E1H2 |
| CE | COUNTY CURRENT EXPENSE | 0.9034619479 | $95,000 | $95,000 | $85.83 | | |
| CNTYDD | DEVELOPMENTAL DISABILITIES | 0.0052121823 | $95,000 | $95,000 | $0.50 | | |
| CNTYVET | VETERANS RELIEF | 0.0052777810 | $95,000 | $95,000 | $0.50 | | |
| MENTAL | MENTAL HEALTH | 0.0052121823 | $95,000 | $95,000 | $0.50 | | |
| PTGEN | CITY OF PT GENERAL | 0.8551967795 | $95,000 | $95,000 | $81.24 | | |
| PTLLL | CITY OF PT - LIBRARY LID LIFT | 0.4010114288 | $95,000 | $95,000 | $38.10 | | |
| PTMVBOND | CITY OF PT MV BOND | 0.0484717981 | $95,000 | $95,000 | $4.60 | | |
| HOSP2CASH | HOSP DIST #2 GENERAL | 0.0536075306 | $95,000 | $95,000 | $5.09 | | |
| SCH50BOND | SCHOOL DIST #50 BOND 2016 | 0.5377451389 | $95,000 | $95,000 | $51.09 | | |
| SCH50CP | SCHOOL DIST #50 CAP PROJ | 0.4573475088 | $95,000 | $95,000 | $43.45 | | |
| SCH50MO | SCHOOL DIST #50 EP & O | 0.8262822886 | $95,000 | $95,000 | $78.50 | | |
| CONSERVE | CONSERVATION FUTURES | 0.0275621078 | $95,000 | $95,000 | $2.62 | | |
| EMS1 | FIRE DIST #1 EMS | 0.4679948282 | $95,000 | $95,000 | $44.46 | | |
| FD1 | FIRE DIST #1 GENERAL | 1.2171942929 | $95,000 | $95,000 | $115.63 | | |
| PORTPT | PORT OF PT GENERAL | 0.1134941229 | $95,000 | $95,000 | $10.78 | | |
| PORTPTIDD | PORT OF PT IDD 2019 | 0.2577346692 | $95,000 | $95,000 | $24.48 | | |
| PUD1 | PUD #1 GENERAL | 0.0597888892 | $95,000 | $95,000 | $5.68 | | |
| STATE | STATE SCHOOL PART 1 | 1.4940692947 | $95,000 | $95,000 | $141.94 | | |
| STATE2 | STATE SCHOOL PART 2 | 0.8050170049 | $95,000 | $95,000 | $76.48 | | |
| | Total Tax Rate: | 8.5416817766 | | | | | |
| | | | | Taxes w/Current Exemptions: | $811.47 | | |
| | | | | Taxes w/o Exemptions: | $811.47 | | |
Improvement / Building
Sketch
| No sketches available for this property. |
Property Image
Land
| 1 | 6100-1175L | | 0.0000 | 0.00 | 0.00 | 0.00 | 1.00 | $95,000 | $0 |
Roll Value History
| 2026 | N/A | N/A | N/A | N/A | N/A |
| 2025 | $0 | $95,000 | $0 | $95,000 | $95,000 |
| 2024 | $0 | $63,000 | $0 | $63,000 | $63,000 |
| 2023 | $0 | $60,000 | $0 | $60,000 | $60,000 |
| 2022 | $0 | $60,000 | $0 | $60,000 | $60,000 |
Deed and Sales History
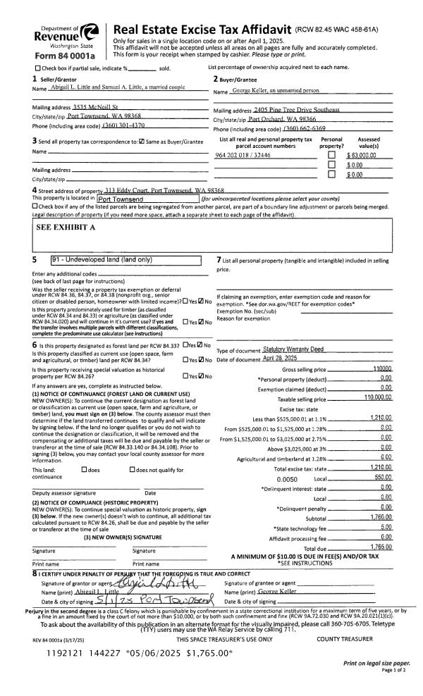
| 1 | 04/28/2025 | SWD | Statutory Warranty Deed | ABIGAIL L & SAMUEL A LITTLE | GEORGE KELLER | | | $110,000.00 | 144227 | |
| 2 | 10/22/2021 | SWD | Statutory Warranty Deed | TANA R KLEBANOW | ABIGAIL L & SAMUEL A LITTLE | | | $62,000.00 | 137994 | |
| 3 | 08/25/2021 | QCD | Quit Claim Deed | RICHARD S KLEBANOW | TANA R KLEBANOW | | | | 137541 | |
| 4 | 03/01/2017 | SWD | Statutory Warranty Deed | CHRISTOPHER D ROSE | RICHARD S KLEBANOW | | | $45,000.00 | 127248 | |
| 5 | 09/14/2009 | SWD | Statutory Warranty Deed | VERNON I GARRISON LLC, A | ROSE, CHRISTOPHER D | 0 | 0 | $39,000.00 | 113470 | 0 |
Payout Agreement
| No payout information available.. |