Property
Account |
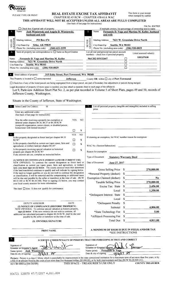
| Property ID: | 32447 | Abbreviated Legal Description: | PARKVIEW ADD SHORT PLAT 2 LOT 9 SUBJ TO EASE/REST OF RECORD |
| Parcel # / Geo ID: | 964202019 | Agent Code: | |
| Type: | Real | | |
| Tax Area: | 0110 - C-50F1E1H2 | Land Use Code | 11 |
| Open Space: | N | DFL | N |
| Historic Property: | N | Remodel Property: | N |
| Multi-Family Redevelopment: | N | | |
| Township: | 30N | Section: | 4 |
| Range: | 1W |
Location |
| Address: | 315 EDDY CT PORT TOWNSEND, WA 98368 | Mapsco: | 164/042 |
| Neighborhood: | S 1/2 S4-30-1W INC HAMILTON HEIGHTS & PHOENIX | Map ID: | |
| Neighborhood CD: | 6100 |
Owner |
| Name: | CHRISTOPHER MYERS | Owner ID: | 113250 |
| Mailing Address: | CARTER ERICKSON 70 XAVIER WAY PORT TOWNSEND, WA 98368-9608 | % Ownership: | 100.0000000000% |
| | | Exemptions: | |
Pay Tax Due
There is currently No Amount Due on this property.
Taxes and Assessment Details
Property Tax Information as of
03/11/2026
Click on "Statement Details" to expand or collapse a tax statement.
* Please enter a valid date ** Please enter a valid date *
Statement Details |
| | TOTAL: | $0.00 | $0.00 | $0.00 | $0.00 | $0.00 | $0.00 |
|
| | $0.00 | $0.00 | $0.00 | $0.00 | $0.00 | $0.00 |
Values
| (+) Improvement Homesite Value: | + | $0 | |
| (+) Improvement Non-Homesite Value: | + | $334,369 | |
| (+) Land Homesite Value: | + | $0 | |
| (+) Land Non-Homesite Value: | + | $95,000 | |
| (+) Curr Use (HS): | + | $0 | $0 |
| (+) Curr Use (NHS): | + | $0 | $0 |
| | | -------------------------- | |
| (=) Market Value: | = | $429,369 | |
| (–) Productivity Loss: | – | $0 | |
| | | -------------------------- | |
| (=) Subtotal: | = | $429,369 | |
| (+) Senior Appraised Value: | + | $0 | |
| (+) Non-Senior Appraised Value: | + | $429,369 | |
| | | -------------------------- | |
| (=) Total Appraised Value: | = | $429,369 | |
| (–) Senior Exemption Loss: | – | $0 | |
| (–) Exemption Loss: | – | $0 | |
| | | -------------------------- | |
| (=) Taxable Value: | = | $429,369 | |
Taxing Jurisdiction
| Owner: | CHRISTOPHER MYERS | | |
| % Ownership: | 100.0000000000% | | |
| Total Value: | $429,369 | | |
| Tax Area: | 0110 - C-50F1E1H2 |
| CE | COUNTY CURRENT EXPENSE | 0.9034619479 | $429,369 | $429,369 | $387.92 | | |
| CNTYDD | DEVELOPMENTAL DISABILITIES | 0.0052121823 | $429,369 | $429,369 | $2.24 | | |
| CNTYVET | VETERANS RELIEF | 0.0052777810 | $429,369 | $429,369 | $2.27 | | |
| MENTAL | MENTAL HEALTH | 0.0052121823 | $429,369 | $429,369 | $2.24 | | |
| PTGEN | CITY OF PT GENERAL | 0.8551967795 | $429,369 | $429,369 | $367.19 | | |
| PTLLL | CITY OF PT - LIBRARY LID LIFT | 0.4010114288 | $429,369 | $429,369 | $172.18 | | |
| PTMVBOND | CITY OF PT MV BOND | 0.0484717981 | $429,369 | $429,369 | $20.81 | | |
| HOSP2CASH | HOSP DIST #2 GENERAL | 0.0536075306 | $429,369 | $429,369 | $23.02 | | |
| SCH50BOND | SCHOOL DIST #50 BOND 2016 | 0.5377451389 | $429,369 | $429,369 | $230.89 | | |
| SCH50CP | SCHOOL DIST #50 CAP PROJ | 0.4573475088 | $429,369 | $429,369 | $196.37 | | |
| SCH50MO | SCHOOL DIST #50 EP & O | 0.8262822886 | $429,369 | $429,369 | $354.78 | | |
| CONSERVE | CONSERVATION FUTURES | 0.0275621078 | $429,369 | $429,369 | $11.83 | | |
| EMS1 | FIRE DIST #1 EMS | 0.4679948282 | $429,369 | $429,369 | $200.94 | | |
| FD1 | FIRE DIST #1 GENERAL | 1.2171942929 | $429,369 | $429,369 | $522.63 | | |
| PORTPT | PORT OF PT GENERAL | 0.1134941229 | $429,369 | $429,369 | $48.73 | | |
| PORTPTIDD | PORT OF PT IDD 2019 | 0.2577346692 | $429,369 | $429,369 | $110.66 | | |
| PUD1 | PUD #1 GENERAL | 0.0597888892 | $429,369 | $429,369 | $25.67 | | |
| STATE | STATE SCHOOL PART 1 | 1.4940692947 | $429,369 | $429,369 | $641.51 | | |
| STATE2 | STATE SCHOOL PART 2 | 0.8050170049 | $429,369 | $429,369 | $345.65 | | |
| | Total Tax Rate: | 8.5416817766 | | | | | |
| | | | | Taxes w/Current Exemptions: | $3,667.53 | | |
| | | | | Taxes w/o Exemptions: | $3,667.53 | | |
Improvement / Building
| Improvement #1: | Residential Bldg | State Code: | 11 | 504.0 sqft | Value: | $334,369 |
| Bathrooms (#): | 1 (FULL) | Bedrooms (#): | 1 | | Exterior Wall: | SI/ST | Floor Construction: | FRAME | | Foundation: | CONPR | Heating/Cooling: | ELBB | | Roof Cover: | METAL |   |   |
|
| | Type | Description | Class CD | Sub Class CD | Year Built | Area |
| | MA | Main Area | 6 | 15SF | 2010 | 504.0 |
| | HWPOR | House Wood Porch | 5 | * | 2010 | 128.0 |
| | HDECK | House Deck | 5 | * | 2010 | 530.0 |
| | SHED | Shed (Table Not Dep) | 6 | * | 2010 | 192.0 |
| | BSMTU | House basement unfinished | 6 | * | 2010 | 504.0 |
| | HLOFT | House Loft | 5 | * | 2010 | 96.0 |
| | CONCD | Concrete Drive | 5 | * | 2010 | 360.0 |
| | SHED | Shed (Table Not Dep) | 5 | * | 2010 | 48.0 |
Sketch
Property Image
Land
| 1 | 6100-1175L | Hamilton Heights/Phoenix/Parkview | 0.0000 | 0.00 | 0.00 | 0.00 | 1.00 | $95,000 | $0 |
Roll Value History
| 2026 | N/A | N/A | N/A | N/A | N/A |
| 2025 | $334,369 | $95,000 | $0 | $429,369 | $429,369 |
| 2024 | $311,947 | $94,500 | $0 | $406,447 | $406,447 |
| 2023 | $298,384 | $85,000 | $0 | $383,384 | $383,384 |
| 2022 | $298,384 | $80,000 | $0 | $378,384 | $378,384 |
Deed and Sales History
| 1 | 08/25/2025 | SWD | Statutory Warranty Deed | FERNANDO VEGA & MARTINA KOLLER | CHRISTOPHER MYERS | | | $445,000.00 | 144857 | |
| 2 | 06/27/2017 | SWD | Statutory Warranty Deed | JOSH WISNIEWSKI | FERNANDO VEGA & MARTINA KOLLER | | | $270,000.00 | 128070 | |
| 3 | 04/19/2012 | SWD | Statutory Warranty Deed | ERICKSON, ANDREW | WISNIEWSKI, JOSH/ANGELA | 0 | 0 | $197,500.00 | 117474 | 0 |
| 4 | 04/14/2009 | SWD | Statutory Warranty Deed | VERNON I GARRISON LLC, A | ERICKSON, ANDREW | | | $39,999.00 | 112756 | 0 |
Payout Agreement
| No payout information available.. |