Property
Account |
| Property ID: | 32455 | Abbreviated Legal Description: | JUNCTION CITY BLK 4 TAX 21 |
| Parcel # / Geo ID: | 964500402 | Agent Code: | |
| Type: | Real | | |
| Tax Area: | 0151 - 1-50F5E5H2L1 | Land Use Code | 11 |
| Open Space: | N | DFL | N |
| Historic Property: | N | Remodel Property: | N |
| Multi-Family Redevelopment: | N | | |
| Township: | 29N | Section: | 13 |
| Range: | 2W |
Location |
| Address: | 5383 OLD GARDINER RD PORT TOWNSEND, WA 98368 | Mapsco: | 037/006 |
| Neighborhood: | S 18 T29 R1W (GARDINER SIDE) & S9-16 T29 R2W & JUNCTION CITY | Map ID: | |
| Neighborhood CD: | 5430 |
Owner |
| Name: | JESSICA ELIZALDE BRODERS | Owner ID: | 106860 |
| Mailing Address: | 283 FERN RD PORT ANGELES, WA 98362-9270 | % Ownership: | 100.0000000000% |
| | | Exemptions: | |
Pay Tax Due
There is currently No Amount Due on this property.
Taxes and Assessment Details
Property Tax Information as of
03/11/2026
Click on "Statement Details" to expand or collapse a tax statement.
* Please enter a valid date ** Please enter a valid date *
Statement Details |
| | TOTAL: | $0.00 | $0.00 | $0.00 | $0.00 | $0.00 | $0.00 |
|
| | $0.00 | $0.00 | $0.00 | $0.00 | $0.00 | $0.00 |
Values
| (+) Improvement Homesite Value: | + | $0 | |
| (+) Improvement Non-Homesite Value: | + | $126,975 | |
| (+) Land Homesite Value: | + | $0 | |
| (+) Land Non-Homesite Value: | + | $223,462 | |
| (+) Curr Use (HS): | + | $0 | $0 |
| (+) Curr Use (NHS): | + | $0 | $0 |
| | | -------------------------- | |
| (=) Market Value: | = | $350,437 | |
| (–) Productivity Loss: | – | $0 | |
| | | -------------------------- | |
| (=) Subtotal: | = | $350,437 | |
| (+) Senior Appraised Value: | + | $0 | |
| (+) Non-Senior Appraised Value: | + | $350,437 | |
| | | -------------------------- | |
| (=) Total Appraised Value: | = | $350,437 | |
| (–) Senior Exemption Loss: | – | $0 | |
| (–) Exemption Loss: | – | $0 | |
| | | -------------------------- | |
| (=) Taxable Value: | = | $350,437 | |
Taxing Jurisdiction
| Owner: | JESSICA ELIZALDE BRODERS | | |
| % Ownership: | 100.0000000000% | | |
| Total Value: | $350,437 | | |
| Tax Area: | 0151 - 1-50F5E5H2L1 |
| CE | COUNTY CURRENT EXPENSE | 0.9034619479 | $350,437 | $350,437 | $316.61 | | |
| CNTYDD | DEVELOPMENTAL DISABILITIES | 0.0052121823 | $350,437 | $350,437 | $1.83 | | |
| CNTYVET | VETERANS RELIEF | 0.0052777810 | $350,437 | $350,437 | $1.85 | | |
| MENTAL | MENTAL HEALTH | 0.0052121823 | $350,437 | $350,437 | $1.83 | | |
| ROADS | COUNTY ROADS | 0.7415066410 | $350,437 | $350,437 | $259.85 | | |
| ROADSCU | COUNTY ROADS TO CUR EXP | 0.0000000000 | $350,437 | $350,437 | $0.00 | | |
| HOSP2CASH | HOSP DIST #2 GENERAL | 0.0536075306 | $350,437 | $350,437 | $18.79 | | |
| SCH50BOND | SCHOOL DIST #50 BOND 2016 | 0.5377451389 | $350,437 | $350,437 | $188.45 | | |
| SCH50CP | SCHOOL DIST #50 CAP PROJ | 0.4573475088 | $350,437 | $350,437 | $160.27 | | |
| SCH50MO | SCHOOL DIST #50 EP & O | 0.8262822886 | $350,437 | $350,437 | $289.56 | | |
| CONSERVE | CONSERVATION FUTURES | 0.0275621078 | $350,437 | $350,437 | $9.66 | | |
| EMS5 | FIRE DIST #5 EMS | 0.3811607070 | $350,437 | $350,437 | $133.57 | | |
| FD5 | FIRE DIST #5 GENERAL | 0.8460827285 | $350,437 | $350,437 | $296.50 | | |
| FD5BOND | FIRE DIST #5 BOND 2016 | 0.2222840608 | $350,437 | $350,437 | $77.90 | | |
| LIB1 | LIBRARY DIST #1 GENERAL | 0.2868827388 | $350,437 | $350,437 | $100.53 | | |
| PORTPT | PORT OF PT GENERAL | 0.1134941229 | $350,437 | $350,437 | $39.77 | | |
| PORTPTIDD | PORT OF PT IDD 2019 | 0.2577346692 | $350,437 | $350,437 | $90.32 | | |
| PUD1 | PUD #1 GENERAL | 0.0597888892 | $350,437 | $350,437 | $20.95 | | |
| STATE | STATE SCHOOL PART 1 | 1.4940692947 | $350,437 | $350,437 | $523.58 | | |
| STATE2 | STATE SCHOOL PART 2 | 0.8050170049 | $350,437 | $350,437 | $282.11 | | |
| | Total Tax Rate: | 8.0297295252 | | | | | |
| | | | | Taxes w/Current Exemptions: | $2,813.93 | | |
| | | | | Taxes w/o Exemptions: | $2,813.93 | | |
Improvement / Building
| Improvement #1: | Manufactured Home | State Code: | 11 | 1470.0 sqft | Value: | $126,975 |
| Bathrooms (#): | 2 (FULL) | Bedrooms (#): | 2 | | Exterior Wall: | SI/ST | Fireplace: | SIN 1-GOOD | | Foundation: | CONBL | Heating/Cooling: | F/A | | Inside Verify: | YES-FIX | Roof Cover: | COMP |
|
| | Type | Description | Class CD | Sub Class CD | Year Built | Area |
| | MA | Main Area | 3+ | MDBL | 2001 | 1470.0 |
| | MDECK | MH Deck | 3 | * | 2001 | 135.0 |
Sketch
Property Image
Land
| 1 | 5430-1535F | High Bank Waterfront on Discovery Bay | 0.0000 | 0.00 | 0.00 | 0.00 | 0.00 | $168,850 | $0 |
| 2 | 5430-1535F | High Bank Waterfront on Discovery Bay | 0.0000 | 0.00 | 0.00 | 0.00 | 0.00 | $54,612 | $0 |
Roll Value History
| 2026 | N/A | N/A | N/A | N/A | N/A |
| 2025 | $126,975 | $223,462 | $0 | $350,437 | $350,437 |
| 2024 | $115,432 | $203,147 | $0 | $318,579 | $318,579 |
| 2023 | $112,084 | $198,147 | $0 | $310,231 | $310,231 |
| 2022 | $112,084 | $193,147 | $0 | $305,231 | $305,231 |
Deed and Sales History
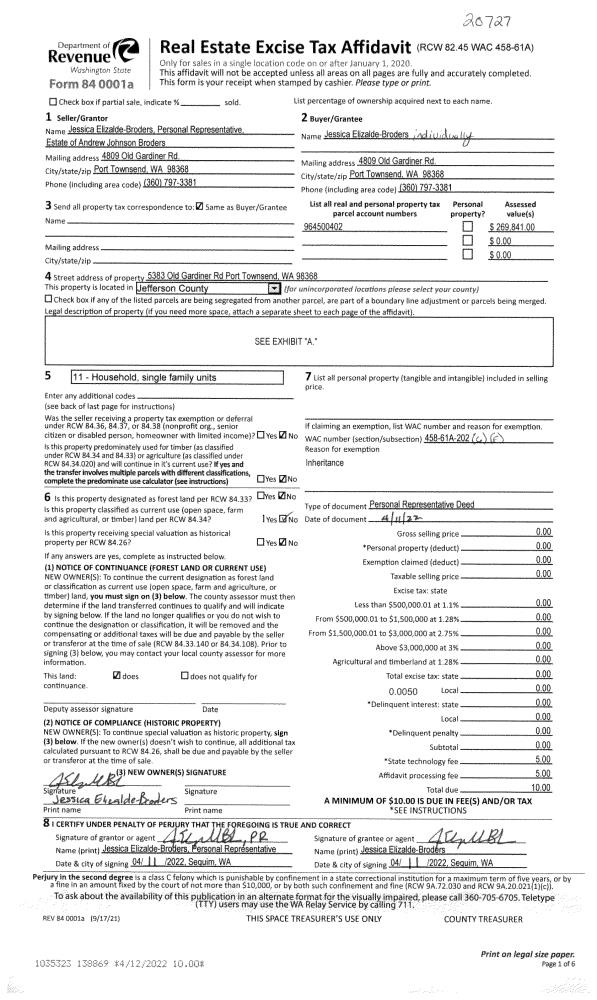
| 1 | 04/11/2022 | PRD | Personal Representatives Deed | ANDREW J BRODERS | JESSICA ELIZALDE BRODERS | | | | 138869 | |
| 2 | 03/29/2018 | PRD | Personal Representatives Deed | GEORGEANNA BRODERS | ANDREW J BRODERS | | | | 129867 | |
| 3 | 08/09/2018 | PRD | Personal Representatives Deed | | | | | | 130779 | |
| 4 | 03/05/2013 | QCD | Quit Claim Deed | RAMON F BRODERS | GEORGEANNA BRODERS | | | | 118872 | |
| 5 | 04/23/2004 | QCD | Quit Claim Deed | BRODERS, RICHARD A | BRODERS, RAMON F | 0 | 0 | $0.00 | 100063 | 0 |
Payout Agreement
| No payout information available.. |