Property
Account |
| Property ID: | 32478 | Abbreviated Legal Description: | JUNCTION CITY BLK 15 LOTS 7 & 8 |
| Parcel # / Geo ID: | 964501502 | Agent Code: | |
| Type: | Real | | |
| Tax Area: | 0151 - 1-50F5E5H2L1 | Land Use Code | 11 |
| Open Space: | N | DFL | N |
| Historic Property: | N | Remodel Property: | N |
| Multi-Family Redevelopment: | N | | |
| Township: | 29N | Section: | 13 |
| Range: | 2W |
Location |
| Address: | 74 COMMERCIAL AVE PORT TOWNSEND, WA 98368 | Mapsco: | 037/035 |
| Neighborhood: | S 18 T29 R1W (GARDINER SIDE) & S9-16 T29 R2W & JUNCTION CITY | Map ID: | |
| Neighborhood CD: | 5430 |
Owner |
| Name: | KIMBERLY MARTIN | Owner ID: | 111288 |
| Mailing Address: | GLEN WHITBECK 74 COMMERCIAL AVE PORT TOWNSEND, WA 98368-8735 | % Ownership: | 100.0000000000% |
| | | Exemptions: | |
Pay Tax Due
Select the appropriate checkbox next to the year to be paid. Multiple years may be selected.
*Convenience Fee not included
Taxes and Assessment Details
Property Tax Information as of
03/11/2026
Click on "Statement Details" to expand or collapse a tax statement.
* Please enter a valid date ** Please enter a valid date *
Statement Details |
| 2026 | 21744 | STATE - STATE LEVY (SCHOOL) | $239.88 | $239.87 | $0.00 | $0.00 | $0.00 | $479.75 |
| 2026 | 21744 | COUNTY - COUNTY LEVIES (CE, DD, VET, MH) | $95.92 | $95.89 | $0.00 | $0.00 | $0.00 | $191.81 |
| 2026 | 21744 | CONSERVE - CONSERVATION FUTURES | $2.88 | $2.87 | $0.00 | $0.00 | $0.00 | $5.75 |
| 2026 | 21744 | COROADS - COUNTY ROADS (ROADS, DIV TO CE) | $77.37 | $77.36 | $0.00 | $0.00 | $0.00 | $154.73 |
| 2026 | 21744 | PORTPT - PORT DISTRICT | $38.73 | $38.73 | $0.00 | $0.00 | $0.00 | $77.46 |
| 2026 | 21744 | PUD1 - PUD #1 | $6.24 | $6.24 | $0.00 | $0.00 | $0.00 | $12.48 |
| 2026 | 21744 | LIB1 - LIBRARY DIST #1 | $29.93 | $29.93 | $0.00 | $0.00 | $0.00 | $59.86 |
| 2026 | 21744 | HD2 - HOSP DIST #2 | $5.60 | $5.59 | $0.00 | $0.00 | $0.00 | $11.19 |
| 2026 | 21744 | SD50 - SCHOOL DIST #50 | $190.04 | $190.03 | $0.00 | $0.00 | $0.00 | $380.07 |
| 2026 | 21744 | FD5 - FIRE DISTRICT #5 | $111.47 | $111.46 | $0.00 | $0.00 | $0.00 | $222.93 |
| 2026 | 21744 | EMS5 - FIRE DIST #5 EMS | $39.77 | $39.77 | $0.00 | $0.00 | $0.00 | $79.54 |
| 2026 | 21744 | JCCD - JC Conservation District | $2.55 | $2.55 | $0.00 | $0.00 | $0.00 | $5.10 |
| 2026 | 21744 | NWA - Noxious Weed Assessment | $2.98 | $2.97 | $0.00 | $0.00 | $0.00 | $5.95 |
| 2026 | 21744 | OSS - On Site Septic | $23.10 | $23.10 | $0.00 | $0.00 | $0.00 | $46.20 |
| 2026 | 21744 | WAT - Clean Water District | $13.00 | $13.00 | $0.00 | $0.00 | $0.00 | $26.00 |
| 2026 | 21744 | TOTAL: | $879.46 | $879.36 | $0.00 | $0.00 | $0.00 | $1758.82 |
|
| 2026 | 21744 | $879.46 | $879.36 | $0.00 | $0.00 | $0.00 | $1758.82 |
Statement Details |
| 2025 | 21806 | STATE - STATE LEVY (SCHOOL) | $227.46 | $227.45 | $0.00 | $0.00 | $454.91 | $0.00 |
| 2025 | 21806 | COUNTY - COUNTY LEVIES (CE, DD, VET, MH) | $89.45 | $89.43 | $0.00 | $0.00 | $178.88 | $0.00 |
| 2025 | 21806 | CONSERVE - CONSERVATION FUTURES | $2.68 | $2.68 | $0.00 | $0.00 | $5.36 | $0.00 |
| 2025 | 21806 | COROADS - COUNTY ROADS (ROADS, DIV TO CE) | $71.67 | $71.65 | $0.00 | $0.00 | $143.32 | $0.00 |
| 2025 | 21806 | PORTPT - PORT DISTRICT | $36.51 | $36.49 | $0.00 | $0.00 | $73.00 | $0.00 |
| 2025 | 21806 | PUD1 - PUD #1 | $5.86 | $5.85 | $0.00 | $0.00 | $11.71 | $0.00 |
| 2025 | 21806 | LIB1 - LIBRARY DIST #1 | $27.73 | $27.72 | $0.00 | $0.00 | $55.45 | $0.00 |
| 2025 | 21806 | HD2 - HOSP DIST #2 | $5.22 | $5.22 | $0.00 | $0.00 | $10.44 | $0.00 |
| 2025 | 21806 | SD50 - SCHOOL DIST #50 | $166.23 | $166.23 | $0.00 | $0.00 | $332.46 | $0.00 |
| 2025 | 21806 | FD5 - FIRE DISTRICT #5 | $104.44 | $104.44 | $0.00 | $0.00 | $208.88 | $0.00 |
| 2025 | 21806 | EMS5 - FIRE DIST #5 EMS | $37.14 | $37.13 | $0.00 | $0.00 | $74.27 | $0.00 |
| 2025 | 21806 | JCCD - JC Conservation District | $2.55 | $2.55 | $0.00 | $0.00 | $5.10 | $0.00 |
| 2025 | 21806 | NWA - Noxious Weed Assessment | $2.15 | $2.15 | $0.00 | $0.00 | $4.30 | $0.00 |
| 2025 | 21806 | OSS - On Site Septic | $21.50 | $21.50 | $0.00 | $0.00 | $43.00 | $0.00 |
| 2025 | 21806 | WAT - Clean Water District | $13.00 | $13.00 | $0.00 | $0.00 | $26.00 | $0.00 |
| 2025 | 21806 | TOTAL: | $813.59 | $813.49 | $0.00 | $0.00 | $1627.08 | $0.00 |
|
| 2025 | 21806 | $813.59 | $813.49 | $0.00 | $0.00 | $1627.08 | $0.00 |
Statement Details |
| 2024 | 21851 | STATE - STATE LEVY (SCHOOL) | $146.98 | $146.97 | $0.00 | $0.00 | $293.95 | $0.00 |
| 2024 | 21851 | COUNTY - COUNTY LEVIES (CE, DD, VET, MH) | $62.90 | $62.88 | $0.00 | $0.00 | $125.78 | $0.00 |
| 2024 | 21851 | CONSERVE - CONSERVATION FUTURES | $1.89 | $1.88 | $0.00 | $0.00 | $3.77 | $0.00 |
| 2024 | 21851 | COROADS - COUNTY ROADS (ROADS, DIV TO CE) | $50.61 | $50.60 | $0.00 | $0.00 | $101.21 | $0.00 |
| 2024 | 21851 | PORTPT - PORT DISTRICT | $25.98 | $25.97 | $0.00 | $0.00 | $51.95 | $0.00 |
| 2024 | 21851 | PUD1 - PUD #1 | $4.13 | $4.13 | $0.00 | $0.00 | $8.26 | $0.00 |
| 2024 | 21851 | LIB1 - LIBRARY DIST #1 | $19.58 | $19.58 | $0.00 | $0.00 | $39.16 | $0.00 |
| 2024 | 21851 | HD2 - HOSP DIST #2 | $3.67 | $3.67 | $0.00 | $0.00 | $7.34 | $0.00 |
| 2024 | 21851 | SD50 - SCHOOL DIST #50 | $118.91 | $118.90 | $0.00 | $0.00 | $237.81 | $0.00 |
| 2024 | 21851 | FD5 - FIRE DISTRICT #5 | $73.48 | $73.48 | $0.00 | $0.00 | $146.96 | $0.00 |
| 2024 | 21851 | EMS5 - FIRE DIST #5 EMS | $25.22 | $25.21 | $0.00 | $0.00 | $50.43 | $0.00 |
| 2024 | 21851 | JCCD - JC Conservation District | $2.55 | $2.55 | $0.00 | $0.00 | $5.10 | $0.00 |
| 2024 | 21851 | NWA - Noxious Weed Assessment | $2.15 | $2.15 | $0.00 | $0.00 | $4.30 | $0.00 |
| 2024 | 21851 | OSS - On Site Septic | $21.00 | $21.00 | $0.00 | $0.00 | $42.00 | $0.00 |
| 2024 | 21851 | WAT - Clean Water District | $12.50 | $12.50 | $0.00 | $0.00 | $25.00 | $0.00 |
| 2024 | 21851 | TOTAL: | $571.55 | $571.47 | $0.00 | $0.00 | $1143.02 | $0.00 |
|
| 2024 | 21851 | $571.55 | $571.47 | $0.00 | $0.00 | $1143.02 | $0.00 |
Statement Details |
| 2023 | 21888 | STATE - STATE LEVY (SCHOOL) | $143.67 | $143.66 | $0.00 | $0.00 | $287.33 | $0.00 |
| 2023 | 21888 | COUNTY - COUNTY LEVIES (CE, DD, VET, MH) | $62.70 | $62.68 | $0.00 | $0.00 | $125.38 | $0.00 |
| 2023 | 21888 | CONSERVE - CONSERVATION FUTURES | $1.88 | $1.88 | $0.00 | $0.00 | $3.76 | $0.00 |
| 2023 | 21888 | COROADS - COUNTY ROADS (ROADS, DIV TO CE) | $50.73 | $50.71 | $0.00 | $0.00 | $101.44 | $0.00 |
| 2023 | 21888 | PORTPT - PORT DISTRICT | $26.41 | $26.41 | $0.00 | $0.00 | $52.82 | $0.00 |
| 2023 | 21888 | PUD1 - PUD #1 | $4.16 | $4.15 | $0.00 | $0.00 | $8.31 | $0.00 |
| 2023 | 21888 | LIB1 - LIBRARY DIST #1 | $19.63 | $19.62 | $0.00 | $0.00 | $39.25 | $0.00 |
| 2023 | 21888 | HD2 - HOSP DIST #2 | $3.66 | $3.66 | $0.00 | $0.00 | $7.32 | $0.00 |
| 2023 | 21888 | SD50 - SCHOOL DIST #50 | $114.01 | $113.99 | $0.00 | $0.00 | $228.00 | $0.00 |
| 2023 | 21888 | FD5 - FIRE DISTRICT #5 | $74.61 | $74.61 | $0.00 | $0.00 | $149.22 | $0.00 |
| 2023 | 21888 | EMS5 - FIRE DIST #5 EMS | $24.52 | $24.52 | $0.00 | $0.00 | $49.04 | $0.00 |
| 2023 | 21888 | JCCD - JC Conservation District | $2.55 | $2.55 | $0.00 | $0.00 | $5.10 | $0.00 |
| 2023 | 21888 | NWA - Noxious Weed Assessment | $2.15 | $2.15 | $0.00 | $0.00 | $4.30 | $0.00 |
| 2023 | 21888 | OSS - On Site Septic | $20.50 | $20.50 | $0.00 | $0.00 | $41.00 | $0.00 |
| 2023 | 21888 | WAT - Clean Water District | $12.00 | $12.00 | $0.00 | $0.00 | $24.00 | $0.00 |
| 2023 | 21888 | TOTAL: | $563.18 | $563.09 | $0.00 | $0.00 | $1126.27 | $0.00 |
|
| 2023 | 21888 | $563.18 | $563.09 | $0.00 | $0.00 | $1126.27 | $0.00 |
Values
| (+) Improvement Homesite Value: | + | $0 | |
| (+) Improvement Non-Homesite Value: | + | $126,172 | |
| (+) Land Homesite Value: | + | $0 | |
| (+) Land Non-Homesite Value: | + | $82,500 | |
| (+) Curr Use (HS): | + | $0 | $0 |
| (+) Curr Use (NHS): | + | $0 | $0 |
| | | -------------------------- | |
| (=) Market Value: | = | $208,672 | |
| (–) Productivity Loss: | – | $0 | |
| | | -------------------------- | |
| (=) Subtotal: | = | $208,672 | |
| (+) Senior Appraised Value: | + | $0 | |
| (+) Non-Senior Appraised Value: | + | $208,672 | |
| | | -------------------------- | |
| (=) Total Appraised Value: | = | $208,672 | |
| (–) Senior Exemption Loss: | – | $0 | |
| (–) Exemption Loss: | – | $0 | |
| | | -------------------------- | |
| (=) Taxable Value: | = | $208,672 | |
Taxing Jurisdiction
| Owner: | KIMBERLY MARTIN | | |
| % Ownership: | 100.0000000000% | | |
| Total Value: | N/A | | |
| Tax Area: | 0151 - 1-50F5E5H2L1 |
| CE | COUNTY CURRENT EXPENSE | N/A | N/A | N/A | N/A | | |
| CNTYDD | DEVELOPMENTAL DISABILITIES | N/A | N/A | N/A | N/A | | |
| CNTYVET | VETERANS RELIEF | N/A | N/A | N/A | N/A | | |
| MENTAL | MENTAL HEALTH | N/A | N/A | N/A | N/A | | |
| ROADS | COUNTY ROADS | N/A | N/A | N/A | N/A | | |
| HOSP2CASH | HOSP DIST #2 GENERAL | N/A | N/A | N/A | N/A | | |
| SCH50BOND | SCHOOL DIST #50 BOND 2016 | N/A | N/A | N/A | N/A | | |
| SCH50CP | SCHOOL DIST #50 CAP PROJ | N/A | N/A | N/A | N/A | | |
| SCH50MO | SCHOOL DIST #50 EP & O | N/A | N/A | N/A | N/A | | |
| CONSERVE | CONSERVATION FUTURES | N/A | N/A | N/A | N/A | | |
| EMS5 | FIRE DIST #5 EMS | N/A | N/A | N/A | N/A | | |
| FD5 | FIRE DIST #5 GENERAL | N/A | N/A | N/A | N/A | | |
| FD5BOND | FIRE DIST #5 BOND 2016 | N/A | N/A | N/A | N/A | | |
| LIB1 | LIBRARY DIST #1 GENERAL | N/A | N/A | N/A | N/A | | |
| PORTPT | PORT OF PT GENERAL | N/A | N/A | N/A | N/A | | |
| PORTPTIDD | PORT OF PT IDD 2019 | N/A | N/A | N/A | N/A | | |
| PUD1 | PUD #1 GENERAL | N/A | N/A | N/A | N/A | | |
| STATE | STATE SCHOOL PART 1 | N/A | N/A | N/A | N/A | | |
| STATE2 | STATE SCHOOL PART 2 | N/A | N/A | N/A | N/A | | |
| | Total Tax Rate: | N/A | | | | | |
| | | | | Taxes w/Current Exemptions: | N/A | | |
| | | | | Taxes w/o Exemptions: | N/A | | |
Improvement / Building
| Improvement #1: | Manufactured Home | State Code: | 11 | 1404.0 sqft | Value: | $126,172 |
| Bathrooms (#): | 2 (FULL) | Bedrooms (#): | 3 | | Exterior Wall: | PL/T1 | Foundation: | CONBL | | Heating/Cooling: | F/A | Inside Verify: | YES-FIX | | Roof Cover: | COMP |   |   |
|
| | Type | Description | Class CD | Sub Class CD | Year Built | Area |
| | MA | Main Area | 4 | MDBL | 2003 | 1404.0 |
| | MCPOR | MH Concrete Porch | 4 | * | 2003 | 30.0 |
| | SHED | Shed (Table Not Dep) | 2 | * | 2003 | 0.0 |
Sketch
Property Image
Land
| 1 | 5430-1375S | | 0.0000 | 0.00 | 0.00 | 0.00 | 1.00 | $82,500 | $0 |
Roll Value History
| 2026 | N/A | N/A | N/A | N/A | N/A |
| 2025 | $126,172 | $82,500 | $0 | $208,672 | $208,672 |
| 2024 | $114,702 | $75,000 | $0 | $189,702 | $189,702 |
| 2023 | $57,050 | $70,000 | $0 | $127,050 | $127,050 |
| 2022 | $57,050 | $65,000 | $0 | $122,050 | $122,050 |
Deed and Sales History
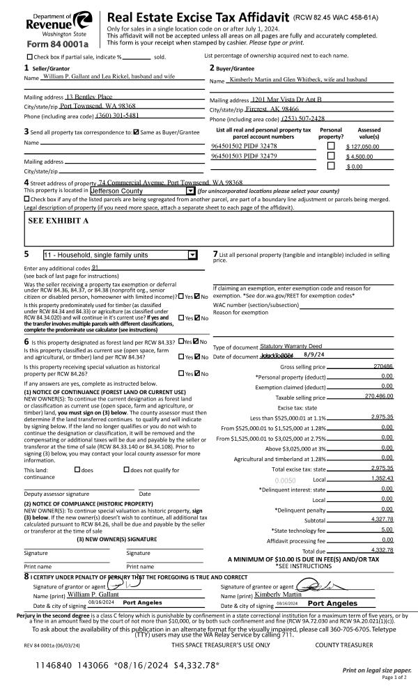
| 1 | 08/09/2024 | SWD | Statutory Warranty Deed | WILLIAM P GALLANT & LEA RICKEL | KIMBERLY MARTIN | | | $270,486.00 | 143066 | |
|   | |
| 2 | 02/05/2013 | SPWD | Special Warranty Deed | QUIMPER COMMUNITY FEDERAL | WILLIAM P GALLANT & LEA RICKEL | | | $74,700.00 | 118775 | |
|   | |
| 3 | 05/12/2011 | TRED | Trustee Deed | BISHOP WHITE MARSHALL & W | QUIMPER COMMUNITY FEDERAL CRED | | | $0.00 | 115989 | 0 |
| 4 | 01/28/2002 | SWD | Statutory Warranty Deed | BRODERS, RAMON F | KNUTZEN, GAILE B | 0 | 0 | $21,000.00 | 93957 | 0 |
|   | |
| 5 | 05/07/2001 | BLA | Boundary Line Adjustment | BRODERS, RAMON/RICHARD | BRODERS, RAMON/RICHARD | 0 | 0 | $0.00 | 92126 | 0 |
| 6 | 01/04/1999 | QCD | Quit Claim Deed | BRODERS, RICHARD A | BRODERS, RAMON F | 0 | 0 | $0.00 | 86023 | 0 |
Payout Agreement
| No payout information available.. |