Property
Account |
| Property ID: | 32479 | Abbreviated Legal Description: | JUNCTION CITY BLK 15 LOT 9 |
| Parcel # / Geo ID: | 964501503 | Agent Code: | |
| Type: | Real | | |
| Tax Area: | 0151 - 1-50F5E5H2L1 | Land Use Code | 91 |
| Open Space: | N | DFL | N |
| Historic Property: | N | Remodel Property: | N |
| Multi-Family Redevelopment: | N | | |
| Township: | 29N | Section: | 13 |
| Range: | 2W |
Location |
| Address: | | Mapsco: | 037/036 |
| Neighborhood: | S 18 T29 R1W (GARDINER SIDE) & S9-16 T29 R2W & JUNCTION CITY | Map ID: | |
| Neighborhood CD: | 5430 |
Owner |
| Name: | KIMBERLY MARTIN | Owner ID: | 111288 |
| Mailing Address: | GLEN WHITBECK 74 COMMERCIAL AVE PORT TOWNSEND, WA 98368-8735 | % Ownership: | 100.0000000000% |
| | | Exemptions: | |
Pay Tax Due
Select the appropriate checkbox next to the year to be paid. Multiple years may be selected.
*Convenience Fee not included
Taxes and Assessment Details
Property Tax Information as of
03/10/2026
Click on "Statement Details" to expand or collapse a tax statement.
* Please enter a valid date ** Please enter a valid date *
Statement Details |
| 2026 | 21745 | STATE - STATE LEVY (SCHOOL) | $6.33 | $6.32 | $0.00 | $0.00 | $0.00 | $12.65 |
| 2026 | 21745 | COUNTY - COUNTY LEVIES (CE, DD, VET, MH) | $2.55 | $2.51 | $0.00 | $0.00 | $0.00 | $5.06 |
| 2026 | 21745 | CONSERVE - CONSERVATION FUTURES | $0.08 | $0.07 | $0.00 | $0.00 | $0.00 | $0.15 |
| 2026 | 21745 | COROADS - COUNTY ROADS (ROADS, DIV TO CE) | $2.04 | $2.04 | $0.00 | $0.00 | $0.00 | $4.08 |
| 2026 | 21745 | PORTPT - PORT DISTRICT | $1.02 | $1.02 | $0.00 | $0.00 | $0.00 | $2.04 |
| 2026 | 21745 | PUD1 - PUD #1 | $0.17 | $0.16 | $0.00 | $0.00 | $0.00 | $0.33 |
| 2026 | 21745 | LIB1 - LIBRARY DIST #1 | $0.79 | $0.79 | $0.00 | $0.00 | $0.00 | $1.58 |
| 2026 | 21745 | HD2 - HOSP DIST #2 | $0.15 | $0.14 | $0.00 | $0.00 | $0.00 | $0.29 |
| 2026 | 21745 | SD50 - SCHOOL DIST #50 | $5.01 | $5.01 | $0.00 | $0.00 | $0.00 | $10.02 |
| 2026 | 21745 | FD5 - FIRE DISTRICT #5 | $2.94 | $2.93 | $0.00 | $0.00 | $0.00 | $5.87 |
| 2026 | 21745 | EMS5 - FIRE DIST #5 EMS | $1.05 | $1.05 | $0.00 | $0.00 | $0.00 | $2.10 |
| 2026 | 21745 | FP - DNR Forest Fire Protection Assmt | $8.50 | $8.50 | $0.00 | $0.00 | $0.00 | $17.00 |
| 2026 | 21745 | FPLCA - DNR Landowner Contingency Assmt | $3.00 | $3.00 | $0.00 | $0.00 | $0.00 | $6.00 |
| 2026 | 21745 | JCCD - JC Conservation District | $2.53 | $2.53 | $0.00 | $0.00 | $0.00 | $5.06 |
| 2026 | 21745 | NWA - Noxious Weed Assessment | $2.98 | $2.97 | $0.00 | $0.00 | $0.00 | $5.95 |
| 2026 | 21745 | WAT - Clean Water District | $13.00 | $13.00 | $0.00 | $0.00 | $0.00 | $26.00 |
| 2026 | 21745 | FP ADMIN - FP ADMIN | $0.50 | $0.00 | $0.00 | $0.00 | $0.00 | $0.50 |
| 2026 | 21745 | TOTAL: | $52.64 | $52.04 | $0.00 | $0.00 | $0.00 | $104.68 |
|
| 2026 | 21745 | $52.64 | $52.04 | $0.00 | $0.00 | $0.00 | $104.68 |
Statement Details |
| 2025 | 21807 | STATE - STATE LEVY (SCHOOL) | $6.00 | $5.99 | $0.00 | $0.00 | $11.99 | $0.00 |
| 2025 | 21807 | COUNTY - COUNTY LEVIES (CE, DD, VET, MH) | $2.38 | $2.34 | $0.00 | $0.00 | $4.72 | $0.00 |
| 2025 | 21807 | CONSERVE - CONSERVATION FUTURES | $0.07 | $0.07 | $0.00 | $0.00 | $0.14 | $0.00 |
| 2025 | 21807 | COROADS - COUNTY ROADS (ROADS, DIV TO CE) | $1.89 | $1.89 | $0.00 | $0.00 | $3.78 | $0.00 |
| 2025 | 21807 | PORTPT - PORT DISTRICT | $0.96 | $0.96 | $0.00 | $0.00 | $1.92 | $0.00 |
| 2025 | 21807 | PUD1 - PUD #1 | $0.16 | $0.15 | $0.00 | $0.00 | $0.31 | $0.00 |
| 2025 | 21807 | LIB1 - LIBRARY DIST #1 | $0.73 | $0.73 | $0.00 | $0.00 | $1.46 | $0.00 |
| 2025 | 21807 | HD2 - HOSP DIST #2 | $0.14 | $0.14 | $0.00 | $0.00 | $0.28 | $0.00 |
| 2025 | 21807 | SD50 - SCHOOL DIST #50 | $4.38 | $4.38 | $0.00 | $0.00 | $8.76 | $0.00 |
| 2025 | 21807 | FD5 - FIRE DISTRICT #5 | $2.76 | $2.75 | $0.00 | $0.00 | $5.51 | $0.00 |
| 2025 | 21807 | EMS5 - FIRE DIST #5 EMS | $0.98 | $0.98 | $0.00 | $0.00 | $1.96 | $0.00 |
| 2025 | 21807 | FP - DNR Forest Fire Protection Assmt | $8.50 | $8.50 | $0.00 | $0.00 | $17.00 | $0.00 |
| 2025 | 21807 | FPLCA - DNR Landowner Contingency Assmt | $3.00 | $3.00 | $0.00 | $0.00 | $6.00 | $0.00 |
| 2025 | 21807 | JCCD - JC Conservation District | $2.53 | $2.53 | $0.00 | $0.00 | $5.06 | $0.00 |
| 2025 | 21807 | NWA - Noxious Weed Assessment | $2.15 | $2.15 | $0.00 | $0.00 | $4.30 | $0.00 |
| 2025 | 21807 | WAT - Clean Water District | $13.00 | $13.00 | $0.00 | $0.00 | $26.00 | $0.00 |
| 2025 | 21807 | FP ADMIN - FP ADMIN | $0.50 | $0.00 | $0.00 | $0.00 | $0.50 | $0.00 |
| 2025 | 21807 | TOTAL: | $50.13 | $49.56 | $0.00 | $0.00 | $99.69 | $0.00 |
|
| 2025 | 21807 | $50.13 | $49.56 | $0.00 | $0.00 | $99.69 | $0.00 |
Statement Details |
| 2024 | 21852 | STATE - STATE LEVY (SCHOOL) | $5.21 | $5.20 | $0.00 | $0.00 | $10.41 | $0.00 |
| 2024 | 21852 | COUNTY - COUNTY LEVIES (CE, DD, VET, MH) | $2.25 | $2.22 | $0.00 | $0.00 | $4.47 | $0.00 |
| 2024 | 21852 | CONSERVE - CONSERVATION FUTURES | $0.07 | $0.06 | $0.00 | $0.00 | $0.13 | $0.00 |
| 2024 | 21852 | COROADS - COUNTY ROADS (ROADS, DIV TO CE) | $1.80 | $1.79 | $0.00 | $0.00 | $3.59 | $0.00 |
| 2024 | 21852 | PORTPT - PORT DISTRICT | $0.93 | $0.91 | $0.00 | $0.00 | $1.84 | $0.00 |
| 2024 | 21852 | PUD1 - PUD #1 | $0.15 | $0.14 | $0.00 | $0.00 | $0.29 | $0.00 |
| 2024 | 21852 | LIB1 - LIBRARY DIST #1 | $0.70 | $0.69 | $0.00 | $0.00 | $1.39 | $0.00 |
| 2024 | 21852 | HD2 - HOSP DIST #2 | $0.13 | $0.13 | $0.00 | $0.00 | $0.26 | $0.00 |
| 2024 | 21852 | SD50 - SCHOOL DIST #50 | $4.22 | $4.20 | $0.00 | $0.00 | $8.42 | $0.00 |
| 2024 | 21852 | FD5 - FIRE DISTRICT #5 | $2.61 | $2.60 | $0.00 | $0.00 | $5.21 | $0.00 |
| 2024 | 21852 | EMS5 - FIRE DIST #5 EMS | $0.90 | $0.89 | $0.00 | $0.00 | $1.79 | $0.00 |
| 2024 | 21852 | FP - DNR Forest Fire Protection Assmt | $8.50 | $8.50 | $0.00 | $0.00 | $17.00 | $0.00 |
| 2024 | 21852 | FPLCA - DNR Landowner Contingency Assmt | $3.00 | $3.00 | $0.00 | $0.00 | $6.00 | $0.00 |
| 2024 | 21852 | JCCD - JC Conservation District | $2.53 | $2.53 | $0.00 | $0.00 | $5.06 | $0.00 |
| 2024 | 21852 | NWA - Noxious Weed Assessment | $2.15 | $2.15 | $0.00 | $0.00 | $4.30 | $0.00 |
| 2024 | 21852 | WAT - Clean Water District | $12.50 | $12.50 | $0.00 | $0.00 | $25.00 | $0.00 |
| 2024 | 21852 | FP ADMIN - FP ADMIN | $0.50 | $0.00 | $0.00 | $0.00 | $0.50 | $0.00 |
| 2024 | 21852 | TOTAL: | $48.15 | $47.51 | $0.00 | $0.00 | $95.66 | $0.00 |
|
| 2024 | 21852 | $48.15 | $47.51 | $0.00 | $0.00 | $95.66 | $0.00 |
Statement Details |
| 2023 | 21889 | STATE - STATE LEVY (SCHOOL) | $5.30 | $5.29 | $0.00 | $0.00 | $10.59 | $0.00 |
| 2023 | 21889 | COUNTY - COUNTY LEVIES (CE, DD, VET, MH) | $2.33 | $2.30 | $0.00 | $0.00 | $4.63 | $0.00 |
| 2023 | 21889 | CONSERVE - CONSERVATION FUTURES | $0.07 | $0.07 | $0.00 | $0.00 | $0.14 | $0.00 |
| 2023 | 21889 | COROADS - COUNTY ROADS (ROADS, DIV TO CE) | $1.88 | $1.86 | $0.00 | $0.00 | $3.74 | $0.00 |
| 2023 | 21889 | PORTPT - PORT DISTRICT | $0.98 | $0.97 | $0.00 | $0.00 | $1.95 | $0.00 |
| 2023 | 21889 | PUD1 - PUD #1 | $0.16 | $0.15 | $0.00 | $0.00 | $0.31 | $0.00 |
| 2023 | 21889 | LIB1 - LIBRARY DIST #1 | $0.73 | $0.72 | $0.00 | $0.00 | $1.45 | $0.00 |
| 2023 | 21889 | HD2 - HOSP DIST #2 | $0.14 | $0.13 | $0.00 | $0.00 | $0.27 | $0.00 |
| 2023 | 21889 | SD50 - SCHOOL DIST #50 | $4.21 | $4.20 | $0.00 | $0.00 | $8.41 | $0.00 |
| 2023 | 21889 | FD5 - FIRE DISTRICT #5 | $2.76 | $2.75 | $0.00 | $0.00 | $5.51 | $0.00 |
| 2023 | 21889 | EMS5 - FIRE DIST #5 EMS | $0.91 | $0.90 | $0.00 | $0.00 | $1.81 | $0.00 |
| 2023 | 21889 | FP - DNR Forest Fire Protection Assmt | $8.50 | $8.50 | $0.00 | $0.00 | $17.00 | $0.00 |
| 2023 | 21889 | FPLCA - DNR Landowner Contingency Assmt | $3.00 | $3.00 | $0.00 | $0.00 | $6.00 | $0.00 |
| 2023 | 21889 | JCCD - JC Conservation District | $2.53 | $2.53 | $0.00 | $0.00 | $5.06 | $0.00 |
| 2023 | 21889 | NWA - Noxious Weed Assessment | $2.15 | $2.15 | $0.00 | $0.00 | $4.30 | $0.00 |
| 2023 | 21889 | WAT - Clean Water District | $12.00 | $12.00 | $0.00 | $0.00 | $24.00 | $0.00 |
| 2023 | 21889 | FP ADMIN - FP ADMIN | $0.50 | $0.00 | $0.00 | $0.00 | $0.50 | $0.00 |
| 2023 | 21889 | TOTAL: | $48.15 | $47.52 | $0.00 | $0.00 | $95.67 | $0.00 |
|
| 2023 | 21889 | $48.15 | $47.52 | $0.00 | $0.00 | $95.67 | $0.00 |
Values
| (+) Improvement Homesite Value: | + | $0 | |
| (+) Improvement Non-Homesite Value: | + | $0 | |
| (+) Land Homesite Value: | + | $0 | |
| (+) Land Non-Homesite Value: | + | $5,500 | |
| (+) Curr Use (HS): | + | $0 | $0 |
| (+) Curr Use (NHS): | + | $0 | $0 |
| | | -------------------------- | |
| (=) Market Value: | = | $5,500 | |
| (–) Productivity Loss: | – | $0 | |
| | | -------------------------- | |
| (=) Subtotal: | = | $5,500 | |
| (+) Senior Appraised Value: | + | $0 | |
| (+) Non-Senior Appraised Value: | + | $5,500 | |
| | | -------------------------- | |
| (=) Total Appraised Value: | = | $5,500 | |
| (–) Senior Exemption Loss: | – | $0 | |
| (–) Exemption Loss: | – | $0 | |
| | | -------------------------- | |
| (=) Taxable Value: | = | $5,500 | |
Taxing Jurisdiction
| Owner: | KIMBERLY MARTIN | | |
| % Ownership: | 100.0000000000% | | |
| Total Value: | $5,500 | | |
| Tax Area: | 0151 - 1-50F5E5H2L1 |
| CE | COUNTY CURRENT EXPENSE | 0.9034619479 | $5,500 | $5,500 | $4.97 | | |
| CNTYDD | DEVELOPMENTAL DISABILITIES | 0.0052121823 | $5,500 | $5,500 | $0.03 | | |
| CNTYVET | VETERANS RELIEF | 0.0052777810 | $5,500 | $5,500 | $0.03 | | |
| MENTAL | MENTAL HEALTH | 0.0052121823 | $5,500 | $5,500 | $0.03 | | |
| ROADS | COUNTY ROADS | 0.7415066410 | $5,500 | $5,500 | $4.08 | | |
| ROADSCU | COUNTY ROADS TO CUR EXP | 0.0000000000 | $5,500 | $5,500 | $0.00 | | |
| HOSP2CASH | HOSP DIST #2 GENERAL | 0.0536075306 | $5,500 | $5,500 | $0.29 | | |
| SCH50BOND | SCHOOL DIST #50 BOND 2016 | 0.5377451389 | $5,500 | $5,500 | $2.96 | | |
| SCH50CP | SCHOOL DIST #50 CAP PROJ | 0.4573475088 | $5,500 | $5,500 | $2.52 | | |
| SCH50MO | SCHOOL DIST #50 EP & O | 0.8262822886 | $5,500 | $5,500 | $4.54 | | |
| CONSERVE | CONSERVATION FUTURES | 0.0275621078 | $5,500 | $5,500 | $0.15 | | |
| EMS5 | FIRE DIST #5 EMS | 0.3811607070 | $5,500 | $5,500 | $2.10 | | |
| FD5 | FIRE DIST #5 GENERAL | 0.8460827285 | $5,500 | $5,500 | $4.65 | | |
| FD5BOND | FIRE DIST #5 BOND 2016 | 0.2222840608 | $5,500 | $5,500 | $1.22 | | |
| LIB1 | LIBRARY DIST #1 GENERAL | 0.2868827388 | $5,500 | $5,500 | $1.58 | | |
| PORTPT | PORT OF PT GENERAL | 0.1134941229 | $5,500 | $5,500 | $0.62 | | |
| PORTPTIDD | PORT OF PT IDD 2019 | 0.2577346692 | $5,500 | $5,500 | $1.42 | | |
| PUD1 | PUD #1 GENERAL | 0.0597888892 | $5,500 | $5,500 | $0.33 | | |
| STATE | STATE SCHOOL PART 1 | 1.4940692947 | $5,500 | $5,500 | $8.22 | | |
| STATE2 | STATE SCHOOL PART 2 | 0.8050170049 | $5,500 | $5,500 | $4.43 | | |
| | Total Tax Rate: | 8.0297295252 | | | | | |
| | | | | Taxes w/Current Exemptions: | $44.17 | | |
| | | | | Taxes w/o Exemptions: | $44.17 | | |
Improvement / Building
Sketch
| No sketches available for this property. |
Property Image
Land
| 1 | 5430-1165L | | 0.0000 | 0.00 | 0.00 | 0.00 | 1.00 | $5,500 | $0 |
Roll Value History
| 2026 | N/A | N/A | N/A | N/A | N/A |
| 2025 | $0 | $5,500 | $0 | $5,500 | $5,500 |
| 2024 | $0 | $5,000 | $0 | $5,000 | $5,000 |
| 2023 | $0 | $4,500 | $0 | $4,500 | $4,500 |
| 2022 | $0 | $4,500 | $0 | $4,500 | $4,500 |
Deed and Sales History
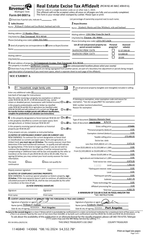
| 1 | 08/09/2024 | SWD | Statutory Warranty Deed | WILLIAM P GALLANT & LEA RICKEL | KIMBERLY MARTIN | | | $270,486.00 | 143066 | |
|   | |
| 2 | 02/05/2013 | SPWD | Special Warranty Deed | QUIMPER COMMUNITY FEDERAL | WILLIAM P GALLANT & LEA RICKEL | | | $74,700.00 | 118775 | |
|   | |
| 3 | 05/12/2011 | TRED | Trustee Deed | BISHOP WHITE MARSHALL & W | QUIMPER COMMUNITY FEDERAL CRED | | | $0.00 | 115989 | 0 |
| 4 | 01/28/2002 | SWD | Statutory Warranty Deed | BRODERS, RAMON F | KNUTZEN, GAILE B | 0 | 0 | $21,000.00 | 93957 | 0 |
|   | |
| 5 | 03/22/2000 | QCD | Quit Claim Deed | BRODERS, MARIE | BRODERS, RAMON | 0 | 0 | $0.00 | 89408 | 0 |
Payout Agreement
| No payout information available.. |