Property
Account |
| Property ID: | 32530 | Abbreviated Legal Description: | JUNCTION CITY BLK 98 TAX 5 (INC PTN VAC STS) |
| Parcel # / Geo ID: | 964509802 | Agent Code: | |
| Type: | Real | | |
| Tax Area: | 0151 - 1-50F5E5H2L1 | Land Use Code | 11 |
| Open Space: | N | DFL | N |
| Historic Property: | N | Remodel Property: | N |
| Multi-Family Redevelopment: | N | | |
| Township: | 29N | Section: | 13 |
| Range: | 2W |
Location |
| Address: | 6150 OLD GARDINER RD PORT TOWNSEND, WA 98368 | Mapsco: | 038/043 |
| Neighborhood: | S 18 T29 R1W (GARDINER SIDE) & S9-16 T29 R2W & JUNCTION CITY | Map ID: | |
| Neighborhood CD: | 5430 |
Owner |
| Name: | SIMON & CAROLYN ANSELL | Owner ID: | 99987 |
| Mailing Address: | 3328 WILWAY AVE NE ALBUQUERQUE, NM 87106-1941 | % Ownership: | 100.0000000000% |
| | | Exemptions: | |
Pay Tax Due
There is currently No Amount Due on this property.
Taxes and Assessment Details
Property Tax Information as of
03/11/2026
Click on "Statement Details" to expand or collapse a tax statement.
* Please enter a valid date ** Please enter a valid date *
Statement Details |
| | TOTAL: | $0.00 | $0.00 | $0.00 | $0.00 | $0.00 | $0.00 |
|
| | $0.00 | $0.00 | $0.00 | $0.00 | $0.00 | $0.00 |
Values
| (+) Improvement Homesite Value: | + | $0 | |
| (+) Improvement Non-Homesite Value: | + | $154,448 | |
| (+) Land Homesite Value: | + | $0 | |
| (+) Land Non-Homesite Value: | + | $110,000 | |
| (+) Curr Use (HS): | + | $0 | $0 |
| (+) Curr Use (NHS): | + | $0 | $0 |
| | | -------------------------- | |
| (=) Market Value: | = | $264,448 | |
| (–) Productivity Loss: | – | $0 | |
| | | -------------------------- | |
| (=) Subtotal: | = | $264,448 | |
| (+) Senior Appraised Value: | + | $0 | |
| (+) Non-Senior Appraised Value: | + | $264,448 | |
| | | -------------------------- | |
| (=) Total Appraised Value: | = | $264,448 | |
| (–) Senior Exemption Loss: | – | $0 | |
| (–) Exemption Loss: | – | $0 | |
| | | -------------------------- | |
| (=) Taxable Value: | = | $264,448 | |
Taxing Jurisdiction
| Owner: | SIMON & CAROLYN ANSELL | | |
| % Ownership: | 100.0000000000% | | |
| Total Value: | $264,448 | | |
| Tax Area: | 0151 - 1-50F5E5H2L1 |
| CE | COUNTY CURRENT EXPENSE | 0.9034619479 | $264,448 | $264,448 | $238.92 | | |
| CNTYDD | DEVELOPMENTAL DISABILITIES | 0.0052121823 | $264,448 | $264,448 | $1.38 | | |
| CNTYVET | VETERANS RELIEF | 0.0052777810 | $264,448 | $264,448 | $1.40 | | |
| MENTAL | MENTAL HEALTH | 0.0052121823 | $264,448 | $264,448 | $1.38 | | |
| ROADS | COUNTY ROADS | 0.7415066410 | $264,448 | $264,448 | $196.09 | | |
| ROADSCU | COUNTY ROADS TO CUR EXP | 0.0000000000 | $264,448 | $264,448 | $0.00 | | |
| HOSP2CASH | HOSP DIST #2 GENERAL | 0.0536075306 | $264,448 | $264,448 | $14.18 | | |
| SCH50BOND | SCHOOL DIST #50 BOND 2016 | 0.5377451389 | $264,448 | $264,448 | $142.21 | | |
| SCH50CP | SCHOOL DIST #50 CAP PROJ | 0.4573475088 | $264,448 | $264,448 | $120.94 | | |
| SCH50MO | SCHOOL DIST #50 EP & O | 0.8262822886 | $264,448 | $264,448 | $218.51 | | |
| CONSERVE | CONSERVATION FUTURES | 0.0275621078 | $264,448 | $264,448 | $7.29 | | |
| EMS5 | FIRE DIST #5 EMS | 0.3811607070 | $264,448 | $264,448 | $100.80 | | |
| FD5 | FIRE DIST #5 GENERAL | 0.8460827285 | $264,448 | $264,448 | $223.74 | | |
| FD5BOND | FIRE DIST #5 BOND 2016 | 0.2222840608 | $264,448 | $264,448 | $58.78 | | |
| LIB1 | LIBRARY DIST #1 GENERAL | 0.2868827388 | $264,448 | $264,448 | $75.87 | | |
| PORTPT | PORT OF PT GENERAL | 0.1134941229 | $264,448 | $264,448 | $30.01 | | |
| PORTPTIDD | PORT OF PT IDD 2019 | 0.2577346692 | $264,448 | $264,448 | $68.16 | | |
| PUD1 | PUD #1 GENERAL | 0.0597888892 | $264,448 | $264,448 | $15.81 | | |
| STATE | STATE SCHOOL PART 1 | 1.4940692947 | $264,448 | $264,448 | $395.10 | | |
| STATE2 | STATE SCHOOL PART 2 | 0.8050170049 | $264,448 | $264,448 | $212.89 | | |
| | Total Tax Rate: | 8.0297295252 | | | | | |
| | | | | Taxes w/Current Exemptions: | $2,123.46 | | |
| | | | | Taxes w/o Exemptions: | $2,123.46 | | |
Improvement / Building
| Improvement #1: | Residential Bldg | State Code: | 11 | 1050.0 sqft | Value: | $154,448 |
| Exterior Wall: | SI/ST | Fireplace: | WD ST-AVG | | Floor Construction: | FRAME | Foundation: | PO&BL | | Heating/Cooling: | ELBB | Roof Cover: | METAL |
|
| | Type | Description | Class CD | Sub Class CD | Year Built | Area |
| | MA | Main Area | 3 | 1S | 1890 | 1050.0 |
| | HDECK | House Deck | 3 | * | 1890 | 405.0 |
| | HENCL | House Enclosure | 3 | * | 1890 | 188.0 |
| | OTHER | Other | * | * | 1890 | 0.0 |
| | BSMTU | House basement unfinished | 1 | * | 1890 | 216.0 |
Sketch
Property Image
Land
| 1 | 5430-1365S | Avg/Fair Wtr View Sites 1+/- Acre | 0.0000 | 0.00 | 0.00 | 0.00 | 1.00 | $110,000 | $0 |
Roll Value History
| 2026 | N/A | N/A | N/A | N/A | N/A |
| 2025 | $154,448 | $110,000 | $0 | $264,448 | $264,448 |
| 2024 | $140,407 | $100,000 | $0 | $240,407 | $240,407 |
| 2023 | $136,294 | $95,000 | $0 | $231,294 | $231,294 |
| 2022 | $136,294 | $90,000 | $0 | $226,294 | $226,294 |
Deed and Sales History
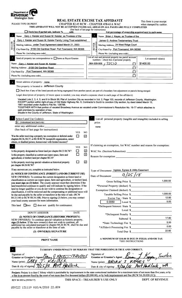
| 1 | 09/21/2018 | SWD | Statutory Warranty Deed | JAMES G ANDREW TESTAMENTARY TRUST | SIMON & CAROLYN ANSELL | | | $268,000.00 | 131120 | |
| 2 | 05/29/2018 | QCD | Quit Claim Deed | | | | | | 130314 | |
Payout Agreement
| No payout information available.. |