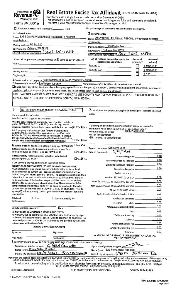
Property
Account |
| Property ID: | 32546 | Abbreviated Legal Description: | JUNCTION CITY BLK 122 LOTS 1 & 2 & PTN QTA DISCOVERY & 15TH STS ADJ & PTN ALLEY ADJ QTA 06-2-00394-1 |
| Parcel # / Geo ID: | 964512201 | Agent Code: | |
| Type: | Real | | |
| Tax Area: | 0151 - 1-50F5E5H2L1 | Land Use Code | 91 |
| Open Space: | N | DFL | N |
| Historic Property: | N | Remodel Property: | N |
| Multi-Family Redevelopment: | N | | |
| Township: | 29N | Section: | 13 |
| Range: | 2W |
Location |
| Address: | | Mapsco: | 038/069 |
| Neighborhood: | S 18 T29 R1W (GARDINER SIDE) & S9-16 T29 R2W & JUNCTION CITY | Map ID: | |
| Neighborhood CD: | 5430 |
Owner |
| Name: | EGAN ORION | Owner ID: | 110645 |
| Mailing Address: | 2623 E PIKE ST SEATTLE, WA 98122-3149 | % Ownership: | 100.0000000000% |
| | | Exemptions: | |
Pay Tax Due
Select the appropriate checkbox next to the year to be paid. Multiple years may be selected.
*Convenience Fee not included
Taxes and Assessment Details
Property Tax Information as of
03/10/2026
Click on "Statement Details" to expand or collapse a tax statement.
* Please enter a valid date ** Please enter a valid date *
Statement Details |
| 2026 | 21812 | STATE - STATE LEVY (SCHOOL) | $2.54 | $2.52 | $0.00 | $0.00 | $0.00 | $5.06 |
| 2026 | 21812 | COUNTY - COUNTY LEVIES (CE, DD, VET, MH) | $1.03 | $0.99 | $0.00 | $0.00 | $0.00 | $2.02 |
| 2026 | 21812 | CONSERVE - CONSERVATION FUTURES | $0.03 | $0.03 | $0.00 | $0.00 | $0.00 | $0.06 |
| 2026 | 21812 | COROADS - COUNTY ROADS (ROADS, DIV TO CE) | $0.82 | $0.81 | $0.00 | $0.00 | $0.00 | $1.63 |
| 2026 | 21812 | PORTPT - PORT DISTRICT | $0.42 | $0.40 | $0.00 | $0.00 | $0.00 | $0.82 |
| 2026 | 21812 | PUD1 - PUD #1 | $0.07 | $0.06 | $0.00 | $0.00 | $0.00 | $0.13 |
| 2026 | 21812 | LIB1 - LIBRARY DIST #1 | $0.32 | $0.31 | $0.00 | $0.00 | $0.00 | $0.63 |
| 2026 | 21812 | HD2 - HOSP DIST #2 | $0.06 | $0.06 | $0.00 | $0.00 | $0.00 | $0.12 |
| 2026 | 21812 | SD50 - SCHOOL DIST #50 | $2.01 | $2.00 | $0.00 | $0.00 | $0.00 | $4.01 |
| 2026 | 21812 | FD5 - FIRE DISTRICT #5 | $1.18 | $1.17 | $0.00 | $0.00 | $0.00 | $2.35 |
| 2026 | 21812 | EMS5 - FIRE DIST #5 EMS | $0.42 | $0.42 | $0.00 | $0.00 | $0.00 | $0.84 |
| 2026 | 21812 | FPLCA - DNR Landowner Contingency Assmt | $3.00 | $3.00 | $0.00 | $0.00 | $0.00 | $6.00 |
| 2026 | 21812 | JCCD - JC Conservation District | $2.53 | $2.53 | $0.00 | $0.00 | $0.00 | $5.06 |
| 2026 | 21812 | NWA - Noxious Weed Assessment | $2.98 | $2.97 | $0.00 | $0.00 | $0.00 | $5.95 |
| 2026 | 21812 | WAT - Clean Water District | $13.00 | $13.00 | $0.00 | $0.00 | $0.00 | $26.00 |
| 2026 | 21812 | TOTAL: | $30.41 | $30.27 | $0.00 | $0.00 | $0.00 | $60.68 |
|
| 2026 | 21812 | $30.41 | $30.27 | $0.00 | $0.00 | $0.00 | $60.68 |
Statement Details |
| 2025 | 21874 | STATE - STATE LEVY (SCHOOL) | $2.40 | $2.40 | $0.00 | $0.00 | $4.80 | $0.00 |
| 2025 | 21874 | COUNTY - COUNTY LEVIES (CE, DD, VET, MH) | $0.96 | $0.92 | $0.00 | $0.00 | $1.88 | $0.00 |
| 2025 | 21874 | CONSERVE - CONSERVATION FUTURES | $0.03 | $0.03 | $0.00 | $0.00 | $0.06 | $0.00 |
| 2025 | 21874 | COROADS - COUNTY ROADS (ROADS, DIV TO CE) | $0.76 | $0.75 | $0.00 | $0.00 | $1.51 | $0.00 |
| 2025 | 21874 | PORTPT - PORT DISTRICT | $0.39 | $0.38 | $0.00 | $0.00 | $0.77 | $0.00 |
| 2025 | 21874 | PUD1 - PUD #1 | $0.06 | $0.06 | $0.00 | $0.00 | $0.12 | $0.00 |
| 2025 | 21874 | LIB1 - LIBRARY DIST #1 | $0.29 | $0.29 | $0.00 | $0.00 | $0.58 | $0.00 |
| 2025 | 21874 | HD2 - HOSP DIST #2 | $0.06 | $0.05 | $0.00 | $0.00 | $0.11 | $0.00 |
| 2025 | 21874 | SD50 - SCHOOL DIST #50 | $1.76 | $1.74 | $0.00 | $0.00 | $3.50 | $0.00 |
| 2025 | 21874 | FD5 - FIRE DISTRICT #5 | $1.10 | $1.10 | $0.00 | $0.00 | $2.20 | $0.00 |
| 2025 | 21874 | EMS5 - FIRE DIST #5 EMS | $0.39 | $0.39 | $0.00 | $0.00 | $0.78 | $0.00 |
| 2025 | 21874 | FPLCA - DNR Landowner Contingency Assmt | $3.00 | $3.00 | $0.00 | $0.00 | $6.00 | $0.00 |
| 2025 | 21874 | JCCD - JC Conservation District | $2.53 | $2.53 | $0.00 | $0.00 | $5.06 | $0.00 |
| 2025 | 21874 | NWA - Noxious Weed Assessment | $2.15 | $2.15 | $0.00 | $0.00 | $4.30 | $0.00 |
| 2025 | 21874 | WAT - Clean Water District | $13.00 | $13.00 | $0.00 | $0.00 | $26.00 | $0.00 |
| 2025 | 21874 | TOTAL: | $28.88 | $28.79 | $0.00 | $0.00 | $57.67 | $0.00 |
|
| 2025 | 21874 | $28.88 | $28.79 | $0.00 | $0.00 | $57.67 | $0.00 |
Statement Details |
| 2024 | 21919 | STATE - STATE LEVY (SCHOOL) | $2.32 | $2.31 | $0.00 | $0.00 | $4.63 | $0.00 |
| 2024 | 21919 | COUNTY - COUNTY LEVIES (CE, DD, VET, MH) | $1.01 | $0.97 | $0.00 | $0.00 | $1.98 | $0.00 |
| 2024 | 21919 | CONSERVE - CONSERVATION FUTURES | $0.03 | $0.03 | $0.00 | $0.00 | $0.06 | $0.00 |
| 2024 | 21919 | COROADS - COUNTY ROADS (ROADS, DIV TO CE) | $0.80 | $0.79 | $0.00 | $0.00 | $1.59 | $0.00 |
| 2024 | 21919 | PORTPT - PORT DISTRICT | $0.41 | $0.40 | $0.00 | $0.00 | $0.81 | $0.00 |
| 2024 | 21919 | PUD1 - PUD #1 | $0.07 | $0.06 | $0.00 | $0.00 | $0.13 | $0.00 |
| 2024 | 21919 | LIB1 - LIBRARY DIST #1 | $0.31 | $0.31 | $0.00 | $0.00 | $0.62 | $0.00 |
| 2024 | 21919 | HD2 - HOSP DIST #2 | $0.06 | $0.06 | $0.00 | $0.00 | $0.12 | $0.00 |
| 2024 | 21919 | SD50 - SCHOOL DIST #50 | $1.88 | $1.87 | $0.00 | $0.00 | $3.75 | $0.00 |
| 2024 | 21919 | FD5 - FIRE DISTRICT #5 | $1.16 | $1.15 | $0.00 | $0.00 | $2.31 | $0.00 |
| 2024 | 21919 | EMS5 - FIRE DIST #5 EMS | $0.40 | $0.39 | $0.00 | $0.00 | $0.79 | $0.00 |
| 2024 | 21919 | FPLCA - DNR Landowner Contingency Assmt | $3.00 | $3.00 | $0.00 | $0.00 | $6.00 | $0.00 |
| 2024 | 21919 | JCCD - JC Conservation District | $2.53 | $2.53 | $0.00 | $0.00 | $5.06 | $0.00 |
| 2024 | 21919 | NWA - Noxious Weed Assessment | $2.15 | $2.15 | $0.00 | $0.00 | $4.30 | $0.00 |
| 2024 | 21919 | WAT - Clean Water District | $12.50 | $12.50 | $0.00 | $0.00 | $25.00 | $0.00 |
| 2024 | 21919 | TOTAL: | $28.63 | $28.52 | $0.00 | $0.00 | $57.15 | $0.00 |
|
| 2024 | 21919 | $28.63 | $28.52 | $0.00 | $0.00 | $57.15 | $0.00 |
Statement Details |
| 2023 | 21956 | STATE - STATE LEVY (SCHOOL) | $2.36 | $2.35 | $0.00 | $0.00 | $4.71 | $0.00 |
| 2023 | 21956 | COUNTY - COUNTY LEVIES (CE, DD, VET, MH) | $1.04 | $1.01 | $0.00 | $0.00 | $2.05 | $0.00 |
| 2023 | 21956 | CONSERVE - CONSERVATION FUTURES | $0.03 | $0.03 | $0.00 | $0.00 | $0.06 | $0.00 |
| 2023 | 21956 | COROADS - COUNTY ROADS (ROADS, DIV TO CE) | $0.84 | $0.82 | $0.00 | $0.00 | $1.66 | $0.00 |
| 2023 | 21956 | PORTPT - PORT DISTRICT | $0.44 | $0.42 | $0.00 | $0.00 | $0.86 | $0.00 |
| 2023 | 21956 | PUD1 - PUD #1 | $0.07 | $0.07 | $0.00 | $0.00 | $0.14 | $0.00 |
| 2023 | 21956 | LIB1 - LIBRARY DIST #1 | $0.32 | $0.32 | $0.00 | $0.00 | $0.64 | $0.00 |
| 2023 | 21956 | HD2 - HOSP DIST #2 | $0.07 | $0.05 | $0.00 | $0.00 | $0.12 | $0.00 |
| 2023 | 21956 | SD50 - SCHOOL DIST #50 | $1.88 | $1.86 | $0.00 | $0.00 | $3.74 | $0.00 |
| 2023 | 21956 | FD5 - FIRE DISTRICT #5 | $1.23 | $1.21 | $0.00 | $0.00 | $2.44 | $0.00 |
| 2023 | 21956 | EMS5 - FIRE DIST #5 EMS | $0.40 | $0.40 | $0.00 | $0.00 | $0.80 | $0.00 |
| 2023 | 21956 | FPLCA - DNR Landowner Contingency Assmt | $3.00 | $3.00 | $0.00 | $0.00 | $6.00 | $0.00 |
| 2023 | 21956 | JCCD - JC Conservation District | $2.53 | $2.53 | $0.00 | $0.00 | $5.06 | $0.00 |
| 2023 | 21956 | NWA - Noxious Weed Assessment | $2.15 | $2.15 | $0.00 | $0.00 | $4.30 | $0.00 |
| 2023 | 21956 | WAT - Clean Water District | $12.00 | $12.00 | $0.00 | $0.00 | $24.00 | $0.00 |
| 2023 | 21956 | TOTAL: | $28.36 | $28.22 | $0.00 | $0.00 | $56.58 | $0.00 |
|
| 2023 | 21956 | $28.36 | $28.22 | $0.00 | $0.00 | $56.58 | $0.00 |
Values
| (+) Improvement Homesite Value: | + | $0 | |
| (+) Improvement Non-Homesite Value: | + | $0 | |
| (+) Land Homesite Value: | + | $0 | |
| (+) Land Non-Homesite Value: | + | $2,200 | |
| (+) Curr Use (HS): | + | $0 | $0 |
| (+) Curr Use (NHS): | + | $0 | $0 |
| | | -------------------------- | |
| (=) Market Value: | = | $2,200 | |
| (–) Productivity Loss: | – | $0 | |
| | | -------------------------- | |
| (=) Subtotal: | = | $2,200 | |
| (+) Senior Appraised Value: | + | $0 | |
| (+) Non-Senior Appraised Value: | + | $2,200 | |
| | | -------------------------- | |
| (=) Total Appraised Value: | = | $2,200 | |
| (–) Senior Exemption Loss: | – | $0 | |
| (–) Exemption Loss: | – | $0 | |
| | | -------------------------- | |
| (=) Taxable Value: | = | $2,200 | |
Taxing Jurisdiction
| Owner: | EGAN ORION | | |
| % Ownership: | 100.0000000000% | | |
| Total Value: | N/A | | |
| Tax Area: | 0151 - 1-50F5E5H2L1 |
| CE | COUNTY CURRENT EXPENSE | N/A | N/A | N/A | N/A | | |
| CNTYDD | DEVELOPMENTAL DISABILITIES | N/A | N/A | N/A | N/A | | |
| CNTYVET | VETERANS RELIEF | N/A | N/A | N/A | N/A | | |
| MENTAL | MENTAL HEALTH | N/A | N/A | N/A | N/A | | |
| ROADS | COUNTY ROADS | N/A | N/A | N/A | N/A | | |
| HOSP2CASH | HOSP DIST #2 GENERAL | N/A | N/A | N/A | N/A | | |
| SCH50BOND | SCHOOL DIST #50 BOND 2016 | N/A | N/A | N/A | N/A | | |
| SCH50CP | SCHOOL DIST #50 CAP PROJ | N/A | N/A | N/A | N/A | | |
| SCH50MO | SCHOOL DIST #50 EP & O | N/A | N/A | N/A | N/A | | |
| CONSERVE | CONSERVATION FUTURES | N/A | N/A | N/A | N/A | | |
| EMS5 | FIRE DIST #5 EMS | N/A | N/A | N/A | N/A | | |
| FD5 | FIRE DIST #5 GENERAL | N/A | N/A | N/A | N/A | | |
| FD5BOND | FIRE DIST #5 BOND 2016 | N/A | N/A | N/A | N/A | | |
| LIB1 | LIBRARY DIST #1 GENERAL | N/A | N/A | N/A | N/A | | |
| PORTPT | PORT OF PT GENERAL | N/A | N/A | N/A | N/A | | |
| PORTPTIDD | PORT OF PT IDD 2019 | N/A | N/A | N/A | N/A | | |
| PUD1 | PUD #1 GENERAL | N/A | N/A | N/A | N/A | | |
| STATE | STATE SCHOOL PART 1 | N/A | N/A | N/A | N/A | | |
| STATE2 | STATE SCHOOL PART 2 | N/A | N/A | N/A | N/A | | |
| | Total Tax Rate: | N/A | | | | | |
| | | | | Taxes w/Current Exemptions: | N/A | | |
| | | | | Taxes w/o Exemptions: | N/A | | |
Improvement / Building
Sketch
| No sketches available for this property. |
Property Image
Land
| 1 | 5430-1185L | | 0.0000 | 0.00 | 0.00 | 0.00 | 2.00 | $2,200 | $0 |
Roll Value History
| 2026 | N/A | N/A | N/A | N/A | N/A |
| 2025 | $0 | $2,200 | $0 | $2,200 | $2,200 |
| 2024 | $0 | $2,000 | $0 | $2,000 | $2,000 |
| 2023 | $0 | $2,000 | $0 | $2,000 | $2,000 |
| 2022 | $0 | $2,000 | $0 | $2,000 | $2,000 |
Deed and Sales History
| 1 | 03/17/2025 | SWD | Statutory Warranty Deed | | EGAN ORION | | | | 144164 | RERECORD |
| 2 | 03/14/2025 | QCD | Quit Claim Deed | | EGAN ORION | | | | 144020 | |
| 3 | 03/17/2025 | SWD | Statutory Warranty Deed | CHESTER NORTHUP IRREV FAMILY TRUST | EGAN ORION | | | $80,000.00 | 144019 | |
|   | |
| 4 | 01/18/2007 | SWD | Statutory Warranty Deed | HARPER, GLORIA ET AL | NORTHUP, MILDRED TRUSTEE | 0 | 0 | $5,000.00 | 108551 | 0 |
|   | |
Payout Agreement
| No payout information available.. |