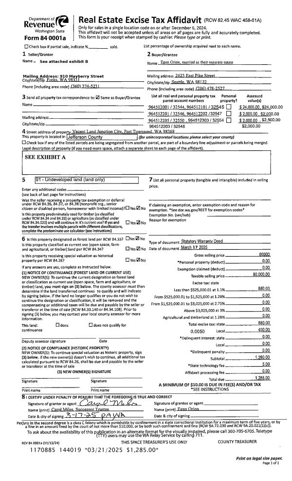
Property
Account |
| Property ID: | 32554 | Abbreviated Legal Description: | JUNCTION CITY BLK 123 LOTS 5 THRU 8 (LS R/W) & PTN QTA COMMERCIAL & 16TH STS ADJ & PTN ALLEY ADJ QTA 06-2-00394-1 |
| Parcel # / Geo ID: | 964512303 | Agent Code: | |
| Type: | Real | | |
| Tax Area: | 0151 - 1-50F5E5H2L1 | Land Use Code | 91 |
| Open Space: | N | DFL | N |
| Historic Property: | N | Remodel Property: | N |
| Multi-Family Redevelopment: | N | | |
| Township: | 29N | Section: | 24 |
| Range: | 2W |
Location |
| Address: | | Mapsco: | 038/081 |
| Neighborhood: | S 18 T29 R1W (GARDINER SIDE) & S9-16 T29 R2W & JUNCTION CITY | Map ID: | |
| Neighborhood CD: | 5430 |
Owner |
| Name: | EGAN ORION | Owner ID: | 110645 |
| Mailing Address: | 2623 E PIKE ST SEATTLE, WA 98122-3149 | % Ownership: | 100.0000000000% |
| | | Exemptions: | |
Pay Tax Due
Select the appropriate checkbox next to the year to be paid. Multiple years may be selected.
*Convenience Fee not included
Taxes and Assessment Details
Property Tax Information as of
03/10/2026
Click on "Statement Details" to expand or collapse a tax statement.
* Please enter a valid date ** Please enter a valid date *
Statement Details |
| 2026 | 21820 | STATE - STATE LEVY (SCHOOL) | $3.17 | $3.15 | $0.00 | $0.00 | $0.00 | $6.32 |
| 2026 | 21820 | COUNTY - COUNTY LEVIES (CE, DD, VET, MH) | $1.27 | $1.24 | $0.00 | $0.00 | $0.00 | $2.51 |
| 2026 | 21820 | CONSERVE - CONSERVATION FUTURES | $0.04 | $0.04 | $0.00 | $0.00 | $0.00 | $0.08 |
| 2026 | 21820 | COROADS - COUNTY ROADS (ROADS, DIV TO CE) | $1.02 | $1.02 | $0.00 | $0.00 | $0.00 | $2.04 |
| 2026 | 21820 | PORTPT - PORT DISTRICT | $0.52 | $0.50 | $0.00 | $0.00 | $0.00 | $1.02 |
| 2026 | 21820 | PUD1 - PUD #1 | $0.08 | $0.08 | $0.00 | $0.00 | $0.00 | $0.16 |
| 2026 | 21820 | LIB1 - LIBRARY DIST #1 | $0.40 | $0.39 | $0.00 | $0.00 | $0.00 | $0.79 |
| 2026 | 21820 | HD2 - HOSP DIST #2 | $0.08 | $0.07 | $0.00 | $0.00 | $0.00 | $0.15 |
| 2026 | 21820 | SD50 - SCHOOL DIST #50 | $2.51 | $2.50 | $0.00 | $0.00 | $0.00 | $5.01 |
| 2026 | 21820 | FD5 - FIRE DISTRICT #5 | $1.48 | $1.46 | $0.00 | $0.00 | $0.00 | $2.94 |
| 2026 | 21820 | EMS5 - FIRE DIST #5 EMS | $0.53 | $0.52 | $0.00 | $0.00 | $0.00 | $1.05 |
| 2026 | 21820 | FPLCA - DNR Landowner Contingency Assmt | $3.00 | $3.00 | $0.00 | $0.00 | $0.00 | $6.00 |
| 2026 | 21820 | JCCD - JC Conservation District | $2.53 | $2.53 | $0.00 | $0.00 | $0.00 | $5.06 |
| 2026 | 21820 | NWA - Noxious Weed Assessment | $2.98 | $2.97 | $0.00 | $0.00 | $0.00 | $5.95 |
| 2026 | 21820 | WAT - Clean Water District | $13.00 | $13.00 | $0.00 | $0.00 | $0.00 | $26.00 |
| 2026 | 21820 | TOTAL: | $32.61 | $32.47 | $0.00 | $0.00 | $0.00 | $65.08 |
|
| 2026 | 21820 | $32.61 | $32.47 | $0.00 | $0.00 | $0.00 | $65.08 |
Statement Details |
| 2025 | 21882 | STATE - STATE LEVY (SCHOOL) | $3.00 | $3.00 | $0.00 | $0.00 | $6.00 | $0.00 |
| 2025 | 21882 | COUNTY - COUNTY LEVIES (CE, DD, VET, MH) | $1.19 | $1.16 | $0.00 | $0.00 | $2.35 | $0.00 |
| 2025 | 21882 | CONSERVE - CONSERVATION FUTURES | $0.04 | $0.03 | $0.00 | $0.00 | $0.07 | $0.00 |
| 2025 | 21882 | COROADS - COUNTY ROADS (ROADS, DIV TO CE) | $0.95 | $0.94 | $0.00 | $0.00 | $1.89 | $0.00 |
| 2025 | 21882 | PORTPT - PORT DISTRICT | $0.49 | $0.47 | $0.00 | $0.00 | $0.96 | $0.00 |
| 2025 | 21882 | PUD1 - PUD #1 | $0.08 | $0.07 | $0.00 | $0.00 | $0.15 | $0.00 |
| 2025 | 21882 | LIB1 - LIBRARY DIST #1 | $0.37 | $0.36 | $0.00 | $0.00 | $0.73 | $0.00 |
| 2025 | 21882 | HD2 - HOSP DIST #2 | $0.07 | $0.07 | $0.00 | $0.00 | $0.14 | $0.00 |
| 2025 | 21882 | SD50 - SCHOOL DIST #50 | $2.19 | $2.19 | $0.00 | $0.00 | $4.38 | $0.00 |
| 2025 | 21882 | FD5 - FIRE DISTRICT #5 | $1.38 | $1.37 | $0.00 | $0.00 | $2.75 | $0.00 |
| 2025 | 21882 | EMS5 - FIRE DIST #5 EMS | $0.49 | $0.49 | $0.00 | $0.00 | $0.98 | $0.00 |
| 2025 | 21882 | FPLCA - DNR Landowner Contingency Assmt | $3.00 | $3.00 | $0.00 | $0.00 | $6.00 | $0.00 |
| 2025 | 21882 | JCCD - JC Conservation District | $2.53 | $2.53 | $0.00 | $0.00 | $5.06 | $0.00 |
| 2025 | 21882 | NWA - Noxious Weed Assessment | $2.15 | $2.15 | $0.00 | $0.00 | $4.30 | $0.00 |
| 2025 | 21882 | WAT - Clean Water District | $13.00 | $13.00 | $0.00 | $0.00 | $26.00 | $0.00 |
| 2025 | 21882 | TOTAL: | $30.93 | $30.83 | $0.00 | $0.00 | $61.76 | $0.00 |
|
| 2025 | 21882 | $30.93 | $30.83 | $0.00 | $0.00 | $61.76 | $0.00 |
Statement Details |
| 2024 | 21927 | STATE - STATE LEVY (SCHOOL) | $2.89 | $2.89 | $0.00 | $0.00 | $5.78 | $0.00 |
| 2024 | 21927 | COUNTY - COUNTY LEVIES (CE, DD, VET, MH) | $1.25 | $1.21 | $0.00 | $0.00 | $2.46 | $0.00 |
| 2024 | 21927 | CONSERVE - CONSERVATION FUTURES | $0.04 | $0.03 | $0.00 | $0.00 | $0.07 | $0.00 |
| 2024 | 21927 | COROADS - COUNTY ROADS (ROADS, DIV TO CE) | $1.00 | $0.99 | $0.00 | $0.00 | $1.99 | $0.00 |
| 2024 | 21927 | PORTPT - PORT DISTRICT | $0.52 | $0.51 | $0.00 | $0.00 | $1.03 | $0.00 |
| 2024 | 21927 | PUD1 - PUD #1 | $0.08 | $0.08 | $0.00 | $0.00 | $0.16 | $0.00 |
| 2024 | 21927 | LIB1 - LIBRARY DIST #1 | $0.39 | $0.38 | $0.00 | $0.00 | $0.77 | $0.00 |
| 2024 | 21927 | HD2 - HOSP DIST #2 | $0.07 | $0.07 | $0.00 | $0.00 | $0.14 | $0.00 |
| 2024 | 21927 | SD50 - SCHOOL DIST #50 | $2.35 | $2.34 | $0.00 | $0.00 | $4.69 | $0.00 |
| 2024 | 21927 | FD5 - FIRE DISTRICT #5 | $1.45 | $1.44 | $0.00 | $0.00 | $2.89 | $0.00 |
| 2024 | 21927 | EMS5 - FIRE DIST #5 EMS | $0.50 | $0.49 | $0.00 | $0.00 | $0.99 | $0.00 |
| 2024 | 21927 | FPLCA - DNR Landowner Contingency Assmt | $3.00 | $3.00 | $0.00 | $0.00 | $6.00 | $0.00 |
| 2024 | 21927 | JCCD - JC Conservation District | $2.53 | $2.53 | $0.00 | $0.00 | $5.06 | $0.00 |
| 2024 | 21927 | NWA - Noxious Weed Assessment | $2.15 | $2.15 | $0.00 | $0.00 | $4.30 | $0.00 |
| 2024 | 21927 | WAT - Clean Water District | $12.50 | $12.50 | $0.00 | $0.00 | $25.00 | $0.00 |
| 2024 | 21927 | TOTAL: | $30.72 | $30.61 | $0.00 | $0.00 | $61.33 | $0.00 |
|
| 2024 | 21927 | $30.72 | $30.61 | $0.00 | $0.00 | $61.33 | $0.00 |
Statement Details |
| 2023 | 21964 | STATE - STATE LEVY (SCHOOL) | $2.95 | $2.93 | $0.00 | $0.00 | $5.88 | $0.00 |
| 2023 | 21964 | COUNTY - COUNTY LEVIES (CE, DD, VET, MH) | $1.29 | $1.26 | $0.00 | $0.00 | $2.55 | $0.00 |
| 2023 | 21964 | CONSERVE - CONSERVATION FUTURES | $0.04 | $0.04 | $0.00 | $0.00 | $0.08 | $0.00 |
| 2023 | 21964 | COROADS - COUNTY ROADS (ROADS, DIV TO CE) | $1.04 | $1.04 | $0.00 | $0.00 | $2.08 | $0.00 |
| 2023 | 21964 | PORTPT - PORT DISTRICT | $0.54 | $0.54 | $0.00 | $0.00 | $1.08 | $0.00 |
| 2023 | 21964 | PUD1 - PUD #1 | $0.09 | $0.08 | $0.00 | $0.00 | $0.17 | $0.00 |
| 2023 | 21964 | LIB1 - LIBRARY DIST #1 | $0.40 | $0.40 | $0.00 | $0.00 | $0.80 | $0.00 |
| 2023 | 21964 | HD2 - HOSP DIST #2 | $0.08 | $0.07 | $0.00 | $0.00 | $0.15 | $0.00 |
| 2023 | 21964 | SD50 - SCHOOL DIST #50 | $2.34 | $2.32 | $0.00 | $0.00 | $4.66 | $0.00 |
| 2023 | 21964 | FD5 - FIRE DISTRICT #5 | $1.53 | $1.52 | $0.00 | $0.00 | $3.05 | $0.00 |
| 2023 | 21964 | EMS5 - FIRE DIST #5 EMS | $0.50 | $0.50 | $0.00 | $0.00 | $1.00 | $0.00 |
| 2023 | 21964 | FPLCA - DNR Landowner Contingency Assmt | $3.00 | $3.00 | $0.00 | $0.00 | $6.00 | $0.00 |
| 2023 | 21964 | JCCD - JC Conservation District | $2.53 | $2.53 | $0.00 | $0.00 | $5.06 | $0.00 |
| 2023 | 21964 | NWA - Noxious Weed Assessment | $2.15 | $2.15 | $0.00 | $0.00 | $4.30 | $0.00 |
| 2023 | 21964 | WAT - Clean Water District | $12.00 | $12.00 | $0.00 | $0.00 | $24.00 | $0.00 |
| 2023 | 21964 | TOTAL: | $30.48 | $30.38 | $0.00 | $0.00 | $60.86 | $0.00 |
|
| 2023 | 21964 | $30.48 | $30.38 | $0.00 | $0.00 | $60.86 | $0.00 |
Values
| (+) Improvement Homesite Value: | + | $0 | |
| (+) Improvement Non-Homesite Value: | + | $0 | |
| (+) Land Homesite Value: | + | $0 | |
| (+) Land Non-Homesite Value: | + | $2,750 | |
| (+) Curr Use (HS): | + | $0 | $0 |
| (+) Curr Use (NHS): | + | $0 | $0 |
| | | -------------------------- | |
| (=) Market Value: | = | $2,750 | |
| (–) Productivity Loss: | – | $0 | |
| | | -------------------------- | |
| (=) Subtotal: | = | $2,750 | |
| (+) Senior Appraised Value: | + | $0 | |
| (+) Non-Senior Appraised Value: | + | $2,750 | |
| | | -------------------------- | |
| (=) Total Appraised Value: | = | $2,750 | |
| (–) Senior Exemption Loss: | – | $0 | |
| (–) Exemption Loss: | – | $0 | |
| | | -------------------------- | |
| (=) Taxable Value: | = | $2,750 | |
Taxing Jurisdiction
| Owner: | EGAN ORION | | |
| % Ownership: | 100.0000000000% | | |
| Total Value: | N/A | | |
| Tax Area: | 0151 - 1-50F5E5H2L1 |
| CE | COUNTY CURRENT EXPENSE | N/A | N/A | N/A | N/A | | |
| CNTYDD | DEVELOPMENTAL DISABILITIES | N/A | N/A | N/A | N/A | | |
| CNTYVET | VETERANS RELIEF | N/A | N/A | N/A | N/A | | |
| MENTAL | MENTAL HEALTH | N/A | N/A | N/A | N/A | | |
| ROADS | COUNTY ROADS | N/A | N/A | N/A | N/A | | |
| HOSP2CASH | HOSP DIST #2 GENERAL | N/A | N/A | N/A | N/A | | |
| SCH50BOND | SCHOOL DIST #50 BOND 2016 | N/A | N/A | N/A | N/A | | |
| SCH50CP | SCHOOL DIST #50 CAP PROJ | N/A | N/A | N/A | N/A | | |
| SCH50MO | SCHOOL DIST #50 EP & O | N/A | N/A | N/A | N/A | | |
| CONSERVE | CONSERVATION FUTURES | N/A | N/A | N/A | N/A | | |
| EMS5 | FIRE DIST #5 EMS | N/A | N/A | N/A | N/A | | |
| FD5 | FIRE DIST #5 GENERAL | N/A | N/A | N/A | N/A | | |
| FD5BOND | FIRE DIST #5 BOND 2016 | N/A | N/A | N/A | N/A | | |
| LIB1 | LIBRARY DIST #1 GENERAL | N/A | N/A | N/A | N/A | | |
| PORTPT | PORT OF PT GENERAL | N/A | N/A | N/A | N/A | | |
| PORTPTIDD | PORT OF PT IDD 2019 | N/A | N/A | N/A | N/A | | |
| PUD1 | PUD #1 GENERAL | N/A | N/A | N/A | N/A | | |
| STATE | STATE SCHOOL PART 1 | N/A | N/A | N/A | N/A | | |
| STATE2 | STATE SCHOOL PART 2 | N/A | N/A | N/A | N/A | | |
| | Total Tax Rate: | N/A | | | | | |
| | | | | Taxes w/Current Exemptions: | N/A | | |
| | | | | Taxes w/o Exemptions: | N/A | | |
Improvement / Building
Sketch
| No sketches available for this property. |
Property Image
Land
| 1 | 5430-1185L | | 0.0000 | 0.00 | 0.00 | 0.00 | 2.00 | $2,200 | $0 |
| 2 | 5430-1185L | | 0.0000 | 0.00 | 0.00 | 0.00 | 1.00 | $550 | $0 |
Roll Value History
| 2026 | N/A | N/A | N/A | N/A | N/A |
| 2025 | $0 | $2,750 | $0 | $2,750 | $2,750 |
| 2024 | $0 | $2,500 | $0 | $2,500 | $2,500 |
| 2023 | $0 | $2,500 | $0 | $2,500 | $2,500 |
| 2022 | $0 | $2,500 | $0 | $2,500 | $2,500 |
Deed and Sales History
| 1 | 03/17/2025 | SWD | Statutory Warranty Deed | | EGAN ORION | | | | 144164 | RERECORD |
| 2 | 03/14/2025 | QCD | Quit Claim Deed | | EGAN ORION | | | | 144020 | |
| 3 | 03/17/2025 | SWD | Statutory Warranty Deed | CHESTER NORTHUP IRREV FAMILY TRUST | EGAN ORION | | | $80,000.00 | 144019 | |
|   | |
| 4 | 11/27/2000 | QCD | Quit Claim Deed | NORTHUP, MILDRED & CHESTE | NORTHUR IRREVOCABLE FAMILY TRU | 0 | 0 | $0.00 | 91090 | 0 |
Payout Agreement
| No payout information available.. |