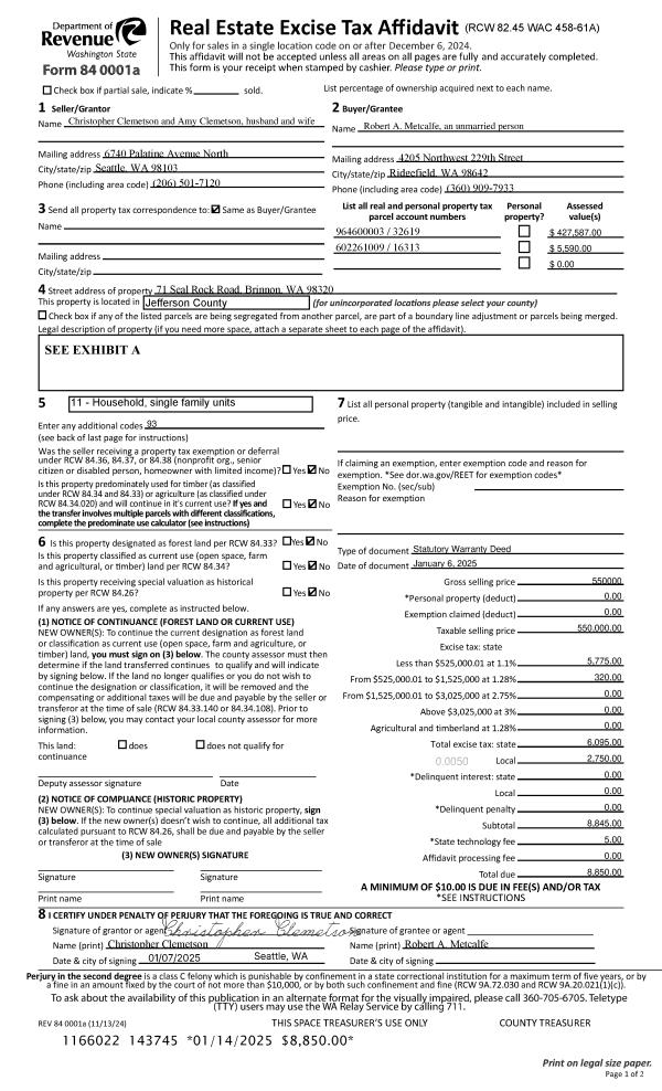
Property
Account |
| Property ID: | 32619 | Abbreviated Legal Description: | JUPITER CITY TAX 2 |
| Parcel # / Geo ID: | 964600003 | Agent Code: | |
| Type: | Real | | |
| Tax Area: | 0441 - 1-46F4E4H2C1L1P2 | Land Use Code | 11 |
| Open Space: | N | DFL | N |
| Historic Property: | N | Remodel Property: | N |
| Multi-Family Redevelopment: | N | | |
| Township: | 26N | Section: | 26 |
| Range: | 2W |
Location |
| Address: | 71 SEAL ROCK RD BRINNON, WA 98320 | Mapsco: | 005/165 |
| Neighborhood: | S26 & S27 T26N R2W INC JUPITER CITY & SEAL ROCK BEACH PLATS | Map ID: | |
| Neighborhood CD: | 1350 |
Owner |
| Name: | ANDREW W & JENNIFER RODGERS | Owner ID: | 113908 |
| Mailing Address: | 16637 25TH AVE SW BURIEN, WA 98166-3201 | % Ownership: | 100.0000000000% |
| | | Exemptions: | |
Pay Tax Due
There is currently No Amount Due on this property.
Taxes and Assessment Details
Property Tax Information as of
03/12/2026
Click on "Statement Details" to expand or collapse a tax statement.
* Please enter a valid date ** Please enter a valid date *
Statement Details |
| | TOTAL: | $0.00 | $0.00 | $0.00 | $0.00 | $0.00 | $0.00 |
|
| | $0.00 | $0.00 | $0.00 | $0.00 | $0.00 | $0.00 |
Values
| (+) Improvement Homesite Value: | + | $0 | |
| (+) Improvement Non-Homesite Value: | + | $181,885 | |
| (+) Land Homesite Value: | + | $0 | |
| (+) Land Non-Homesite Value: | + | $313,126 | |
| (+) Curr Use (HS): | + | $0 | $0 |
| (+) Curr Use (NHS): | + | $0 | $0 |
| | | -------------------------- | |
| (=) Market Value: | = | $495,011 | |
| (–) Productivity Loss: | – | $0 | |
| | | -------------------------- | |
| (=) Subtotal: | = | $495,011 | |
| (+) Senior Appraised Value: | + | $0 | |
| (+) Non-Senior Appraised Value: | + | $495,011 | |
| | | -------------------------- | |
| (=) Total Appraised Value: | = | $495,011 | |
| (–) Senior Exemption Loss: | – | $0 | |
| (–) Exemption Loss: | – | $0 | |
| | | -------------------------- | |
| (=) Taxable Value: | = | $495,011 | |
Taxing Jurisdiction
| Owner: | ANDREW W & JENNIFER RODGERS | | |
| % Ownership: | 100.0000000000% | | |
| Total Value: | N/A | | |
| Tax Area: | 0441 - 1-46F4E4H2C1L1P2 |
| CE | COUNTY CURRENT EXPENSE | N/A | N/A | N/A | N/A | | |
| CNTYDD | DEVELOPMENTAL DISABILITIES | N/A | N/A | N/A | N/A | | |
| CNTYVET | VETERANS RELIEF | N/A | N/A | N/A | N/A | | |
| MENTAL | MENTAL HEALTH | N/A | N/A | N/A | N/A | | |
| ROADS | COUNTY ROADS | N/A | N/A | N/A | N/A | | |
| HOSP2CASH | HOSP DIST #2 GENERAL | N/A | N/A | N/A | N/A | | |
| SCH46MO | SCHOOL DIST #46 EP & O | N/A | N/A | N/A | N/A | | |
| CEM1 | CEMETERY DIST #1 GENERAL | N/A | N/A | N/A | N/A | | |
| CONSERVE | CONSERVATION FUTURES | N/A | N/A | N/A | N/A | | |
| EMS4 | FIRE DIST #4 EMS | N/A | N/A | N/A | N/A | | |
| FD4 | FIRE DIST #4 GENERAL | N/A | N/A | N/A | N/A | | |
| FD4BOND | FIRE DIST #4 BOND 2019 | N/A | N/A | N/A | N/A | | |
| LIB1 | LIBRARY DIST #1 GENERAL | N/A | N/A | N/A | N/A | | |
| PORTPT | PORT OF PT GENERAL | N/A | N/A | N/A | N/A | | |
| PORTPTIDD | PORT OF PT IDD 2019 | N/A | N/A | N/A | N/A | | |
| PUD1 | PUD #1 GENERAL | N/A | N/A | N/A | N/A | | |
| STATE | STATE SCHOOL PART 1 | N/A | N/A | N/A | N/A | | |
| STATE2 | STATE SCHOOL PART 2 | N/A | N/A | N/A | N/A | | |
| | Total Tax Rate: | N/A | | | | | |
| | | | | Taxes w/Current Exemptions: | N/A | | |
| | | | | Taxes w/o Exemptions: | N/A | | |
Improvement / Building
| Improvement #1: | Residential Bldg | State Code: | 11 | 900.0 sqft | Value: | $181,885 |
| Bathrooms (#): | 1 (FULL) | Bathrooms (#): | 1 (HALF) | | Bedrooms (#): | 1 | Exterior Wall: | PL/T1 | | Fireplace: | WD ST-GOOD | Floor Construction: | FRAME | | Foundation: | CONBL | Heating/Cooling: | ELBB | | Roof Cover: | METAL |   |   |
|
| | Type | Description | Class CD | Sub Class CD | Year Built | Area |
| | MA | Main Area | 3+ | 1S | 1960 | 900.0 |
| | HDECK | House Deck | 3 | * | 1960 | 714.5 |
| | CARPTF | Carport W/Floor | 3 | * | 1960 | 420.0 |
| | SHED | Shed (Table Not Dep) | 3 | * | 1960 | 192.0 |
Sketch
Property Image
Land
| 1 | 1350-1525F | Low to Med Bank Wtrfrt Dabob Bay/HC on SR101 | 0.0000 | 0.00 | 0.00 | 0.00 | 0.00 | $187,000 | $0 |
| 2 | 1350-1525F | Low to Med Bank Wtrfrt Dabob Bay/HC on SR101 | 0.0000 | 0.00 | 0.00 | 0.00 | 0.00 | $126,126 | $0 |
Roll Value History
| 2026 | N/A | N/A | N/A | N/A | N/A |
| 2025 | $174,479 | $273,108 | $0 | $447,587 | $447,587 |
| 2024 | $166,893 | $260,694 | $0 | $427,587 | $427,587 |
| 2023 | $166,893 | $243,280 | $0 | $410,173 | $410,173 |
| 2022 | $151,721 | $238,280 | $0 | $390,001 | $390,001 |
Deed and Sales History
| 1 | 01/02/2026 | SWD | Statutory Warranty Deed | ROBERT A METCALFE | ANDREW W & JENNIFER RODGERS | | | $635,000.00 | 145493 | |
|   | |
| 2 | 01/06/2025 | SWD | Statutory Warranty Deed | CHRISTOPHER CLEMETSON | ROBERT A METCALFE | | | $550,000.00 | 143745 | |
|   | |
| 3 | 04/09/2012 | SWD | Statutory Warranty Deed | METCALF, KAY M | CLEMETSON, CHRISTOPHER/AMY | 0 | 0 | $0.00 | 117392 | 0 |
| 4 | 11/04/2008 | WD | Warranty Deed | AURORA LOAN SERVICES LLC | METCALFE, ROBERT A/KAY M | 0 | 0 | $0.00 | 112141 | 0 |
| 5 | 07/08/2008 | TRED | Trustee Deed | QUALITY LOAN SERVICE CORP | AURORA LOAN SERVICES LLC | | | $0.00 | 111573 | 0 |
| 6 | 05/27/2008 | TRED | Trustee Deed | WARREN & DUGGAN, PLLC | ROWAN, DORSEY E | | | $0.00 | 111325 | 0 |
| 7 | 04/15/2008 | TRED | Trustee Deed | WARREN & DUGGAN PLLC | ROWAN, DORSEY | | | $0.00 | 111133 | 0 |
| 8 | 07/25/2006 | SWD | Statutory Warranty Deed | PARKS, PATRICIA JEAN TRUS | HALL, CHARLES/MARLENE/STEVEN | 0 | 0 | $0.00 | 108749 | 0 |
Payout Agreement
| No payout information available.. |