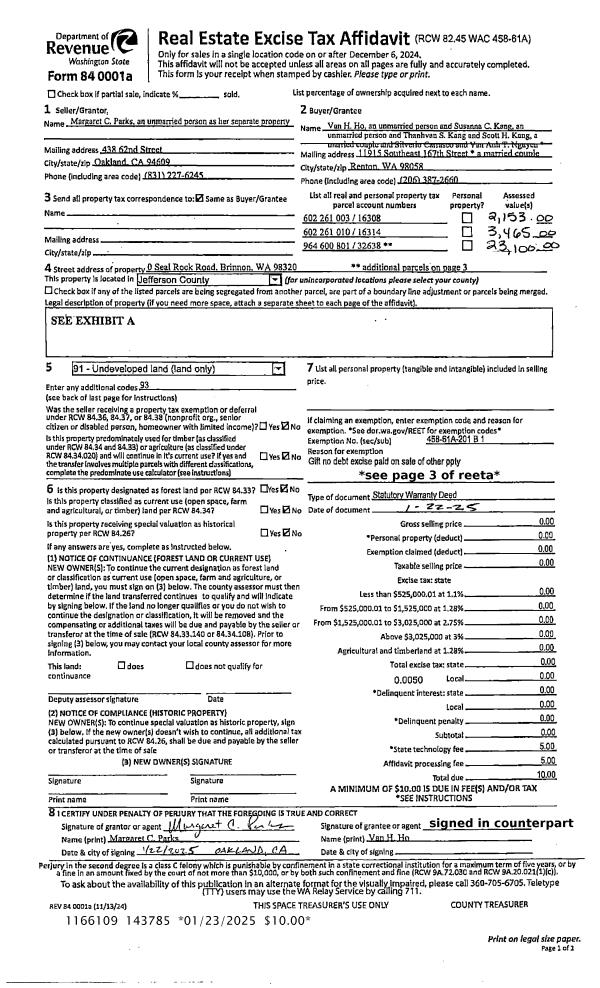
Property
Account |
| Property ID: | 32639 | Abbreviated Legal Description: | JUPITER CITY BLK 9 LOT 2 (LESS R/W) |
| Parcel # / Geo ID: | 964600901 | Agent Code: | |
| Type: | Real | | |
| Tax Area: | 0441 - 1-46F4E4H2C1L1P2 | Land Use Code | 91 |
| Open Space: | N | DFL | N |
| Historic Property: | N | Remodel Property: | N |
| Multi-Family Redevelopment: | N | | |
| Township: | 26N | Section: | 26 |
| Range: | 2W |
Location |
| Address: | | Mapsco: | 005/049 |
| Neighborhood: | S26 & S27 T26N R2W INC JUPITER CITY & SEAL ROCK BEACH PLATS | Map ID: | |
| Neighborhood CD: | 1350 |
Owner |
| Name: | VAN H HO/ SUSANNA C KANG | Owner ID: | 112036 |
| Mailing Address: | THANHVAN S & SCOTT H KANG SILVERIO CARRASCO & VAN ANH NGUYEN 11915 SE 167TH ST RENTON, WA 98058-5335 | % Ownership: | 100.0000000000% |
| | | Exemptions: | |
Pay Tax Due
Select the appropriate checkbox next to the year to be paid. Multiple years may be selected.
*Convenience Fee not included
Taxes and Assessment Details
Property Tax Information as of
03/12/2026
Click on "Statement Details" to expand or collapse a tax statement.
* Please enter a valid date ** Please enter a valid date *
Statement Details |
| 2026 | 21905 | STATE - STATE LEVY (SCHOOL) | $2.85 | $2.84 | $0.00 | $0.00 | $0.00 | $5.69 |
| 2026 | 21905 | COUNTY - COUNTY LEVIES (CE, DD, VET, MH) | $1.15 | $1.12 | $0.00 | $0.00 | $0.00 | $2.27 |
| 2026 | 21905 | CONSERVE - CONSERVATION FUTURES | $0.04 | $0.03 | $0.00 | $0.00 | $0.00 | $0.07 |
| 2026 | 21905 | COROADS - COUNTY ROADS (ROADS, DIV TO CE) | $0.92 | $0.92 | $0.00 | $0.00 | $0.00 | $1.84 |
| 2026 | 21905 | PORTPT - PORT DISTRICT | $0.46 | $0.46 | $0.00 | $0.00 | $0.00 | $0.92 |
| 2026 | 21905 | PUD1 - PUD #1 | $0.08 | $0.07 | $0.00 | $0.00 | $0.00 | $0.15 |
| 2026 | 21905 | LIB1 - LIBRARY DIST #1 | $0.36 | $0.35 | $0.00 | $0.00 | $0.00 | $0.71 |
| 2026 | 21905 | HD2 - HOSP DIST #2 | $0.07 | $0.06 | $0.00 | $0.00 | $0.00 | $0.13 |
| 2026 | 21905 | SD46 - SCHOOL DIST #46 | $0.86 | $0.85 | $0.00 | $0.00 | $0.00 | $1.71 |
| 2026 | 21905 | FD4 - FIRE DISTRICT #4 | $2.07 | $2.06 | $0.00 | $0.00 | $0.00 | $4.13 |
| 2026 | 21905 | EMS4 - FIRE DIST #4 EMS | $0.58 | $0.57 | $0.00 | $0.00 | $0.00 | $1.15 |
| 2026 | 21905 | CEM1 - CEMETERY DIST #1 | $0.02 | $0.01 | $0.00 | $0.00 | $0.00 | $0.03 |
| 2026 | 21905 | FPLCA - DNR Landowner Contingency Assmt | $3.00 | $3.00 | $0.00 | $0.00 | $0.00 | $6.00 |
| 2026 | 21905 | JCCD - JC Conservation District | $2.53 | $2.53 | $0.00 | $0.00 | $0.00 | $5.06 |
| 2026 | 21905 | NWA - Noxious Weed Assessment | $2.98 | $2.97 | $0.00 | $0.00 | $0.00 | $5.95 |
| 2026 | 21905 | WAT - Clean Water District | $13.00 | $13.00 | $0.00 | $0.00 | $0.00 | $26.00 |
| 2026 | 21905 | TOTAL: | $30.97 | $30.84 | $0.00 | $0.00 | $0.00 | $61.81 |
|
| 2026 | 21905 | $30.97 | $30.84 | $0.00 | $0.00 | $0.00 | $61.81 |
Statement Details |
| 2025 | 21967 | STATE - STATE LEVY (SCHOOL) | $2.83 | $2.83 | $0.62 | $0.62 | $0.00 | $6.90 |
| 2025 | 21967 | COUNTY - COUNTY LEVIES (CE, DD, VET, MH) | $1.13 | $1.09 | $0.25 | $0.24 | $0.00 | $2.71 |
| 2025 | 21967 | CONSERVE - CONSERVATION FUTURES | $0.04 | $0.03 | $0.01 | $0.01 | $0.00 | $0.09 |
| 2025 | 21967 | COROADS - COUNTY ROADS (ROADS, DIV TO CE) | $0.90 | $0.89 | $0.20 | $0.20 | $0.00 | $2.19 |
| 2025 | 21967 | PORTPT - PORT DISTRICT | $0.46 | $0.45 | $0.10 | $0.10 | $0.00 | $1.11 |
| 2025 | 21967 | PUD1 - PUD #1 | $0.08 | $0.07 | $0.01 | $0.02 | $0.00 | $0.18 |
| 2025 | 21967 | LIB1 - LIBRARY DIST #1 | $0.35 | $0.34 | $0.08 | $0.08 | $0.00 | $0.85 |
| 2025 | 21967 | HD2 - HOSP DIST #2 | $0.07 | $0.06 | $0.01 | $0.01 | $0.00 | $0.15 |
| 2025 | 21967 | SD46 - SCHOOL DIST #46 | $0.75 | $0.75 | $0.16 | $0.16 | $0.00 | $1.82 |
| 2025 | 21967 | FD4 - FIRE DISTRICT #4 | $2.08 | $2.07 | $0.46 | $0.46 | $0.00 | $5.07 |
| 2025 | 21967 | EMS4 - FIRE DIST #4 EMS | $0.58 | $0.57 | $0.12 | $0.13 | $0.00 | $1.40 |
| 2025 | 21967 | CEM1 - CEMETERY DIST #1 | $0.02 | $0.01 | $0.00 | $0.00 | $0.00 | $0.03 |
| 2025 | 21967 | FPLCA - DNR Landowner Contingency Assmt | $3.00 | $3.00 | $0.66 | $0.66 | $0.00 | $7.32 |
| 2025 | 21967 | JCCD - JC Conservation District | $2.53 | $2.53 | $0.55 | $0.56 | $0.00 | $6.17 |
| 2025 | 21967 | NWA - Noxious Weed Assessment | $2.15 | $2.15 | $0.47 | $0.47 | $0.00 | $5.24 |
| 2025 | 21967 | WAT - Clean Water District | $13.00 | $13.00 | $2.86 | $2.86 | $0.00 | $31.72 |
| 2025 | 21967 | TOTAL: | $29.97 | $29.84 | $6.56 | $6.58 | $0.00 | $72.95 |
|
| 2025 | 21967 | $29.97 | $29.84 | $6.56 | $6.58 | $0.00 | $72.95 |
Statement Details |
| 2024 | 22012 | STATE - STATE LEVY (SCHOOL) | $2.61 | $2.60 | $0.00 | $0.00 | $5.21 | $0.00 |
| 2024 | 22012 | COUNTY - COUNTY LEVIES (CE, DD, VET, MH) | $1.13 | $1.09 | $0.00 | $0.00 | $2.22 | $0.00 |
| 2024 | 22012 | CONSERVE - CONSERVATION FUTURES | $0.04 | $0.03 | $0.00 | $0.00 | $0.07 | $0.00 |
| 2024 | 22012 | COROADS - COUNTY ROADS (ROADS, DIV TO CE) | $0.90 | $0.89 | $0.00 | $0.00 | $1.79 | $0.00 |
| 2024 | 22012 | PORTPT - PORT DISTRICT | $0.47 | $0.46 | $0.00 | $0.00 | $0.93 | $0.00 |
| 2024 | 22012 | PUD1 - PUD #1 | $0.08 | $0.07 | $0.00 | $0.00 | $0.15 | $0.00 |
| 2024 | 22012 | LIB1 - LIBRARY DIST #1 | $0.35 | $0.34 | $0.00 | $0.00 | $0.69 | $0.00 |
| 2024 | 22012 | HD2 - HOSP DIST #2 | $0.07 | $0.06 | $0.00 | $0.00 | $0.13 | $0.00 |
| 2024 | 22012 | SD46 - SCHOOL DIST #46 | $0.78 | $0.78 | $0.00 | $0.00 | $1.56 | $0.00 |
| 2024 | 22012 | FD4 - FIRE DISTRICT #4 | $2.02 | $2.02 | $0.00 | $0.00 | $4.04 | $0.00 |
| 2024 | 22012 | EMS4 - FIRE DIST #4 EMS | $0.57 | $0.56 | $0.00 | $0.00 | $1.13 | $0.00 |
| 2024 | 22012 | CEM1 - CEMETERY DIST #1 | $0.02 | $0.01 | $0.00 | $0.00 | $0.03 | $0.00 |
| 2024 | 22012 | FPLCA - DNR Landowner Contingency Assmt | $3.00 | $3.00 | $0.00 | $0.00 | $6.00 | $0.00 |
| 2024 | 22012 | JCCD - JC Conservation District | $2.53 | $2.53 | $0.00 | $0.00 | $5.06 | $0.00 |
| 2024 | 22012 | NWA - Noxious Weed Assessment | $2.15 | $2.15 | $0.00 | $0.00 | $4.30 | $0.00 |
| 2024 | 22012 | WAT - Clean Water District | $12.50 | $12.50 | $0.00 | $0.00 | $25.00 | $0.00 |
| 2024 | 22012 | TOTAL: | $29.22 | $29.09 | $0.00 | $0.00 | $58.31 | $0.00 |
|
| 2024 | 22012 | $29.22 | $29.09 | $0.00 | $0.00 | $58.31 | $0.00 |
Statement Details |
| 2023 | 22049 | STATE - STATE LEVY (SCHOOL) | $2.66 | $2.64 | $0.00 | $0.00 | $5.30 | $0.00 |
| 2023 | 22049 | COUNTY - COUNTY LEVIES (CE, DD, VET, MH) | $1.17 | $1.13 | $0.00 | $0.00 | $2.30 | $0.00 |
| 2023 | 22049 | CONSERVE - CONSERVATION FUTURES | $0.04 | $0.03 | $0.00 | $0.00 | $0.07 | $0.00 |
| 2023 | 22049 | COROADS - COUNTY ROADS (ROADS, DIV TO CE) | $0.94 | $0.93 | $0.00 | $0.00 | $1.87 | $0.00 |
| 2023 | 22049 | PORTPT - PORT DISTRICT | $0.50 | $0.48 | $0.00 | $0.00 | $0.98 | $0.00 |
| 2023 | 22049 | PUD1 - PUD #1 | $0.08 | $0.07 | $0.00 | $0.00 | $0.15 | $0.00 |
| 2023 | 22049 | LIB1 - LIBRARY DIST #1 | $0.36 | $0.36 | $0.00 | $0.00 | $0.72 | $0.00 |
| 2023 | 22049 | HD2 - HOSP DIST #2 | $0.07 | $0.07 | $0.00 | $0.00 | $0.14 | $0.00 |
| 2023 | 22049 | SD46 - SCHOOL DIST #46 | $0.87 | $0.86 | $0.00 | $0.00 | $1.73 | $0.00 |
| 2023 | 22049 | FD4 - FIRE DISTRICT #4 | $1.44 | $1.43 | $0.00 | $0.00 | $2.87 | $0.00 |
| 2023 | 22049 | EMS4 - FIRE DIST #4 EMS | $0.41 | $0.41 | $0.00 | $0.00 | $0.82 | $0.00 |
| 2023 | 22049 | CEM1 - CEMETERY DIST #1 | $0.02 | $0.01 | $0.00 | $0.00 | $0.03 | $0.00 |
| 2023 | 22049 | FPLCA - DNR Landowner Contingency Assmt | $3.00 | $3.00 | $0.00 | $0.00 | $6.00 | $0.00 |
| 2023 | 22049 | JCCD - JC Conservation District | $2.53 | $2.53 | $0.00 | $0.00 | $5.06 | $0.00 |
| 2023 | 22049 | NWA - Noxious Weed Assessment | $2.15 | $2.15 | $0.00 | $0.00 | $4.30 | $0.00 |
| 2023 | 22049 | WAT - Clean Water District | $12.00 | $12.00 | $0.00 | $0.00 | $24.00 | $0.00 |
| 2023 | 22049 | TOTAL: | $28.24 | $28.10 | $0.00 | $0.00 | $56.34 | $0.00 |
|
| 2023 | 22049 | $28.24 | $28.10 | $0.00 | $0.00 | $56.34 | $0.00 |
Values
| (+) Improvement Homesite Value: | + | $0 | |
| (+) Improvement Non-Homesite Value: | + | $0 | |
| (+) Land Homesite Value: | + | $0 | |
| (+) Land Non-Homesite Value: | + | $2,475 | |
| (+) Curr Use (HS): | + | $0 | $0 |
| (+) Curr Use (NHS): | + | $0 | $0 |
| | | -------------------------- | |
| (=) Market Value: | = | $2,475 | |
| (–) Productivity Loss: | – | $0 | |
| | | -------------------------- | |
| (=) Subtotal: | = | $2,475 | |
| (+) Senior Appraised Value: | + | $0 | |
| (+) Non-Senior Appraised Value: | + | $2,475 | |
| | | -------------------------- | |
| (=) Total Appraised Value: | = | $2,475 | |
| (–) Senior Exemption Loss: | – | $0 | |
| (–) Exemption Loss: | – | $0 | |
| | | -------------------------- | |
| (=) Taxable Value: | = | $2,475 | |
Taxing Jurisdiction
| Owner: | VAN H HO/ SUSANNA C KANG | | |
| % Ownership: | 100.0000000000% | | |
| Total Value: | $2,475 | | |
| Tax Area: | 0441 - 1-46F4E4H2C1L1P2 |
| CE | COUNTY CURRENT EXPENSE | 0.9034619479 | $2,475 | $2,475 | $2.24 | | |
| CNTYDD | DEVELOPMENTAL DISABILITIES | 0.0052121823 | $2,475 | $2,475 | $0.01 | | |
| CNTYVET | VETERANS RELIEF | 0.0052777810 | $2,475 | $2,475 | $0.01 | | |
| MENTAL | MENTAL HEALTH | 0.0052121823 | $2,475 | $2,475 | $0.01 | | |
| ROADS | COUNTY ROADS | 0.7415066410 | $2,475 | $2,475 | $1.84 | | |
| ROADSCU | COUNTY ROADS TO CUR EXP | 0.0000000000 | $2,475 | $2,475 | $0.00 | | |
| HOSP2CASH | HOSP DIST #2 GENERAL | 0.0536075306 | $2,475 | $2,475 | $0.13 | | |
| SCH46MO | SCHOOL DIST #46 EP & O | 0.6890207067 | $2,475 | $2,475 | $1.71 | | |
| CEM1 | CEMETERY DIST #1 GENERAL | 0.0107168292 | $2,475 | $2,475 | $0.03 | | |
| CONSERVE | CONSERVATION FUTURES | 0.0275621078 | $2,475 | $2,475 | $0.07 | | |
| EMS4 | FIRE DIST #4 EMS | 0.4644216158 | $2,475 | $2,475 | $1.15 | | |
| FD4 | FIRE DIST #4 GENERAL | 1.3939598390 | $2,475 | $2,475 | $3.45 | | |
| FD4BOND | FIRE DIST #4 BOND 2019 | 0.2748466981 | $2,475 | $2,475 | $0.68 | | |
| LIB1 | LIBRARY DIST #1 GENERAL | 0.2868827388 | $2,475 | $2,475 | $0.71 | | |
| PORTPT | PORT OF PT GENERAL | 0.1134941229 | $2,475 | $2,475 | $0.28 | | |
| PORTPTIDD | PORT OF PT IDD 2019 | 0.2577346692 | $2,475 | $2,475 | $0.64 | | |
| PUD1 | PUD #1 GENERAL | 0.0597888892 | $2,475 | $2,475 | $0.15 | | |
| STATE | STATE SCHOOL PART 1 | 1.4940692947 | $2,475 | $2,475 | $3.70 | | |
| STATE2 | STATE SCHOOL PART 2 | 0.8050170049 | $2,475 | $2,475 | $1.99 | | |
| | Total Tax Rate: | 7.5917927814 | | | | | |
| | | | | Taxes w/Current Exemptions: | $18.80 | | |
| | | | | Taxes w/o Exemptions: | $18.80 | | |
Improvement / Building
Sketch
| No sketches available for this property. |
Property Image
Land
| 1 | 1350-1275S | | 0.0000 | 0.00 | 0.00 | 0.00 | 1.00 | $2,475 | $0 |
Roll Value History
| 2026 | N/A | N/A | N/A | N/A | N/A |
| 2025 | $0 | $2,475 | $0 | $2,475 | $2,475 |
| 2024 | $0 | $2,363 | $0 | $2,363 | $2,363 |
| 2023 | $0 | $2,250 | $0 | $2,250 | $2,250 |
| 2022 | $0 | $2,250 | $0 | $2,250 | $2,250 |
Deed and Sales History
| 1 | 01/22/2025 | SWD | Statutory Warranty Deed | MARGARET C PARKS | VAN H HO/ SUSANNA C KANG | | | | 143785 | |
| 2 | 02/15/2023 | QCD | Quit Claim Deed | WALTER C PARKS TRUSTEE | MARGARET C PARKS | | | | 140519 | |
| 3 | 05/08/1996 | SWD | Statutory Warranty Deed | PARKS, WALTER C | PARKS, WALTER C/TRUSTEE | 0 | 0 | $0.00 | 80390 | 0 |
Payout Agreement
| No payout information available.. |