Property
Account |
| Property ID: | 32717 | Abbreviated Legal Description: | KALA POINT #1 LOT 50 |
| Parcel # / Geo ID: | 964700050 | Agent Code: | |
| Type: | Real | | |
| Tax Area: | 0111 - 1-50F1E1H2L1 | Land Use Code | 11 |
| Open Space: | N | DFL | N |
| Historic Property: | N | Remodel Property: | N |
| Multi-Family Redevelopment: | N | | |
| Township: | 30N | Section: | 26 |
| Range: | 1W |
Location |
| Address: | 210 WINDSHIP DR PORT TOWNSEND, WA 98368 | Mapsco: | 044/015 |
| Neighborhood: | KALA PT - DIV 1, 2, PART OF 3 & 4 | Map ID: | |
| Neighborhood CD: | 5390 |
Owner |
| Name: | LANE R STUART REVOCABLE TRUST | Owner ID: | 100630 |
| Mailing Address: | LANE R STUART TRUSTEE 210 WINDSHIP DR PORT TOWNSEND, WA 98368-2514 | % Ownership: | 100.0000000000% |
| | | Exemptions: | |
Pay Tax Due
There is currently No Amount Due on this property.
Taxes and Assessment Details
Property Tax Information as of
03/12/2026
Click on "Statement Details" to expand or collapse a tax statement.
* Please enter a valid date ** Please enter a valid date *
Statement Details |
| | TOTAL: | $0.00 | $0.00 | $0.00 | $0.00 | $0.00 | $0.00 |
|
| | $0.00 | $0.00 | $0.00 | $0.00 | $0.00 | $0.00 |
Values
| (+) Improvement Homesite Value: | + | $0 | |
| (+) Improvement Non-Homesite Value: | + | $612,879 | |
| (+) Land Homesite Value: | + | $0 | |
| (+) Land Non-Homesite Value: | + | $299,200 | |
| (+) Curr Use (HS): | + | $0 | $0 |
| (+) Curr Use (NHS): | + | $0 | $0 |
| | | -------------------------- | |
| (=) Market Value: | = | $912,079 | |
| (–) Productivity Loss: | – | $0 | |
| | | -------------------------- | |
| (=) Subtotal: | = | $912,079 | |
| (+) Senior Appraised Value: | + | $0 | |
| (+) Non-Senior Appraised Value: | + | $912,079 | |
| | | -------------------------- | |
| (=) Total Appraised Value: | = | $912,079 | |
| (–) Senior Exemption Loss: | – | $0 | |
| (–) Exemption Loss: | – | $0 | |
| | | -------------------------- | |
| (=) Taxable Value: | = | $912,079 | |
Taxing Jurisdiction
| Owner: | LANE R STUART REVOCABLE TRUST | | |
| % Ownership: | 100.0000000000% | | |
| Total Value: | $912,079 | | |
| Tax Area: | 0111 - 1-50F1E1H2L1 |
| CE | COUNTY CURRENT EXPENSE | 0.9034619479 | $912,079 | $912,079 | $824.03 | | |
| CNTYDD | DEVELOPMENTAL DISABILITIES | 0.0052121823 | $912,079 | $912,079 | $4.75 | | |
| CNTYVET | VETERANS RELIEF | 0.0052777810 | $912,079 | $912,079 | $4.81 | | |
| MENTAL | MENTAL HEALTH | 0.0052121823 | $912,079 | $912,079 | $4.75 | | |
| ROADS | COUNTY ROADS | 0.7415066410 | $912,079 | $912,079 | $676.31 | | |
| ROADSCU | COUNTY ROADS TO CUR EXP | 0.0000000000 | $912,079 | $912,079 | $0.00 | | |
| HOSP2CASH | HOSP DIST #2 GENERAL | 0.0536075306 | $912,079 | $912,079 | $48.89 | | |
| SCH50BOND | SCHOOL DIST #50 BOND 2016 | 0.5377451389 | $912,079 | $912,079 | $490.47 | | |
| SCH50CP | SCHOOL DIST #50 CAP PROJ | 0.4573475088 | $912,079 | $912,079 | $417.14 | | |
| SCH50MO | SCHOOL DIST #50 EP & O | 0.8262822886 | $912,079 | $912,079 | $753.63 | | |
| CONSERVE | CONSERVATION FUTURES | 0.0275621078 | $912,079 | $912,079 | $25.14 | | |
| EMS1 | FIRE DIST #1 EMS | 0.4679948282 | $912,079 | $912,079 | $426.85 | | |
| FD1 | FIRE DIST #1 GENERAL | 1.2171942929 | $912,079 | $912,079 | $1,110.18 | | |
| LIB1 | LIBRARY DIST #1 GENERAL | 0.2868827388 | $912,079 | $912,079 | $261.66 | | |
| PORTPT | PORT OF PT GENERAL | 0.1134941229 | $912,079 | $912,079 | $103.52 | | |
| PORTPTIDD | PORT OF PT IDD 2019 | 0.2577346692 | $912,079 | $912,079 | $235.07 | | |
| PUD1 | PUD #1 GENERAL | 0.0597888892 | $912,079 | $912,079 | $54.53 | | |
| STATE | STATE SCHOOL PART 1 | 1.4940692947 | $912,079 | $912,079 | $1,362.71 | | |
| STATE2 | STATE SCHOOL PART 2 | 0.8050170049 | $912,079 | $912,079 | $734.24 | | |
| | Total Tax Rate: | 8.2653911500 | | | | | |
| | | | | Taxes w/Current Exemptions: | $7,538.68 | | |
| | | | | Taxes w/o Exemptions: | $7,538.68 | | |
Improvement / Building
| Improvement #1: | Residential Bldg | State Code: | 11 | 1902.0 sqft | Value: | $612,879 |
| Bathrooms (#): | 2 (FULL) | Bathrooms (#): | 1 (HALF) | | Bedrooms (#): | 2 | Exterior Wall: | SI/ST | | Fireplace: | SIN 1-GOOD | Floor Construction: | CONCR | | Foundation: | CONBL | Heating/Cooling: | HTWTR | | Roof Cover: | COMP |   |   |
|
| | Type | Description | Class CD | Sub Class CD | Year Built | Area |
| | MA | Main Area | 5- | 1S | 2007 | 1902.0 |
| | HDECK | House Deck | 4 | 1S | 2007 | 526.0 |
| | GBSMT | Basement Garage | 4 | 1S | 2007 | 528.0 |
| | BSMTF | House basement finished | 5 | 1S | 2007 | 421.5 |
| | CONCD | Concrete Drive | 4 | 1S | 2007 | 612.0 |
| | BSMTU | House basement unfinished | 4 | 1S | 2007 | 421.5 |
Sketch
Property Image
Land
| 1 | 5390-1135L | High Bank Waterfront with Unobstructed Views | 0.0000 | 0.00 | 0.00 | 0.00 | 1.00 | $299,200 | $0 |
Roll Value History
| 2026 | N/A | N/A | N/A | N/A | N/A |
| 2025 | $612,879 | $299,200 | $0 | $912,079 | $912,079 |
| 2024 | $612,879 | $299,200 | $0 | $912,079 | $912,079 |
| 2023 | $575,414 | $257,250 | $0 | $832,664 | $832,664 |
| 2022 | $549,259 | $240,000 | $0 | $789,259 | $789,259 |
Deed and Sales History
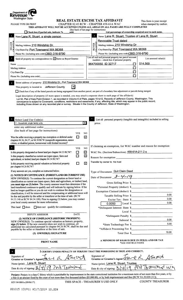
| 1 | 03/04/2019 | QCD | Quit Claim Deed | LANE R STUART | LANE R STUART REVOCABLE TRUST | | | | 131911 | |
| 2 | 08/17/2015 | QCD | Quit Claim Deed | | | | | | 123788 | |
| 3 | 05/16/2003 | SWD | Statutory Warranty Deed | TOY REVOCABLE TRUST | STUART, LANE R/PATRICIA A | 0 | 0 | $179,500.00 | 97294 | 0 |
Payout Agreement
| No payout information available.. |