Property
Account |
| Property ID: | 32766 | Abbreviated Legal Description: | KALA POINT CONDO #1 UNIT 1016 BLDG #1 |
| Parcel # / Geo ID: | 964900006 | Agent Code: | |
| Type: | Real | | |
| Tax Area: | 0111 - 1-50F1E1H2L1 | Land Use Code | 14 |
| Open Space: | N | DFL | N |
| Historic Property: | N | Remodel Property: | N |
| Multi-Family Redevelopment: | N | | |
| Township: | 30N | Section: | 26 |
| Range: | 1W |
Location |
| Address: | 30 HARBORVIEW DR #3 PORT TOWNSEND, WA 98368 | Mapsco: | 042/006 |
| Neighborhood: | CYCLE 5 CONDOMINIUMS - SD50 OUTSIDE CITY | Map ID: | |
| Neighborhood CD: | 5900 |
Owner |
| Name: | LOGAN D & SUSAN H BAILOR | Owner ID: | 10826 |
| Mailing Address: | 4020 MESA VERDE ST FORT COLLINS, CO 80525-9064 | % Ownership: | 100.0000000000% |
| | | Exemptions: | |
Pay Tax Due
Select the appropriate checkbox next to the year to be paid. Multiple years may be selected.
*Convenience Fee not included
Taxes and Assessment Details
Property Tax Information as of
03/11/2026
Click on "Statement Details" to expand or collapse a tax statement.
* Please enter a valid date ** Please enter a valid date *
Statement Details |
| 2026 | 22032 | STATE - STATE LEVY (SCHOOL) | $656.39 | $656.38 | $0.00 | $0.00 | $0.00 | $1312.77 |
| 2026 | 22032 | COUNTY - COUNTY LEVIES (CE, DD, VET, MH) | $262.43 | $262.42 | $0.00 | $0.00 | $0.00 | $524.85 |
| 2026 | 22032 | CONSERVE - CONSERVATION FUTURES | $7.87 | $7.87 | $0.00 | $0.00 | $0.00 | $15.74 |
| 2026 | 22032 | COROADS - COUNTY ROADS (ROADS, DIV TO CE) | $211.70 | $211.70 | $0.00 | $0.00 | $0.00 | $423.40 |
| 2026 | 22032 | PORTPT - PORT DISTRICT | $106.00 | $105.98 | $0.00 | $0.00 | $0.00 | $211.98 |
| 2026 | 22032 | PUD1 - PUD #1 | $17.07 | $17.07 | $0.00 | $0.00 | $0.00 | $34.14 |
| 2026 | 22032 | LIB1 - LIBRARY DIST #1 | $81.91 | $81.90 | $0.00 | $0.00 | $0.00 | $163.81 |
| 2026 | 22032 | HD2 - HOSP DIST #2 | $15.31 | $15.30 | $0.00 | $0.00 | $0.00 | $30.61 |
| 2026 | 22032 | SD50 - SCHOOL DIST #50 | $520.02 | $519.99 | $0.00 | $0.00 | $0.00 | $1040.01 |
| 2026 | 22032 | FD1 - FIRE DISTRICT #1 | $347.51 | $347.51 | $0.00 | $0.00 | $0.00 | $695.02 |
| 2026 | 22032 | EMS1 - FIRE DIST #1 EMS | $133.62 | $133.61 | $0.00 | $0.00 | $0.00 | $267.23 |
| 2026 | 22032 | JCCD - JC Conservation District | $2.55 | $2.55 | $0.00 | $0.00 | $0.00 | $5.10 |
| 2026 | 22032 | NWA - Noxious Weed Assessment | $2.98 | $2.97 | $0.00 | $0.00 | $0.00 | $5.95 |
| 2026 | 22032 | WAT - Clean Water District | $13.00 | $13.00 | $0.00 | $0.00 | $0.00 | $26.00 |
| 2026 | 22032 | TOTAL: | $2378.36 | $2378.25 | $0.00 | $0.00 | $0.00 | $4756.61 |
|
| 2026 | 22032 | $2378.36 | $2378.25 | $0.00 | $0.00 | $0.00 | $4756.61 |
Statement Details |
| 2025 | 22094 | STATE - STATE LEVY (SCHOOL) | $684.64 | $684.63 | $0.00 | $0.00 | $1369.27 | $0.00 |
| 2025 | 22094 | COUNTY - COUNTY LEVIES (CE, DD, VET, MH) | $269.24 | $269.22 | $0.00 | $0.00 | $538.46 | $0.00 |
| 2025 | 22094 | CONSERVE - CONSERVATION FUTURES | $8.08 | $8.07 | $0.00 | $0.00 | $16.15 | $0.00 |
| 2025 | 22094 | COROADS - COUNTY ROADS (ROADS, DIV TO CE) | $215.70 | $215.69 | $0.00 | $0.00 | $431.39 | $0.00 |
| 2025 | 22094 | PORTPT - PORT DISTRICT | $109.87 | $109.86 | $0.00 | $0.00 | $219.73 | $0.00 |
| 2025 | 22094 | PUD1 - PUD #1 | $17.62 | $17.61 | $0.00 | $0.00 | $35.23 | $0.00 |
| 2025 | 22094 | LIB1 - LIBRARY DIST #1 | $83.45 | $83.45 | $0.00 | $0.00 | $166.90 | $0.00 |
| 2025 | 22094 | HD2 - HOSP DIST #2 | $15.71 | $15.70 | $0.00 | $0.00 | $31.41 | $0.00 |
| 2025 | 22094 | SD50 - SCHOOL DIST #50 | $500.35 | $500.35 | $0.00 | $0.00 | $1000.70 | $0.00 |
| 2025 | 22094 | FD1 - FIRE DISTRICT #1 | $355.28 | $355.27 | $0.00 | $0.00 | $710.55 | $0.00 |
| 2025 | 22094 | EMS1 - FIRE DIST #1 EMS | $136.65 | $136.65 | $0.00 | $0.00 | $273.30 | $0.00 |
| 2025 | 22094 | JCCD - JC Conservation District | $2.55 | $2.55 | $0.00 | $0.00 | $5.10 | $0.00 |
| 2025 | 22094 | NWA - Noxious Weed Assessment | $2.15 | $2.15 | $0.00 | $0.00 | $4.30 | $0.00 |
| 2025 | 22094 | WAT - Clean Water District | $13.00 | $13.00 | $0.00 | $0.00 | $26.00 | $0.00 |
| 2025 | 22094 | TOTAL: | $2414.29 | $2414.20 | $0.00 | $0.00 | $4828.49 | $0.00 |
|
| 2025 | 22094 | $2414.29 | $2414.20 | $0.00 | $0.00 | $4828.49 | $0.00 |
Statement Details |
| 2024 | 22139 | STATE - STATE LEVY (SCHOOL) | $634.04 | $634.04 | $0.00 | $0.00 | $1268.08 | $0.00 |
| 2024 | 22139 | COUNTY - COUNTY LEVIES (CE, DD, VET, MH) | $271.31 | $271.30 | $0.00 | $0.00 | $542.61 | $0.00 |
| 2024 | 22139 | CONSERVE - CONSERVATION FUTURES | $8.14 | $8.13 | $0.00 | $0.00 | $16.27 | $0.00 |
| 2024 | 22139 | COROADS - COUNTY ROADS (ROADS, DIV TO CE) | $218.32 | $218.31 | $0.00 | $0.00 | $436.63 | $0.00 |
| 2024 | 22139 | PORTPT - PORT DISTRICT | $112.06 | $112.06 | $0.00 | $0.00 | $224.12 | $0.00 |
| 2024 | 22139 | PUD1 - PUD #1 | $17.82 | $17.82 | $0.00 | $0.00 | $35.64 | $0.00 |
| 2024 | 22139 | LIB1 - LIBRARY DIST #1 | $84.47 | $84.46 | $0.00 | $0.00 | $168.93 | $0.00 |
| 2024 | 22139 | HD2 - HOSP DIST #2 | $15.83 | $15.83 | $0.00 | $0.00 | $31.66 | $0.00 |
| 2024 | 22139 | SD50 - SCHOOL DIST #50 | $512.97 | $512.96 | $0.00 | $0.00 | $1025.93 | $0.00 |
| 2024 | 22139 | FD1 - FIRE DISTRICT #1 | $358.74 | $358.73 | $0.00 | $0.00 | $717.47 | $0.00 |
| 2024 | 22139 | EMS1 - FIRE DIST #1 EMS | $137.03 | $137.02 | $0.00 | $0.00 | $274.05 | $0.00 |
| 2024 | 22139 | JCCD - JC Conservation District | $2.55 | $2.55 | $0.00 | $0.00 | $5.10 | $0.00 |
| 2024 | 22139 | NWA - Noxious Weed Assessment | $2.15 | $2.15 | $0.00 | $0.00 | $4.30 | $0.00 |
| 2024 | 22139 | WAT - Clean Water District | $12.50 | $12.50 | $0.00 | $0.00 | $25.00 | $0.00 |
| 2024 | 22139 | TOTAL: | $2387.93 | $2387.86 | $0.00 | $0.00 | $4775.79 | $0.00 |
|
| 2024 | 22139 | $2387.93 | $2387.86 | $0.00 | $0.00 | $4775.79 | $0.00 |
Statement Details |
| 2023 | 22176 | STATE - STATE LEVY (SCHOOL) | $613.18 | $613.17 | $0.00 | $0.00 | $1226.35 | $0.00 |
| 2023 | 22176 | COUNTY - COUNTY LEVIES (CE, DD, VET, MH) | $267.58 | $267.57 | $0.00 | $0.00 | $535.15 | $0.00 |
| 2023 | 22176 | CONSERVE - CONSERVATION FUTURES | $8.03 | $8.02 | $0.00 | $0.00 | $16.05 | $0.00 |
| 2023 | 22176 | COROADS - COUNTY ROADS (ROADS, DIV TO CE) | $216.49 | $216.48 | $0.00 | $0.00 | $432.97 | $0.00 |
| 2023 | 22176 | PORTPT - PORT DISTRICT | $112.72 | $112.71 | $0.00 | $0.00 | $225.43 | $0.00 |
| 2023 | 22176 | PUD1 - PUD #1 | $17.74 | $17.73 | $0.00 | $0.00 | $35.47 | $0.00 |
| 2023 | 22176 | LIB1 - LIBRARY DIST #1 | $83.76 | $83.75 | $0.00 | $0.00 | $167.51 | $0.00 |
| 2023 | 22176 | HD2 - HOSP DIST #2 | $15.62 | $15.61 | $0.00 | $0.00 | $31.23 | $0.00 |
| 2023 | 22176 | SD50 - SCHOOL DIST #50 | $486.57 | $486.56 | $0.00 | $0.00 | $973.13 | $0.00 |
| 2023 | 22176 | FD1 - FIRE DISTRICT #1 | $220.43 | $220.42 | $0.00 | $0.00 | $440.85 | $0.00 |
| 2023 | 22176 | EMS1 - FIRE DIST #1 EMS | $93.77 | $93.76 | $0.00 | $0.00 | $187.53 | $0.00 |
| 2023 | 22176 | JCCD - JC Conservation District | $2.55 | $2.55 | $0.00 | $0.00 | $5.10 | $0.00 |
| 2023 | 22176 | NWA - Noxious Weed Assessment | $2.15 | $2.15 | $0.00 | $0.00 | $4.30 | $0.00 |
| 2023 | 22176 | WAT - Clean Water District | $12.00 | $12.00 | $0.00 | $0.00 | $24.00 | $0.00 |
| 2023 | 22176 | TOTAL: | $2152.59 | $2152.48 | $0.00 | $0.00 | $4305.07 | $0.00 |
|
| 2023 | 22176 | $2152.59 | $2152.48 | $0.00 | $0.00 | $4305.07 | $0.00 |
Values
| (+) Improvement Homesite Value: | + | $0 | |
| (+) Improvement Non-Homesite Value: | + | $361,000 | |
| (+) Land Homesite Value: | + | $0 | |
| (+) Land Non-Homesite Value: | + | $210,000 | |
| (+) Curr Use (HS): | + | $0 | $0 |
| (+) Curr Use (NHS): | + | $0 | $0 |
| | | -------------------------- | |
| (=) Market Value: | = | $571,000 | |
| (–) Productivity Loss: | – | $0 | |
| | | -------------------------- | |
| (=) Subtotal: | = | $571,000 | |
| (+) Senior Appraised Value: | + | $0 | |
| (+) Non-Senior Appraised Value: | + | $571,000 | |
| | | -------------------------- | |
| (=) Total Appraised Value: | = | $571,000 | |
| (–) Senior Exemption Loss: | – | $0 | |
| (–) Exemption Loss: | – | $0 | |
| | | -------------------------- | |
| (=) Taxable Value: | = | $571,000 | |
Taxing Jurisdiction
| Owner: | LOGAN D & SUSAN H BAILOR | | |
| % Ownership: | 100.0000000000% | | |
| Total Value: | $571,000 | | |
| Tax Area: | 0111 - 1-50F1E1H2L1 |
| CE | COUNTY CURRENT EXPENSE | 0.9034619479 | $571,000 | $571,000 | $515.88 | | |
| CNTYDD | DEVELOPMENTAL DISABILITIES | 0.0052121823 | $571,000 | $571,000 | $2.98 | | |
| CNTYVET | VETERANS RELIEF | 0.0052777810 | $571,000 | $571,000 | $3.01 | | |
| MENTAL | MENTAL HEALTH | 0.0052121823 | $571,000 | $571,000 | $2.98 | | |
| ROADS | COUNTY ROADS | 0.7415066410 | $571,000 | $571,000 | $423.40 | | |
| ROADSCU | COUNTY ROADS TO CUR EXP | 0.0000000000 | $571,000 | $571,000 | $0.00 | | |
| HOSP2CASH | HOSP DIST #2 GENERAL | 0.0536075306 | $571,000 | $571,000 | $30.61 | | |
| SCH50BOND | SCHOOL DIST #50 BOND 2016 | 0.5377451389 | $571,000 | $571,000 | $307.05 | | |
| SCH50CP | SCHOOL DIST #50 CAP PROJ | 0.4573475088 | $571,000 | $571,000 | $261.15 | | |
| SCH50MO | SCHOOL DIST #50 EP & O | 0.8262822886 | $571,000 | $571,000 | $471.81 | | |
| CONSERVE | CONSERVATION FUTURES | 0.0275621078 | $571,000 | $571,000 | $15.74 | | |
| EMS1 | FIRE DIST #1 EMS | 0.4679948282 | $571,000 | $571,000 | $267.23 | | |
| FD1 | FIRE DIST #1 GENERAL | 1.2171942929 | $571,000 | $571,000 | $695.02 | | |
| LIB1 | LIBRARY DIST #1 GENERAL | 0.2868827388 | $571,000 | $571,000 | $163.81 | | |
| PORTPT | PORT OF PT GENERAL | 0.1134941229 | $571,000 | $571,000 | $64.81 | | |
| PORTPTIDD | PORT OF PT IDD 2019 | 0.2577346692 | $571,000 | $571,000 | $147.17 | | |
| PUD1 | PUD #1 GENERAL | 0.0597888892 | $571,000 | $571,000 | $34.14 | | |
| STATE | STATE SCHOOL PART 1 | 1.4940692947 | $571,000 | $571,000 | $853.11 | | |
| STATE2 | STATE SCHOOL PART 2 | 0.8050170049 | $571,000 | $571,000 | $459.66 | | |
| | Total Tax Rate: | 8.2653911500 | | | | | |
| | | | | Taxes w/Current Exemptions: | $4,719.56 | | |
| | | | | Taxes w/o Exemptions: | $4,719.56 | | |
Improvement / Building
| Improvement #1: | Residential Bldg | State Code: | 14 | 1624.0 sqft | Value: | $361,000 |
| | Type | Description | Class CD | Sub Class CD | Year Built | Area |
| | MA | Main Area | * | RB250 | 1977 | 1324.0 |
| | MA | Main Area | * | RB100 | 1977 | 300.0 |
Sketch
| No sketches available for this property. |
Property Image
Land
| 1 | 9649-4145S | | 0.0000 | 0.00 | 0.00 | 0.00 | 1.00 | $210,000 | $0 |
Roll Value History
| 2026 | N/A | N/A | N/A | N/A | N/A |
| 2025 | $361,000 | $210,000 | $0 | $571,000 | $571,000 |
| 2024 | $361,000 | $210,000 | $0 | $571,000 | $571,000 |
| 2023 | $348,096 | $200,000 | $0 | $548,096 | $548,096 |
| 2022 | $320,928 | $200,000 | $0 | $520,928 | $520,928 |
Deed and Sales History
| 1 | 06/18/2018 | SWD | Statutory Warranty Deed | HENRY I NICHOLS | LOGAN D & SUSAN H BAILOR | | | $375,000.00 | 130418 | |
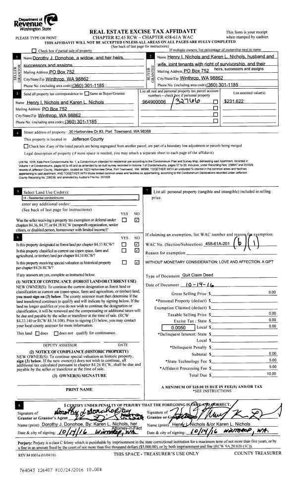
| 2 | 10/14/2016 | QCD | Quit Claim Deed | DOROTHY J DONOHOE | HENRY I NICHOLS | | | | 126487 | |
| 3 | 07/07/2006 | SWD | Statutory Warranty Deed | WENIGER, DAVID & CATHERIN | DONOHOE, DOROTHY JANE | | | $315,000.00 | 107085 | 0 |
| 4 | 12/23/1997 | SWD | Statutory Warranty Deed | WHEELER REVOCABLE TRUST | WENIGER, DAVID M/CATHERINE M | 0 | 0 | $160,000.00 | 83576 | 0 |
| 5 | 11/28/1993 | SWD | Statutory Warranty Deed | WHEELER, RENATE | WHEELER REVOC INTER VIVOS TR | 0 | 0 | $0.00 | 72785 | 0 |
| 6 | 06/06/1993 | QCD | Quit Claim Deed | WHEELER, RENATE CROOM | WHEELER, JOSEPH/RENATE | 0 | 0 | $0.00 | 71314 | 0 |
Payout Agreement
| No payout information available.. |