Property
Account |
| Property ID: | 32806 | Abbreviated Legal Description: | KALA POINT #3 LOT 132 SUBJ TO EASE |
| Parcel # / Geo ID: | 965000008 | Agent Code: | |
| Type: | Real | | |
| Tax Area: | 0111 - 1-50F1E1H2L1 | Land Use Code | 11 |
| Open Space: | N | DFL | N |
| Historic Property: | N | Remodel Property: | N |
| Multi-Family Redevelopment: | N | | |
| Township: | 30N | Section: | 27 |
| Range: | 1W |
Location |
| Address: | 831 KALA POINT DR PORT TOWNSEND, WA 98368 | Mapsco: | 045/008 |
| Neighborhood: | KALA PT - DIV 1, 2, PART OF 3 & 4 | Map ID: | |
| Neighborhood CD: | 5390 |
Owner |
| Name: | ANNE K ST GEORGE | Owner ID: | 111668 |
| Mailing Address: | 831 KALA POINT DR PORT TOWNSEND, WA 98368 | % Ownership: | 100.0000000000% |
| | | Exemptions: | |
Pay Tax Due
Select the appropriate checkbox next to the year to be paid. Multiple years may be selected.
*Convenience Fee not included
Taxes and Assessment Details
Property Tax Information as of
03/10/2026
Click on "Statement Details" to expand or collapse a tax statement.
* Please enter a valid date ** Please enter a valid date *
Statement Details |
| 2026 | 22072 | STATE - STATE LEVY (SCHOOL) | $803.77 | $803.76 | $0.00 | $0.00 | $0.00 | $1607.53 |
| 2026 | 22072 | COUNTY - COUNTY LEVIES (CE, DD, VET, MH) | $321.35 | $321.33 | $0.00 | $0.00 | $0.00 | $642.68 |
| 2026 | 22072 | CONSERVE - CONSERVATION FUTURES | $9.64 | $9.63 | $0.00 | $0.00 | $0.00 | $19.27 |
| 2026 | 22072 | COROADS - COUNTY ROADS (ROADS, DIV TO CE) | $259.24 | $259.23 | $0.00 | $0.00 | $0.00 | $518.47 |
| 2026 | 22072 | PORTPT - PORT DISTRICT | $129.79 | $129.78 | $0.00 | $0.00 | $0.00 | $259.57 |
| 2026 | 22072 | PUD1 - PUD #1 | $20.90 | $20.90 | $0.00 | $0.00 | $0.00 | $41.80 |
| 2026 | 22072 | LIB1 - LIBRARY DIST #1 | $100.30 | $100.29 | $0.00 | $0.00 | $0.00 | $200.59 |
| 2026 | 22072 | HD2 - HOSP DIST #2 | $18.74 | $18.74 | $0.00 | $0.00 | $0.00 | $37.48 |
| 2026 | 22072 | SD50 - SCHOOL DIST #50 | $636.76 | $636.76 | $0.00 | $0.00 | $0.00 | $1273.52 |
| 2026 | 22072 | FD1 - FIRE DISTRICT #1 | $425.54 | $425.53 | $0.00 | $0.00 | $0.00 | $851.07 |
| 2026 | 22072 | EMS1 - FIRE DIST #1 EMS | $163.62 | $163.61 | $0.00 | $0.00 | $0.00 | $327.23 |
| 2026 | 22072 | FP - DNR Forest Fire Protection Assmt | $8.50 | $8.50 | $0.00 | $0.00 | $0.00 | $17.00 |
| 2026 | 22072 | FPLCA - DNR Landowner Contingency Assmt | $3.00 | $3.00 | $0.00 | $0.00 | $0.00 | $6.00 |
| 2026 | 22072 | JCCD - JC Conservation District | $2.55 | $2.55 | $0.00 | $0.00 | $0.00 | $5.10 |
| 2026 | 22072 | NWA - Noxious Weed Assessment | $2.98 | $2.97 | $0.00 | $0.00 | $0.00 | $5.95 |
| 2026 | 22072 | OSS - On Site Septic | $23.10 | $23.10 | $0.00 | $0.00 | $0.00 | $46.20 |
| 2026 | 22072 | WAT - Clean Water District | $13.00 | $13.00 | $0.00 | $0.00 | $0.00 | $26.00 |
| 2026 | 22072 | FP ADMIN - FP ADMIN | $0.50 | $0.00 | $0.00 | $0.00 | $0.00 | $0.50 |
| 2026 | 22072 | TOTAL: | $2943.28 | $2942.68 | $0.00 | $0.00 | $0.00 | $5885.96 |
|
| 2026 | 22072 | $2943.28 | $2942.68 | $0.00 | $0.00 | $0.00 | $5885.96 |
Statement Details |
| 2025 | 22134 | STATE - STATE LEVY (SCHOOL) | $838.36 | $838.36 | $0.00 | $0.00 | $1676.72 | $0.00 |
| 2025 | 22134 | COUNTY - COUNTY LEVIES (CE, DD, VET, MH) | $329.69 | $329.67 | $0.00 | $0.00 | $659.36 | $0.00 |
| 2025 | 22134 | CONSERVE - CONSERVATION FUTURES | $9.89 | $9.88 | $0.00 | $0.00 | $19.77 | $0.00 |
| 2025 | 22134 | COROADS - COUNTY ROADS (ROADS, DIV TO CE) | $264.13 | $264.12 | $0.00 | $0.00 | $528.25 | $0.00 |
| 2025 | 22134 | PORTPT - PORT DISTRICT | $134.53 | $134.52 | $0.00 | $0.00 | $269.05 | $0.00 |
| 2025 | 22134 | PUD1 - PUD #1 | $21.57 | $21.57 | $0.00 | $0.00 | $43.14 | $0.00 |
| 2025 | 22134 | LIB1 - LIBRARY DIST #1 | $102.19 | $102.19 | $0.00 | $0.00 | $204.38 | $0.00 |
| 2025 | 22134 | HD2 - HOSP DIST #2 | $19.24 | $19.23 | $0.00 | $0.00 | $38.47 | $0.00 |
| 2025 | 22134 | SD50 - SCHOOL DIST #50 | $612.71 | $612.70 | $0.00 | $0.00 | $1225.41 | $0.00 |
| 2025 | 22134 | FD1 - FIRE DISTRICT #1 | $435.05 | $435.05 | $0.00 | $0.00 | $870.10 | $0.00 |
| 2025 | 22134 | EMS1 - FIRE DIST #1 EMS | $167.33 | $167.33 | $0.00 | $0.00 | $334.66 | $0.00 |
| 2025 | 22134 | FP - DNR Forest Fire Protection Assmt | $8.50 | $8.50 | $0.00 | $0.00 | $17.00 | $0.00 |
| 2025 | 22134 | FPLCA - DNR Landowner Contingency Assmt | $3.00 | $3.00 | $0.00 | $0.00 | $6.00 | $0.00 |
| 2025 | 22134 | JCCD - JC Conservation District | $2.55 | $2.55 | $0.00 | $0.00 | $5.10 | $0.00 |
| 2025 | 22134 | NWA - Noxious Weed Assessment | $2.15 | $2.15 | $0.00 | $0.00 | $4.30 | $0.00 |
| 2025 | 22134 | OSS - On Site Septic | $21.50 | $21.50 | $0.00 | $0.00 | $43.00 | $0.00 |
| 2025 | 22134 | WAT - Clean Water District | $13.00 | $13.00 | $0.00 | $0.00 | $26.00 | $0.00 |
| 2025 | 22134 | FP ADMIN - FP ADMIN | $0.50 | $0.00 | $0.00 | $0.00 | $0.50 | $0.00 |
| 2025 | 22134 | TOTAL: | $2985.89 | $2985.32 | $0.00 | $0.00 | $5971.21 | $0.00 |
|
| 2025 | 22134 | $2985.89 | $2985.32 | $0.00 | $0.00 | $5971.21 | $0.00 |
Statement Details |
| 2024 | 22179 | STATE - STATE LEVY (SCHOOL) | $721.95 | $721.95 | $0.00 | $0.00 | $1443.90 | $0.00 |
| 2024 | 22179 | COUNTY - COUNTY LEVIES (CE, DD, VET, MH) | $308.95 | $308.91 | $0.00 | $0.00 | $617.86 | $0.00 |
| 2024 | 22179 | CONSERVE - CONSERVATION FUTURES | $9.27 | $9.26 | $0.00 | $0.00 | $18.53 | $0.00 |
| 2024 | 22179 | COROADS - COUNTY ROADS (ROADS, DIV TO CE) | $248.60 | $248.58 | $0.00 | $0.00 | $497.18 | $0.00 |
| 2024 | 22179 | PORTPT - PORT DISTRICT | $127.61 | $127.59 | $0.00 | $0.00 | $255.20 | $0.00 |
| 2024 | 22179 | PUD1 - PUD #1 | $20.29 | $20.29 | $0.00 | $0.00 | $40.58 | $0.00 |
| 2024 | 22179 | LIB1 - LIBRARY DIST #1 | $96.18 | $96.17 | $0.00 | $0.00 | $192.35 | $0.00 |
| 2024 | 22179 | HD2 - HOSP DIST #2 | $18.03 | $18.02 | $0.00 | $0.00 | $36.05 | $0.00 |
| 2024 | 22179 | SD50 - SCHOOL DIST #50 | $584.10 | $584.08 | $0.00 | $0.00 | $1168.18 | $0.00 |
| 2024 | 22179 | FD1 - FIRE DISTRICT #1 | $408.48 | $408.48 | $0.00 | $0.00 | $816.96 | $0.00 |
| 2024 | 22179 | EMS1 - FIRE DIST #1 EMS | $156.03 | $156.02 | $0.00 | $0.00 | $312.05 | $0.00 |
| 2024 | 22179 | FP - DNR Forest Fire Protection Assmt | $8.50 | $8.50 | $0.00 | $0.00 | $17.00 | $0.00 |
| 2024 | 22179 | FPLCA - DNR Landowner Contingency Assmt | $3.00 | $3.00 | $0.00 | $0.00 | $6.00 | $0.00 |
| 2024 | 22179 | JCCD - JC Conservation District | $2.55 | $2.55 | $0.00 | $0.00 | $5.10 | $0.00 |
| 2024 | 22179 | NWA - Noxious Weed Assessment | $2.15 | $2.15 | $0.00 | $0.00 | $4.30 | $0.00 |
| 2024 | 22179 | OSS - On Site Septic | $21.00 | $21.00 | $0.00 | $0.00 | $42.00 | $0.00 |
| 2024 | 22179 | WAT - Clean Water District | $12.50 | $12.50 | $0.00 | $0.00 | $25.00 | $0.00 |
| 2024 | 22179 | FP ADMIN - FP ADMIN | $0.50 | $0.00 | $0.00 | $0.00 | $0.50 | $0.00 |
| 2024 | 22179 | TOTAL: | $2749.69 | $2749.05 | $0.00 | $0.00 | $5498.74 | $0.00 |
|
| 2024 | 22179 | $2749.69 | $2749.05 | $0.00 | $0.00 | $5498.74 | $0.00 |
Statement Details |
| 2023 | 22216 | STATE - STATE LEVY (SCHOOL) | $683.28 | $683.28 | $0.00 | $0.00 | $1366.56 | $0.00 |
| 2023 | 22216 | COUNTY - COUNTY LEVIES (CE, DD, VET, MH) | $298.19 | $298.15 | $0.00 | $0.00 | $596.34 | $0.00 |
| 2023 | 22216 | CONSERVE - CONSERVATION FUTURES | $8.94 | $8.94 | $0.00 | $0.00 | $17.88 | $0.00 |
| 2023 | 22216 | COROADS - COUNTY ROADS (ROADS, DIV TO CE) | $241.24 | $241.23 | $0.00 | $0.00 | $482.47 | $0.00 |
| 2023 | 22216 | PORTPT - PORT DISTRICT | $125.61 | $125.59 | $0.00 | $0.00 | $251.20 | $0.00 |
| 2023 | 22216 | PUD1 - PUD #1 | $19.77 | $19.76 | $0.00 | $0.00 | $39.53 | $0.00 |
| 2023 | 22216 | LIB1 - LIBRARY DIST #1 | $93.33 | $93.33 | $0.00 | $0.00 | $186.66 | $0.00 |
| 2023 | 22216 | HD2 - HOSP DIST #2 | $17.40 | $17.39 | $0.00 | $0.00 | $34.79 | $0.00 |
| 2023 | 22216 | SD50 - SCHOOL DIST #50 | $542.20 | $542.19 | $0.00 | $0.00 | $1084.39 | $0.00 |
| 2023 | 22216 | FD1 - FIRE DISTRICT #1 | $245.63 | $245.62 | $0.00 | $0.00 | $491.25 | $0.00 |
| 2023 | 22216 | EMS1 - FIRE DIST #1 EMS | $104.49 | $104.48 | $0.00 | $0.00 | $208.97 | $0.00 |
| 2023 | 22216 | FP - DNR Forest Fire Protection Assmt | $8.50 | $8.50 | $0.00 | $0.00 | $17.00 | $0.00 |
| 2023 | 22216 | FPLCA - DNR Landowner Contingency Assmt | $3.00 | $3.00 | $0.00 | $0.00 | $6.00 | $0.00 |
| 2023 | 22216 | JCCD - JC Conservation District | $2.55 | $2.55 | $0.00 | $0.00 | $5.10 | $0.00 |
| 2023 | 22216 | NWA - Noxious Weed Assessment | $2.15 | $2.15 | $0.00 | $0.00 | $4.30 | $0.00 |
| 2023 | 22216 | OSS - On Site Septic | $20.50 | $20.50 | $0.00 | $0.00 | $41.00 | $0.00 |
| 2023 | 22216 | WAT - Clean Water District | $12.00 | $12.00 | $0.00 | $0.00 | $24.00 | $0.00 |
| 2023 | 22216 | FP ADMIN - FP ADMIN | $0.50 | $0.00 | $0.00 | $0.00 | $0.50 | $0.00 |
| 2023 | 22216 | TOTAL: | $2429.28 | $2428.66 | $0.00 | $0.00 | $4857.94 | $0.00 |
|
| 2023 | 22216 | $2429.28 | $2428.66 | $0.00 | $0.00 | $4857.94 | $0.00 |
Values
| (+) Improvement Homesite Value: | + | $0 | |
| (+) Improvement Non-Homesite Value: | + | $581,507 | |
| (+) Land Homesite Value: | + | $0 | |
| (+) Land Non-Homesite Value: | + | $117,700 | |
| (+) Curr Use (HS): | + | $0 | $0 |
| (+) Curr Use (NHS): | + | $0 | $0 |
| | | -------------------------- | |
| (=) Market Value: | = | $699,207 | |
| (–) Productivity Loss: | – | $0 | |
| | | -------------------------- | |
| (=) Subtotal: | = | $699,207 | |
| (+) Senior Appraised Value: | + | $0 | |
| (+) Non-Senior Appraised Value: | + | $699,207 | |
| | | -------------------------- | |
| (=) Total Appraised Value: | = | $699,207 | |
| (–) Senior Exemption Loss: | – | $0 | |
| (–) Exemption Loss: | – | $0 | |
| | | -------------------------- | |
| (=) Taxable Value: | = | $699,207 | |
Taxing Jurisdiction
| Owner: | ANNE K ST GEORGE | | |
| % Ownership: | 100.0000000000% | | |
| Total Value: | $699,207 | | |
| Tax Area: | 0111 - 1-50F1E1H2L1 |
| CE | COUNTY CURRENT EXPENSE | 0.9034619479 | $699,207 | $699,207 | $631.71 | | |
| CNTYDD | DEVELOPMENTAL DISABILITIES | 0.0052121823 | $699,207 | $699,207 | $3.64 | | |
| CNTYVET | VETERANS RELIEF | 0.0052777810 | $699,207 | $699,207 | $3.69 | | |
| MENTAL | MENTAL HEALTH | 0.0052121823 | $699,207 | $699,207 | $3.64 | | |
| ROADS | COUNTY ROADS | 0.7415066410 | $699,207 | $699,207 | $518.47 | | |
| ROADSCU | COUNTY ROADS TO CUR EXP | 0.0000000000 | $699,207 | $699,207 | $0.00 | | |
| HOSP2CASH | HOSP DIST #2 GENERAL | 0.0536075306 | $699,207 | $699,207 | $37.48 | | |
| SCH50BOND | SCHOOL DIST #50 BOND 2016 | 0.5377451389 | $699,207 | $699,207 | $376.00 | | |
| SCH50CP | SCHOOL DIST #50 CAP PROJ | 0.4573475088 | $699,207 | $699,207 | $319.78 | | |
| SCH50MO | SCHOOL DIST #50 EP & O | 0.8262822886 | $699,207 | $699,207 | $577.74 | | |
| CONSERVE | CONSERVATION FUTURES | 0.0275621078 | $699,207 | $699,207 | $19.27 | | |
| EMS1 | FIRE DIST #1 EMS | 0.4679948282 | $699,207 | $699,207 | $327.23 | | |
| FD1 | FIRE DIST #1 GENERAL | 1.2171942929 | $699,207 | $699,207 | $851.07 | | |
| LIB1 | LIBRARY DIST #1 GENERAL | 0.2868827388 | $699,207 | $699,207 | $200.59 | | |
| PORTPT | PORT OF PT GENERAL | 0.1134941229 | $699,207 | $699,207 | $79.36 | | |
| PORTPTIDD | PORT OF PT IDD 2019 | 0.2577346692 | $699,207 | $699,207 | $180.21 | | |
| PUD1 | PUD #1 GENERAL | 0.0597888892 | $699,207 | $699,207 | $41.80 | | |
| STATE | STATE SCHOOL PART 1 | 1.4940692947 | $699,207 | $699,207 | $1,044.66 | | |
| STATE2 | STATE SCHOOL PART 2 | 0.8050170049 | $699,207 | $699,207 | $562.87 | | |
| | Total Tax Rate: | 8.2653911500 | | | | | |
| | | | | Taxes w/Current Exemptions: | $5,779.21 | | |
| | | | | Taxes w/o Exemptions: | $5,779.21 | | |
Improvement / Building
| Improvement #1: | Residential Bldg | State Code: | 11 | 1658.0 sqft | Value: | $581,507 |
| Bathrooms (#): | 2 (FULL) | Bedrooms (#): | 2 | | Exterior Wall: | SI/ST | Foundation: | CONPR | | Heating/Cooling: | HPUMP | Roof Cover: | COMP |
|
| | Type | Description | Class CD | Sub Class CD | Year Built | Area |
| | MA | Main Area | 5 | 1S | 2020 | 1658.0 |
| | GATT | House Attached Garage | 5 | 1S | 2020 | 502.0 |
| | HDECK | House Deck | 5 | 1S | 2020 | 240.0 |
| | HWPOR | House Wood Porch | 5 | 1S | 2020 | 372.0 |
| | CONCD | Concrete Drive | 5 | 1S | 2020 | 500.0 |
Sketch
Property Image
Land
| 1 | 5390-1175L | | 0.0000 | 0.00 | 0.00 | 0.00 | 1.00 | $117,700 | $0 |
Roll Value History
| 2026 | N/A | N/A | N/A | N/A | N/A |
| 2025 | $581,507 | $117,700 | $0 | $699,207 | $699,207 |
| 2024 | $581,507 | $117,700 | $0 | $699,207 | $699,207 |
| 2023 | $513,844 | $110,250 | $0 | $624,094 | $624,094 |
| 2022 | $490,488 | $90,000 | $0 | $580,488 | $580,488 |
Deed and Sales History
| 1 | 10/07/2024 | SWD | Statutory Warranty Deed | JULIE A ARNESTAD | ANNE K ST GEORGE | | | $774,900.00 | 143400 | |
| 2 | 10/20/2020 | SWD | Statutory Warranty Deed | DOUGLAS M HATHON | JULIE A ARNESTAD | | | $575,000.00 | 135424 | |
| 3 | 06/03/2020 | QCD | Quit Claim Deed | DOUG & SANDY HATHON | DOUGLAS M HATHON | | | | 134428 | |
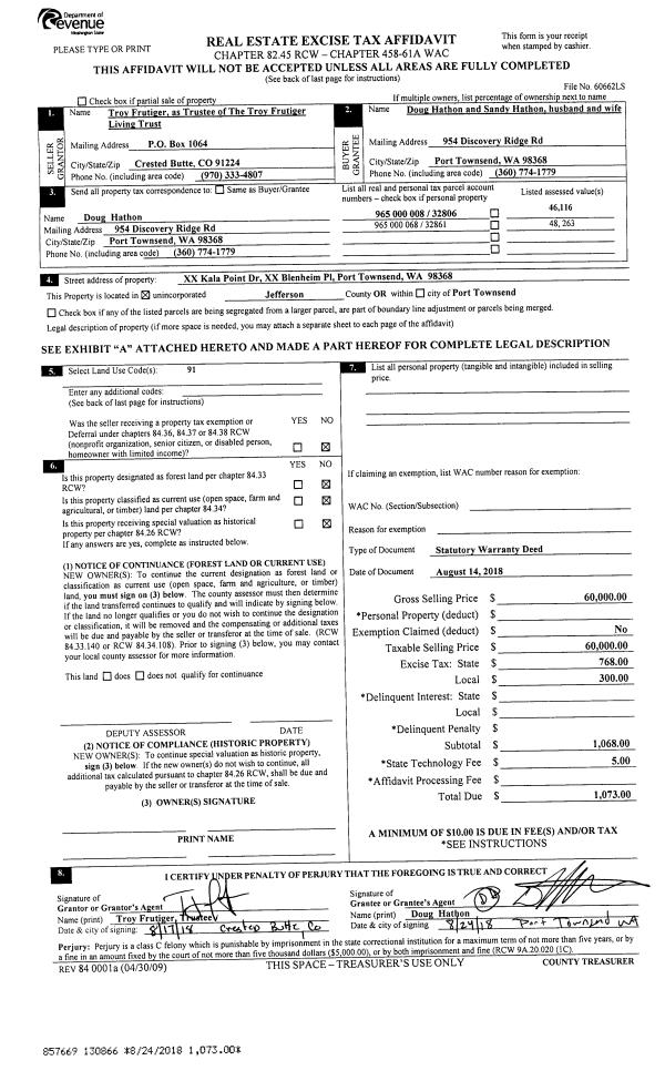
| 4 | 08/14/2018 | SWD | Statutory Warranty Deed | TROY FRUTIGER TRSTEE | DOUG & SANDY HATHON | | | $0.00 | 130866 | |
| 5 | 09/01/2010 | QCD | Quit Claim Deed | FRUTIGER, TROY | FRUTIGER, TROY TRUSTEE OF THE | 0 | 0 | $0.00 | 114932 | 0 |
| 6 | 04/16/2007 | SWD | Statutory Warranty Deed | CARROLL JR, STEPHEN G | FRUTIGER, TROY | | | $0.00 | 109059 | 0 |
| 7 | 04/13/2007 | SWD | Statutory Warranty Deed | CARROLL, JR, STEPHEN | FRUTIGER, TROY | | | $88,000.00 | 109025 | 0 |
| 8 | 07/21/1998 | SWD | Statutory Warranty Deed | CONNORS, GERAL THOMAS ET | CARROLL, STEPHEN G JR | 0 | 0 | $22,000.00 | 84933 | 0 |
Payout Agreement
| No payout information available.. |