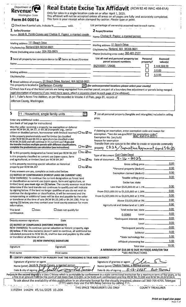
Property
Account |
| Property ID: | 32830 | Abbreviated Legal Description: | KALA POINT #3 LOT 234 |
| Parcel # / Geo ID: | 965000036 | Agent Code: | |
| Type: | Real | | |
| Tax Area: | 0111 - 1-50F1E1H2L1 | Land Use Code | 11 |
| Open Space: | N | DFL | N |
| Historic Property: | N | Remodel Property: | N |
| Multi-Family Redevelopment: | N | | |
| Township: | 30N | Section: | 27 |
| Range: | 1W |
Location |
| Address: | 92 BAYCLIFF DR PORT TOWNSEND, WA 98368 | Mapsco: | 045/036 |
| Neighborhood: | KALA PT - DIV 3(PART) & DIV 5 - 10, THE HEIGHTS | Map ID: | |
| Neighborhood CD: | 5391 |
Owner |
| Name: | SHARON M CARTER LIVING TRUST | Owner ID: | 112626 |
| Mailing Address: | SHARON M CARTER TRUSTEE 92 BAYCLIFF DR PORT TOWNSEND, WA 98368-9587 | % Ownership: | 100.0000000000% |
| | | Exemptions: | |
Pay Tax Due
Select the appropriate checkbox next to the year to be paid. Multiple years may be selected.
*Convenience Fee not included
Taxes and Assessment Details
Property Tax Information as of
03/10/2026
Click on "Statement Details" to expand or collapse a tax statement.
* Please enter a valid date ** Please enter a valid date *
Statement Details |
| 2026 | 22096 | STATE - STATE LEVY (SCHOOL) | $841.78 | $841.77 | $0.00 | $0.00 | $0.00 | $1683.55 |
| 2026 | 22096 | COUNTY - COUNTY LEVIES (CE, DD, VET, MH) | $336.54 | $336.54 | $0.00 | $0.00 | $0.00 | $673.08 |
| 2026 | 22096 | CONSERVE - CONSERVATION FUTURES | $10.09 | $10.09 | $0.00 | $0.00 | $0.00 | $20.18 |
| 2026 | 22096 | COROADS - COUNTY ROADS (ROADS, DIV TO CE) | $271.49 | $271.49 | $0.00 | $0.00 | $0.00 | $542.98 |
| 2026 | 22096 | PORTPT - PORT DISTRICT | $135.93 | $135.91 | $0.00 | $0.00 | $0.00 | $271.84 |
| 2026 | 22096 | PUD1 - PUD #1 | $21.89 | $21.89 | $0.00 | $0.00 | $0.00 | $43.78 |
| 2026 | 22096 | LIB1 - LIBRARY DIST #1 | $105.04 | $105.03 | $0.00 | $0.00 | $0.00 | $210.07 |
| 2026 | 22096 | HD2 - HOSP DIST #2 | $19.63 | $19.63 | $0.00 | $0.00 | $0.00 | $39.26 |
| 2026 | 22096 | SD50 - SCHOOL DIST #50 | $666.87 | $666.86 | $0.00 | $0.00 | $0.00 | $1333.73 |
| 2026 | 22096 | FD1 - FIRE DISTRICT #1 | $445.66 | $445.65 | $0.00 | $0.00 | $0.00 | $891.31 |
| 2026 | 22096 | EMS1 - FIRE DIST #1 EMS | $171.35 | $171.35 | $0.00 | $0.00 | $0.00 | $342.70 |
| 2026 | 22096 | FP - DNR Forest Fire Protection Assmt | $8.50 | $8.50 | $0.00 | $0.00 | $0.00 | $17.00 |
| 2026 | 22096 | FPLCA - DNR Landowner Contingency Assmt | $3.00 | $3.00 | $0.00 | $0.00 | $0.00 | $6.00 |
| 2026 | 22096 | JCCD - JC Conservation District | $2.55 | $2.55 | $0.00 | $0.00 | $0.00 | $5.10 |
| 2026 | 22096 | NWA - Noxious Weed Assessment | $2.98 | $2.97 | $0.00 | $0.00 | $0.00 | $5.95 |
| 2026 | 22096 | OSS - On Site Septic | $23.10 | $23.10 | $0.00 | $0.00 | $0.00 | $46.20 |
| 2026 | 22096 | WAT - Clean Water District | $13.00 | $13.00 | $0.00 | $0.00 | $0.00 | $26.00 |
| 2026 | 22096 | FP ADMIN - FP ADMIN | $0.50 | $0.00 | $0.00 | $0.00 | $0.00 | $0.50 |
| 2026 | 22096 | TOTAL: | $3079.90 | $3079.33 | $0.00 | $0.00 | $0.00 | $6159.23 |
|
| 2026 | 22096 | $3079.90 | $3079.33 | $0.00 | $0.00 | $0.00 | $6159.23 |
Statement Details |
| 2025 | 22158 | STATE - STATE LEVY (SCHOOL) | $878.00 | $878.00 | $0.00 | $0.00 | $1756.00 | $0.00 |
| 2025 | 22158 | COUNTY - COUNTY LEVIES (CE, DD, VET, MH) | $345.28 | $345.26 | $0.00 | $0.00 | $690.54 | $0.00 |
| 2025 | 22158 | CONSERVE - CONSERVATION FUTURES | $10.36 | $10.35 | $0.00 | $0.00 | $20.71 | $0.00 |
| 2025 | 22158 | COROADS - COUNTY ROADS (ROADS, DIV TO CE) | $276.62 | $276.61 | $0.00 | $0.00 | $553.23 | $0.00 |
| 2025 | 22158 | PORTPT - PORT DISTRICT | $140.89 | $140.88 | $0.00 | $0.00 | $281.77 | $0.00 |
| 2025 | 22158 | PUD1 - PUD #1 | $22.59 | $22.59 | $0.00 | $0.00 | $45.18 | $0.00 |
| 2025 | 22158 | LIB1 - LIBRARY DIST #1 | $107.02 | $107.02 | $0.00 | $0.00 | $214.04 | $0.00 |
| 2025 | 22158 | HD2 - HOSP DIST #2 | $20.15 | $20.14 | $0.00 | $0.00 | $40.29 | $0.00 |
| 2025 | 22158 | SD50 - SCHOOL DIST #50 | $641.68 | $641.66 | $0.00 | $0.00 | $1283.34 | $0.00 |
| 2025 | 22158 | FD1 - FIRE DISTRICT #1 | $455.62 | $455.62 | $0.00 | $0.00 | $911.24 | $0.00 |
| 2025 | 22158 | EMS1 - FIRE DIST #1 EMS | $175.25 | $175.24 | $0.00 | $0.00 | $350.49 | $0.00 |
| 2025 | 22158 | FP - DNR Forest Fire Protection Assmt | $8.50 | $8.50 | $0.00 | $0.00 | $17.00 | $0.00 |
| 2025 | 22158 | FPLCA - DNR Landowner Contingency Assmt | $3.00 | $3.00 | $0.00 | $0.00 | $6.00 | $0.00 |
| 2025 | 22158 | JCCD - JC Conservation District | $2.55 | $2.55 | $0.00 | $0.00 | $5.10 | $0.00 |
| 2025 | 22158 | NWA - Noxious Weed Assessment | $2.15 | $2.15 | $0.00 | $0.00 | $4.30 | $0.00 |
| 2025 | 22158 | OSS - On Site Septic | $21.50 | $21.50 | $0.00 | $0.00 | $43.00 | $0.00 |
| 2025 | 22158 | WAT - Clean Water District | $13.00 | $13.00 | $0.00 | $0.00 | $26.00 | $0.00 |
| 2025 | 22158 | FP ADMIN - FP ADMIN | $0.50 | $0.00 | $0.00 | $0.00 | $0.50 | $0.00 |
| 2025 | 22158 | TOTAL: | $3124.66 | $3124.07 | $0.00 | $0.00 | $6248.73 | $0.00 |
|
| 2025 | 22158 | $3124.66 | $3124.07 | $0.00 | $0.00 | $6248.73 | $0.00 |
Statement Details |
| 2024 | 22203 | STATE - STATE LEVY (SCHOOL) | $784.98 | $784.97 | $0.00 | $0.00 | $1569.95 | $0.00 |
| 2024 | 22203 | COUNTY - COUNTY LEVIES (CE, DD, VET, MH) | $335.91 | $335.88 | $0.00 | $0.00 | $671.79 | $0.00 |
| 2024 | 22203 | CONSERVE - CONSERVATION FUTURES | $10.07 | $10.07 | $0.00 | $0.00 | $20.14 | $0.00 |
| 2024 | 22203 | COROADS - COUNTY ROADS (ROADS, DIV TO CE) | $270.29 | $270.29 | $0.00 | $0.00 | $540.58 | $0.00 |
| 2024 | 22203 | PORTPT - PORT DISTRICT | $138.75 | $138.73 | $0.00 | $0.00 | $277.48 | $0.00 |
| 2024 | 22203 | PUD1 - PUD #1 | $22.07 | $22.06 | $0.00 | $0.00 | $44.13 | $0.00 |
| 2024 | 22203 | LIB1 - LIBRARY DIST #1 | $104.57 | $104.57 | $0.00 | $0.00 | $209.14 | $0.00 |
| 2024 | 22203 | HD2 - HOSP DIST #2 | $19.60 | $19.60 | $0.00 | $0.00 | $39.20 | $0.00 |
| 2024 | 22203 | SD50 - SCHOOL DIST #50 | $635.09 | $635.07 | $0.00 | $0.00 | $1270.16 | $0.00 |
| 2024 | 22203 | FD1 - FIRE DISTRICT #1 | $444.14 | $444.13 | $0.00 | $0.00 | $888.27 | $0.00 |
| 2024 | 22203 | EMS1 - FIRE DIST #1 EMS | $169.65 | $169.64 | $0.00 | $0.00 | $339.29 | $0.00 |
| 2024 | 22203 | JCCD - JC Conservation District | $2.55 | $2.55 | $0.00 | $0.00 | $5.10 | $0.00 |
| 2024 | 22203 | NWA - Noxious Weed Assessment | $2.15 | $2.15 | $0.00 | $0.00 | $4.30 | $0.00 |
| 2024 | 22203 | OSS - On Site Septic | $21.00 | $21.00 | $0.00 | $0.00 | $42.00 | $0.00 |
| 2024 | 22203 | WAT - Clean Water District | $12.50 | $12.50 | $0.00 | $0.00 | $25.00 | $0.00 |
| 2024 | 22203 | TOTAL: | $2973.32 | $2973.21 | $0.00 | $0.00 | $5946.53 | $0.00 |
|
| 2024 | 22203 | $2973.32 | $2973.21 | $0.00 | $0.00 | $5946.53 | $0.00 |
Statement Details |
| 2023 | 22240 | STATE - STATE LEVY (SCHOOL) | $756.28 | $756.27 | $0.00 | $0.00 | $1512.55 | $0.00 |
| 2023 | 22240 | COUNTY - COUNTY LEVIES (CE, DD, VET, MH) | $330.03 | $330.00 | $0.00 | $0.00 | $660.03 | $0.00 |
| 2023 | 22240 | CONSERVE - CONSERVATION FUTURES | $9.90 | $9.89 | $0.00 | $0.00 | $19.79 | $0.00 |
| 2023 | 22240 | COROADS - COUNTY ROADS (ROADS, DIV TO CE) | $267.01 | $267.00 | $0.00 | $0.00 | $534.01 | $0.00 |
| 2023 | 22240 | PORTPT - PORT DISTRICT | $139.02 | $139.02 | $0.00 | $0.00 | $278.04 | $0.00 |
| 2023 | 22240 | PUD1 - PUD #1 | $21.88 | $21.87 | $0.00 | $0.00 | $43.75 | $0.00 |
| 2023 | 22240 | LIB1 - LIBRARY DIST #1 | $103.30 | $103.30 | $0.00 | $0.00 | $206.60 | $0.00 |
| 2023 | 22240 | HD2 - HOSP DIST #2 | $19.26 | $19.26 | $0.00 | $0.00 | $38.52 | $0.00 |
| 2023 | 22240 | SD50 - SCHOOL DIST #50 | $600.12 | $600.11 | $0.00 | $0.00 | $1200.23 | $0.00 |
| 2023 | 22240 | FD1 - FIRE DISTRICT #1 | $271.87 | $271.86 | $0.00 | $0.00 | $543.73 | $0.00 |
| 2023 | 22240 | EMS1 - FIRE DIST #1 EMS | $115.65 | $115.64 | $0.00 | $0.00 | $231.29 | $0.00 |
| 2023 | 22240 | JCCD - JC Conservation District | $2.55 | $2.55 | $0.00 | $0.00 | $5.10 | $0.00 |
| 2023 | 22240 | NWA - Noxious Weed Assessment | $2.15 | $2.15 | $0.00 | $0.00 | $4.30 | $0.00 |
| 2023 | 22240 | OSS - On Site Septic | $20.50 | $20.50 | $0.00 | $0.00 | $41.00 | $0.00 |
| 2023 | 22240 | WAT - Clean Water District | $12.00 | $12.00 | $0.00 | $0.00 | $24.00 | $0.00 |
| 2023 | 22240 | TOTAL: | $2671.52 | $2671.42 | $0.00 | $0.00 | $5342.94 | $0.00 |
|
| 2023 | 22240 | $2671.52 | $2671.42 | $0.00 | $0.00 | $5342.94 | $0.00 |
Values
| (+) Improvement Homesite Value: | + | $0 | |
| (+) Improvement Non-Homesite Value: | + | $615,667 | |
| (+) Land Homesite Value: | + | $0 | |
| (+) Land Non-Homesite Value: | + | $116,600 | |
| (+) Curr Use (HS): | + | $0 | $0 |
| (+) Curr Use (NHS): | + | $0 | $0 |
| | | -------------------------- | |
| (=) Market Value: | = | $732,267 | |
| (–) Productivity Loss: | – | $0 | |
| | | -------------------------- | |
| (=) Subtotal: | = | $732,267 | |
| (+) Senior Appraised Value: | + | $0 | |
| (+) Non-Senior Appraised Value: | + | $732,267 | |
| | | -------------------------- | |
| (=) Total Appraised Value: | = | $732,267 | |
| (–) Senior Exemption Loss: | – | $0 | |
| (–) Exemption Loss: | – | $0 | |
| | | -------------------------- | |
| (=) Taxable Value: | = | $732,267 | |
Taxing Jurisdiction
| Owner: | SHARON M CARTER LIVING TRUST | | |
| % Ownership: | 100.0000000000% | | |
| Total Value: | $732,267 | | |
| Tax Area: | 0111 - 1-50F1E1H2L1 |
| CE | COUNTY CURRENT EXPENSE | 0.9034619479 | $732,267 | $732,267 | $661.58 | | |
| CNTYDD | DEVELOPMENTAL DISABILITIES | 0.0052121823 | $732,267 | $732,267 | $3.82 | | |
| CNTYVET | VETERANS RELIEF | 0.0052777810 | $732,267 | $732,267 | $3.86 | | |
| MENTAL | MENTAL HEALTH | 0.0052121823 | $732,267 | $732,267 | $3.82 | | |
| ROADS | COUNTY ROADS | 0.7415066410 | $732,267 | $732,267 | $542.98 | | |
| ROADSCU | COUNTY ROADS TO CUR EXP | 0.0000000000 | $732,267 | $732,267 | $0.00 | | |
| HOSP2CASH | HOSP DIST #2 GENERAL | 0.0536075306 | $732,267 | $732,267 | $39.26 | | |
| SCH50BOND | SCHOOL DIST #50 BOND 2016 | 0.5377451389 | $732,267 | $732,267 | $393.77 | | |
| SCH50CP | SCHOOL DIST #50 CAP PROJ | 0.4573475088 | $732,267 | $732,267 | $334.90 | | |
| SCH50MO | SCHOOL DIST #50 EP & O | 0.8262822886 | $732,267 | $732,267 | $605.06 | | |
| CONSERVE | CONSERVATION FUTURES | 0.0275621078 | $732,267 | $732,267 | $20.18 | | |
| EMS1 | FIRE DIST #1 EMS | 0.4679948282 | $732,267 | $732,267 | $342.70 | | |
| FD1 | FIRE DIST #1 GENERAL | 1.2171942929 | $732,267 | $732,267 | $891.31 | | |
| LIB1 | LIBRARY DIST #1 GENERAL | 0.2868827388 | $732,267 | $732,267 | $210.07 | | |
| PORTPT | PORT OF PT GENERAL | 0.1134941229 | $732,267 | $732,267 | $83.11 | | |
| PORTPTIDD | PORT OF PT IDD 2019 | 0.2577346692 | $732,267 | $732,267 | $188.73 | | |
| PUD1 | PUD #1 GENERAL | 0.0597888892 | $732,267 | $732,267 | $43.78 | | |
| STATE | STATE SCHOOL PART 1 | 1.4940692947 | $732,267 | $732,267 | $1,094.06 | | |
| STATE2 | STATE SCHOOL PART 2 | 0.8050170049 | $732,267 | $732,267 | $589.49 | | |
| | Total Tax Rate: | 8.2653911500 | | | | | |
| | | | | Taxes w/Current Exemptions: | $6,052.48 | | |
| | | | | Taxes w/o Exemptions: | $6,052.48 | | |
Improvement / Building
| Improvement #1: | Residential Bldg | State Code: | 11 | 1893.0 sqft | Value: | $615,667 |
| Bathrooms (#): | 2 (FULL) | Bedrooms (#): | 2 | | Exterior Wall: | SI/ST | Fireplace: | SIN 1-GOOD | | Floor Construction: | FRAME | Foundation: | CONPR | | Heating/Cooling: | HPUMP | Roof Cover: | COMP |
|
| | Type | Description | Class CD | Sub Class CD | Year Built | Area |
| | MA | Main Area | 5- | 1S | 2009 | 1893.0 |
| | HWPOR | House Wood Porch | 5 | 1S | 2009 | 364.0 |
| | GATT | House Attached Garage | 5 | 1S | 2009 | 538.0 |
| | BSMTU | House basement unfinished | 5 | 1S | 2009 | 181.0 |
| | CONCD | Concrete Drive | 5 | 1S | 2009 | 828.0 |
Sketch
Property Image
Land
| 1 | 5391-1165L | | 0.0000 | 0.00 | 0.00 | 0.00 | 1.00 | $116,600 | $0 |
Roll Value History
| 2026 | N/A | N/A | N/A | N/A | N/A |
| 2025 | $615,667 | $116,600 | $0 | $732,267 | $732,267 |
| 2024 | $615,667 | $116,600 | $0 | $732,267 | $732,267 |
| 2023 | $571,475 | $107,100 | $0 | $678,575 | $678,575 |
| 2022 | $545,499 | $97,000 | $0 | $642,499 | $642,499 |
Deed and Sales History
| 1 | 05/21/2025 | SLWD | Special Limited Warranty Deed | SHARON M CARTER | SHARON M CARTER LIVING TRUST | | | | 144314 | |
| 2 | 08/10/2006 | SWD | Statutory Warranty Deed | YEOMANS, MATT | CARTER, SHARON MAUREEN | 0 | 0 | $94,000.00 | 107436 | 0 |
| 3 | 05/16/2005 | SWD | Statutory Warranty Deed | DONALDSON, JOHN G & BARBA | YEOMANS, MATT | | | $50,000.00 | 103631 | 0 |
Payout Agreement
| No payout information available.. |