Property
Account |
| Property ID: | 32831 | Abbreviated Legal Description: | KALA POINT #3 LOT 235 SUBJ TO EASE |
| Parcel # / Geo ID: | 965000037 | Agent Code: | |
| Type: | Real | | |
| Tax Area: | 0111 - 1-50F1E1H2L1 | Land Use Code | 11 |
| Open Space: | N | DFL | N |
| Historic Property: | N | Remodel Property: | N |
| Multi-Family Redevelopment: | N | | |
| Township: | 30N | Section: | 27 |
| Range: | 1W |
Location |
| Address: | 20 BROOKHAVEN PL PORT TOWNSEND, WA 98368 | Mapsco: | 045/037 |
| Neighborhood: | KALA PT - DIV 3(PART) & DIV 5 - 10, THE HEIGHTS | Map ID: | |
| Neighborhood CD: | 5391 |
Owner |
| Name: | LARRY M & MARGARET J MCGAUGHEY | Owner ID: | 103217 |
| Mailing Address: | 20 BROOKHAVEN PL PORT TOWNSEND, WA 98368-9518 | % Ownership: | 100.0000000000% |
| | | Exemptions: | |
Pay Tax Due
Select the appropriate checkbox next to the year to be paid. Multiple years may be selected.
*Convenience Fee not included
Taxes and Assessment Details
Property Tax Information as of
03/09/2026
Click on "Statement Details" to expand or collapse a tax statement.
* Please enter a valid date ** Please enter a valid date *
Statement Details |
| 2026 | 22097 | STATE - STATE LEVY (SCHOOL) | $873.55 | $873.53 | $0.00 | $0.00 | $0.00 | $1747.08 |
| 2026 | 22097 | COUNTY - COUNTY LEVIES (CE, DD, VET, MH) | $349.24 | $349.23 | $0.00 | $0.00 | $0.00 | $698.47 |
| 2026 | 22097 | CONSERVE - CONSERVATION FUTURES | $10.47 | $10.47 | $0.00 | $0.00 | $0.00 | $20.94 |
| 2026 | 22097 | COROADS - COUNTY ROADS (ROADS, DIV TO CE) | $281.74 | $281.73 | $0.00 | $0.00 | $0.00 | $563.47 |
| 2026 | 22097 | PORTPT - PORT DISTRICT | $141.05 | $141.04 | $0.00 | $0.00 | $0.00 | $282.09 |
| 2026 | 22097 | PUD1 - PUD #1 | $22.72 | $22.71 | $0.00 | $0.00 | $0.00 | $45.43 |
| 2026 | 22097 | LIB1 - LIBRARY DIST #1 | $109.00 | $109.00 | $0.00 | $0.00 | $0.00 | $218.00 |
| 2026 | 22097 | HD2 - HOSP DIST #2 | $20.37 | $20.37 | $0.00 | $0.00 | $0.00 | $40.74 |
| 2026 | 22097 | SD50 - SCHOOL DIST #50 | $692.04 | $692.02 | $0.00 | $0.00 | $0.00 | $1384.06 |
| 2026 | 22097 | FD1 - FIRE DISTRICT #1 | $462.48 | $462.47 | $0.00 | $0.00 | $0.00 | $924.95 |
| 2026 | 22097 | EMS1 - FIRE DIST #1 EMS | $177.82 | $177.81 | $0.00 | $0.00 | $0.00 | $355.63 |
| 2026 | 22097 | FP - DNR Forest Fire Protection Assmt | $8.50 | $8.50 | $0.00 | $0.00 | $0.00 | $17.00 |
| 2026 | 22097 | FPLCA - DNR Landowner Contingency Assmt | $3.00 | $3.00 | $0.00 | $0.00 | $0.00 | $6.00 |
| 2026 | 22097 | JCCD - JC Conservation District | $2.55 | $2.55 | $0.00 | $0.00 | $0.00 | $5.10 |
| 2026 | 22097 | NWA - Noxious Weed Assessment | $2.98 | $2.97 | $0.00 | $0.00 | $0.00 | $5.95 |
| 2026 | 22097 | OSS - On Site Septic | $23.10 | $23.10 | $0.00 | $0.00 | $0.00 | $46.20 |
| 2026 | 22097 | WAT - Clean Water District | $13.00 | $13.00 | $0.00 | $0.00 | $0.00 | $26.00 |
| 2026 | 22097 | FP ADMIN - FP ADMIN | $0.50 | $0.00 | $0.00 | $0.00 | $0.00 | $0.50 |
| 2026 | 22097 | TOTAL: | $3194.11 | $3193.50 | $0.00 | $0.00 | $0.00 | $6387.61 |
|
| 2026 | 22097 | $3194.11 | $3193.50 | $0.00 | $0.00 | $0.00 | $6387.61 |
Statement Details |
| 2025 | 22159 | STATE - STATE LEVY (SCHOOL) | $911.13 | $911.13 | $0.00 | $0.00 | $1822.26 | $0.00 |
| 2025 | 22159 | COUNTY - COUNTY LEVIES (CE, DD, VET, MH) | $358.31 | $358.28 | $0.00 | $0.00 | $716.59 | $0.00 |
| 2025 | 22159 | CONSERVE - CONSERVATION FUTURES | $10.75 | $10.74 | $0.00 | $0.00 | $21.49 | $0.00 |
| 2025 | 22159 | COROADS - COUNTY ROADS (ROADS, DIV TO CE) | $287.06 | $287.04 | $0.00 | $0.00 | $574.10 | $0.00 |
| 2025 | 22159 | PORTPT - PORT DISTRICT | $146.21 | $146.20 | $0.00 | $0.00 | $292.41 | $0.00 |
| 2025 | 22159 | PUD1 - PUD #1 | $23.45 | $23.44 | $0.00 | $0.00 | $46.89 | $0.00 |
| 2025 | 22159 | LIB1 - LIBRARY DIST #1 | $111.06 | $111.06 | $0.00 | $0.00 | $222.12 | $0.00 |
| 2025 | 22159 | HD2 - HOSP DIST #2 | $20.91 | $20.90 | $0.00 | $0.00 | $41.81 | $0.00 |
| 2025 | 22159 | SD50 - SCHOOL DIST #50 | $665.90 | $665.87 | $0.00 | $0.00 | $1331.77 | $0.00 |
| 2025 | 22159 | FD1 - FIRE DISTRICT #1 | $472.82 | $472.81 | $0.00 | $0.00 | $945.63 | $0.00 |
| 2025 | 22159 | EMS1 - FIRE DIST #1 EMS | $181.86 | $181.85 | $0.00 | $0.00 | $363.71 | $0.00 |
| 2025 | 22159 | FP - DNR Forest Fire Protection Assmt | $8.50 | $8.50 | $0.00 | $0.00 | $17.00 | $0.00 |
| 2025 | 22159 | FPLCA - DNR Landowner Contingency Assmt | $3.00 | $3.00 | $0.00 | $0.00 | $6.00 | $0.00 |
| 2025 | 22159 | JCCD - JC Conservation District | $2.55 | $2.55 | $0.00 | $0.00 | $5.10 | $0.00 |
| 2025 | 22159 | NWA - Noxious Weed Assessment | $2.15 | $2.15 | $0.00 | $0.00 | $4.30 | $0.00 |
| 2025 | 22159 | OSS - On Site Septic | $21.50 | $21.50 | $0.00 | $0.00 | $43.00 | $0.00 |
| 2025 | 22159 | WAT - Clean Water District | $13.00 | $13.00 | $0.00 | $0.00 | $26.00 | $0.00 |
| 2025 | 22159 | FP ADMIN - FP ADMIN | $0.50 | $0.00 | $0.00 | $0.00 | $0.50 | $0.00 |
| 2025 | 22159 | TOTAL: | $3240.66 | $3240.02 | $0.00 | $0.00 | $6480.68 | $0.00 |
|
| 2025 | 22159 | $3240.66 | $3240.02 | $0.00 | $0.00 | $6480.68 | $0.00 |
Statement Details |
| 2024 | 22204 | STATE - STATE LEVY (SCHOOL) | $848.56 | $848.55 | $0.00 | $0.00 | $1697.11 | $0.00 |
| 2024 | 22204 | COUNTY - COUNTY LEVIES (CE, DD, VET, MH) | $363.11 | $363.10 | $0.00 | $0.00 | $726.21 | $0.00 |
| 2024 | 22204 | CONSERVE - CONSERVATION FUTURES | $10.89 | $10.89 | $0.00 | $0.00 | $21.78 | $0.00 |
| 2024 | 22204 | COROADS - COUNTY ROADS (ROADS, DIV TO CE) | $292.18 | $292.18 | $0.00 | $0.00 | $584.36 | $0.00 |
| 2024 | 22204 | PORTPT - PORT DISTRICT | $149.99 | $149.97 | $0.00 | $0.00 | $299.96 | $0.00 |
| 2024 | 22204 | PUD1 - PUD #1 | $23.85 | $23.85 | $0.00 | $0.00 | $47.70 | $0.00 |
| 2024 | 22204 | LIB1 - LIBRARY DIST #1 | $113.04 | $113.04 | $0.00 | $0.00 | $226.08 | $0.00 |
| 2024 | 22204 | HD2 - HOSP DIST #2 | $21.19 | $21.18 | $0.00 | $0.00 | $42.37 | $0.00 |
| 2024 | 22204 | SD50 - SCHOOL DIST #50 | $686.53 | $686.52 | $0.00 | $0.00 | $1373.05 | $0.00 |
| 2024 | 22204 | FD1 - FIRE DISTRICT #1 | $480.11 | $480.11 | $0.00 | $0.00 | $960.22 | $0.00 |
| 2024 | 22204 | EMS1 - FIRE DIST #1 EMS | $183.39 | $183.38 | $0.00 | $0.00 | $366.77 | $0.00 |
| 2024 | 22204 | JCCD - JC Conservation District | $2.55 | $2.55 | $0.00 | $0.00 | $5.10 | $0.00 |
| 2024 | 22204 | NWA - Noxious Weed Assessment | $2.15 | $2.15 | $0.00 | $0.00 | $4.30 | $0.00 |
| 2024 | 22204 | OSS - On Site Septic | $21.00 | $21.00 | $0.00 | $0.00 | $42.00 | $0.00 |
| 2024 | 22204 | WAT - Clean Water District | $12.50 | $12.50 | $0.00 | $0.00 | $25.00 | $0.00 |
| 2024 | 22204 | TOTAL: | $3211.04 | $3210.97 | $0.00 | $0.00 | $6422.01 | $0.00 |
|
| 2024 | 22204 | $3211.04 | $3210.97 | $0.00 | $0.00 | $6422.01 | $0.00 |
Statement Details |
| 2023 | 22241 | STATE - STATE LEVY (SCHOOL) | $817.99 | $817.98 | $0.00 | $0.00 | $1635.97 | $0.00 |
| 2023 | 22241 | COUNTY - COUNTY LEVIES (CE, DD, VET, MH) | $356.95 | $356.92 | $0.00 | $0.00 | $713.87 | $0.00 |
| 2023 | 22241 | CONSERVE - CONSERVATION FUTURES | $10.71 | $10.70 | $0.00 | $0.00 | $21.41 | $0.00 |
| 2023 | 22241 | COROADS - COUNTY ROADS (ROADS, DIV TO CE) | $288.80 | $288.78 | $0.00 | $0.00 | $577.58 | $0.00 |
| 2023 | 22241 | PORTPT - PORT DISTRICT | $150.37 | $150.36 | $0.00 | $0.00 | $300.73 | $0.00 |
| 2023 | 22241 | PUD1 - PUD #1 | $23.66 | $23.66 | $0.00 | $0.00 | $47.32 | $0.00 |
| 2023 | 22241 | LIB1 - LIBRARY DIST #1 | $111.73 | $111.73 | $0.00 | $0.00 | $223.46 | $0.00 |
| 2023 | 22241 | HD2 - HOSP DIST #2 | $20.83 | $20.83 | $0.00 | $0.00 | $41.66 | $0.00 |
| 2023 | 22241 | SD50 - SCHOOL DIST #50 | $649.08 | $649.08 | $0.00 | $0.00 | $1298.16 | $0.00 |
| 2023 | 22241 | FD1 - FIRE DISTRICT #1 | $294.05 | $294.05 | $0.00 | $0.00 | $588.10 | $0.00 |
| 2023 | 22241 | EMS1 - FIRE DIST #1 EMS | $125.09 | $125.08 | $0.00 | $0.00 | $250.17 | $0.00 |
| 2023 | 22241 | JCCD - JC Conservation District | $2.55 | $2.55 | $0.00 | $0.00 | $5.10 | $0.00 |
| 2023 | 22241 | NWA - Noxious Weed Assessment | $2.15 | $2.15 | $0.00 | $0.00 | $4.30 | $0.00 |
| 2023 | 22241 | OSS - On Site Septic | $20.50 | $20.50 | $0.00 | $0.00 | $41.00 | $0.00 |
| 2023 | 22241 | WAT - Clean Water District | $12.00 | $12.00 | $0.00 | $0.00 | $24.00 | $0.00 |
| 2023 | 22241 | TOTAL: | $2886.46 | $2886.37 | $0.00 | $0.00 | $5772.83 | $0.00 |
|
| 2023 | 22241 | $2886.46 | $2886.37 | $0.00 | $0.00 | $5772.83 | $0.00 |
Values
| (+) Improvement Homesite Value: | + | $0 | |
| (+) Improvement Non-Homesite Value: | + | $630,103 | |
| (+) Land Homesite Value: | + | $0 | |
| (+) Land Non-Homesite Value: | + | $129,800 | |
| (+) Curr Use (HS): | + | $0 | $0 |
| (+) Curr Use (NHS): | + | $0 | $0 |
| | | -------------------------- | |
| (=) Market Value: | = | $759,903 | |
| (–) Productivity Loss: | – | $0 | |
| | | -------------------------- | |
| (=) Subtotal: | = | $759,903 | |
| (+) Senior Appraised Value: | + | $0 | |
| (+) Non-Senior Appraised Value: | + | $759,903 | |
| | | -------------------------- | |
| (=) Total Appraised Value: | = | $759,903 | |
| (–) Senior Exemption Loss: | – | $0 | |
| (–) Exemption Loss: | – | $0 | |
| | | -------------------------- | |
| (=) Taxable Value: | = | $759,903 | |
Taxing Jurisdiction
| Owner: | LARRY M & MARGARET J MCGAUGHEY | | |
| % Ownership: | 100.0000000000% | | |
| Total Value: | $759,903 | | |
| Tax Area: | 0111 - 1-50F1E1H2L1 |
| CE | COUNTY CURRENT EXPENSE | 0.9034619479 | $759,903 | $759,903 | $686.54 | | |
| CNTYDD | DEVELOPMENTAL DISABILITIES | 0.0052121823 | $759,903 | $759,903 | $3.96 | | |
| CNTYVET | VETERANS RELIEF | 0.0052777810 | $759,903 | $759,903 | $4.01 | | |
| MENTAL | MENTAL HEALTH | 0.0052121823 | $759,903 | $759,903 | $3.96 | | |
| ROADS | COUNTY ROADS | 0.7415066410 | $759,903 | $759,903 | $563.47 | | |
| ROADSCU | COUNTY ROADS TO CUR EXP | 0.0000000000 | $759,903 | $759,903 | $0.00 | | |
| HOSP2CASH | HOSP DIST #2 GENERAL | 0.0536075306 | $759,903 | $759,903 | $40.74 | | |
| SCH50BOND | SCHOOL DIST #50 BOND 2016 | 0.5377451389 | $759,903 | $759,903 | $408.63 | | |
| SCH50CP | SCHOOL DIST #50 CAP PROJ | 0.4573475088 | $759,903 | $759,903 | $347.54 | | |
| SCH50MO | SCHOOL DIST #50 EP & O | 0.8262822886 | $759,903 | $759,903 | $627.89 | | |
| CONSERVE | CONSERVATION FUTURES | 0.0275621078 | $759,903 | $759,903 | $20.94 | | |
| EMS1 | FIRE DIST #1 EMS | 0.4679948282 | $759,903 | $759,903 | $355.63 | | |
| FD1 | FIRE DIST #1 GENERAL | 1.2171942929 | $759,903 | $759,903 | $924.95 | | |
| LIB1 | LIBRARY DIST #1 GENERAL | 0.2868827388 | $759,903 | $759,903 | $218.00 | | |
| PORTPT | PORT OF PT GENERAL | 0.1134941229 | $759,903 | $759,903 | $86.24 | | |
| PORTPTIDD | PORT OF PT IDD 2019 | 0.2577346692 | $759,903 | $759,903 | $195.85 | | |
| PUD1 | PUD #1 GENERAL | 0.0597888892 | $759,903 | $759,903 | $45.43 | | |
| STATE | STATE SCHOOL PART 1 | 1.4940692947 | $759,903 | $759,903 | $1,135.35 | | |
| STATE2 | STATE SCHOOL PART 2 | 0.8050170049 | $759,903 | $759,903 | $611.73 | | |
| | Total Tax Rate: | 8.2653911500 | | | | | |
| | | | | Taxes w/Current Exemptions: | $6,280.86 | | |
| | | | | Taxes w/o Exemptions: | $6,280.86 | | |
Improvement / Building
| Improvement #1: | Residential Bldg | State Code: | 11 | 1766.0 sqft | Value: | $630,103 |
| Bathrooms (#): | 2 (FULL) | Bathrooms (#): | 1 (HALF) | | Bedrooms (#): | 2 | Exterior Wall: | SI/ST | | Fireplace: | WD ST-AVG | Floor Construction: | FRAME | | Foundation: | CONPR | Heating/Cooling: | HPUMP | | Inside Verify: | YES-FIX | Roof Cover: | METAL |
|
| | Type | Description | Class CD | Sub Class CD | Year Built | Area |
| | MA | Main Area | 5- | 2S | 1981 | 1157.0 |
| | MA2 | Second Floor Main Area | 5- | 2S | 1981 | 609.0 |
| | HWPOR | House Wood Porch | 5 | 2S | 1981 | 250.0 |
| | HDECK | House Deck | 5 | 2S | 1981 | 594.0 |
| | HENCL | House Enclosure | 5 | 2S | 1981 | 144.0 |
| | GATT | House Attached Garage | 5 | 2S | 1981 | 400.0 |
| | BSMTF | House basement finished | 5 | 2S | 1981 | 563.2 |
| | CONCD | Concrete Drive | 5 | 2S | 1981 | 600.0 |
| | BSMTU | House basement unfinished | 5 | 2S | 1981 | 140.8 |
Sketch
Property Image
Land
| 1 | 5391-1165L | | 0.0000 | 0.00 | 0.00 | 0.00 | 1.00 | $129,800 | $0 |
Roll Value History
| 2026 | N/A | N/A | N/A | N/A | N/A |
| 2025 | $630,103 | $129,800 | $0 | $759,903 | $759,903 |
| 2024 | $630,103 | $129,800 | $0 | $759,903 | $759,903 |
| 2023 | $607,540 | $126,000 | $0 | $733,540 | $733,540 |
| 2022 | $579,924 | $115,000 | $0 | $694,924 | $694,924 |
Deed and Sales History
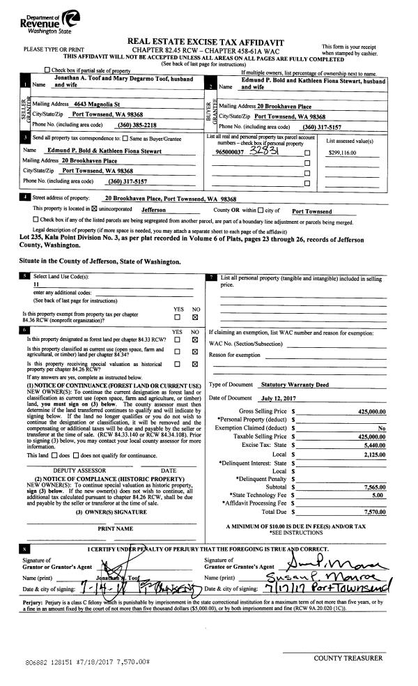
| 1 | 08/24/2020 | SWD | Statutory Warranty Deed | EDMUND BOLD & KATHLEEN STEWART | LARRY M & MARGARET J MCGAUGHEY | | | $580,000.00 | 134978 | |
| 2 | 07/12/2017 | SWD | Statutory Warranty Deed | JONATHAN A TOOF | EDMUND BOLD & KATHLEEN STEWART | | | $425,000.00 | 128151 | |
| 3 | 04/24/2009 | SWD | Statutory Warranty Deed | SORENSEN, LOUIS/LEDA | TOOF, JONAHTAN/MARY | | | $319,000.00 | 112825 | 0 |
| 4 | 11/09/2007 | SWD | Statutory Warranty Deed | ROSENBERG, JOSEPH M/SHERR | SORENSEN, LOUIS P/LEDA P | 0 | 0 | $370,000.00 | 110414 | 0 |
Payout Agreement
| No payout information available.. |