Property
Account |
| Property ID: | 32877 | Abbreviated Legal Description: | KALA POINT #4 LOT 90 |
| Parcel # / Geo ID: | 965000084 | Agent Code: | |
| Type: | Real | | |
| Tax Area: | 0111 - 1-50F1E1H2L1 | Land Use Code | 11 |
| Open Space: | N | DFL | N |
| Historic Property: | N | Remodel Property: | N |
| Multi-Family Redevelopment: | N | | |
| Township: | 30N | Section: | 27 |
| Range: | 1W |
Location |
| Address: | 220 SADDLETREE DR PORT TOWNSEND, WA 98368 | Mapsco: | 046/020 |
| Neighborhood: | KALA PT - DIV 1, 2, PART OF 3 & 4 | Map ID: | |
| Neighborhood CD: | 5390 |
Owner |
| Name: | DAVID J & LINDA L GODFREY | Owner ID: | 97490 |
| Mailing Address: | SARAH J IRICK JTWROS 220 SADDLETREE DR PORT TOWNSEND, WA 98368-9813 | % Ownership: | 100.0000000000% |
| | | Exemptions: | |
Pay Tax Due
Select the appropriate checkbox next to the year to be paid. Multiple years may be selected.
*Convenience Fee not included
Taxes and Assessment Details
Property Tax Information as of
03/11/2026
Click on "Statement Details" to expand or collapse a tax statement.
* Please enter a valid date ** Please enter a valid date *
Statement Details |
| 2026 | 22143 | STATE - STATE LEVY (SCHOOL) | $913.79 | $913.78 | $0.00 | $0.00 | $0.00 | $1827.57 |
| 2026 | 22143 | COUNTY - COUNTY LEVIES (CE, DD, VET, MH) | $365.33 | $365.32 | $0.00 | $0.00 | $0.00 | $730.65 |
| 2026 | 22143 | CONSERVE - CONSERVATION FUTURES | $10.96 | $10.95 | $0.00 | $0.00 | $0.00 | $21.91 |
| 2026 | 22143 | COROADS - COUNTY ROADS (ROADS, DIV TO CE) | $294.72 | $294.71 | $0.00 | $0.00 | $0.00 | $589.43 |
| 2026 | 22143 | PORTPT - PORT DISTRICT | $147.55 | $147.55 | $0.00 | $0.00 | $0.00 | $295.10 |
| 2026 | 22143 | PUD1 - PUD #1 | $23.77 | $23.76 | $0.00 | $0.00 | $0.00 | $47.53 |
| 2026 | 22143 | LIB1 - LIBRARY DIST #1 | $114.03 | $114.02 | $0.00 | $0.00 | $0.00 | $228.05 |
| 2026 | 22143 | HD2 - HOSP DIST #2 | $21.31 | $21.30 | $0.00 | $0.00 | $0.00 | $42.61 |
| 2026 | 22143 | SD50 - SCHOOL DIST #50 | $723.92 | $723.91 | $0.00 | $0.00 | $0.00 | $1447.83 |
| 2026 | 22143 | FD1 - FIRE DISTRICT #1 | $483.78 | $483.78 | $0.00 | $0.00 | $0.00 | $967.56 |
| 2026 | 22143 | EMS1 - FIRE DIST #1 EMS | $186.01 | $186.00 | $0.00 | $0.00 | $0.00 | $372.01 |
| 2026 | 22143 | JCCD - JC Conservation District | $2.55 | $2.55 | $0.00 | $0.00 | $0.00 | $5.10 |
| 2026 | 22143 | NWA - Noxious Weed Assessment | $2.98 | $2.97 | $0.00 | $0.00 | $0.00 | $5.95 |
| 2026 | 22143 | OSS - On Site Septic | $23.10 | $23.10 | $0.00 | $0.00 | $0.00 | $46.20 |
| 2026 | 22143 | WAT - Clean Water District | $13.00 | $13.00 | $0.00 | $0.00 | $0.00 | $26.00 |
| 2026 | 22143 | TOTAL: | $3326.80 | $3326.70 | $0.00 | $0.00 | $0.00 | $6653.50 |
|
| 2026 | 22143 | $3326.80 | $3326.70 | $0.00 | $0.00 | $0.00 | $6653.50 |
Statement Details |
| 2025 | 22205 | STATE - STATE LEVY (SCHOOL) | $953.11 | $953.10 | $0.00 | $0.00 | $1906.21 | $0.00 |
| 2025 | 22205 | COUNTY - COUNTY LEVIES (CE, DD, VET, MH) | $374.81 | $374.79 | $0.00 | $0.00 | $749.60 | $0.00 |
| 2025 | 22205 | CONSERVE - CONSERVATION FUTURES | $11.24 | $11.24 | $0.00 | $0.00 | $22.48 | $0.00 |
| 2025 | 22205 | COROADS - COUNTY ROADS (ROADS, DIV TO CE) | $300.28 | $300.27 | $0.00 | $0.00 | $600.55 | $0.00 |
| 2025 | 22205 | PORTPT - PORT DISTRICT | $152.94 | $152.94 | $0.00 | $0.00 | $305.88 | $0.00 |
| 2025 | 22205 | PUD1 - PUD #1 | $24.53 | $24.52 | $0.00 | $0.00 | $49.05 | $0.00 |
| 2025 | 22205 | LIB1 - LIBRARY DIST #1 | $116.18 | $116.17 | $0.00 | $0.00 | $232.35 | $0.00 |
| 2025 | 22205 | HD2 - HOSP DIST #2 | $21.87 | $21.86 | $0.00 | $0.00 | $43.73 | $0.00 |
| 2025 | 22205 | SD50 - SCHOOL DIST #50 | $696.56 | $696.56 | $0.00 | $0.00 | $1393.12 | $0.00 |
| 2025 | 22205 | FD1 - FIRE DISTRICT #1 | $494.60 | $494.59 | $0.00 | $0.00 | $989.19 | $0.00 |
| 2025 | 22205 | EMS1 - FIRE DIST #1 EMS | $190.24 | $190.23 | $0.00 | $0.00 | $380.47 | $0.00 |
| 2025 | 22205 | JCCD - JC Conservation District | $2.55 | $2.55 | $0.00 | $0.00 | $5.10 | $0.00 |
| 2025 | 22205 | NWA - Noxious Weed Assessment | $2.15 | $2.15 | $0.00 | $0.00 | $4.30 | $0.00 |
| 2025 | 22205 | OSS - On Site Septic | $21.50 | $21.50 | $0.00 | $0.00 | $43.00 | $0.00 |
| 2025 | 22205 | WAT - Clean Water District | $13.00 | $13.00 | $0.00 | $0.00 | $26.00 | $0.00 |
| 2025 | 22205 | TOTAL: | $3375.56 | $3375.47 | $0.00 | $0.00 | $6751.03 | $0.00 |
|
| 2025 | 22205 | $3375.56 | $3375.47 | $0.00 | $0.00 | $6751.03 | $0.00 |
Statement Details |
| 2024 | 22250 | STATE - STATE LEVY (SCHOOL) | $874.23 | $874.23 | $0.00 | $0.00 | $1748.46 | $0.00 |
| 2024 | 22250 | COUNTY - COUNTY LEVIES (CE, DD, VET, MH) | $374.09 | $374.09 | $0.00 | $0.00 | $748.18 | $0.00 |
| 2024 | 22250 | CONSERVE - CONSERVATION FUTURES | $11.22 | $11.22 | $0.00 | $0.00 | $22.44 | $0.00 |
| 2024 | 22250 | COROADS - COUNTY ROADS (ROADS, DIV TO CE) | $301.02 | $301.01 | $0.00 | $0.00 | $602.03 | $0.00 |
| 2024 | 22250 | PORTPT - PORT DISTRICT | $154.52 | $154.51 | $0.00 | $0.00 | $309.03 | $0.00 |
| 2024 | 22250 | PUD1 - PUD #1 | $24.57 | $24.57 | $0.00 | $0.00 | $49.14 | $0.00 |
| 2024 | 22250 | LIB1 - LIBRARY DIST #1 | $116.46 | $116.46 | $0.00 | $0.00 | $232.92 | $0.00 |
| 2024 | 22250 | HD2 - HOSP DIST #2 | $21.83 | $21.82 | $0.00 | $0.00 | $43.65 | $0.00 |
| 2024 | 22250 | SD50 - SCHOOL DIST #50 | $707.30 | $707.28 | $0.00 | $0.00 | $1414.58 | $0.00 |
| 2024 | 22250 | FD1 - FIRE DISTRICT #1 | $494.64 | $494.63 | $0.00 | $0.00 | $989.27 | $0.00 |
| 2024 | 22250 | EMS1 - FIRE DIST #1 EMS | $188.94 | $188.93 | $0.00 | $0.00 | $377.87 | $0.00 |
| 2024 | 22250 | JCCD - JC Conservation District | $2.55 | $2.55 | $0.00 | $0.00 | $5.10 | $0.00 |
| 2024 | 22250 | NWA - Noxious Weed Assessment | $2.15 | $2.15 | $0.00 | $0.00 | $4.30 | $0.00 |
| 2024 | 22250 | OSS - On Site Septic | $21.00 | $21.00 | $0.00 | $0.00 | $42.00 | $0.00 |
| 2024 | 22250 | WAT - Clean Water District | $12.50 | $12.50 | $0.00 | $0.00 | $25.00 | $0.00 |
| 2024 | 22250 | TOTAL: | $3307.02 | $3306.95 | $0.00 | $0.00 | $6613.97 | $0.00 |
|
| 2024 | 22250 | $3307.02 | $3306.95 | $0.00 | $0.00 | $6613.97 | $0.00 |
Statement Details |
| 2023 | 22287 | STATE - STATE LEVY (SCHOOL) | $831.22 | $831.20 | $0.00 | $0.00 | $1662.42 | $0.00 |
| 2023 | 22287 | COUNTY - COUNTY LEVIES (CE, DD, VET, MH) | $362.72 | $362.71 | $0.00 | $0.00 | $725.43 | $0.00 |
| 2023 | 22287 | CONSERVE - CONSERVATION FUTURES | $10.88 | $10.87 | $0.00 | $0.00 | $21.75 | $0.00 |
| 2023 | 22287 | COROADS - COUNTY ROADS (ROADS, DIV TO CE) | $293.46 | $293.46 | $0.00 | $0.00 | $586.92 | $0.00 |
| 2023 | 22287 | PORTPT - PORT DISTRICT | $152.80 | $152.79 | $0.00 | $0.00 | $305.59 | $0.00 |
| 2023 | 22287 | PUD1 - PUD #1 | $24.05 | $24.04 | $0.00 | $0.00 | $48.09 | $0.00 |
| 2023 | 22287 | LIB1 - LIBRARY DIST #1 | $113.54 | $113.54 | $0.00 | $0.00 | $227.08 | $0.00 |
| 2023 | 22287 | HD2 - HOSP DIST #2 | $21.17 | $21.16 | $0.00 | $0.00 | $42.33 | $0.00 |
| 2023 | 22287 | SD50 - SCHOOL DIST #50 | $659.59 | $659.57 | $0.00 | $0.00 | $1319.16 | $0.00 |
| 2023 | 22287 | FD1 - FIRE DISTRICT #1 | $298.81 | $298.80 | $0.00 | $0.00 | $597.61 | $0.00 |
| 2023 | 22287 | EMS1 - FIRE DIST #1 EMS | $127.11 | $127.10 | $0.00 | $0.00 | $254.21 | $0.00 |
| 2023 | 22287 | JCCD - JC Conservation District | $2.55 | $2.55 | $0.00 | $0.00 | $5.10 | $0.00 |
| 2023 | 22287 | NWA - Noxious Weed Assessment | $2.15 | $2.15 | $0.00 | $0.00 | $4.30 | $0.00 |
| 2023 | 22287 | OSS - On Site Septic | $20.50 | $20.50 | $0.00 | $0.00 | $41.00 | $0.00 |
| 2023 | 22287 | WAT - Clean Water District | $12.00 | $12.00 | $0.00 | $0.00 | $24.00 | $0.00 |
| 2023 | 22287 | TOTAL: | $2932.55 | $2932.44 | $0.00 | $0.00 | $5864.99 | $0.00 |
|
| 2023 | 22287 | $2932.55 | $2932.44 | $0.00 | $0.00 | $5864.99 | $0.00 |
Values
| (+) Improvement Homesite Value: | + | $0 | |
| (+) Improvement Non-Homesite Value: | + | $688,759 | |
| (+) Land Homesite Value: | + | $0 | |
| (+) Land Non-Homesite Value: | + | $106,150 | |
| (+) Curr Use (HS): | + | $0 | $0 |
| (+) Curr Use (NHS): | + | $0 | $0 |
| | | -------------------------- | |
| (=) Market Value: | = | $794,909 | |
| (–) Productivity Loss: | – | $0 | |
| | | -------------------------- | |
| (=) Subtotal: | = | $794,909 | |
| (+) Senior Appraised Value: | + | $0 | |
| (+) Non-Senior Appraised Value: | + | $794,909 | |
| | | -------------------------- | |
| (=) Total Appraised Value: | = | $794,909 | |
| (–) Senior Exemption Loss: | – | $0 | |
| (–) Exemption Loss: | – | $0 | |
| | | -------------------------- | |
| (=) Taxable Value: | = | $794,909 | |
Taxing Jurisdiction
| Owner: | DAVID J & LINDA L GODFREY | | |
| % Ownership: | 100.0000000000% | | |
| Total Value: | $794,909 | | |
| Tax Area: | 0111 - 1-50F1E1H2L1 |
| CE | COUNTY CURRENT EXPENSE | 0.9034619479 | $794,909 | $794,909 | $718.17 | | |
| CNTYDD | DEVELOPMENTAL DISABILITIES | 0.0052121823 | $794,909 | $794,909 | $4.14 | | |
| CNTYVET | VETERANS RELIEF | 0.0052777810 | $794,909 | $794,909 | $4.20 | | |
| MENTAL | MENTAL HEALTH | 0.0052121823 | $794,909 | $794,909 | $4.14 | | |
| ROADS | COUNTY ROADS | 0.7415066410 | $794,909 | $794,909 | $589.43 | | |
| ROADSCU | COUNTY ROADS TO CUR EXP | 0.0000000000 | $794,909 | $794,909 | $0.00 | | |
| HOSP2CASH | HOSP DIST #2 GENERAL | 0.0536075306 | $794,909 | $794,909 | $42.61 | | |
| SCH50BOND | SCHOOL DIST #50 BOND 2016 | 0.5377451389 | $794,909 | $794,909 | $427.46 | | |
| SCH50CP | SCHOOL DIST #50 CAP PROJ | 0.4573475088 | $794,909 | $794,909 | $363.55 | | |
| SCH50MO | SCHOOL DIST #50 EP & O | 0.8262822886 | $794,909 | $794,909 | $656.82 | | |
| CONSERVE | CONSERVATION FUTURES | 0.0275621078 | $794,909 | $794,909 | $21.91 | | |
| EMS1 | FIRE DIST #1 EMS | 0.4679948282 | $794,909 | $794,909 | $372.01 | | |
| FD1 | FIRE DIST #1 GENERAL | 1.2171942929 | $794,909 | $794,909 | $967.56 | | |
| LIB1 | LIBRARY DIST #1 GENERAL | 0.2868827388 | $794,909 | $794,909 | $228.05 | | |
| PORTPT | PORT OF PT GENERAL | 0.1134941229 | $794,909 | $794,909 | $90.22 | | |
| PORTPTIDD | PORT OF PT IDD 2019 | 0.2577346692 | $794,909 | $794,909 | $204.88 | | |
| PUD1 | PUD #1 GENERAL | 0.0597888892 | $794,909 | $794,909 | $47.53 | | |
| STATE | STATE SCHOOL PART 1 | 1.4940692947 | $794,909 | $794,909 | $1,187.65 | | |
| STATE2 | STATE SCHOOL PART 2 | 0.8050170049 | $794,909 | $794,909 | $639.92 | | |
| | Total Tax Rate: | 8.2653911500 | | | | | |
| | | | | Taxes w/Current Exemptions: | $6,570.25 | | |
| | | | | Taxes w/o Exemptions: | $6,570.25 | | |
Improvement / Building
| Improvement #1: | Residential Bldg | State Code: | 11 | 2091.0 sqft | Value: | $688,759 |
| Bathrooms (#): | 2 (FULL) | Bedrooms (#): | 3 | | Exterior Wall: | SI/ST | Fireplace: | SIN 1-GOOD | | Floor Construction: | FRAME | Foundation: | CONPR | | Heating/Cooling: | F/A | Roof Cover: | COMP |
|
| | Type | Description | Class CD | Sub Class CD | Year Built | Area |
| | MA | Main Area | 5+ | 1S | 2003 | 2091.0 |
| | HCPOR | House Concrete Porch | 5 | 1S | 2003 | 64.0 |
| | HDECK | House Deck | 5 | 1S | 2003 | 59.0 |
| | GATT | House Attached Garage | 5 | 1S | 2003 | 616.0 |
| | HWPOR | House Wood Porch | 5 | 1S | 2003 | 236.0 |
| | CONCD | Concrete Drive | 5 | 1S | 2003 | 600.0 |
Sketch
Property Image
Land
| 1 | 5390-1175L | | 0.0000 | 0.00 | 0.00 | 0.00 | 1.00 | $106,150 | $0 |
Roll Value History
| 2026 | N/A | N/A | N/A | N/A | N/A |
| 2025 | $688,759 | $106,150 | $0 | $794,909 | $794,909 |
| 2024 | $688,759 | $106,150 | $0 | $794,909 | $794,909 |
| 2023 | $655,981 | $99,750 | $0 | $755,731 | $755,731 |
| 2022 | $626,163 | $80,000 | $0 | $706,163 | $706,163 |
Deed and Sales History
| 1 | 08/01/2018 | QCD | Quit Claim Deed | | | | | | 130706 | |
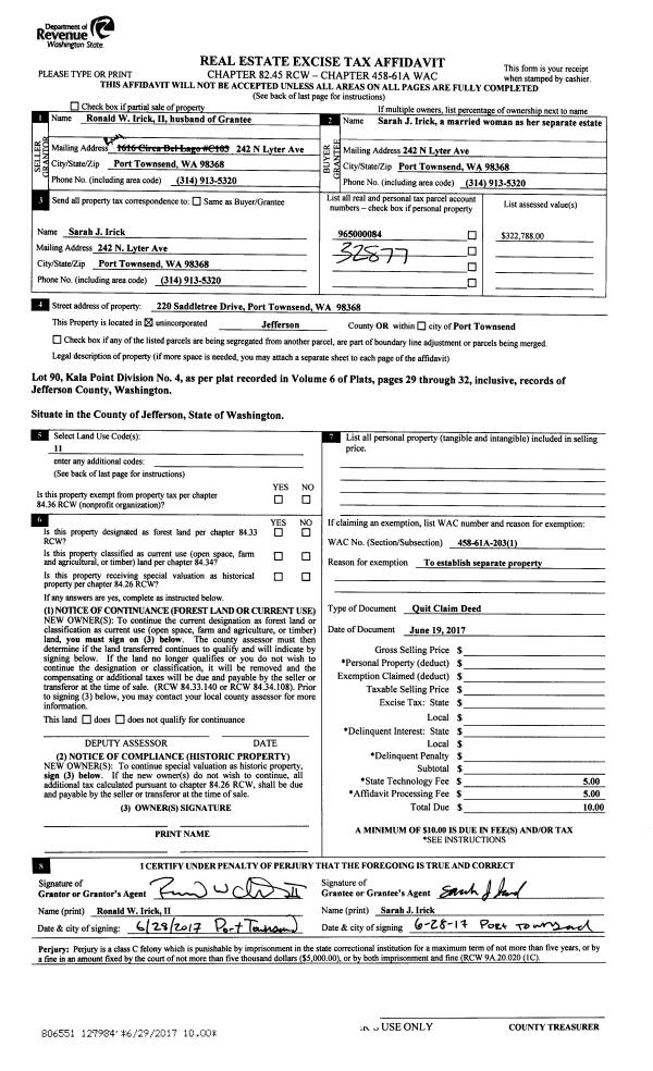
| 2 | 06/19/2017 | QCD | Quit Claim Deed | | | | | | 127984 | |
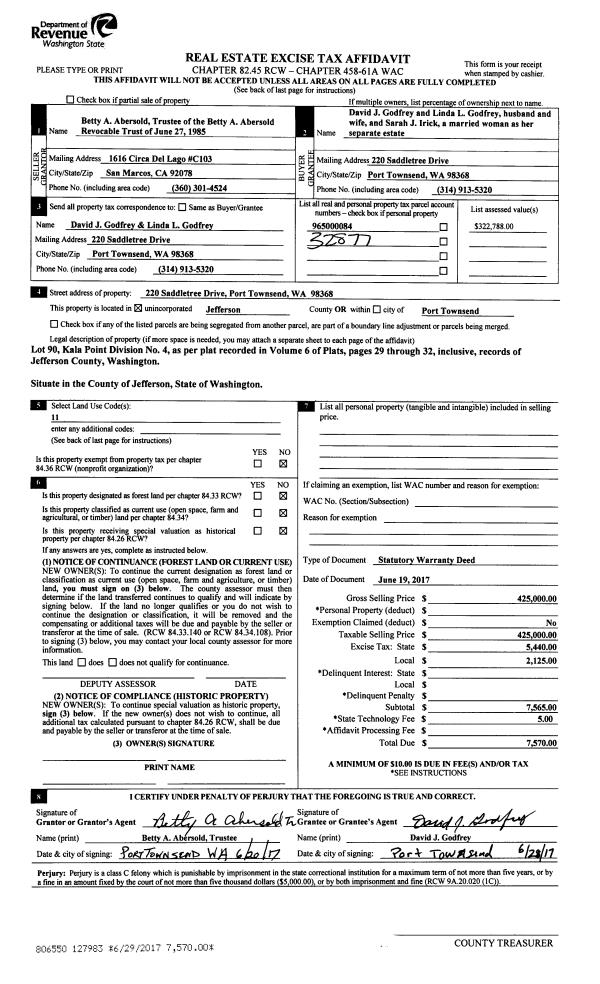
| 3 | 06/19/2017 | SWD | Statutory Warranty Deed | BETTY A ABERSOLD TRSTE | DAVID J & LINDA L GODFREY | | | $425,000.00 | 127983 | |
| 4 | 09/28/2006 | WD | Warranty Deed | ABERSOLD, BETTY A | ABERSOLD TRUST, BETTY A | 0 | 0 | $0.00 | 107704 | 0 |
| 5 | 04/17/2003 | SWD | Statutory Warranty Deed | WALTENBAUGH CONST CO INC | ABERSOLD, BETTY/EST | 0 | 0 | $282,917.00 | 97090 | 0 |
| 6 | 04/16/2003 | QCD | Quit Claim Deed | WRIGHT II/DON C | ABERSOLD, BETTY A | 0 | 0 | $0.00 | 97091 | 0 |
| 7 | 08/08/2002 | SWD | Statutory Warranty Deed | JACOBUS N LOS | WALTENBAUGH CONSRUCTION CO INC | 0 | 0 | $29,000.00 | 95287 | 0 |
| 8 | 02/10/2000 | SWD | Statutory Warranty Deed | RICHARDSON, HELEN | LOS, JACOBUS N/WENDY | 0 | 0 | $24,000.00 | 88947 | 0 |
| 9 | 03/15/1993 | SWD | Statutory Warranty Deed | ANDERSON, DORIS J/HAYNIE, | RICHARDSON, GURNIE/HELEN | 0 | 0 | $16,000.00 | 70628 | 0 |
Payout Agreement
| No payout information available.. |